Информационная система
«Ёшкин Кот»

Скачать базу одним архивом
Скачать обновления
История создания базы
Карта сайта

Скачать НП 6.3-73 Учреждения массового отдыха. Помещения спальных корпусов круглогодичного действия

Дата актуализации: 10.08.2017

НП 6.3-73

Учреждения массового отдыха. Помещения спальных корпусов круглогодичного действия

Обозначение: НП 6.3-73
Обозначение англ: NP 6.3-73
Статус:действует
Название рус.:Учреждения массового отдыха. Помещения спальных корпусов круглогодичного действия
Дата добавления в базу:01.09.2013
Дата актуализации:05.05.2017
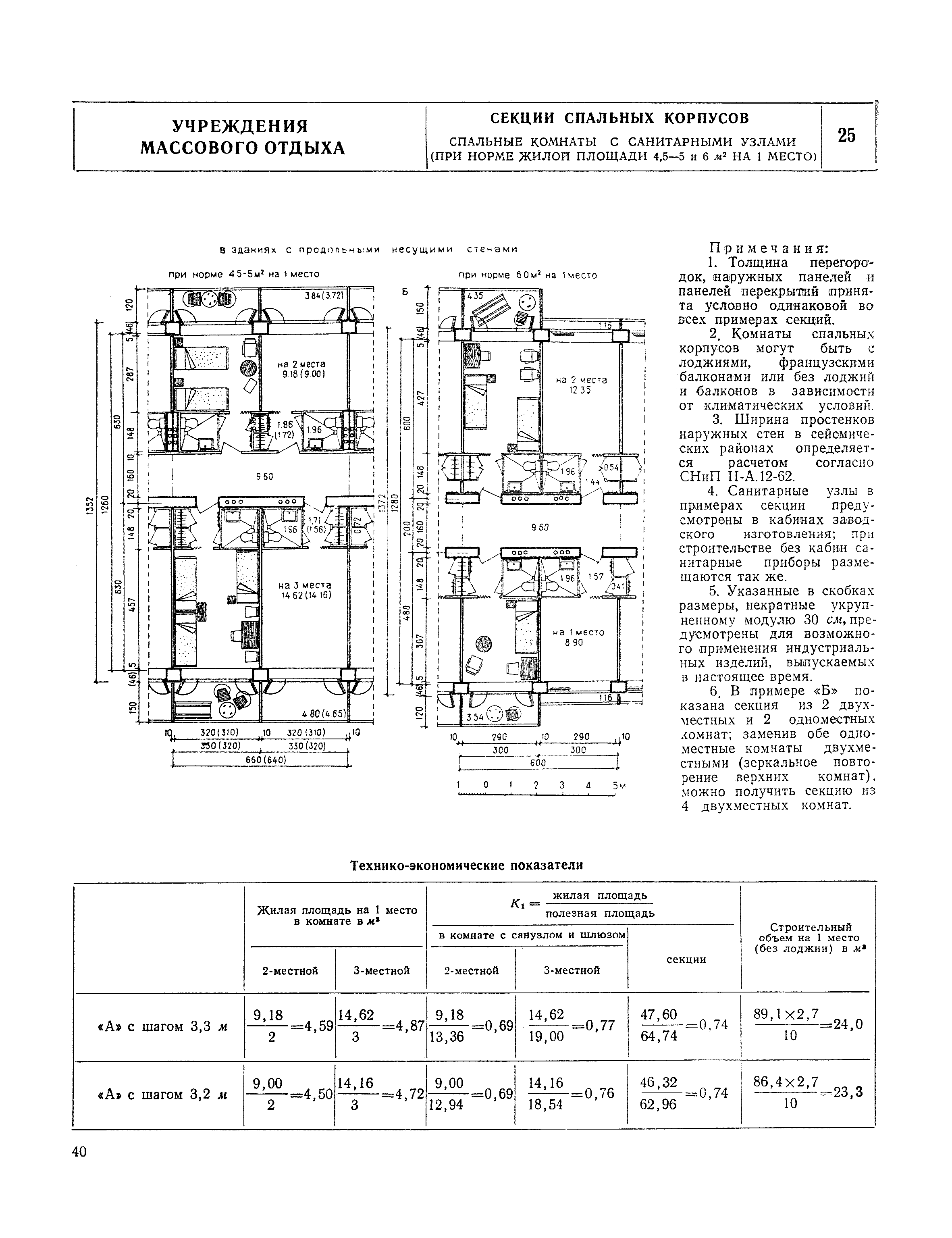
Область применения:Выпуск содержит нормативные и исходные данные, чертежи и рисунки с функциональными схемами помещений спальных корпусов круглогодичного действия учреждений массового отдыха. Выпуск включает нормали помещений спальных комнат на 1 и 2 места для домов отдыха и на 2, 3 и 4 места для пансионатов, автопансионатов и турбаз с оборудованием, мебелью, встроенными шкафами, с санитарными узлами при комнатах или общими поэтажными. Даны также нормали обслуживающих и подсобных помещений, лестниц и лифтов. Нормали предназначены для архитекторов, инженеров, преподавателей, студентов архитектурных и строительных вузов и техникумов, а также работников местных Советов, соответствующих министерств и ведомств,
Оглавление:Введение
Раздел 1. Исходные данные. Мебель
Раздел 2. Спальные комнаты
Раздел 3. Помещения общего пользования
Раздел 4. Секции спальных корпусов. Примеры
Приложения. Лестницы и лифты
Разработан: КиевЗНИИЭП
ЦНИИЭП жилища
Утверждён:01.01.1973 ЦНИИЭП жилища (TsNIIEPzhilishcha )
Издан: Стройиздат (1973 г. )
Расположен в:Техническая документация Экология СТРОИТЕЛЬНЫЕ МАТЕРИАЛЫ И СТРОИТЕЛЬСТВО Строительство Общественные здания Строительство Справочные документы Нормали основных планировочных элементов жилых и общественных зданий
Нормативные ссылки:
НП 6.3-73НП 6.3-73НП 6.3-73НП 6.3-73НП 6.3-73НП 6.3-73НП 6.3-73НП 6.3-73НП 6.3-73НП 6.3-73НП 6.3-73НП 6.3-73НП 6.3-73НП 6.3-73НП 6.3-73НП 6.3-73НП 6.3-73НП 6.3-73НП 6.3-73НП 6.3-73НП 6.3-73НП 6.3-73НП 6.3-73НП 6.3-73НП 6.3-73НП 6.3-73НП 6.3-73НП 6.3-73НП 6.3-73НП 6.3-73НП 6.3-73НП 6.3-73НП 6.3-73НП 6.3-73НП 6.3-73НП 6.3-73НП 6.3-73НП 6.3-73НП 6.3-73НП 6.3-73НП 6.3-73НП 6.3-73НП 6.3-73НП 6.3-73НП 6.3-73НП 6.3-73НП 6.3-73НП 6.3-73НП 6.3-73НП 6.3-73НП 6.3-73НП 6.3-73НП 6.3-73НП 6.3-73НП 6.3-73НП 6.3-73НП 6.3-73

© 2013 Ёшкин Кот :-) Карта сайта