Информационная система
«Ёшкин Кот»

Скачать базу одним архивом
Скачать обновления
История создания базы
Карта сайта

Скачать Шифр М25.3/02 Несущие стены Талдом-Термо с каркасом из термопрофилей и теплоизоляцией из минераловатных плит. Рекомендации по проектированию

Дата актуализации: 10.08.2017

Шифр М25.3/02

Несущие стены "Талдом-Термо" с каркасом из термопрофилей и теплоизоляцией из минераловатных плит. Рекомендации по проектированию

Обозначение: Шифр М25.3/02
Обозначение англ: М25.3/02
Статус:не определен законодательством
Название рус.:Несущие стены "Талдом-Термо" с каркасом из термопрофилей и теплоизоляцией из минераловатных плит. Рекомендации по проектированию
Дата добавления в базу:01.09.2013
Дата актуализации:05.05.2017
Дата введения:01.01.2003
Область применения:Работа содержит рекомендации по проектированию несущих наружных стен с каркасом из стальных холодноформованных перфорированных профилей фирмы "Линдаб" (Швеция) со слоем теплоизоляции из негорючих минераловатных плит, обшивками из гипсокартонных листов и разными вариантами наружного защитно-декоративного слоя. Конструкции разработаны для общественных, административных, жилых и производственных зданий с сухим или нормальным влажностным режимом помещений для строительства в сухой и нормальной зонах влажности, со снеговой и ветровой нагрузкой для I-IV районов по СНиП 2.01.07-85
Оглавление:М 25.3/02-ПЗ Пояснительная записка
   1. Область применения
   2. Конструкция стен
   3. Нормы теплозащиты зданий и данные по необходимой толщине панели
   4. Наружная отделка стен
М 25.3/02-1 Схемы сопряжения стен и покрытия. Узлы 1…4
М 25.3/02-2 Монтажная схема панелей. Узлы 5…7
М 25.3/02-3 Монтажная схема установки теплоизоляции и внутренней обшивки. Узлы 8…10
М 25.3/02-4 Облицовка стен профлистом ТП20-С(К). Фасад с вертикальным расположением листа. Схема обрешетки. Узлы 1…10
М 25.3/02-5 Облицовка стен профлистом ТП20-С(К). Фасад с горизонтальным расположением листа. Схема обрешеток. Узлы 1…10
М 25.3/02-6 Облицовка стен кассетами "Талдом-1000". Фасад. Схемы обрешеток. Узлы 1…10
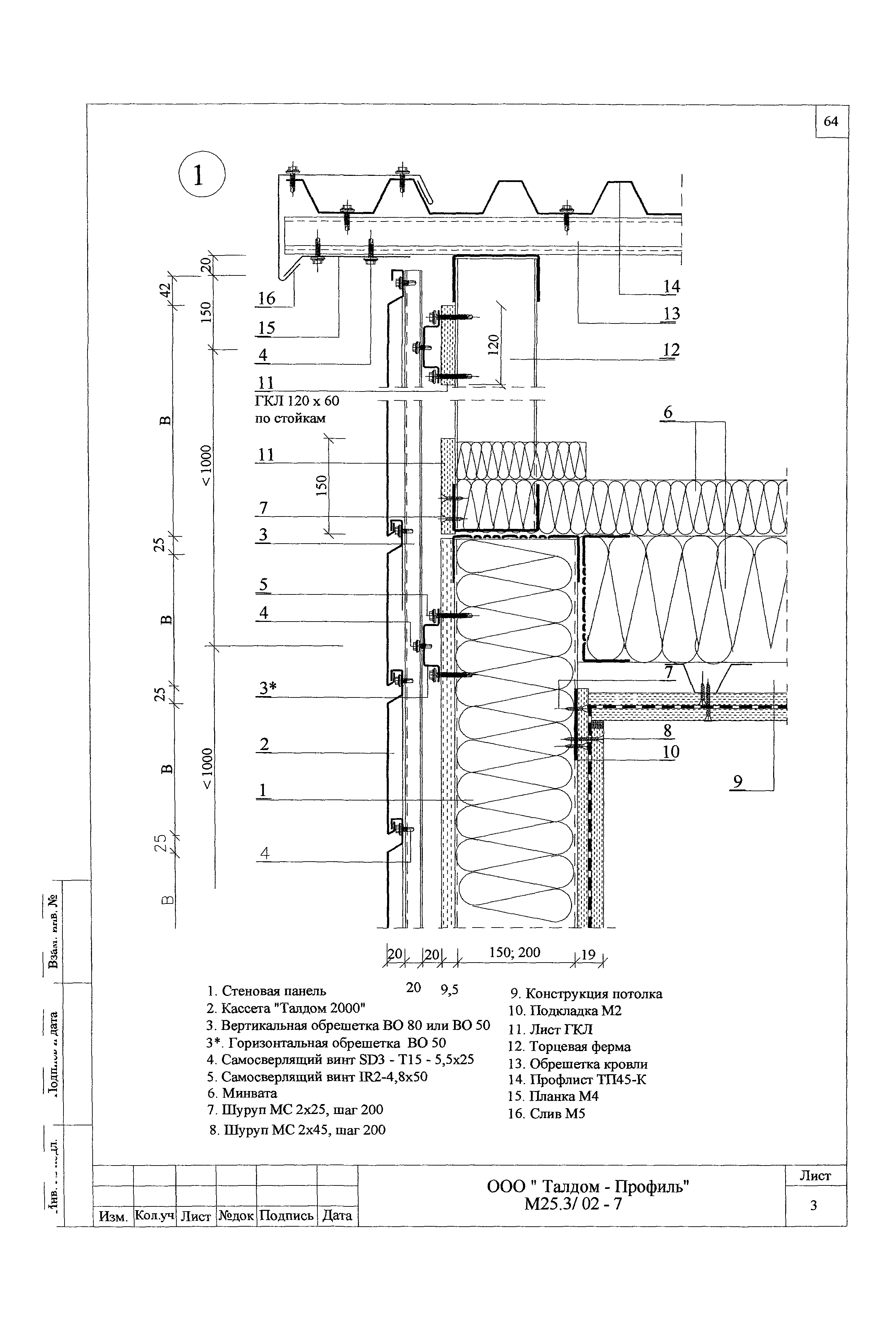
М 25.3/02-7 Облицовка стен кассетами "Талдом-2000". Фасад. Схемы обрешеток. Узлы 1…10
М 25.3/02-8 Облицовка стен кирпичом. Фасад. Схемы обрешетки. Узлы 1…10
М 25.3/02-9 Каркас панелей 1 и 2. Раскладка листов ГКЛ наружной обшивки. Узлы 1…13
М 25.3/02-10 Спецификация профилей конструкций
Приложения
Утверждён:01.01.2003 ОАО ЦНИИпромзданий (TsNIIpromzdaniy OAO )
Принят:01.01.2003 ООО Талдом-Профиль
Расположен в:Техническая документация Строительство Справочные документы Типовые строительные конструкции, изделия и узлы Разработанные другими министерствами, ведомствами и организациями
Нормативные ссылки:
Шифр М25.3/02Шифр М25.3/02Шифр М25.3/02Шифр М25.3/02Шифр М25.3/02Шифр М25.3/02Шифр М25.3/02Шифр М25.3/02Шифр М25.3/02Шифр М25.3/02Шифр М25.3/02Шифр М25.3/02Шифр М25.3/02Шифр М25.3/02Шифр М25.3/02Шифр М25.3/02Шифр М25.3/02Шифр М25.3/02Шифр М25.3/02Шифр М25.3/02Шифр М25.3/02Шифр М25.3/02Шифр М25.3/02Шифр М25.3/02Шифр М25.3/02Шифр М25.3/02Шифр М25.3/02Шифр М25.3/02Шифр М25.3/02Шифр М25.3/02Шифр М25.3/02Шифр М25.3/02Шифр М25.3/02Шифр М25.3/02Шифр М25.3/02Шифр М25.3/02Шифр М25.3/02Шифр М25.3/02Шифр М25.3/02Шифр М25.3/02Шифр М25.3/02Шифр М25.3/02Шифр М25.3/02Шифр М25.3/02Шифр М25.3/02Шифр М25.3/02Шифр М25.3/02Шифр М25.3/02Шифр М25.3/02Шифр М25.3/02Шифр М25.3/02Шифр М25.3/02Шифр М25.3/02Шифр М25.3/02Шифр М25.3/02Шифр М25.3/02Шифр М25.3/02Шифр М25.3/02Шифр М25.3/02Шифр М25.3/02Шифр М25.3/02Шифр М25.3/02Шифр М25.3/02Шифр М25.3/02Шифр М25.3/02Шифр М25.3/02Шифр М25.3/02Шифр М25.3/02Шифр М25.3/02Шифр М25.3/02Шифр М25.3/02Шифр М25.3/02Шифр М25.3/02Шифр М25.3/02Шифр М25.3/02Шифр М25.3/02Шифр М25.3/02Шифр М25.3/02Шифр М25.3/02Шифр М25.3/02Шифр М25.3/02Шифр М25.3/02Шифр М25.3/02Шифр М25.3/02Шифр М25.3/02Шифр М25.3/02Шифр М25.3/02Шифр М25.3/02Шифр М25.3/02Шифр М25.3/02Шифр М25.3/02Шифр М25.3/02Шифр М25.3/02Шифр М25.3/02Шифр М25.3/02Шифр М25.3/02Шифр М25.3/02Шифр М25.3/02Шифр М25.3/02Шифр М25.3/02Шифр М25.3/02Шифр М25.3/02Шифр М25.3/02Шифр М25.3/02Шифр М25.3/02Шифр М25.3/02Шифр М25.3/02Шифр М25.3/02Шифр М25.3/02Шифр М25.3/02Шифр М25.3/02Шифр М25.3/02Шифр М25.3/02Шифр М25.3/02Шифр М25.3/02Шифр М25.3/02Шифр М25.3/02Шифр М25.3/02Шифр М25.3/02Шифр М25.3/02Шифр М25.3/02Шифр М25.3/02Шифр М25.3/02Шифр М25.3/02Шифр М25.3/02Шифр М25.3/02Шифр М25.3/02Шифр М25.3/02Шифр М25.3/02Шифр М25.3/02Шифр М25.3/02Шифр М25.3/02Шифр М25.3/02Шифр М25.3/02

© 2013 Ёшкин Кот :-) Карта сайта