Информационная система
«Ёшкин Кот»

Скачать базу одним архивом
Скачать обновления
История создания базы
Карта сайта

Скачать ТУ 5216-001-05765820-2007 Ограждения дорожные удерживающие для автомобилей боковые первого типа металлические

Дата актуализации: 10.08.2017

ТУ 5216-001-05765820-2007

Ограждения дорожные удерживающие для автомобилей боковые первого типа металлические

Обозначение: ТУ 5216-001-05765820-2007
Обозначение англ: TU 5216-001-05765820-2007
Статус:действует
Название рус.:Ограждения дорожные удерживающие для автомобилей боковые первого типа металлические
Дата добавления в базу:01.09.2013
Дата актуализации:05.05.2017
Область применения:Технические условия распространяются на ограждения дорожные удерживающие для автомобилей боковые первого типа металлические. Ограждения могут быть одностороннего и двустороннего исполнения с 1 и 2-х ярусными балками металлические с уровнем удерживающей способности от 130 до 450 кДж. Предназначены для предотвращения съезда транспортного средства с земляного полотна дороги, переезда через разделительную полосу, столкновения со встречным транспортным средством, наезда на массивные препятствия и сооружения. Применяются на городских магистральных улицах (дорогах) и внегородских дорогах общего пользования Российской Федерации.
Оглавление:1 Технические требования
2 Требования безопасности и охрана окружающей среды
3 Правила приемки
4 Методы контроля и испытаний ограждений
5 Упаковка, маркировка, транспортирование и хранение
6 Гарантии изготовителя
Приложение А. Инструкция по установке ограждений дорожных, удерживающих для автомобилей, боковых первого типа, металлических (с удерживающей способностью 130 до 500 кДж)
Приложение Б. Рисунки ограждений
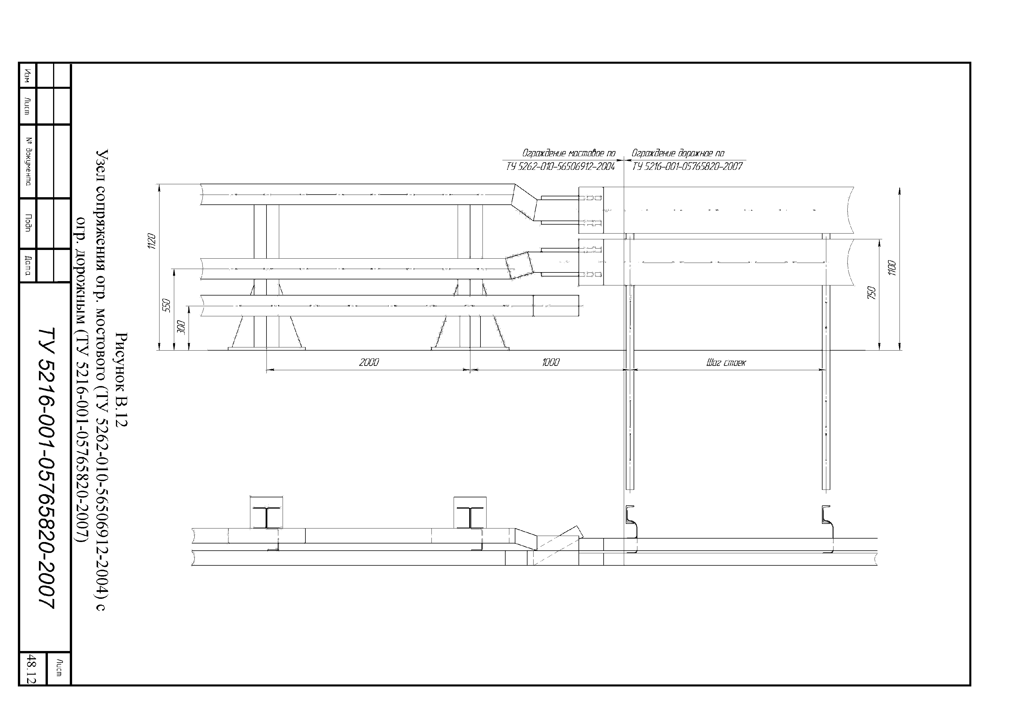
Приложение В. Узлы сопряжения мостовых ограждений с ограждениями дорожными по ТУ 5216-001-05765820-2007
Приложение Г. Перечень ссылочных нормативных документов
Приложение Д. Схемы сборки ограждений
Приложение Е. Типоразмеры сигнальных флажков
Приложение Ж. Рисунки крепления металлических сеток
Приложение З. Установка ограждений дорожных двусторонних, удерживающих для автомобилей, боковых, первого типа, металлических типа "Нью-Джерси"
Приложение И. Установка фронтальных ограждений дорожных двусторонних, удерживающих для автомобилей, металлических
Разработан: ОАО КТЦ Металлоконструкция
Утверждён:10.08.2007 ОАО КТЦ Металлоконструкция
Принят: ОБДД МВД России
Расположен в:Техническая документация Экология ГРАЖДАНСКОЕ СТРОИТЕЛЬСТВО Строительство дорог Дорожное оборудование и установки Строительство Стандарты Отраслевые стандарты и технические условия Технические условия
Нормативные ссылки:
ТУ 5216-001-05765820-2007ТУ 5216-001-05765820-2007ТУ 5216-001-05765820-2007ТУ 5216-001-05765820-2007ТУ 5216-001-05765820-2007ТУ 5216-001-05765820-2007ТУ 5216-001-05765820-2007ТУ 5216-001-05765820-2007ТУ 5216-001-05765820-2007ТУ 5216-001-05765820-2007ТУ 5216-001-05765820-2007ТУ 5216-001-05765820-2007ТУ 5216-001-05765820-2007ТУ 5216-001-05765820-2007ТУ 5216-001-05765820-2007ТУ 5216-001-05765820-2007ТУ 5216-001-05765820-2007ТУ 5216-001-05765820-2007ТУ 5216-001-05765820-2007ТУ 5216-001-05765820-2007ТУ 5216-001-05765820-2007ТУ 5216-001-05765820-2007ТУ 5216-001-05765820-2007ТУ 5216-001-05765820-2007ТУ 5216-001-05765820-2007ТУ 5216-001-05765820-2007ТУ 5216-001-05765820-2007ТУ 5216-001-05765820-2007ТУ 5216-001-05765820-2007ТУ 5216-001-05765820-2007ТУ 5216-001-05765820-2007ТУ 5216-001-05765820-2007ТУ 5216-001-05765820-2007ТУ 5216-001-05765820-2007ТУ 5216-001-05765820-2007ТУ 5216-001-05765820-2007ТУ 5216-001-05765820-2007ТУ 5216-001-05765820-2007ТУ 5216-001-05765820-2007ТУ 5216-001-05765820-2007ТУ 5216-001-05765820-2007ТУ 5216-001-05765820-2007ТУ 5216-001-05765820-2007ТУ 5216-001-05765820-2007ТУ 5216-001-05765820-2007ТУ 5216-001-05765820-2007ТУ 5216-001-05765820-2007ТУ 5216-001-05765820-2007ТУ 5216-001-05765820-2007ТУ 5216-001-05765820-2007ТУ 5216-001-05765820-2007ТУ 5216-001-05765820-2007ТУ 5216-001-05765820-2007ТУ 5216-001-05765820-2007ТУ 5216-001-05765820-2007ТУ 5216-001-05765820-2007ТУ 5216-001-05765820-2007ТУ 5216-001-05765820-2007ТУ 5216-001-05765820-2007ТУ 5216-001-05765820-2007ТУ 5216-001-05765820-2007ТУ 5216-001-05765820-2007ТУ 5216-001-05765820-2007ТУ 5216-001-05765820-2007ТУ 5216-001-05765820-2007ТУ 5216-001-05765820-2007ТУ 5216-001-05765820-2007ТУ 5216-001-05765820-2007ТУ 5216-001-05765820-2007ТУ 5216-001-05765820-2007ТУ 5216-001-05765820-2007ТУ 5216-001-05765820-2007ТУ 5216-001-05765820-2007ТУ 5216-001-05765820-2007ТУ 5216-001-05765820-2007ТУ 5216-001-05765820-2007ТУ 5216-001-05765820-2007ТУ 5216-001-05765820-2007ТУ 5216-001-05765820-2007ТУ 5216-001-05765820-2007ТУ 5216-001-05765820-2007ТУ 5216-001-05765820-2007ТУ 5216-001-05765820-2007ТУ 5216-001-05765820-2007ТУ 5216-001-05765820-2007ТУ 5216-001-05765820-2007ТУ 5216-001-05765820-2007ТУ 5216-001-05765820-2007ТУ 5216-001-05765820-2007ТУ 5216-001-05765820-2007ТУ 5216-001-05765820-2007ТУ 5216-001-05765820-2007ТУ 5216-001-05765820-2007ТУ 5216-001-05765820-2007ТУ 5216-001-05765820-2007ТУ 5216-001-05765820-2007ТУ 5216-001-05765820-2007ТУ 5216-001-05765820-2007ТУ 5216-001-05765820-2007ТУ 5216-001-05765820-2007ТУ 5216-001-05765820-2007ТУ 5216-001-05765820-2007ТУ 5216-001-05765820-2007ТУ 5216-001-05765820-2007ТУ 5216-001-05765820-2007ТУ 5216-001-05765820-2007ТУ 5216-001-05765820-2007ТУ 5216-001-05765820-2007ТУ 5216-001-05765820-2007ТУ 5216-001-05765820-2007ТУ 5216-001-05765820-2007ТУ 5216-001-05765820-2007ТУ 5216-001-05765820-2007ТУ 5216-001-05765820-2007ТУ 5216-001-05765820-2007ТУ 5216-001-05765820-2007ТУ 5216-001-05765820-2007ТУ 5216-001-05765820-2007ТУ 5216-001-05765820-2007ТУ 5216-001-05765820-2007ТУ 5216-001-05765820-2007ТУ 5216-001-05765820-2007ТУ 5216-001-05765820-2007

© 2013 Ёшкин Кот :-) Карта сайта