Информационная система
«Ёшкин Кот»

Скачать базу одним архивом
Скачать обновления
История создания базы
Карта сайта

Скачать Строительно-монтажные краны. Технические характеристики. Часть III. Рельсовые стреловые и башенные краны

Дата актуализации: 10.08.2017

Строительно-монтажные краны. Технические характеристики. Часть III. Рельсовые стреловые и башенные краны

Статус:не действует
Название рус.:Строительно-монтажные краны. Технические характеристики. Часть III. Рельсовые стреловые и башенные краны
Дата добавления в базу:01.09.2013
Дата актуализации:05.05.2017
Область применения:Каталог содержит общие сведения, основные технические характеристики рельсовых и башенных кранов, используемых для выполнения строительно-монтажных работ и погрузочно-разгрузочных работ. Каталог предназначен инженерно-техническому персоналу проектных и строительных организаций, осуществляющих подбор кранов при разработке (ПОС) и (ППР), а также специалистам служб строительно-монтажных организаций.
Оглавление:Общая часть
I. Рельсовые стреловые краны (краны нулевого цикла)
   1. КБ-404.М
   2. КБ-404.4
II. Башенные передвижные краны
   1. КБ-401 (КБ-160.2)
   2. КБ-403 (КБк-160.2)
   3. КБ-403Б
   4. КБ-405.1
   5. КБ-405.1А
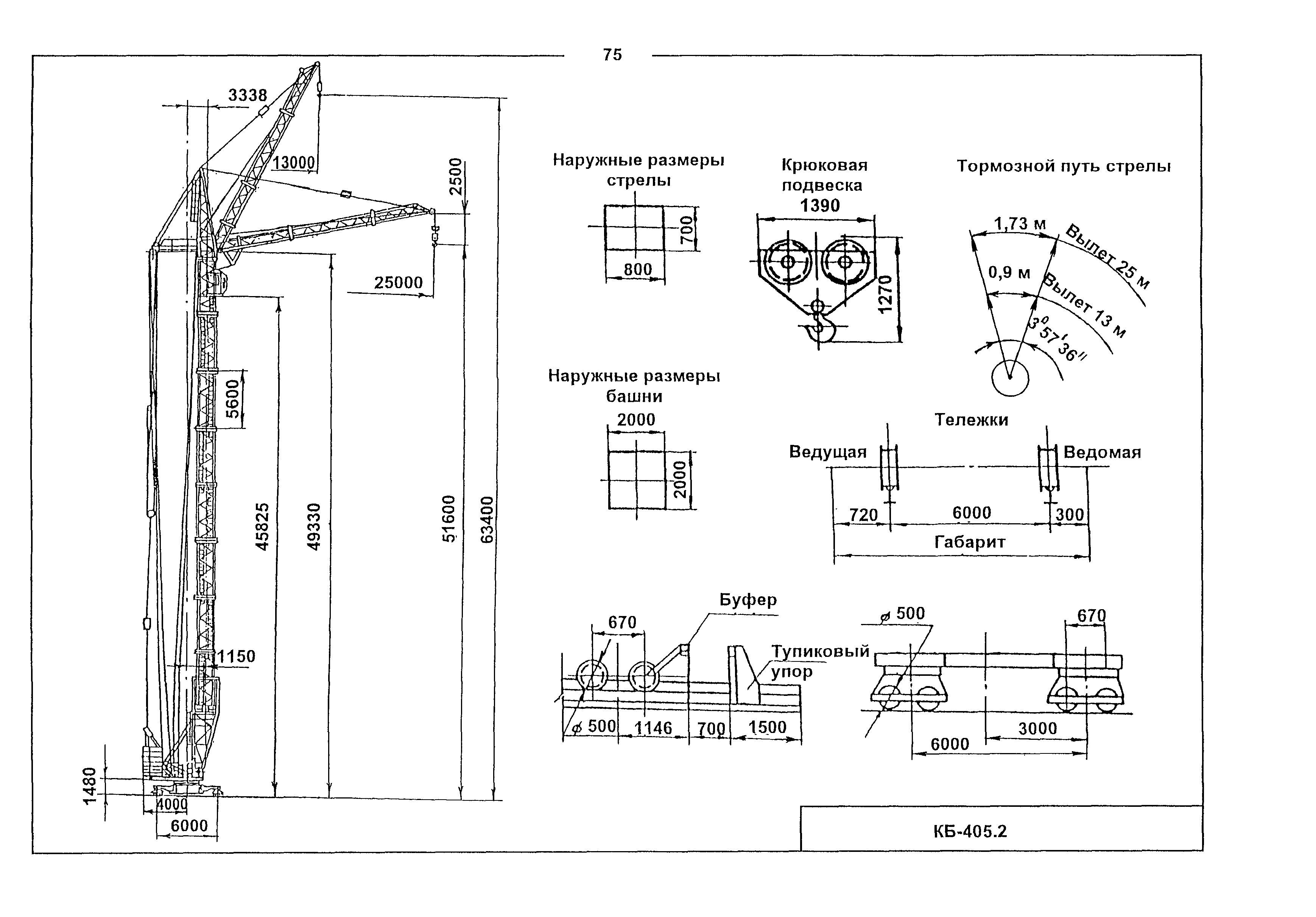
   6. КБ-405.2
   7. КБ-405.2А
   8. КБМ-401П-00
   9. КБ-408
   10. КБ-411
   11. КБ-503А
   12. КБ-504
III. Башенные краны приставные
   1. КБ-676
   2. КБ-674А
IV. Башенные краны стационарные
   1. КБ-573
Список литературы
Разработан: ОАО ПКТИпромстрой
Утверждён:01.01.1996 ОАО ПКТИпромстрой (PKTIpromstroy OAO )
Издан: ОАО ПКТИпромстрой (1996 г. )
Расположен в:Техническая документация Экология ПОДЪЕМНО-ТРАНСПОРТНОЕ ОБОРУДОВАНИЕ Подъемное оборудование Краны Строительство Справочные документы Каталоги

© 2013 Ёшкин Кот :-) Карта сайта