Информационная система
«Ёшкин Кот»

Скачать базу одним архивом
Скачать обновления
История создания базы
Карта сайта

Скачать Серия 5.905-23.07 Выпуск 1. Рабочие чертежи

Дата актуализации: 10.08.2017

Серия 5.905-23.07

Выпуск 1. Рабочие чертежи

Обозначение: Серия 5.905-23.07
Обозначение англ: Series 5.905-23.07
Статус:не определен законодательством
Название рус.:Выпуск 1. Рабочие чертежи
Дата добавления в базу:01.09.2013
Дата актуализации:05.05.2017
Дата введения:01.03.2007
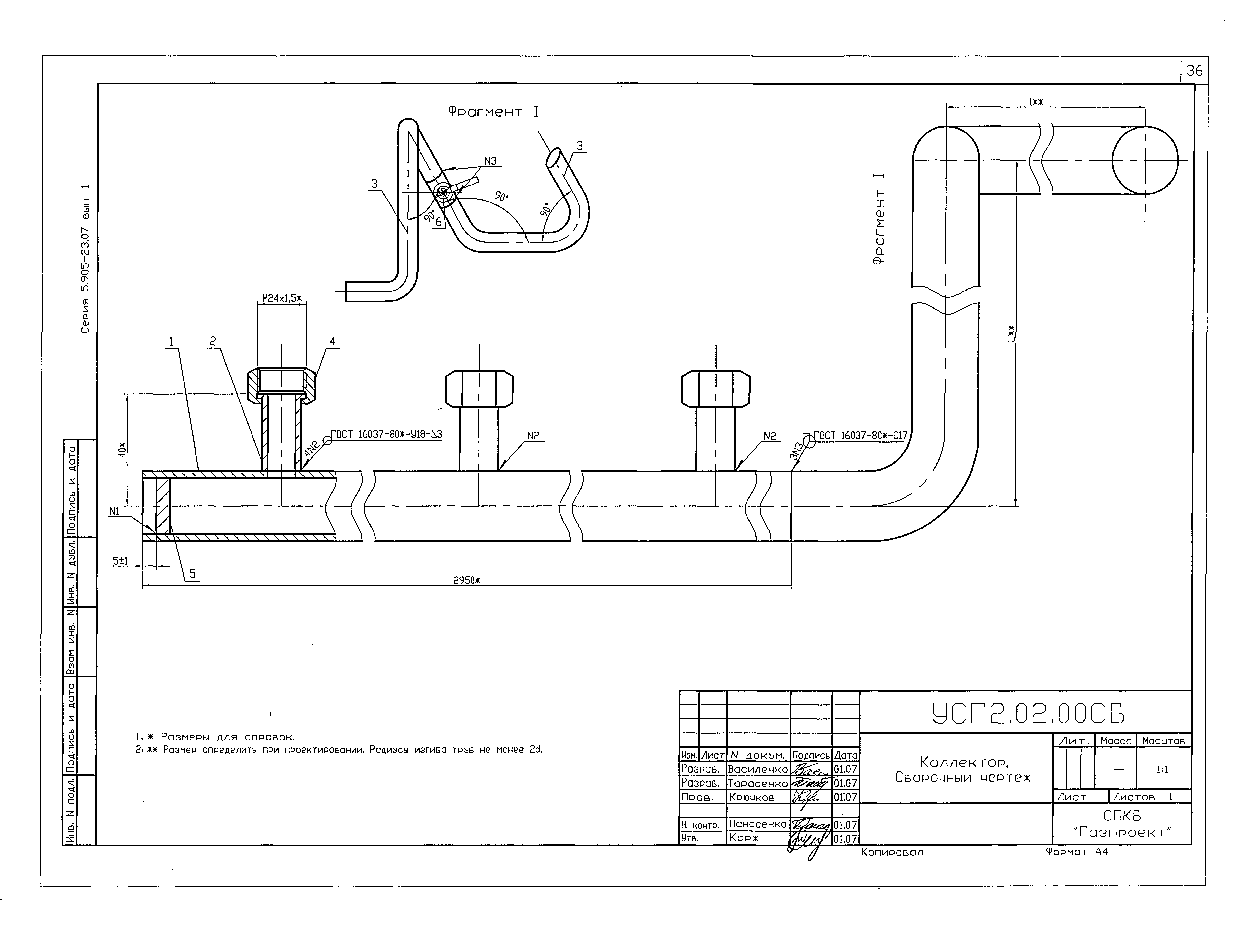
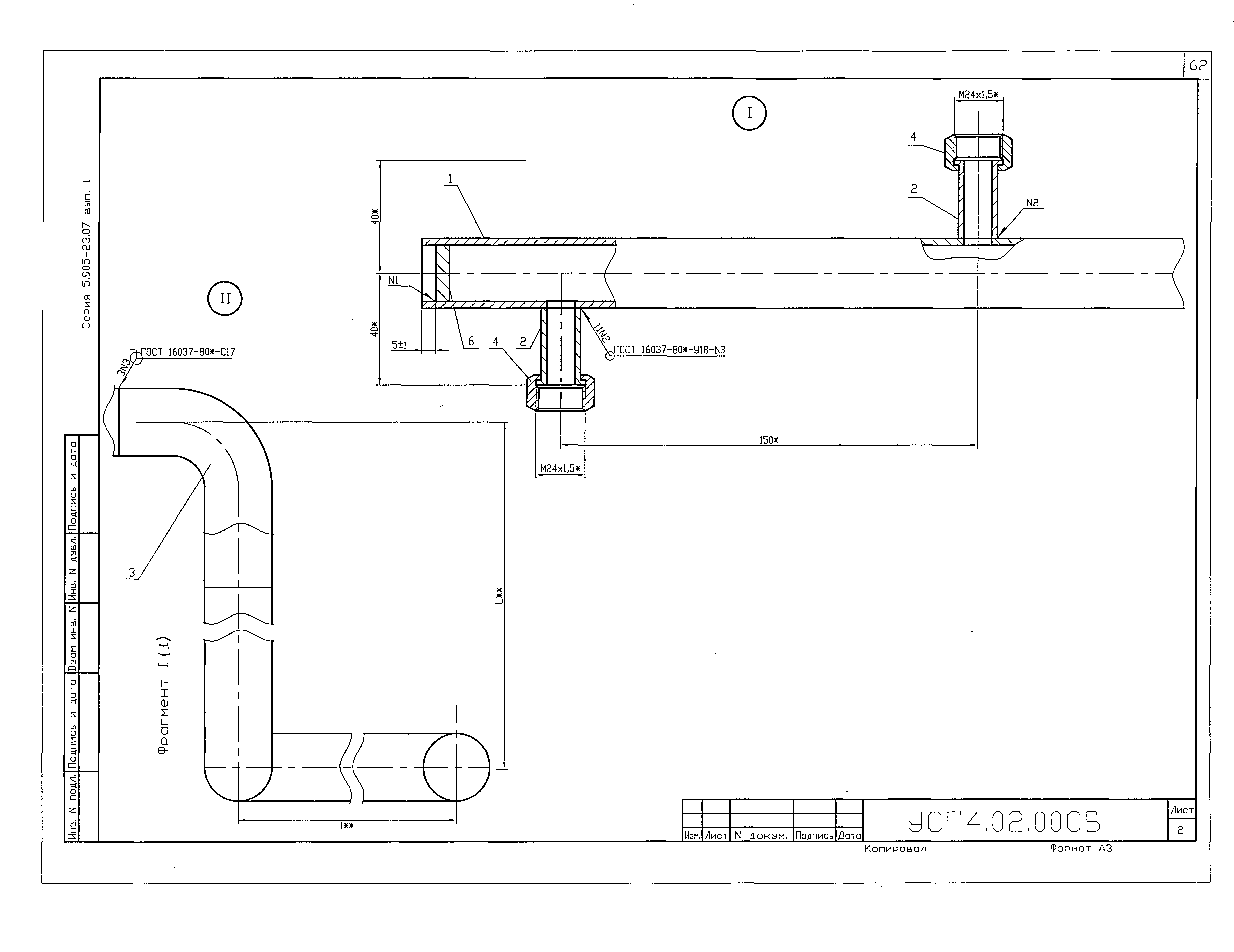
Область применения:Рабочие чертежи настоящей типовой документации применяются при проектировании баллонных установок СУГ, служащих в качестве источников газоснабжения жилых, административных, общественных, производственных и бытовых зданий, СУГ по ГОСТ 20448-90* с избыточным давлением до регулятора до 1,6 МПа (16 кгс/кв.см)
Разработан: ОАО СПКБ Газпроект -БТЦ
Утверждён:16.02.2007 АО Росгазификация (Rosgazifikatsiya AO 5)
Издан: Информационный бюллетень о нормативной, методической и типовой проектной документации ФГУП ЦПП (2007 г. (5))
Расположен в:Техническая документация Строительство Справочные документы Типовые строительные конструкции, изделия и узлы Общероссийский строительный каталог Строительные конструкции, изделия и узлы зданий и сооружений для всех видов строительства Инженерное оборудование Инженерное оборудование; изделия и узлы инженерного оборудования зданий и сооружений Установки газоснабжения
Заменяет собой:
Серия 5.905-23.07Серия 5.905-23.07Серия 5.905-23.07Серия 5.905-23.07Серия 5.905-23.07Серия 5.905-23.07Серия 5.905-23.07Серия 5.905-23.07Серия 5.905-23.07Серия 5.905-23.07Серия 5.905-23.07Серия 5.905-23.07Серия 5.905-23.07Серия 5.905-23.07Серия 5.905-23.07Серия 5.905-23.07Серия 5.905-23.07Серия 5.905-23.07Серия 5.905-23.07Серия 5.905-23.07Серия 5.905-23.07Серия 5.905-23.07Серия 5.905-23.07Серия 5.905-23.07Серия 5.905-23.07Серия 5.905-23.07Серия 5.905-23.07Серия 5.905-23.07Серия 5.905-23.07Серия 5.905-23.07Серия 5.905-23.07Серия 5.905-23.07Серия 5.905-23.07Серия 5.905-23.07Серия 5.905-23.07Серия 5.905-23.07Серия 5.905-23.07Серия 5.905-23.07Серия 5.905-23.07Серия 5.905-23.07Серия 5.905-23.07Серия 5.905-23.07Серия 5.905-23.07Серия 5.905-23.07Серия 5.905-23.07Серия 5.905-23.07Серия 5.905-23.07Серия 5.905-23.07Серия 5.905-23.07Серия 5.905-23.07Серия 5.905-23.07Серия 5.905-23.07Серия 5.905-23.07Серия 5.905-23.07Серия 5.905-23.07Серия 5.905-23.07Серия 5.905-23.07Серия 5.905-23.07Серия 5.905-23.07Серия 5.905-23.07Серия 5.905-23.07Серия 5.905-23.07Серия 5.905-23.07Серия 5.905-23.07Серия 5.905-23.07

© 2013 Ёшкин Кот :-) Карта сайта