Скачать Серия 1.400-10/76 Выпуск 5. Узлы креплений коммуникаций, располагаемых по колоннам, фахверковым стойкам и подкрановым балкамДата актуализации: 10.08.2017 Серия 1.400-10/76
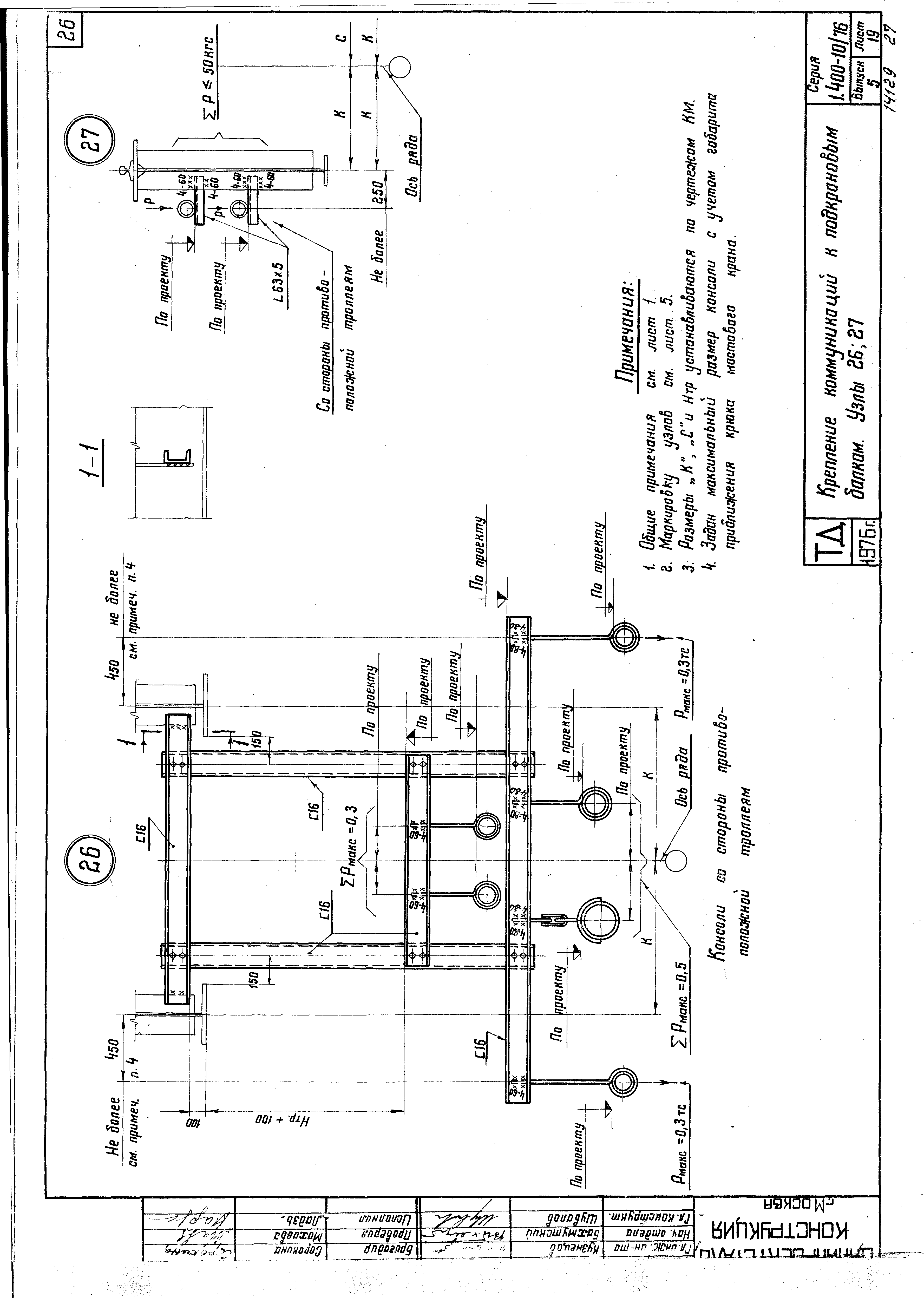
Выпуск 5. Узлы креплений коммуникаций, располагаемых по колоннам, фахверковым стойкам и подкрановым балкамОбозначение: | Серия 1.400-10/76 | Обозначение англ: | Series 1.400-10/76 | Статус: | не действует | Название рус.: | Выпуск 5. Узлы креплений коммуникаций, располагаемых по колоннам, фахверковым стойкам и подкрановым балкам | Дата добавления в базу: | 01.09.2013 | Дата актуализации: | 05.05.2017 | Дата введения: | 01.03.1977 | Дата окончания срока действия: | 01.07.1984 | Разработан: | ЦНИИпроектстальконструкция
| Утверждён: | 24.11.1976 Госстрой СССР (Государственный комитет Совета Министров СССР по делам строительства) (USSR Gosstroy 194)
| Расположен в: |
| Чем заменён: | |
                               
|