Информационная система
«Ёшкин Кот»

Скачать базу одним архивом
Скачать обновления
История создания базы
Карта сайта

Скачать Серия 2.440-1 Выпуск 5. Узлы креплений коммуникаций

Дата актуализации: 10.08.2017

Серия 2.440-1

Выпуск 5. Узлы креплений коммуникаций

Обозначение: Серия 2.440-1
Обозначение англ: Series 2.440-1
Статус:действует
Название рус.:Выпуск 5. Узлы креплений коммуникаций
Дата добавления в базу:01.09.2013
Дата актуализации:05.05.2017
Дата введения:01.07.1984
Оглавление:2.440-1.5 КМ л.1.1; 1.2 Пояснительная записка
2.440-1.5 КМ л.2 Общие указания
2.440-1.5 КМ л.3 Маркировка узлов креплений коммуникаций по колоннам крайнего ряда
2.440-1.5 КМ л.4 Маркировка узлов креплений коммуникаций по колоннам крайнего и среднего ряда
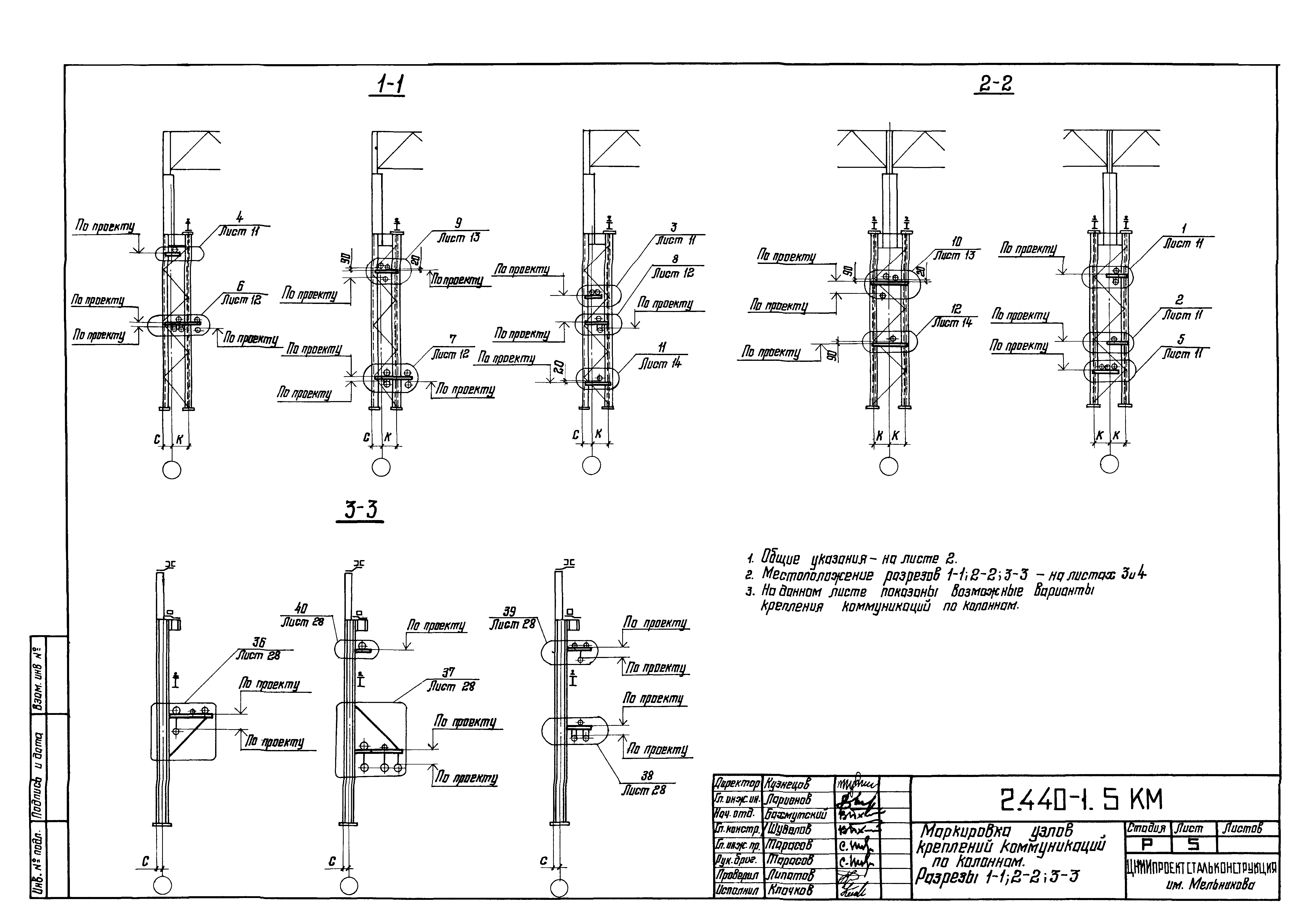
2.440-1.5 КМ л.5 Маркировка узлов креплений коммуникаций по колоннам. Разрезы 1-1; 2-2; 3-3
2.440-1.5 КМ л.6 Маркировка узлов креплений коммуникаций по колоннам и стойкам фахверка
2.440-1.5 КМ л.7 Маркировка узлов креплений коммуникаций по подкрановым балкам крайнего и среднего ряда
2.440-1.5 КМ л.8 Маркировка узлов креплений коммуникаций, (расположенных вдоль стропильных ферм) к конструкциям покрытий
2.440-1.5 КМ л.9 Маркировка узлов креплений коммуникаций, (расположенных поперек стропильных ферм) к конструкциям покрытий
2.440-1.5 КМ л.10 Маркировка узлов креплений коммуникаций, проходящих через кровлю
2.440-1.5 КМ л.11 Крепление коммуникаций к колоннам. Узлы 1; 2; 3; 4; 5
2.440-1.5 КМ л.12 Крепление коммуникаций к колоннам. Узлы 6; 7; 8
2.440-1.5 КМ л.13 Крепление коммуникаций к колоннам. Узлы 9; 10
2.440-1.5 КМ л.14 Крепление коммуникаций к колоннам. Узлы 11; 12
2.440-1.5 КМ л.15 Крепление коммуникаций к колоннам. Узлы 13; 14
2.440-1.5 КМ л.16 Крепление коммуникаций к колоннам. Узел 15
2.440-1.5 КМ л.17 Крепление коммуникаций к колоннам. Узел 16
2.440-1.5 КМ л.18 Крепление коммуникаций к колоннам. Узел 17
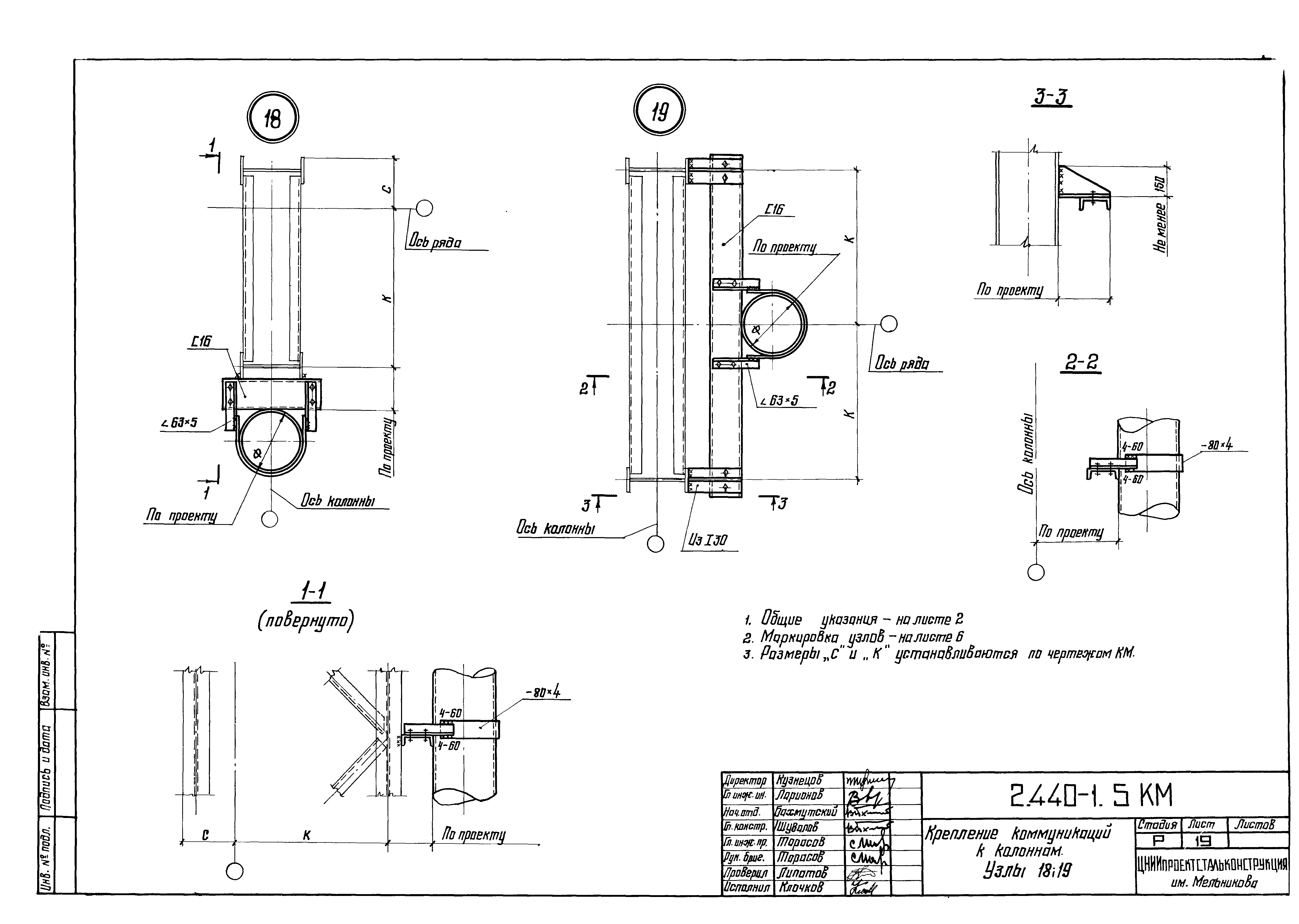
2.440-1.5 КМ л.19 Крепление коммуникаций к колоннам. Узлы 18; 19
2.440-1.5 КМ л.20 Крепление коммуникаций к подкрановым балкам. Узлы 20; 21
2.440-1.5 КМ л.21 Крепление коммуникаций к подкрановым балкам. Узлы 22; 23
2.440-1.5 КМ л.22 Крепление коммуникаций к подкрановым балкам. Узлы 24; 25
2.440-1.5 КМ л.23 Крепление коммуникаций к подкрановым балкам. Узлы 26; 27
2.440-1.5 КМ л.24 Крепление коммуникаций к подкрановым балкам. Узлы 28; 29; 30
2.440-1.5 КМ л.25 Крепление коммуникаций к подкрановым балкам. Узлы 31; 32
2.440-1.5 КМ л.26 Крепление коммуникаций к подкрановым балкам. Узел 33
2.440-1.5 КМ л.27 Крепление коммуникаций к стойкам фахверка. Узлы 34; 35
2.440-1.5 КМ л.28 Крепление коммуникаций к стойкам фахверка. Узлы 36; 37; 38; 39; 40
2.440-1.5 КМ л.29 Крепление коммуникаций к стойкам фахверка. Узлы 41; 42; 43; 44
2.440-1.5 КМ л.30 Крепление коммуникаций (расположенных вдоль стропильных ферм) к вспомогательным балкам. Узлы 45; 46
2.440-1.5 КМ л.31 Крепление коммуникаций (расположенных вдоль стропильных ферм) к вспомогательным балкам. Узлы 47; 48
2.440-1.5 КМ л.32 Крепление коммуникаций (расположенных вдоль стропильных ферм) к прогонам. Узлы 49; 50
2.440-1.5 КМ л.33 Крепление коммуникаций (расположенных вдоль стропильных ферм) к вспомогательным балкам и распоркам. Узлы 51; 52
2.440-1.5 КМ л.34 Крепление коммуникаций (расположенных вдоль стропильных ферм) к верхним поясам ферм. Узлы 53; 54
2.440-1.5 КМ л.35 Крепление коммуникаций (расположенных вдоль стропильных ферм) к стойкам ферм. Узлы 55; 56
2.440-1.5 КМ л.36 Крепление компенсаторов коммуникаций (расположенных вдоль стропильных ферм) к стойкам подстропильных ферм. Узел 57
2.440-1.5 КМ л.37 Крепление коммуникаций (расположенных поперек стропильных ферм) к поясам ферм. Узлы 58; 59
2.440-1.5 КМ л.38 Крепление коммуникаций (расположенных поперек стропильных ферм) к поясам ферм. Узлы 60; 61; 62
2.440-1.5 КМ л.39 Крепление коммуникаций (расположенных поперек стропильных ферм) к поясам ферм. Узлы 63; 64; 65; 66
2.440-1.5 КМ л.40 Крепление коммуникаций (расположенных поперек стропильных ферм) к опорным стойкам. Узлы 67; 68
2.440-1.5 КМ л.41 Крепление коммуникаций (расположенных поперек стропильных ферм) к опорным стойкам. Узлы 69; 70; 71
2.440-1.5 КМ л.42 Крепление компенсаторов коммуникаций (расположенных вдоль стропильных ферм) к стойкам подстропильных ферм. Узел 72
2.440-1.5 КМ л.43 Крепление коммуникаций (расположенных поперек стропильных ферм) к опорным стойкам. Узлы 73; 74
2.440-1.5 КМ л.44 Крепление коммуникаций (расположенных поперек стропильных ферм) к стойкам подстропильных ферм. Узлы 75; 76
2.440-1.5 КМ л.45 Крепление коммуникаций (проходящих через кровлю) к конструкциям покрытий. Узлы 77; 78; 79
2.440-1.5 КМ л.46 Расчетные данные к узлам креплений коммуникаций 1-5 и 67-76 (схемы №I-III)
2.440-1.5 КМ л.47 Расчетные данные к узлам креплений коммуникаций 1-5 и 67-76 (схемы №IV-V)
Разработан: ЦНИИпроектстальконструкция
Утверждён:30.03.1984 Госстрой России (Russian Federation Gosstroy 36)
Издан: ЦИТП Госстроя СССР (CITP, Gosstroy (USSR) 1984 г. )
Расположен в:Техническая документация Строительство Справочные документы Типовые строительные конструкции, изделия и узлы Общероссийский строительный каталог Строительные конструкции, изделия и узлы зданий и сооружений для всех видов строительства Конструкции, изделия и узлы зданий Несущие конструкции одноэтажных зданий Узлы и детали сопряжения железобетонных и стальных конструкций
Заменяет собой:
Серия 2.440-1Серия 2.440-1Серия 2.440-1Серия 2.440-1Серия 2.440-1Серия 2.440-1Серия 2.440-1Серия 2.440-1Серия 2.440-1Серия 2.440-1Серия 2.440-1Серия 2.440-1Серия 2.440-1Серия 2.440-1Серия 2.440-1Серия 2.440-1Серия 2.440-1Серия 2.440-1Серия 2.440-1Серия 2.440-1Серия 2.440-1Серия 2.440-1Серия 2.440-1Серия 2.440-1Серия 2.440-1Серия 2.440-1Серия 2.440-1Серия 2.440-1Серия 2.440-1Серия 2.440-1Серия 2.440-1Серия 2.440-1Серия 2.440-1Серия 2.440-1Серия 2.440-1Серия 2.440-1Серия 2.440-1Серия 2.440-1Серия 2.440-1Серия 2.440-1Серия 2.440-1Серия 2.440-1Серия 2.440-1Серия 2.440-1Серия 2.440-1Серия 2.440-1Серия 2.440-1Серия 2.440-1Серия 2.440-1Серия 2.440-1Серия 2.440-1Серия 2.440-1Серия 2.440-1

© 2013 Ёшкин Кот :-) Карта сайта