Информационная система
«Ёшкин Кот»

Скачать базу одним архивом
Скачать обновления
История создания базы
Карта сайта

Скачать Серия 1.400-10/76 Выпуск 3. Узлы тормозных конструкций, фахверка и вертикальных связей по колоннам. Чертежи КМ

Дата актуализации: 10.08.2017

Серия 1.400-10/76

Выпуск 3. Узлы тормозных конструкций, фахверка и вертикальных связей по колоннам. Чертежи КМ

Обозначение: Серия 1.400-10/76
Обозначение англ: Series 1.400-10/76
Статус:не действует
Название рус.:Выпуск 3. Узлы тормозных конструкций, фахверка и вертикальных связей по колоннам. Чертежи КМ
Дата добавления в базу:01.09.2013
Дата актуализации:05.05.2017
Дата окончания срока действия:01.07.1984
Оглавление:Пояснительная записка
Общие примечания
I. Схемы с маркировкой узлов вертикальных связей
Маркировка узлов крепления связей по крайним и средним рядам колонн постоянного сечения
Маркировка узлов крепления связей по крайним рядам ступенчатых колонн
Маркировка узлов крепления связей по средним рядам ступенчатых колонн
II. Схемы с маркировкой узлов тормозных устройств подкрановых балок
Маркировка узлов крепления тормозных балок и узлов крепления связевых панелей в уровне верхних поясов подкрановых балок по крайним рядам колонн
Маркировка узлов крепления тормозных ферм и узлов крепления связевых панелей в уровне верхних поясов подкрановых балок по крайним рядам колонн
Маркировка узлов крепления тормозных ферм балок и узлов крепления связевых панелей в уровне верхних поясов подкрановых балок по средним рядам колонн
Маркировка узлов связей по нижним поясам подкрановых балок и вспомогательных ферм
Маркировка узлов проемов и технологических отверстий в тормозных устройствах по крайним и средним рядам колонн
III. Узлы вертикальных связей по стальным колоннам
Вертикальные связи по колоннам. Узлы 1; 2; 3; 4; 5
Вертикальные связи по колоннам. Узлы 6; 7; 8; 9; 10
Вертикальные связи по колоннам. Узлы 11; 12; 13; 14; 15
Вертикальные связи по колоннам. Узлы 16; 17; 18
Вертикальные связи по колоннам. Узлы 19; 20
Вертикальные связи по колоннам. Узлы 21; 22
Вертикальные связи по колоннам. Узлы 23; 24
Вертикальные связи по колоннам. Узлы 25; 26
Вертикальные связи по колоннам. Узлы 27; 28
Вертикальные связи по колоннам. Узлы 29; 30
Вертикальные связи по колоннам. Узлы 31; 32; 33
Вертикальные связи по колоннам. Узел 34
Вертикальные связи по колоннам. Узел 35
Вертикальные связи по колоннам. Узел 36
Вертикальные связи по колоннам. Узлы 37; 38
Вертикальные связи по колоннам. Узлы 39; 40; 41; 42
Вертикальные связи по колоннам. Узлы 43; 44
Вертикальные связи по колоннам. Узлы 45; 46
Вертикальные связи по колоннам. Узлы 47; 48; 49
Вертикальные связи по колоннам. Узел 50
IV. Узлы крепления тормозных устройств неразрезных подкрановых балок к стальным колоннам
Крепление тормозных балок к колоннам крайнего ряда. Узлы 51; 52; 53; 54; 55
Крепление тормозных балок к колоннам крайнего ряда. Узлы 56; 57; 58; 59
Крепление тормозных балок к колоннам среднего ряда. Узлы 60; 61; 62
Крепление тормозных балок к колоннам среднего ряда с проходом в стенке колонны. Узлы 63; 64
Крепление тормозных балок к колоннам крайнего ряда в торце здания и в месте температурного шва. Узлы 65; 66; 67; 68
Крепление тормозных балок к колоннам крайнего ряда с проходом в стенке колонн в торце здания и в месте температурного шва. Узлы 69; 70; 71; 72
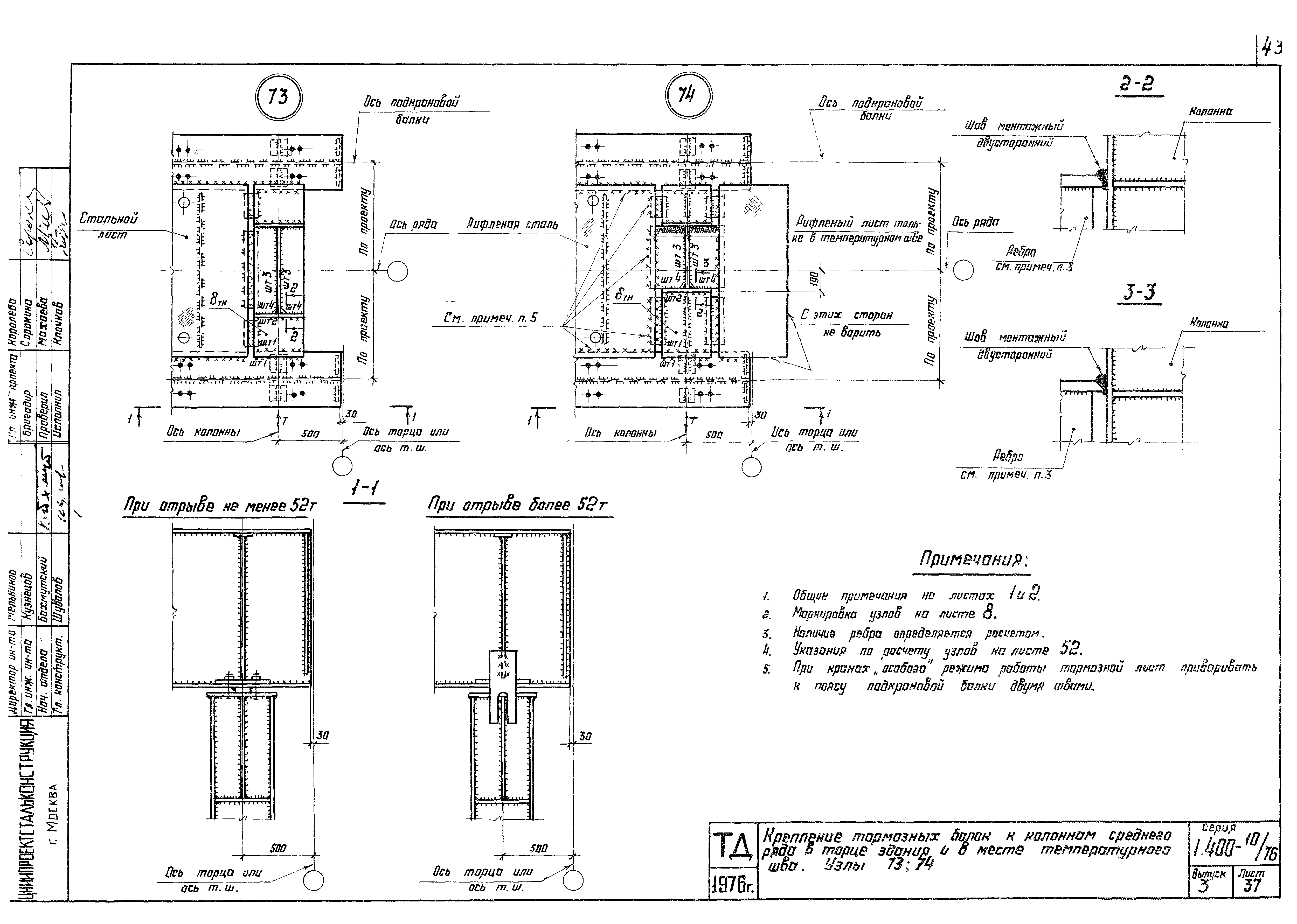
Крепление тормозных балок к колоннам среднего ряда в торце здания и в месте температурного шва. Узлы 73; 74
Крепление тормозных балок к колоннам среднего ряда с проходом в стенке колонны в торце здания и в месте температурного шва. Узлы 75; 76
V. Промежуточные узлы тормозных устройств
Крепление стойки фахверка в уровне нижнего пояса подстропильной фермы. Узел 77
Крепление тормозных устройств к стойкам фахверка и промежуточные узлы. Узлы 78; 79
Крепление тормозных устройств к стойкам фахверка и промежуточные узлы. Узлы 80; 81
Крепление тормозных устройств к стойкам фахверка. Узлы 82; 83
Промежуточные узлы тормозных устройств. Узлы 84; 85; 86; 87
VI Узлы горизонтальных связей
Горизонтальные связи по нижним поясам подкрановых балок и вспомогательная ферма. Узлы 88; 89; 90; 91; 92
Горизонтальные связи по нижним поясам подкрановых балок и вспомогательная ферма. Узлы 93; 94; 95; 96
VII. Узлы проемов в тормозных устройствах
Технологические проемы в тормозных фермах крайнего и среднего рядов. Узлы 97; 98
Выход на подкрановые пути крайнего ряда. Тормозное устройство - балка. Узел 99
Выход на подкрановые пути среднего ряда. Тормозное устройство - балка. Узел 100
Крышка люка
Технологические отверстия в тормозных балках. Узлы 101; 102
Отверстия в тормозном листе для крепления крановых рельсов. Крепление стоек перил. Узлы 103; 104
Расчет крепления неразрезных подкрановых балок к стальным колоннам в горизонтальной плоскости
Расчет крепления разрезных подкрановых балок к стальным колоннам в горизонтальной плоскости
Разработан: ЦНИИпроектстальконструкция
Утверждён:17.03.1977 Госстрой СССР (Государственный комитет Совета Министров СССР по делам строительства) (USSR Gosstroy 21)
Расположен в:Техническая документация Строительство Справочные документы Типовые строительные конструкции, изделия и узлы Общероссийский строительный каталог Строительные конструкции, изделия и узлы зданий и сооружений для всех видов строительства Конструкции, изделия и узлы зданий Несущие конструкции одноэтажных зданий Узлы и детали сопряжения железобетонных и стальных конструкций
Чем заменён:
Серия 1.400-10/76Серия 1.400-10/76Серия 1.400-10/76Серия 1.400-10/76Серия 1.400-10/76Серия 1.400-10/76Серия 1.400-10/76Серия 1.400-10/76Серия 1.400-10/76Серия 1.400-10/76Серия 1.400-10/76Серия 1.400-10/76Серия 1.400-10/76Серия 1.400-10/76Серия 1.400-10/76Серия 1.400-10/76Серия 1.400-10/76Серия 1.400-10/76Серия 1.400-10/76Серия 1.400-10/76Серия 1.400-10/76Серия 1.400-10/76Серия 1.400-10/76Серия 1.400-10/76Серия 1.400-10/76Серия 1.400-10/76Серия 1.400-10/76Серия 1.400-10/76Серия 1.400-10/76Серия 1.400-10/76Серия 1.400-10/76Серия 1.400-10/76Серия 1.400-10/76Серия 1.400-10/76Серия 1.400-10/76Серия 1.400-10/76Серия 1.400-10/76Серия 1.400-10/76Серия 1.400-10/76Серия 1.400-10/76Серия 1.400-10/76Серия 1.400-10/76Серия 1.400-10/76Серия 1.400-10/76Серия 1.400-10/76Серия 1.400-10/76Серия 1.400-10/76Серия 1.400-10/76Серия 1.400-10/76Серия 1.400-10/76Серия 1.400-10/76Серия 1.400-10/76Серия 1.400-10/76Серия 1.400-10/76Серия 1.400-10/76Серия 1.400-10/76Серия 1.400-10/76Серия 1.400-10/76Серия 1.400-10/76

© 2013 Ёшкин Кот :-) Карта сайта