Информационная система
«Ёшкин Кот»

Скачать базу одним архивом
Скачать обновления
История создания базы
Карта сайта

Скачать Серия 2.440-1 Выпуск 4. Узлы тормозных конструкций и вертикальных связей по колоннам

Дата актуализации: 10.08.2017

Серия 2.440-1

Выпуск 4. Узлы тормозных конструкций и вертикальных связей по колоннам

Обозначение: Серия 2.440-1
Обозначение англ: Series 2.440-1
Статус:действует
Название рус.:Выпуск 4. Узлы тормозных конструкций и вертикальных связей по колоннам
Дата добавления в базу:01.09.2013
Дата актуализации:05.05.2017
Дата введения:01.07.1984
Оглавление:2.440-1.4 КМ л.1.1; 1.2 Пояснительная записка
2.440-1.4 КМ л.2 Общие указания
2.440-1.4 КМ л.3 Маркировка узлов крепления связей по крайним рядам колонн постоянного сечения
2.440-1.4 КМ л.4 Маркировка узлов крепления связей по средним рядам колонн постоянного сечения
2.440-1.4 КМ л.5 Маркировка узлов крепления связей по крайним рядам ступенчатых колонн
2.440-1.4 КМ л.6 Маркировка узлов крепления связей по средним рядам ступенчатых колонн
2.440-1.4 КМ л.7 Маркировка узлов крепления тормозных балок к колоннам крайнего ряда
2.440-1.4 КМ л.8 Маркировка узлов крепления тормозных ферм к колоннам крайнего ряда
2.440-1.4 КМ л.9 Маркировка узлов крепления тормозных ферм и балок к колоннам среднего ряда
2.440-1.4 КМ л.10 Маркировка узлов связей по нижним поясам подкрановых балок и вспомогательных ферм
2.440-1.4 КМ л.11 Маркировка узлов проемов и технологических отверстий в тормозных конструкциях
2.440-1.4 КМ л.12 Вертикальные связи по колоннам. Узлы 1-4
2.440-1.4 КМ л.13 Вертикальные связи по колоннам. Узлы 5-10
2.440-1.4 КМ л.14 Вертикальные связи по колоннам. Узлы 11-16
2.440-1.4 КМ л.15 Вертикальные связи по колоннам. Узлы 18-24
2.440-1.4 КМ л.16 Вертикальные связи по колоннам. Узлы 25-28
2.440-1.4 КМ л.17 Вертикальные связи по колоннам. Узлы 29-32
2.440-1.4 КМ л.18 Вертикальные связи по колоннам. Узлы 33-35
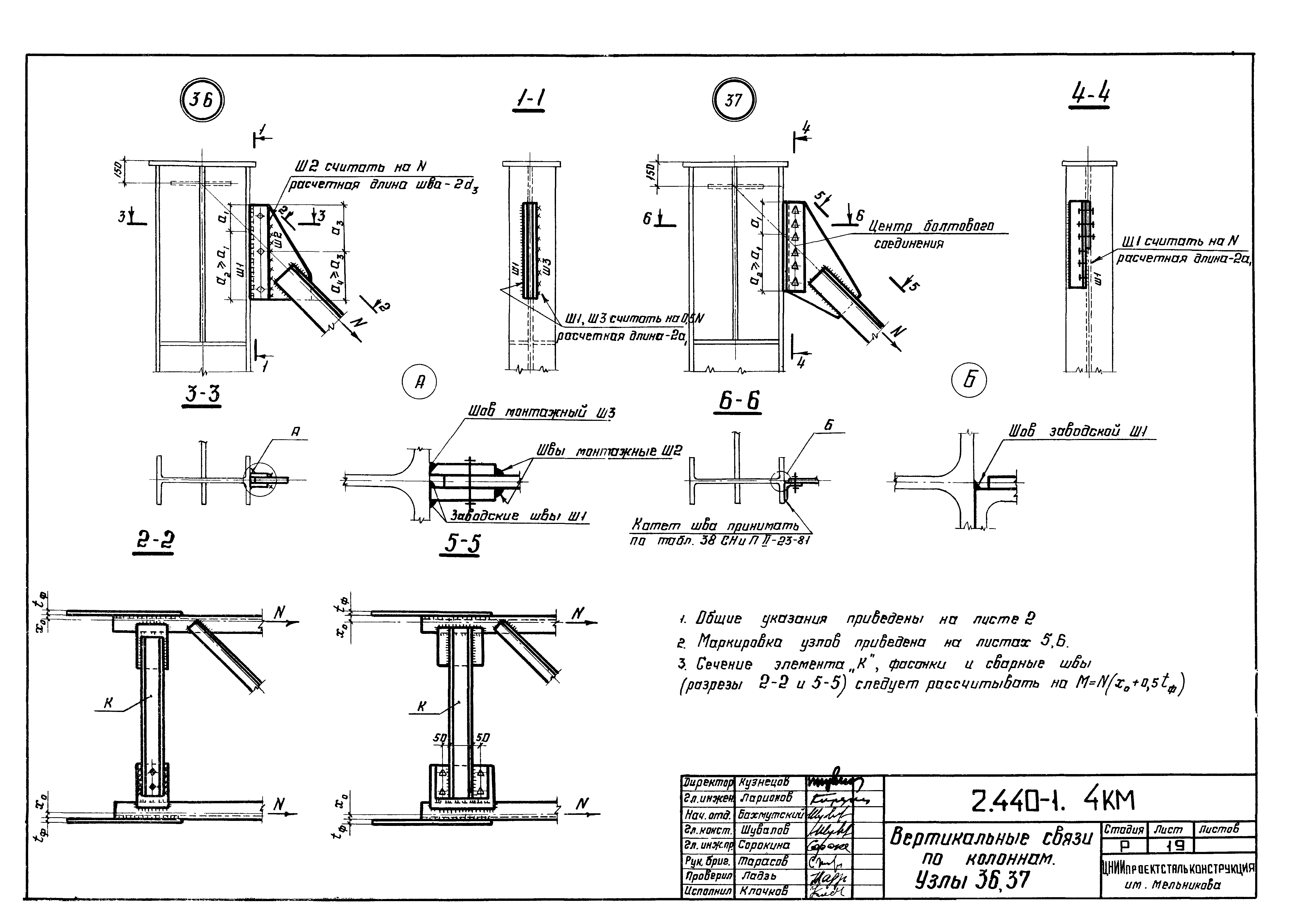
2.440-1.4 КМ л.19 Вертикальные связи по колоннам. Узлы 36; 37
2.440-1.4 КМ л.20 Вертикальные связи по колоннам. Узлы 38-41
2.440-1.4 КМ л.21 Вертикальные связи по колоннам. Узлы 42; 43
2.440-1.4 КМ л.22 Вертикальные связи по колоннам. Узлы 44; 45
2.440-1.4 КМ л.23 Вертикальные связи по колоннам. Узлы 46; 47
2.440-1.4 КМ л.24 Вертикальные связи по колоннам. Узлы 48; 49
2.440-1.4 КМ л.25 Вертикальные связи по колоннам. Узлы 50; 51
2.440-1.4 КМ л.26 Вертикальные связи по колоннам. Узлы 52; 53
2.440-1.4 КМ л.27 Крепление тормозных конструкций к колоннам крайнего ряда. Узлы 54-58
2.440-1.4 КМ л.28 Крепление тормозных конструкций к колоннам среднего ряда. Узлы 59-61
2.440-1.4 КМ л.29 Крепление тормозных балок к колоннам крайнего и среднего ряда с проходом в теле колонны. Узлы 62-64
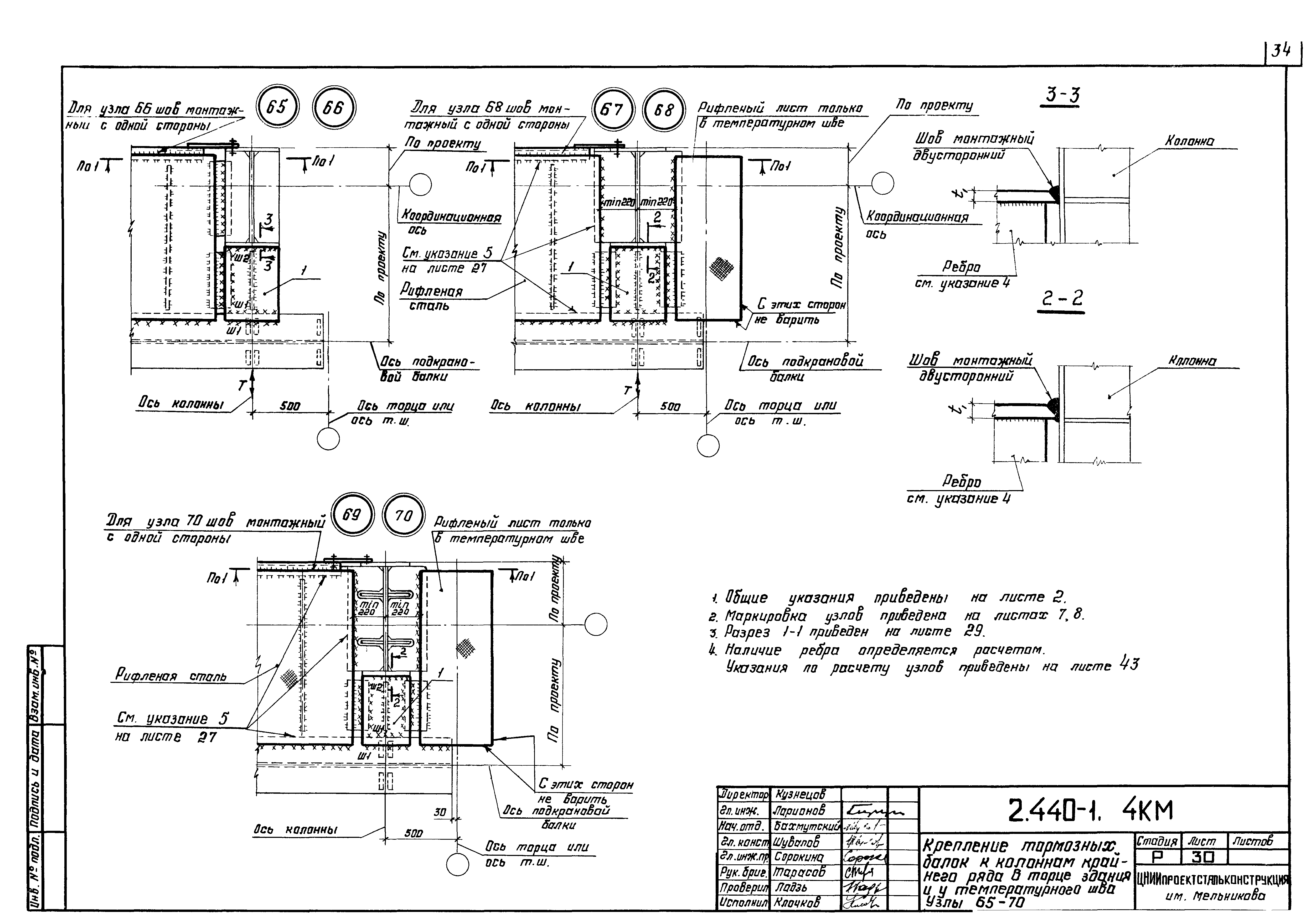
2.440-1.4 КМ л.30 Крепление тормозных балок к колоннам крайнего ряда в торце здания и у температурного шва. Узлы 65-70
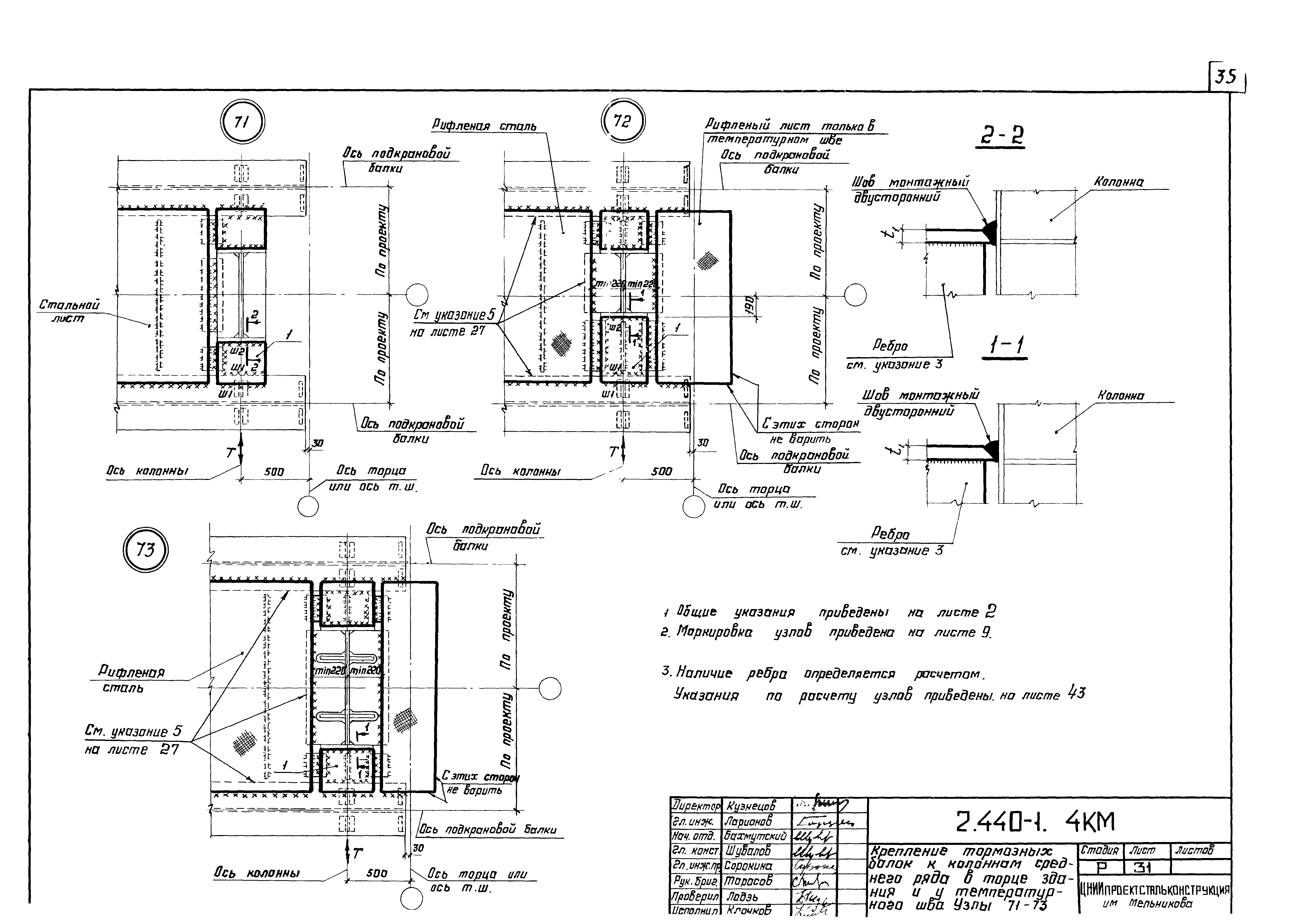
2.440-1.4 КМ л.31 Крепление тормозных балок к колоннам среднего ряда в торце здания и у температурного шва. Узлы 71-73
2.440-1.4 КМ л.32 Крепление тормозных конструкций к стойкам фахверка и промежуточные узлы. Узлы 74; 75
2.440-1.4 КМ л.33 Крепление тормозных конструкций к стойкам фахверка и промежуточные узлы. Узлы 76; 77
2.440-1.4 КМ л.34 Крепление тормозных конструкций к стойкам фахверка. Узлы 78; 79
2.440-1.4 КМ л.35 Промежуточные узлы тормозных конструкций и технологические отверстия в тормозной балке. Узлы 80-83
2.440-1.4 КМ л.36 Узлы горизонтальных связей по нижним поясам подкрановых балок и вспомогательных ферм. Узлы 84-88
2.440-1.4 КМ л.37 Узлы горизонтальных связей по нижним поясам подкрановых балок и вспомогательных ферм. Узлы 89-92
2.440-1.4 КМ л.38 Технологические проемы в тормозных фермах крайнего и среднего рядов. Узлы 93, 94
2.440-1.4 КМ л.39 Выход на подкрановые пути крайнего ряда колонн. Тормозная конструкция - балка. Узел 95
2.440-1.4 КМ л.40 Выход на подкрановые пути среднего ряда колонн. Тормозная конструкция - балка. Узел 96
2.440-1.4 КМ л.41 Крышка люка
2.440-1.4 КМ л.42 Отверстия в тормозном листе для крепления рельсов. Крепления стоек пери2.440-1.4 КМ л. Узлы 97, 98
2.440-1.4 КМ л.43 Рекомендации по расчету крепления неразрезных подкрановых балок к стальным колоннам в горизонтальной плоскости
Разработан: ЦНИИпроектстальконструкция
Утверждён:22.12.1983 Госстрой СССР (Государственный комитет Совета Министров СССР по делам строительства) (USSR Gosstroy 326)
Издан: ЦИТП Госстроя СССР (CITP, Gosstroy (USSR) 1984 г. )
Расположен в:Техническая документация Строительство Справочные документы Типовые строительные конструкции, изделия и узлы Общероссийский строительный каталог Строительные конструкции, изделия и узлы зданий и сооружений для всех видов строительства Конструкции, изделия и узлы зданий Несущие конструкции одноэтажных зданий Узлы и детали сопряжения железобетонных и стальных конструкций
Заменяет собой:
Серия 2.440-1Серия 2.440-1Серия 2.440-1Серия 2.440-1Серия 2.440-1Серия 2.440-1Серия 2.440-1Серия 2.440-1Серия 2.440-1Серия 2.440-1Серия 2.440-1Серия 2.440-1Серия 2.440-1Серия 2.440-1Серия 2.440-1Серия 2.440-1Серия 2.440-1Серия 2.440-1Серия 2.440-1Серия 2.440-1Серия 2.440-1Серия 2.440-1Серия 2.440-1Серия 2.440-1Серия 2.440-1Серия 2.440-1Серия 2.440-1Серия 2.440-1Серия 2.440-1Серия 2.440-1Серия 2.440-1Серия 2.440-1Серия 2.440-1Серия 2.440-1Серия 2.440-1Серия 2.440-1Серия 2.440-1Серия 2.440-1Серия 2.440-1Серия 2.440-1Серия 2.440-1Серия 2.440-1Серия 2.440-1Серия 2.440-1Серия 2.440-1Серия 2.440-1Серия 2.440-1Серия 2.440-1Серия 2.440-1

© 2013 Ёшкин Кот :-) Карта сайта