Информационная система
«Ёшкин Кот»

Скачать базу одним архивом
Скачать обновления
История создания базы
Карта сайта

Скачать Серия 5.905-28.04 Выпуск 1. Дымовые и вентиляционные каналы. Рабочие чертежи

Дата актуализации: 10.08.2017

Серия 5.905-28.04

Выпуск 1. Дымовые и вентиляционные каналы. Рабочие чертежи

Обозначение: Серия 5.905-28.04
Обозначение англ: Series 5.905-28.04
Статус:заменен
Название рус.:Выпуск 1. Дымовые и вентиляционные каналы. Рабочие чертежи
Дата добавления в базу:01.09.2013
Дата актуализации:05.05.2017
Дата введения:18.11.2007
Оглавление:5.905-28.04.01-ПЗ Пояснительная записка
5.905-28.04.1-1 Одноэтажное здание. Дымовой и вентиляционный каналы с выходом через перекрытие
5.905-28.04.1-2 Одноэтажное здание. Вентиляционный канал с выходом через перекрытие
5.905-28.04.1-3 Одноэтажное здание. Дымовой канал с выходом через перекрытие
5.905-28.04.1-4 Одноэтажное здание с цокольным (подвальным) этажом. Дымовой и вентиляционный каналы с выходом через перекрытие
5.905-28.04.1-5 Одноэтажное здание с цокольным (подвальным) этажом. Вентиляционный канал с выходом через перекрытие
5.905-28.04.1-6 Одноэтажное здание с цокольным (подвальным) этажом. Дымовой канал с выходом через перекрытие
5.905-28.04.1-7 Двухэтажное здание. Дымовой и вентиляционный каналы с выходом через перекрытие
5.905-28.04.1-8 Двухэтажное здание. Вентиляционный канал с выходом через перекрытие
5.905-28.04.1-9 Двухэтажное здание. Дымовой канал с выходом через перекрытие
5.905-28.04.1-10 Двухэтажное здание с цокольным (подвальным) этажом. Дымовой и вентиляционный каналы с выходом через перекрытие
5.905-28.04.1-11 Двухэтажное здание с цокольным (подвальным) этажом. Вентиляционный канал с выходом через перекрытие
5.905-28.04.1-12 Двухэтажное здание с цокольным (подвальным) этажом. Дымовой канал с выходом через перекрытие
5.905-28.04.1-13 Одноэтажное здание. Дымовой и вентиляционный каналы с выходом через стену
5.905-28.04.1-14 Одноэтажное здание. Вентиляционный канал с выходом через стену
5.905-28.04.1-15 Одноэтажное здание. Дымовой канал с выходом через стену
5.905-28.04.1-16 Двухэтажное здание. Дымовой и вентиляционный каналы с выходом через стену
5.905-28.04.1-17 Двухэтажное здание. Вентиляционный канал с выходом через стену
5.905-28.04.1-18 Двухэтажное здание. Дымовой канал снаружи кирпичного здания
5.905-28.04.1-19 Одноэтажное здание. Дымовой и вентиляционный каналы с выходом через стену из несгораемых материалов
5.905-28.04.1-20 Одноэтажное здание. Вентиляционный канал с выходом через стену из сгораемых материалов
5.905-28.04.1-21 Одноэтажное здание. Дымовой канал с выходом через стену из сгораемых материалов
5.905-28.04.1-22 Узел 1
5.905-28.04.1-23 Узел 2
5.905-28.04.1-24 Узел 3
5.905-28.04.1-25 Узел 4
5.905-28.04.1-26 Узел 5
5.905-28.04.1-27 Узел 6
5.905-28.04.1-28 Узел 7
5.905-28.04.1-29 Узел 8
5.905-28.04.1-30 Узел 9
5.905-28.04.1-31 Узел 10
5.905-28.04.1-32 Узел 11
5.905-28.04.1-33 Узел 12
5.905-28.04.1-34 Узел 13
5.905-28.04.1-35 Узел 14
5.905-28.04.1-36 Узел 15
5.905-28.04.1-37 Узел 16
5.905-28.04.1-38 Узел 17
5.905-28.04.1-39 Высота оголовка каналов над кровлей. Узел стыковки асбестоцементных труб. Узел 18
5.905-28.04.1-40 Узел 19
5.905-28.04.1-41 Узел 20
5.905-28.04.1-42 Узел 21
5.905-28.04.1-43 Узел 22
5.905-28.04.1-44 Узел 23
5.905-28.04.1-45 Узел прохода через кровлю вентиляционного и дымового каналов
5.905-28.04.1-46 Узел прохода через кровлю вентиляционного и дымового каналов
5.905-28.04.1-47 Узел прохода через кровлю вентиляционного или дымового каналов
5.905-28.04.1-48СБ Решетка вентиляционная. Сборочный чертеж
5.905-28.04.1-48 Решетка вентиляционная
5.905-28.04.1-48.01 Цилиндр
5.905-28.04.1-49СБ Песочница. Сборочный чертеж
5.905-28.04.1-49 Песочница
5.905-28.04.1-49.01 Корпус
5.905-28.04.1-49.02 Дно
5.905-28.04.1-49.03 Труба
5.905-28.04.1-49.04СБ Опорная конструкция. Сборочный чертеж
5.905-28.04.1-49.04 Опорная конструкция
5.905-28.04.1-50СБ Тройник. Сборочный чертеж
5.905-28.04.1-50 Тройник
5.905-28.04.1-50.01 Труба
5.905-28.04.1-50.02 Труба
5.905-28.04.1-51СБ Заглушка. Сборочный чертеж
5.905-28.04.1-51 Заглушка
5.905-28.04.1-51.01 Цилиндр
5.905-28.04.1-51.02 Рукоятка
5.905-28.04.1-52СБ Хомут на асбестоцементные трубы. Сборочный чертеж
5.905-28.04.1-52 Хомут на асбестоцементные трубы
5.905-28.04.1-52.01 Полухомут
5.905-28.04.1-53СБ Изолятор для дымовой трубы. Сборочный чертеж
5.905-28.04.1-53 Изолятор для дымовой трубы
5.905-28.04.1-54СБ Фартук для двух труб. Сборочный чертеж
5.905-28.04.1-54 Фартук для двух труб
5.905-28.04.1-54.01 Ограждающий лист
5.905-28.04.1-54.02 Гильза
5.905-28.04.1-55 Футляр
5.905-28.04.1-56 Опора
5.905-28.04.1-57СБ Опорная конструкция. Сборочный чертеж
5.905-28.04.1-57 Опорная конструкция
5.905-28.04.1-57.01 Швеллер
5.905-28.04.1-57.02 Уголок
5.905-28.04.1-57.03 Полухомут
5.905-28.04.1-58СБ опорная конструкция. Сборочный чертеж
5.905-28.04.1-58 опорная конструкция
5.905-28.04.1-58.01 Швеллер
5.905-28.04.1-59СБ Гильза. Сборочный чертеж
5.905-28.04.1-59 Гильза
5.905-28.04.1-59.01 Дно
5.905-28.04.1-59.02 Труба
5.905-28.04.1-60СБ Песочница. Сборочный чертеж
5.905-28.04.1-60 Песочница
5.905-28.04.1-60.01 Корпус
5.905-28.04.1-60.02 Дно
5.905-28.04.1-60.03 Опорная конструкция
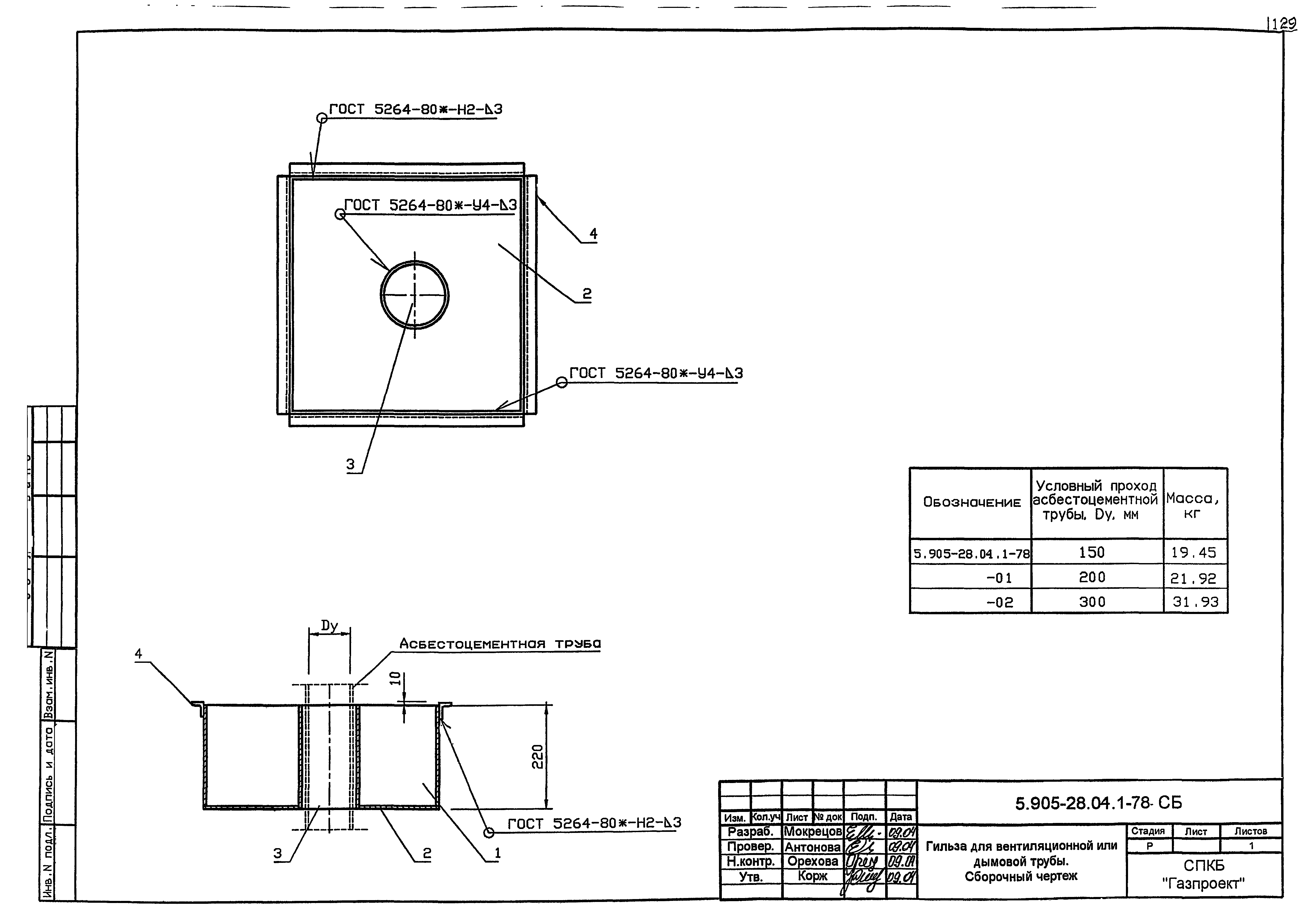
5.905-28.04.1-61СБ Гильза для вентиляционной трубы. Сборочный чертеж
5.905-28.04.1-61 Гильза для вентиляционной трубы
5.905-28.04.1-61.01 Корпус
5.905-28.04.1-61.02 Дно
5.905-28.04.1-61.03СБ Опорная конструкция. Сборочный чертеж
5.905-28.04.1-61.03 Опорная конструкция
5.905-28.04.1-62 Фартук для одной трубы
5.905-28.04.1-63 Футляр
5.905-28.04.1-64СБ Песочница для дымовой трубы. Сборочный чертеж
5.905-28.04.1-64 Песочница для дымовой трубы
5.905-28.04.1-64.01 Корпус
5.905-28.04.1-64.02 Дно
5.905-28.04.1-64.03СБ Опорная конструкция. Сборочный чертеж
5.905-28.04.1-64.03 Опорная конструкция
5.905-28.04.1-65СБ Гильза для вентиляционной трубы. Сборочный чертеж
5.905-28.04.1-65 Гильза для вентиляционной трубы
5.905-28.04.1-65.01 Корпус
5.905-28.04.1-65.02 Опорная конструкция
5.905-28.04.1-66СБ Гильза для вентиляционной трубы. Сборочный чертеж
5.905-28.04.1-66 Гильза для вентиляционной трубы
5.905-28.04.1-67СБ Гильза для дымовой трубы. Сборочный чертеж
5.905-28.04.1-67 Гильза для дымовой трубы
5.905-28.04.1-68СБ Гильза для дымовой трубы. Сборочный чертеж
5.905-28.04.1-68 Гильза для дымовой трубы
5.905-28.04.1-69 Колено
5.905-28.04.1-70 Патрубок
5.905-28.04.1-71СБ Кронштейн для вентиляционного или дымового каналов. Сборочный чертеж
5.905-28.04.1-71 Кронштейн для вентиляционного или дымового каналов
5.905-28.04.1-71.01 Консоль
5.905-28.04.1-72 Гильза
5.905-28.04.1-73СБ Кронштейн. Сборочный чертеж
5.905-28.04.1-73 Кронштейн
5.905-28.04.1-73.01 Консоль
5.905-28.04.1-74СБ Кронштейн для вентиляционного и дымового каналов. Сборочный чертеж
5.905-28.04.1-74 Кронштейн для вентиляционного и дымового каналов
5.905-28.04.1-74.01 Консоль
5.905-28.04.1-75СБ Кронштейн для вентиляционного и дымового каналов. Сборочный чертеж
5.905-28.04.1-75 Кронштейн для вентиляционного и дымового каналов
5.905-28.04.1-75.01СБ Консоль. Сборочный чертеж
5.905-28.04.1-75.01 Консоль
5.905-28.04.1-75.01.01 Опора
5.905-28.04.1-75.01.02 Опора
5.905-28.04.1-76СБ Тройник наружный. Сборочный чертеж
5.905-28.04.1-76 Тройник наружный
5.905-28.04.1-76.01 Труба
5.905-28.04.1-77СБ Гильза. Сборочный чертеж
5.905-28.04.1-77 Гильза
5.905-28.04.1-77.01 Труба
5.905-28.04.1-78СБ Гильза для вентиляционной и дымовой трубы. Сборочный чертеж
5.905-28.04.1-78 Гильза для вентиляционной и дымовой трубы
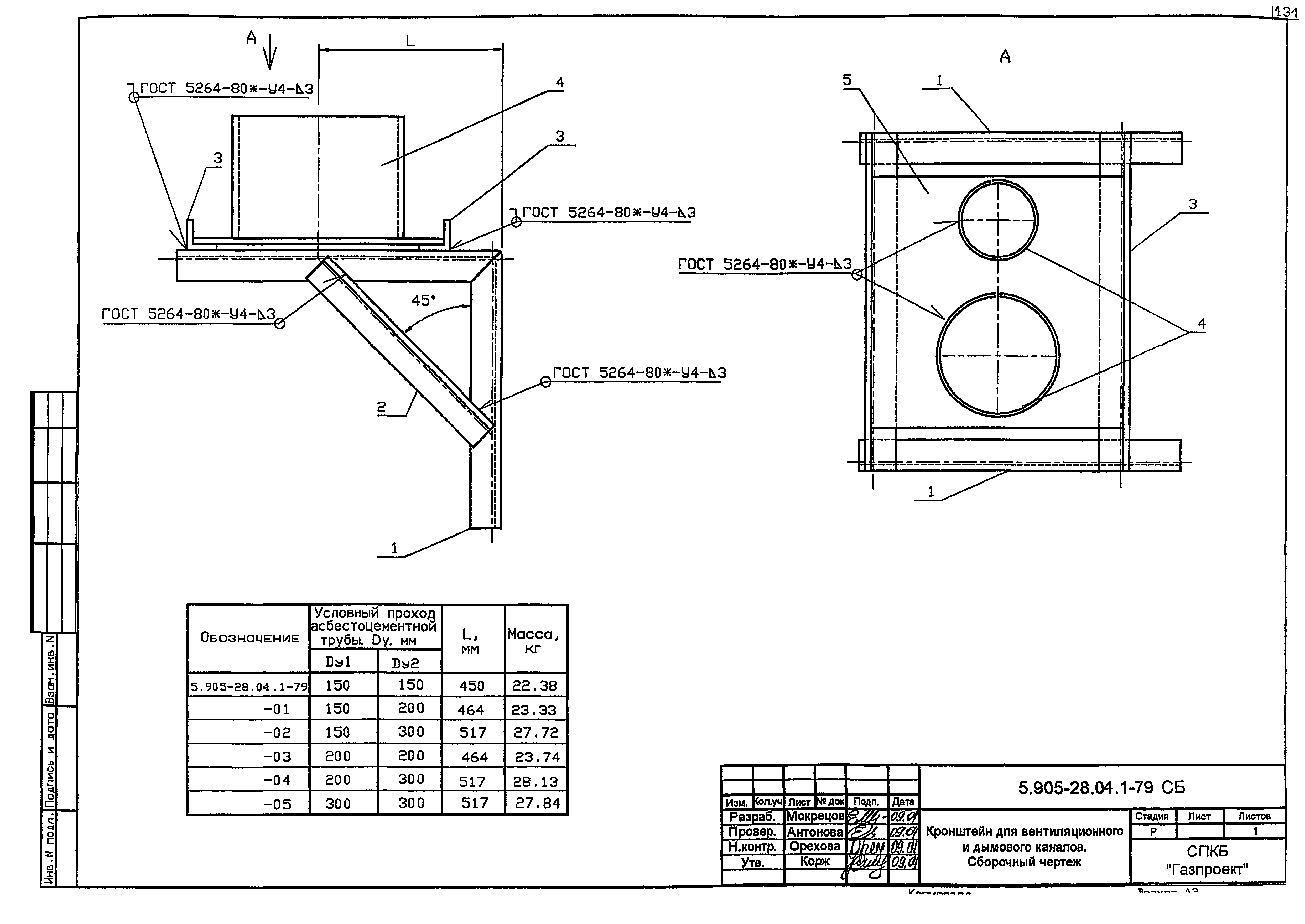
5.905-28.04.1-79СБ Кронштейн для вентиляционного и дымового каналов. Сборочный чертеж
5.905-28.04.1-79 Кронштейн для вентиляционного и дымового каналов
5.905-28.04.1-79.01 Консоль
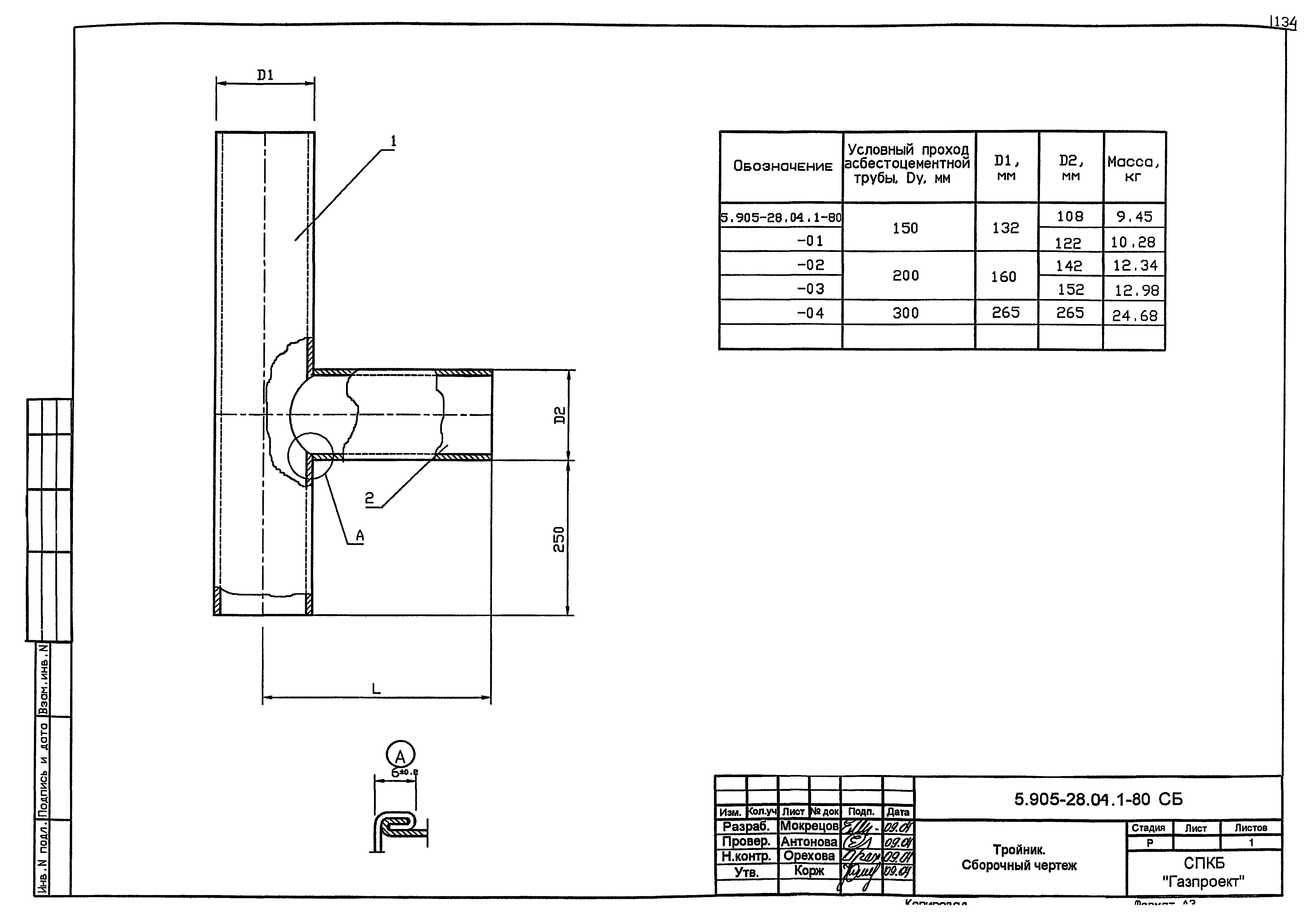
5.905-28.04.1-80СБ Тройник. Сборочный чертеж
5.905-28.04.1-80 Тройник
5.905-28.04.1-80.01 Труба
5.905-28.04.1-81 Патрубок
5.905-28.04.1-82СБ Кронштейн. Сборочный чертеж
5.905-28.04.1-82 Кронштейн
5.905-28.04.1-82.01СБ Консоль. Сборочный чертеж
5.905-28.04.1-82.01 Консоль
5.905-28.04.1-82.01.01 Опора
5.905-28.04.1-83СБ Изолятор. Сборочный чертеж
5.905-28.04.1-83 Изолятор
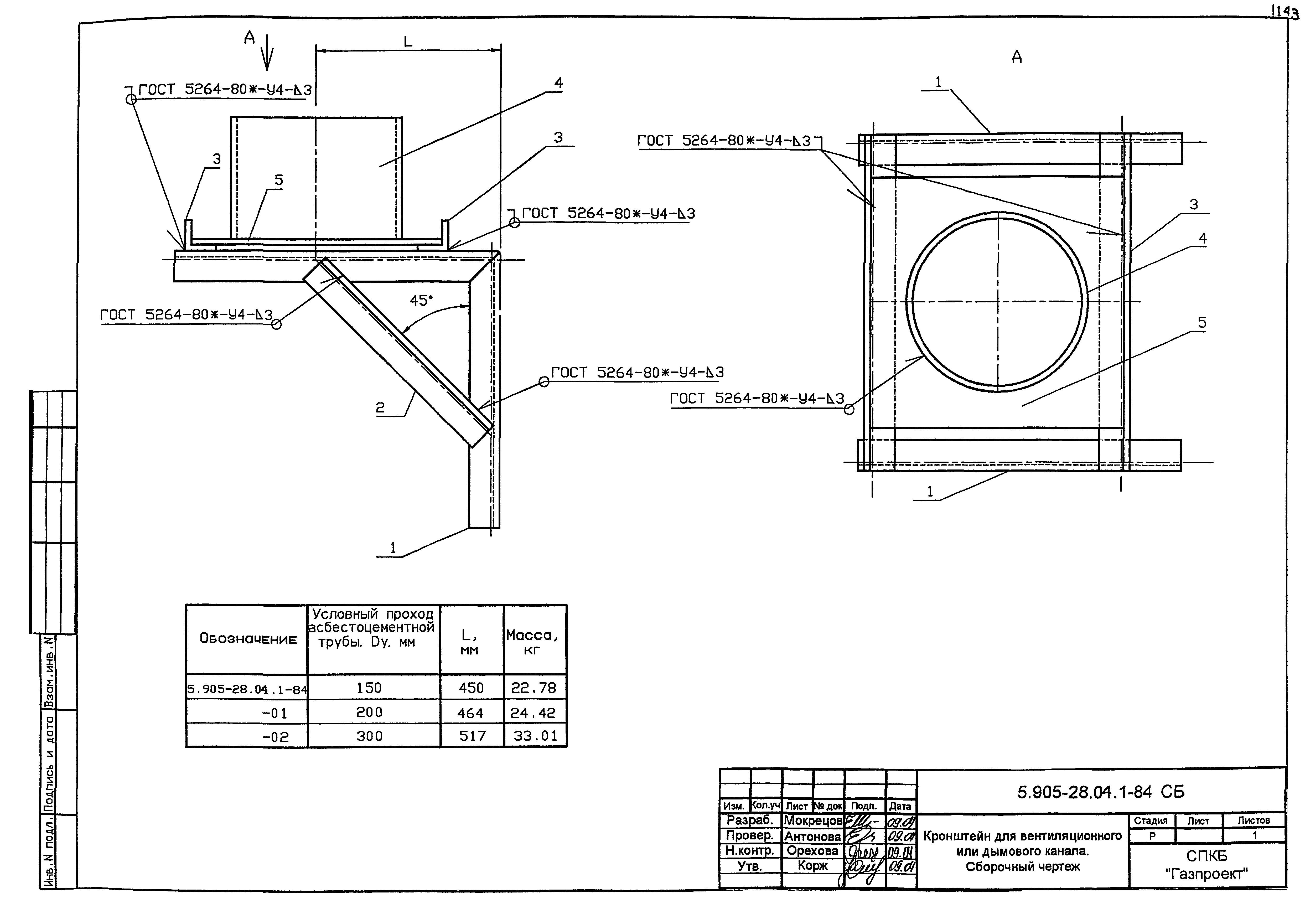
5.905-28.04.1-84СБ Кронштейн для вентиляционного и дымового каналов. Сборочный чертеж
5.905-28.04.1-84 Кронштейн для вентиляционного и дымового каналов
5.905-28.04.1-85СБ Кронштейн. Сборочный чертеж
5.905-28.04.1-85 Кронштейн
5.905-28.04.1-85.01 Консоль
Разработан: ОАО СПКБ Газпроект -БТЦ
Утверждён:07.12.2004 АО Росгазификация (Rosgazifikatsiya AO 82)
Расположен в:Техническая документация Экология СТРОИТЕЛЬНЫЕ МАТЕРИАЛЫ И СТРОИТЕЛЬСТВО Установки в зданиях Вентиляционные системы и системы кондиционирования воздуха Строительство Справочные документы Типовые строительные конструкции, изделия и узлы Общероссийский строительный каталог Строительные конструкции, изделия и узлы зданий и сооружений для всех видов строительства Инженерное оборудование Инженерное оборудование; изделия и узлы инженерного оборудования зданий и сооружений Установки газоснабжения
Заменяет собой:
Чем заменён:
Серия 5.905-28.04Серия 5.905-28.04Серия 5.905-28.04Серия 5.905-28.04Серия 5.905-28.04Серия 5.905-28.04Серия 5.905-28.04Серия 5.905-28.04Серия 5.905-28.04Серия 5.905-28.04Серия 5.905-28.04Серия 5.905-28.04Серия 5.905-28.04Серия 5.905-28.04Серия 5.905-28.04Серия 5.905-28.04Серия 5.905-28.04Серия 5.905-28.04Серия 5.905-28.04Серия 5.905-28.04Серия 5.905-28.04Серия 5.905-28.04Серия 5.905-28.04Серия 5.905-28.04Серия 5.905-28.04Серия 5.905-28.04Серия 5.905-28.04Серия 5.905-28.04Серия 5.905-28.04Серия 5.905-28.04Серия 5.905-28.04Серия 5.905-28.04Серия 5.905-28.04Серия 5.905-28.04Серия 5.905-28.04Серия 5.905-28.04Серия 5.905-28.04Серия 5.905-28.04Серия 5.905-28.04Серия 5.905-28.04Серия 5.905-28.04Серия 5.905-28.04Серия 5.905-28.04Серия 5.905-28.04Серия 5.905-28.04Серия 5.905-28.04Серия 5.905-28.04Серия 5.905-28.04Серия 5.905-28.04Серия 5.905-28.04Серия 5.905-28.04Серия 5.905-28.04Серия 5.905-28.04Серия 5.905-28.04Серия 5.905-28.04Серия 5.905-28.04Серия 5.905-28.04Серия 5.905-28.04Серия 5.905-28.04Серия 5.905-28.04Серия 5.905-28.04Серия 5.905-28.04Серия 5.905-28.04Серия 5.905-28.04Серия 5.905-28.04Серия 5.905-28.04Серия 5.905-28.04Серия 5.905-28.04Серия 5.905-28.04Серия 5.905-28.04Серия 5.905-28.04Серия 5.905-28.04Серия 5.905-28.04Серия 5.905-28.04Серия 5.905-28.04Серия 5.905-28.04Серия 5.905-28.04Серия 5.905-28.04Серия 5.905-28.04Серия 5.905-28.04Серия 5.905-28.04Серия 5.905-28.04Серия 5.905-28.04Серия 5.905-28.04Серия 5.905-28.04Серия 5.905-28.04Серия 5.905-28.04Серия 5.905-28.04Серия 5.905-28.04Серия 5.905-28.04Серия 5.905-28.04Серия 5.905-28.04Серия 5.905-28.04Серия 5.905-28.04Серия 5.905-28.04Серия 5.905-28.04Серия 5.905-28.04Серия 5.905-28.04Серия 5.905-28.04Серия 5.905-28.04Серия 5.905-28.04Серия 5.905-28.04Серия 5.905-28.04Серия 5.905-28.04Серия 5.905-28.04Серия 5.905-28.04Серия 5.905-28.04Серия 5.905-28.04Серия 5.905-28.04Серия 5.905-28.04Серия 5.905-28.04Серия 5.905-28.04Серия 5.905-28.04Серия 5.905-28.04Серия 5.905-28.04Серия 5.905-28.04Серия 5.905-28.04Серия 5.905-28.04Серия 5.905-28.04Серия 5.905-28.04Серия 5.905-28.04Серия 5.905-28.04Серия 5.905-28.04Серия 5.905-28.04Серия 5.905-28.04Серия 5.905-28.04Серия 5.905-28.04Серия 5.905-28.04Серия 5.905-28.04Серия 5.905-28.04Серия 5.905-28.04Серия 5.905-28.04Серия 5.905-28.04Серия 5.905-28.04Серия 5.905-28.04Серия 5.905-28.04Серия 5.905-28.04Серия 5.905-28.04Серия 5.905-28.04Серия 5.905-28.04Серия 5.905-28.04Серия 5.905-28.04Серия 5.905-28.04Серия 5.905-28.04Серия 5.905-28.04Серия 5.905-28.04Серия 5.905-28.04Серия 5.905-28.04

© 2013 Ёшкин Кот :-) Карта сайта