Информационная система
«Ёшкин Кот»

Скачать базу одним архивом
Скачать обновления
История создания базы
Карта сайта

Скачать Серия 5.905-28.01 Выпуск 1. Дымовые и вентиляционные каналы. Рабочие чертежи

Дата актуализации: 10.08.2017

Серия 5.905-28.01

Выпуск 1. Дымовые и вентиляционные каналы. Рабочие чертежи

Обозначение: Серия 5.905-28.01
Обозначение англ: Series 5.905-28.01
Статус:заменен
Название рус.:Выпуск 1. Дымовые и вентиляционные каналы. Рабочие чертежи
Дата добавления в базу:01.09.2013
Дата актуализации:05.05.2017
Область применения:Чертежи приме6няются при проектировании, строительстве и эксплуатации дымовых и вентиляционных каналов газифицируемых помещений, зданий и сооружений (жилых домов, коммунально-бытовых, общественных и промышленных объектов при установке бытовых теплогенераторов) в районах сейсмичностью не более 9 баллов и расчетной температурой наружного воздуха не ниже минус 40 градусов С.
Оглавление:5.905-28.01.1-ПЗ Пояснительная записка
5.905-28.01.1-1 Одноэтажное здание. Дымовой и вентиляционный каналы с выходом через перекрытие
5.905-28.01.1-2 Одноэтажное здание. Вентиляционный канал с выходом через перекрытие
5.905-28.01.1-3 Одноэтажное здание. Дымовой канал с выходом через перекрытие
5.905-28.01.1-4 Одноэтажное здание с цокольным (подвальным) этажом. Дымовой и вентиляционный каналы с выходом через перекрытие
5.905-28.01.1-5 Одноэтажное здание с цокольным (подвальным) этажом. Вентиляционный канал с выходом через перекрытие
5.905-28.01.1-6 Одноэтажное здание с цокольным (подвальным) этажом. Дымовой канал с выходом через перекрытие
5.905-28.01.1-7 Двухэтажное здание. Дымовой и вентиляционный каналы с выходом через перекрытие
5.905-28.01.1-8 Двухэтажное здание. Вентиляционньй канал с выходом через перекрытие
5.905-28.01.1-9 Двухэтажное здание. Дымовой канал с выходом через перекрытие
5.905-28.01.1-10 Двухэтажное здание с цокольным (подвальным) этажом. Дымовой и вентиляционный канал с выходом через перекрытие
5.905-28.01.1-11 Двухэтажное здание с цокольным (подвальным) этажом. Вентиляционный канал с выходом через перекрытие
5.905-28.01.1-12 Двухэтажное здание с цокольным (подвальным) этажом. Дымовой канал с выходом через перекрытие
5.905-28.01.1-13 Одноэтажное здание. Дымовой и вентиляционный каналы с выходом через стену
5.905-28.01.1-14 Одноэтажное здание. Вентиляционный канал с выходом через стену
5.905-28.01.1-15 Одноэтажное здание. Дымовой канал с выходом через стену
5.905-28.01.1-16 Двухэтажное здание. Дымовой и вентиляционный каналы с выходом через стену
5.905-28.01.1-17 Двухэтажное здание. Вентиляционный канал с выходом через стену
5.905-28.01.1-18 Двухэтажное здание. Дымовой канал снаружи кирпичного здания
5.905-28.01.1-19 Одноэтажное здание. Дымовой и вентиляционный каналы с выходом через стему из сгораемых материалов
5.905-28.01.1-20 Одноэтажное здание. Вентиляционный канал с выходом через стену из сгораемых материалов
5.905-28.01.1-21 Одноэтажное здание. Дымовой канал с выходом через стену из сгораемьх материалов
5.905-28.01.1-22 Узел 1
5.905-28.01.1-23 Узел 2
5.905-28.01.1-24 Узел 3
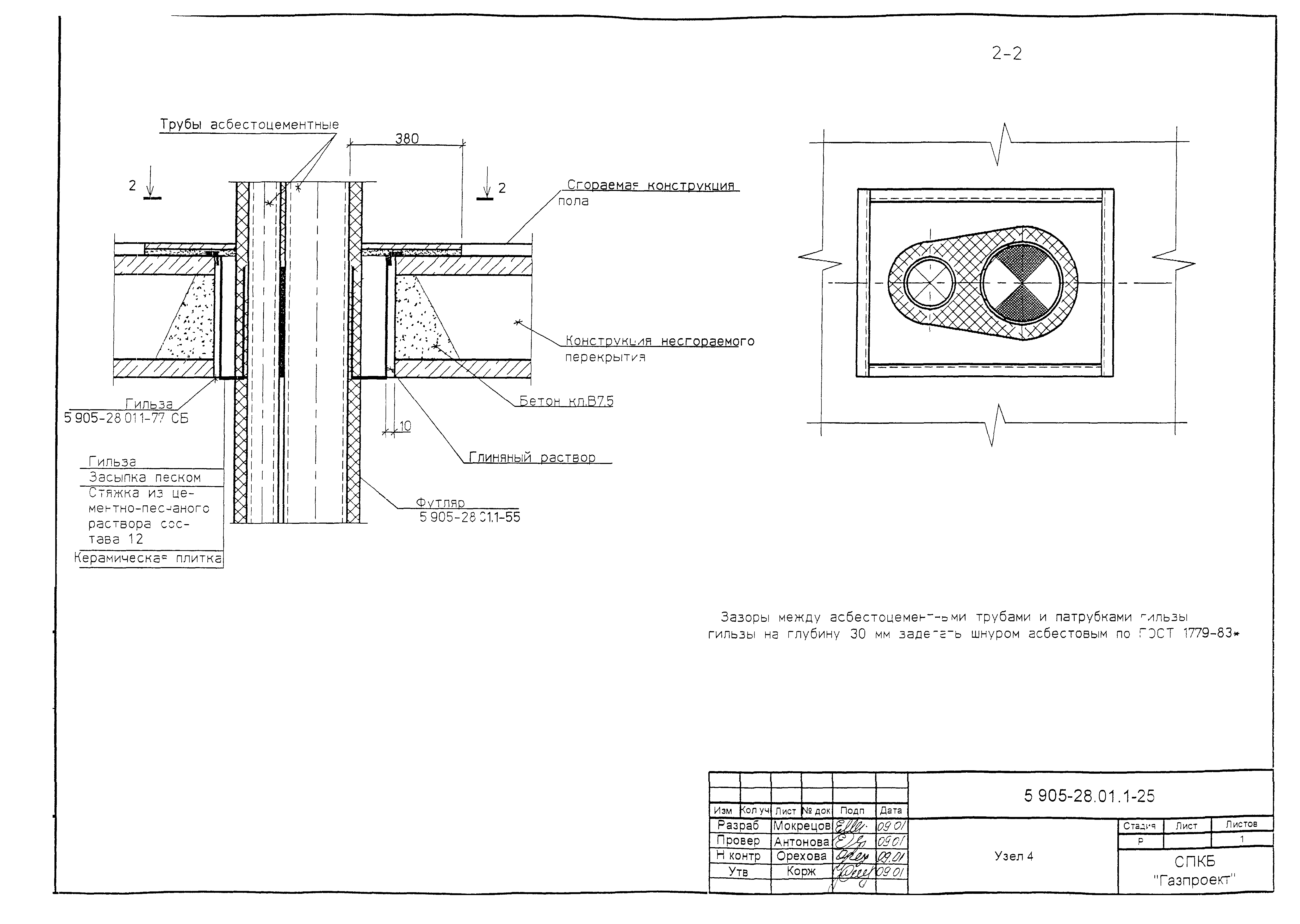
5.905-28.01.1-25 Узел 4
5.905-28.01.1-26 Узел 5
5.905-28.01.1-27 Узел 6
5.905-28.01.1-28 Узел 7
5.905-28.01.1-29 Узел 8
5.905-28.01.1-30 Узел 9
5.905-28.01.1-31 Узел 10
5.905-28.01.1-32 Узел 11
5.905-28.01.1-33 Узел 12
5.905-28.01.1-34 Узел 13
5.905-28.01.1-35 Узел 14
5.905-28.01.1-36 Узел 15
5.905-28.01.1-37 Узел 16
5.905-28.01.1-38 Узел 17
5.905-28.01.1-39 Высота оголовка каналов над кровлей. Узел стыковки асбестоцементных труб. Узел 18
5.905-28.01.1-40 Узел 19
5.905-28.01.1-41 Узел 20
5.905-28.01.1-42 Узел 21
5.905-28.01.1-43 Узел 22
5.905-28.01.1-44 Узел 23
5.905-28.01.1-45 Узел прохода через кровлю вентиляционного и дымового каналов
5.905-28.01.1-46 Узел прохода через кровлю вентиляционного и дымового каналов
5.905-28.01.1-47СБ Узел прохода через кровлю вентиляционного или дымового каналов
5.905-28.01.1-48СБ Решетка вентиляционная. Сборочный чертеж
5.905-28.01.1-48 Решетка вентиляционная
5.905-28.01.1-48.01 Цилиндр
5.905-28.01.1-49СБ Песочница. Сборочный чертеж
5.905-28.01.1-49 Песочница
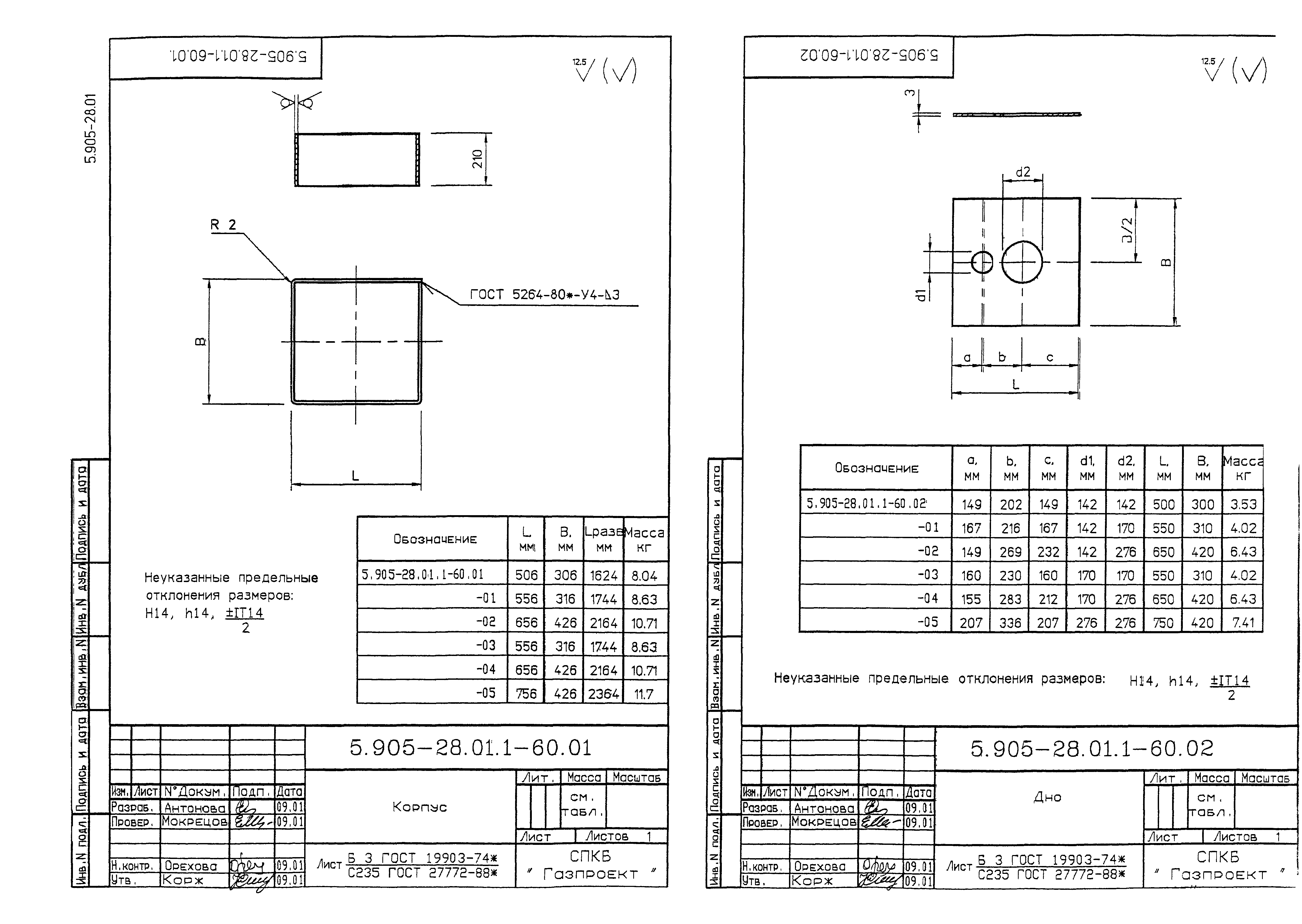
5.905-28.01.1-49.01 Корпус
5.905-28.01.1-49.02 Дно
5.905-28.01.1-49.03 Труба
5.905-28.01.1-49.04СБ Опорная конструкция. Сборочный чертеж
5.905-28.01.1-49.04 Опорная конструкция
5.905-28.01.1-50СБ Тройник. Сборочный чертеж
5.905-28.01.1-50 Тройник
5.905-28.01.1-50.01 Труба
5.905-28.01.1-50.02 Труба
5.905-28.01.1-51СБ Заглушка. Сборочный чертеж
5.905-28.01.1-51 Заглушка
5.905-28.01.1-51.01 Цилиндр
5.905-28.01.1-51.02 Рукоятка
5.905-28.01.1-52СБ Хомут на асбестоцементные трубы. Сборочный чертеж
5.905-28.01.1-52 Хомут на асбестоцементные трубы
5.905-28.01.1-52.01 Полухомут
5.905-28.01.1-53СБ Изолятор для дымовой трубы. Сборочный чертеж
5.905-28.01.1-53 Изолятор для дымовой трубы
5.905-28.01.1-54СБ Фартук для двух труб. Сборочный чертеж
5.905-28.01.1-54 Фартук для двух труб
5.905-28.01.1-54.01 Ограждающий лист
5.905-28.01.1-54.02 Гильза
5.905-28.01.1-55 Футляр
5.905-28.01.1-56 Опора
5.905-28.01.1-57СБ Опорная конструкция. Сборочный чертеж
5.905-28.01.1-57 Опорная конструкция
5.905-28.01.1-57.01 Швеллер
5.905-28.01.1-57.02 Уголок
5.905-28.01.1-57.03 Полухомут
5.905-28.01.1-58СБ Опорная конструкция. Сборочный чертеж
5.905-28.01.1-58 Опорная конструкция
5.905-28.01.1-58.01 Швеллер
5.905-28.01.1-59СБ Гильза. Сборочный чертеж
5.905-28.01.1-59 Гильза
5.905-28.01.1-59.01 Дно
5.905-28.01.1-59.02 Труба
5.905-28.01.1-60СБ Песочница. Сборочный чертеж
5.905-28.01.1-60 Песочница
5.905-28.01.1-60.01 Корпус
5.905-28.01.1-60.02 Дно
5.905-28.01.1-60.03 Опорная конструкция
5.905-28.01.1-61СБ Гильза для вентиляционной трубы. Сборочный чертеж
5.905-28.01.1-61 Гильза для вентиляционной трубы
5.905-28.01.1-61.01 Корпус
5.905-28.01.1-61.02 Дно
5.905-28.01.1-61.03СБ Опорная конструкция. Сборочный чертеж
5.905-28.01.1-61.03 Опорная конструкция
5.905-28.01.1-62 Фартук для одной трубы
5.905-28.01.1-63 Футляр
5.905-28.01.1-64СБ Песочница для дымовой трубы. Сборочный чертеж
5.905-28.01.1-64 Песочница для дымовой трубы
5.905-28.01.1-64.01 Корпус
5.905-28.01.1-64.02 Дно
5.905-28.01.1-64.03СБ Опорная конструкция. Сборочный чертеж
5.905-28.01.1-64.03 Опорная конструкция
5.905-28.01.1-65СБ Гильза для вентиляционной трубы. Сборочный чертеж
5.905-28.01.1-65 Гильза для вентиляционной трубы
5.905-28.01.1-65.01 Корпус
5.905-28.01.1-65.02 Опорная конструкция
5.905-28.01.1-65СБ Гильза для вентиляционной трубы. Сборочный чертеж
5.905-28.01.1-66 Гильза для вентиляционной трубы
5.905-28.01.1-67СБ Гильза для дымовой трубы. Сборочный чертеж
5.905-28.01.1-67 Гильза для дымовой трубы
5.905-28.01.1-68СБ Гильза для дымовой трубы. Сборочный чертеж
5.905-28.01.1-68 Гильза для дымовой трубы
5.905-28.01.1-69 Колено
5.905-28.01.1-70 Патрубок
5.905-28.01.1-70СБ Кронштейн для вентиляционного или дымового каналов. Сборочный чертеж
5.905-28.01.1-71 Кронштейн для вентиляционного или дымового каналов
5.905-28.01.1-71.01 Консоль
5.905-28.01.1-72 Гильза
5.905-28.01.1-73СБ Кронштейн. Сборочный чертеж
5.905-28.01.1-73 Кронштейн
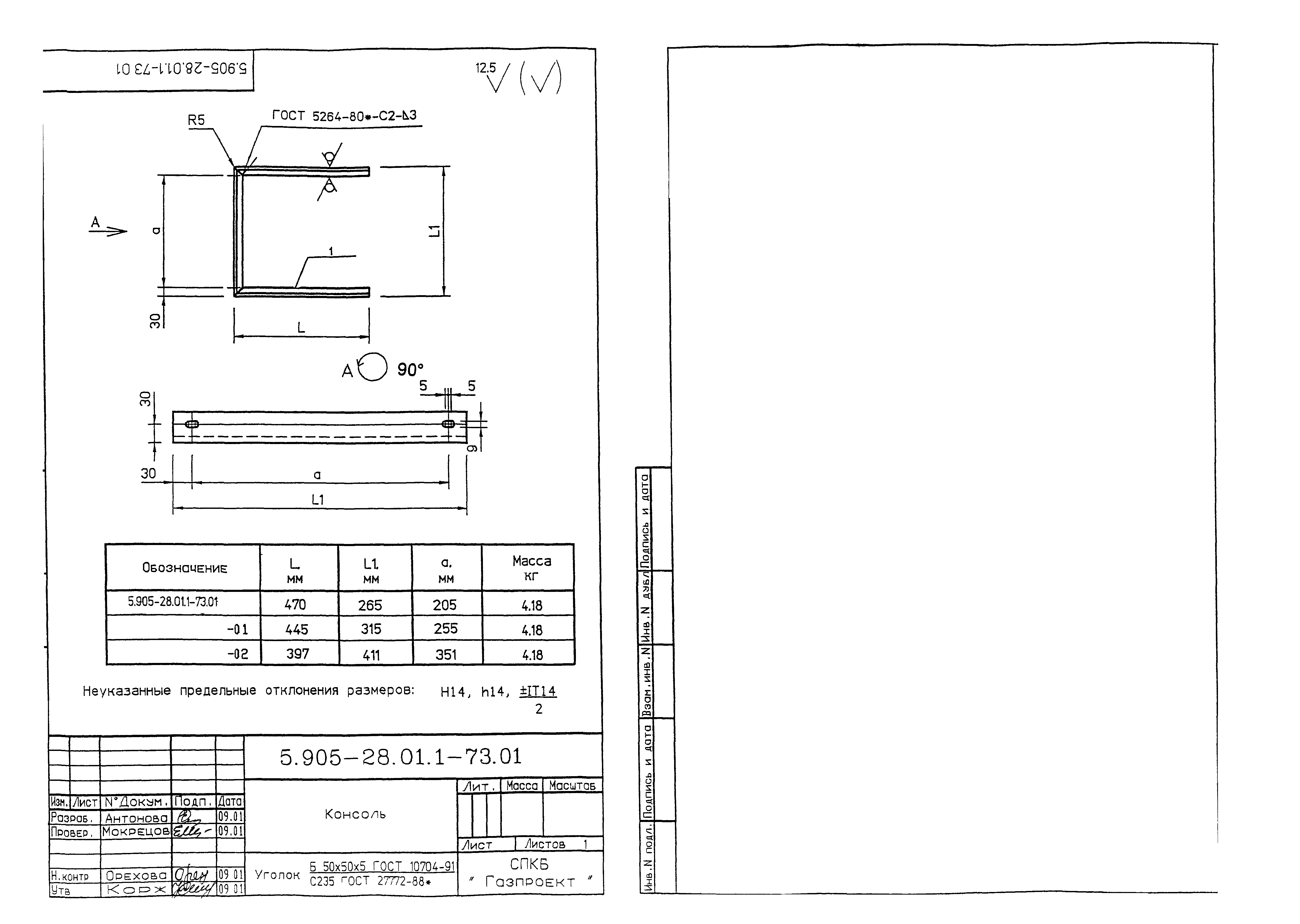
5.905-28.01.1-73.01 Консоль
5.905-28.01.1-74СБ Кронштейн для вентиляционного и дымового каналов. Сборочный чертеж
5.905-28.01.1-74 Кронштейн для вентиляционного и дымового каналов
5.905-28.01.1-74.01.00 Консоль
5.905-28.01.1-75.00СБ Кронштейн для вентиляционного и дымового каналов. Сборочный чертеж
5.905-28.01.1-75.00 Кронштейн для вентиляционного и дымового каналов
5.905-28.01.1-75.01.00СБ Консоль. Сборочный чертеж
5.905-28.01.1-75.01 Консоль
5.905-28.01.1-75.01.01.00 Опора
5.905-28.01.1-75.01.02.00 Опора
5.905-28.01.1-76.00СБ Тройник наружный. Сборочный чертеж
5.905-28.01.1-76 Тройник наружный
5.905-28.01.1-76.01.00 Труба
5.905-28.01.1-77.00СБ Гильза. Сборочный чертеж
5.905-28.01.1-77 Гильза
5.905-28.01.1-77.01.00 Труба
5.905-28.01.1-78.00СБ Гильза для вентиляционной или дымлвой трубы. Сборочный чертеж
5.905-28.01.1-78 Гильза для вентиляционной или дымлвой трубы
5.905-28.01.1-79.00СБ Кронштейн для вентиляционного и дымового каналов. Сборочный чертеж
5.905-28.01.1-79 Кронштейн для вентиляционного и дымового каналов
5.905-28.01.1-79.01.00 Консоль
5.905-28.01.1-80.00.СБ Тройник. Сборочный чертеж
5.905-28.01.1-80.00 Тройник
5.905-28.01.1-80.01.00 Труба
5.905-28.01.1-81.00 Патрубок
5.905-28.01.1-82.00СБ Кронштейн. Сборочный чертеж
5.905-28.01.1-82 Кронштейн
5.905-28.01.1-82.01.00СБ Консоль. Сборочный чертеж
5.905-28.01.1-82.01 Консоль
5.905-28.01.1-82.01.01.00 Опора
5.905-28.01.1-83.00СБ Изолятор. Сборочный чертеж
5.905-28.01.1-83 Изолятор
5.905-28.01.1-84СБ Кронштейн для вентиляционого или дымового каналов. Сборочный чертеж
5.905-28.01.1-84 Кронштейн для вентиляционого или дымового каналов
5.905-28.01.1-85.00СБ Кронштейн. Сборочный чертеж
5.905-28.01.1-85 Кронштейн
5.905-28.01.1-85.01.00 Консоль
Разработан: ОАО СПКБ Газпроект -БТЦ
Утверждён:20.11.2001 Госстрой России (Russian Federation Gosstroy ВК-187/14)
Издан: ГУП ЦПП (CPP GUP 2002 г. )
Расположен в:Техническая документация Экология СТРОИТЕЛЬНЫЕ МАТЕРИАЛЫ И СТРОИТЕЛЬСТВО Установки в зданиях Вентиляционные системы и системы кондиционирования воздуха Строительство Справочные документы Типовые строительные конструкции, изделия и узлы Общероссийский строительный каталог Строительные конструкции, изделия и узлы зданий и сооружений для всех видов строительства Инженерное оборудование Инженерное оборудование; изделия и узлы инженерного оборудования зданий и сооружений Установки газоснабжения
Чем заменён:
Серия 5.905-28.01Серия 5.905-28.01Серия 5.905-28.01Серия 5.905-28.01Серия 5.905-28.01Серия 5.905-28.01Серия 5.905-28.01Серия 5.905-28.01Серия 5.905-28.01Серия 5.905-28.01Серия 5.905-28.01Серия 5.905-28.01Серия 5.905-28.01Серия 5.905-28.01Серия 5.905-28.01Серия 5.905-28.01Серия 5.905-28.01Серия 5.905-28.01Серия 5.905-28.01Серия 5.905-28.01Серия 5.905-28.01Серия 5.905-28.01Серия 5.905-28.01Серия 5.905-28.01Серия 5.905-28.01Серия 5.905-28.01Серия 5.905-28.01Серия 5.905-28.01Серия 5.905-28.01Серия 5.905-28.01Серия 5.905-28.01Серия 5.905-28.01Серия 5.905-28.01Серия 5.905-28.01Серия 5.905-28.01Серия 5.905-28.01Серия 5.905-28.01Серия 5.905-28.01Серия 5.905-28.01Серия 5.905-28.01Серия 5.905-28.01Серия 5.905-28.01Серия 5.905-28.01Серия 5.905-28.01Серия 5.905-28.01Серия 5.905-28.01Серия 5.905-28.01Серия 5.905-28.01Серия 5.905-28.01Серия 5.905-28.01Серия 5.905-28.01Серия 5.905-28.01Серия 5.905-28.01Серия 5.905-28.01Серия 5.905-28.01Серия 5.905-28.01Серия 5.905-28.01Серия 5.905-28.01Серия 5.905-28.01Серия 5.905-28.01Серия 5.905-28.01Серия 5.905-28.01Серия 5.905-28.01Серия 5.905-28.01Серия 5.905-28.01Серия 5.905-28.01Серия 5.905-28.01Серия 5.905-28.01Серия 5.905-28.01Серия 5.905-28.01Серия 5.905-28.01Серия 5.905-28.01Серия 5.905-28.01Серия 5.905-28.01Серия 5.905-28.01Серия 5.905-28.01Серия 5.905-28.01Серия 5.905-28.01Серия 5.905-28.01Серия 5.905-28.01Серия 5.905-28.01Серия 5.905-28.01Серия 5.905-28.01Серия 5.905-28.01Серия 5.905-28.01Серия 5.905-28.01Серия 5.905-28.01Серия 5.905-28.01Серия 5.905-28.01Серия 5.905-28.01Серия 5.905-28.01Серия 5.905-28.01Серия 5.905-28.01Серия 5.905-28.01Серия 5.905-28.01Серия 5.905-28.01Серия 5.905-28.01Серия 5.905-28.01Серия 5.905-28.01Серия 5.905-28.01Серия 5.905-28.01Серия 5.905-28.01Серия 5.905-28.01Серия 5.905-28.01Серия 5.905-28.01Серия 5.905-28.01Серия 5.905-28.01Серия 5.905-28.01Серия 5.905-28.01Серия 5.905-28.01Серия 5.905-28.01Серия 5.905-28.01Серия 5.905-28.01Серия 5.905-28.01Серия 5.905-28.01Серия 5.905-28.01Серия 5.905-28.01Серия 5.905-28.01Серия 5.905-28.01Серия 5.905-28.01Серия 5.905-28.01Серия 5.905-28.01Серия 5.905-28.01Серия 5.905-28.01Серия 5.905-28.01Серия 5.905-28.01Серия 5.905-28.01Серия 5.905-28.01Серия 5.905-28.01Серия 5.905-28.01Серия 5.905-28.01Серия 5.905-28.01Серия 5.905-28.01Серия 5.905-28.01Серия 5.905-28.01Серия 5.905-28.01Серия 5.905-28.01Серия 5.905-28.01Серия 5.905-28.01Серия 5.905-28.01Серия 5.905-28.01Серия 5.905-28.01Серия 5.905-28.01Серия 5.905-28.01Серия 5.905-28.01Серия 5.905-28.01Серия 5.905-28.01Серия 5.905-28.01

© 2013 Ёшкин Кот :-) Карта сайта