| ||||||||||||||||||||||||||||||||||
Скачать Серия 1.231.9-8 Выпуск 2. Перегородки на металлическом каркасе. Материалы для проектирования. Рабочие чертежиДата актуализации: 10.08.2017
|
| Обозначение: | Серия 1.231.9-8 |
| Обозначение англ: | Series 1.231.9-8 |
| Статус: | заменен |
| Название рус.: | Выпуск 2. Перегородки на металлическом каркасе. Материалы для проектирования. Рабочие чертежи |
| Дата добавления в базу: | 01.09.2013 |
| Дата актуализации: | 05.05.2017 |
| Дата введения: | 01.07.1986 |
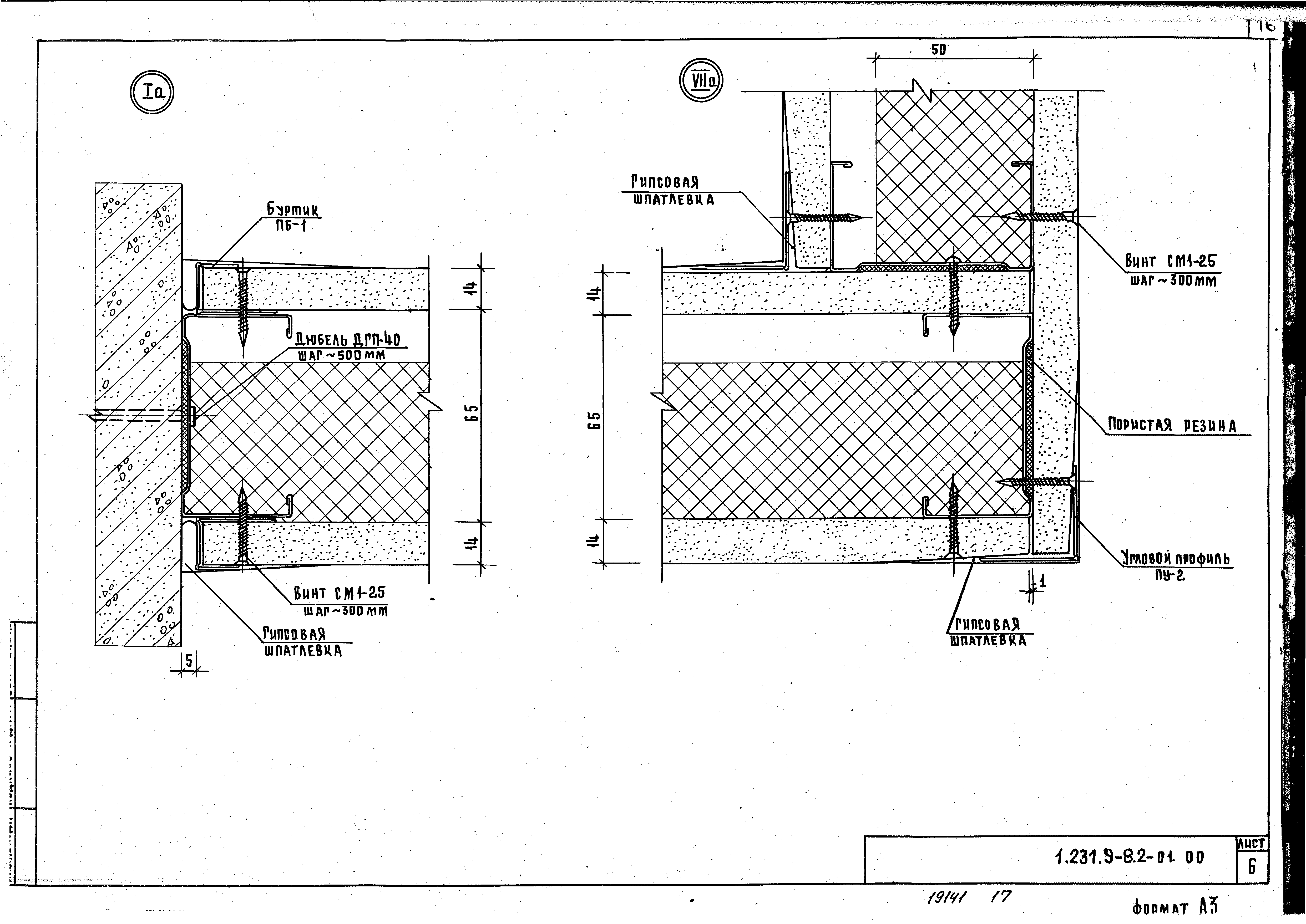
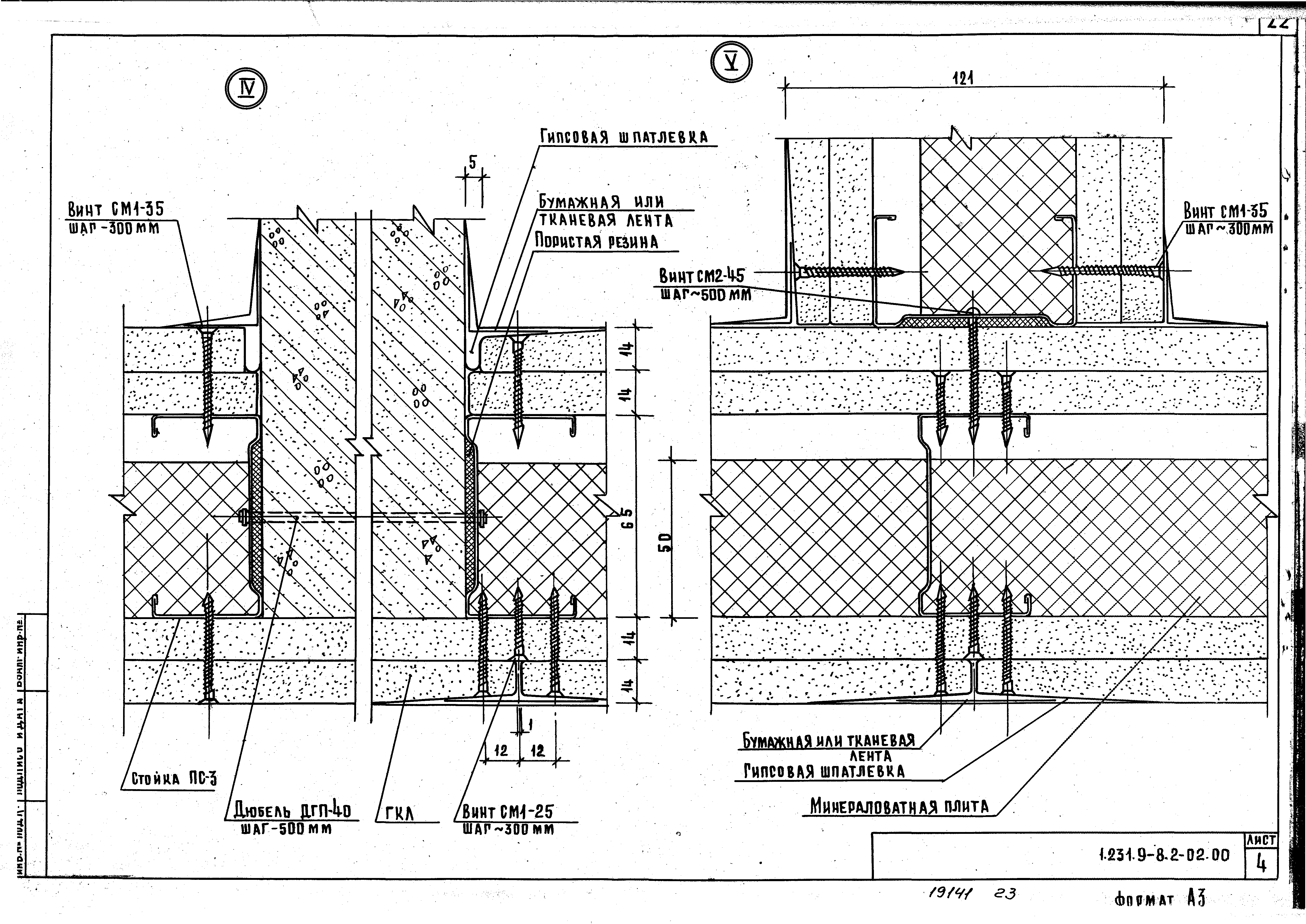
| Область применения: | Выпуск содержит перечень типов перегородок, монтажные узлы, комплектующие элементы и детали, рекомендации по заделке швов и методам отделки лицевых поверхностей |
| Оглавление: | 1.231.9-8.1-00.00 Содержание 1.231.9-8.1-00.00 ПЗ Пояснительная записка 1.231.9-8.1-00.00 ВД Ведомость ссылочных документов 1.231.9-8.1-01.00 Фрагмент перегородки поэлементной сборки на металлическом каркасе ПМ-1м (ПМ-1). Узлы I - IX; Iа; IIIа; IVа; VIIIа; Ixа 1.231.9-8.1-02.00 Фрагмент перегородки поэлементной сборки на металлическом каркасе ПМ-2м (ПМ-2). Узлы I - XV; Iа; IIIа; VIIа; VIIIа; Ixа 1.231.9-8.1-03.00 Устройство деформационного шва 1.231.9-8.1-04.00 Устройство деформационного шва 1.231.9-8.1-05.00 Примеры установки анкера падающего, крючка, анкера проходного и дюбеля разжимного 1.231.9-8.1-00.01 Профиль стойка ПС-2, ПС-7 1.231.9-8.1-00.02 Профиль направляющий ПН-2/ ПН-7 1.231.9-8.1-00.03 Профили дверной коробки ПДК-1/ ПДК-3 1.231.9-8.1-00.04 Профиль торцевой ПБ-1 (буртик) 1.231.9-8.1-00.05 Профиль угловой ПУ-2 1.231.9-8.1-00.06 Винт самосверлящийся СМ1 1.231.9-8.1-00.07 Винт самосверлящийся СМ2 1.231.9-8.1-00.08 Винт самосверлящийся самонарезной 2с1-25 1.231.9-8.1-00.09 Дюбель-гвоздь пистолетный 1.231.9-8.1-00.10 Анкер подающий, дюбель разжимной 1.231.9-8.1-00.11 Крючок, анкер проходящий |
| Разработан: | ЦНИИЭП торгово-бытовых зданий и туристских комплексов |
| Утверждён: | 29.08.1983 Государственный комитет по гражданскому строительству и архитектуре при Госстрое СССР (253) |
| Расположен в: | |
| Заменяет собой: | |
| Чем заменён: | |
| Нормативные ссылки: |
|










































