| ||||||||||||||||||||||||||||||||||
Скачать Серия 1.231.9-10 Выпуск 2. Перегородки поэлементной сборки из гипсокартонных листов на металлическом каркасе. Рабочие чертежиДата актуализации: 10.08.2017
|
| Обозначение: | Серия 1.231.9-10 |
| Обозначение англ: | Series 1.231.9-10 |
| Статус: | не определен законодательством |
| Название рус.: | Выпуск 2. Перегородки поэлементной сборки из гипсокартонных листов на металлическом каркасе. Рабочие чертежи |
| Дата добавления в базу: | 01.09.2013 |
| Дата актуализации: | 05.05.2017 |
| Дата введения: | 01.05.1986 |
| Область применения: | Выпуск содержит перечень типов перегородок, монтажные узлы, комплектующие элементы и детали, рекомендации по заделке швов и методам отделки лицевых поверхностей |
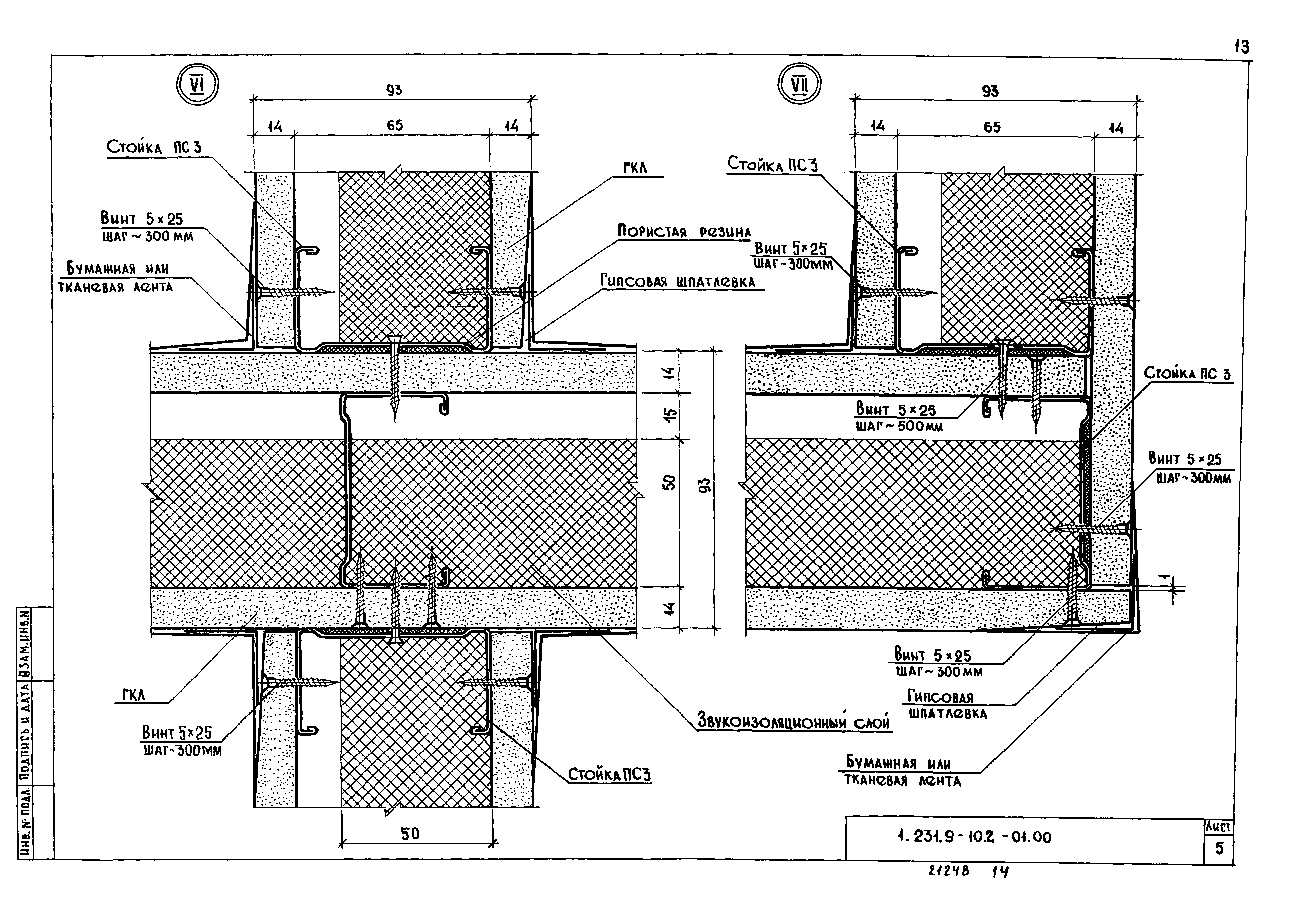
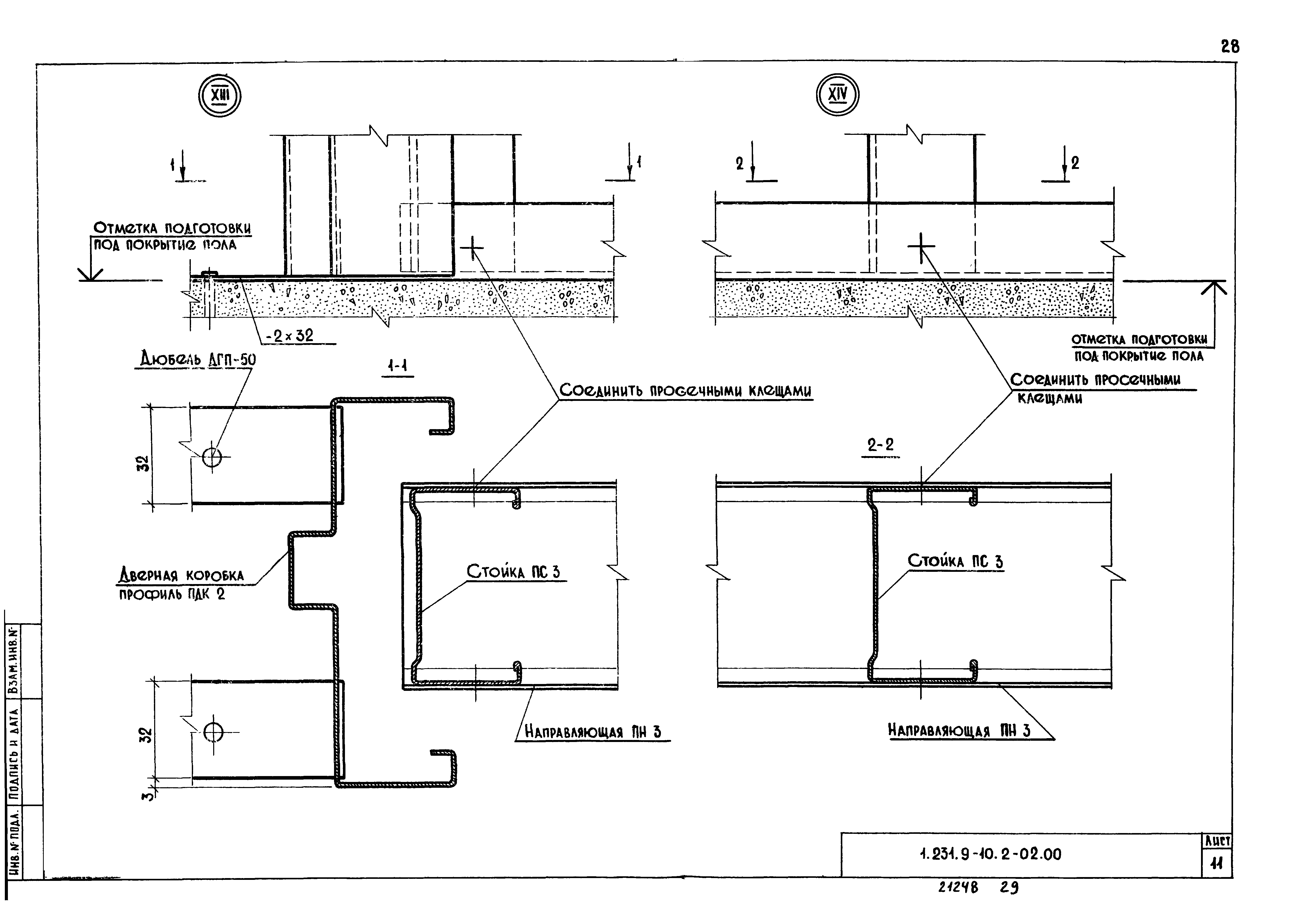
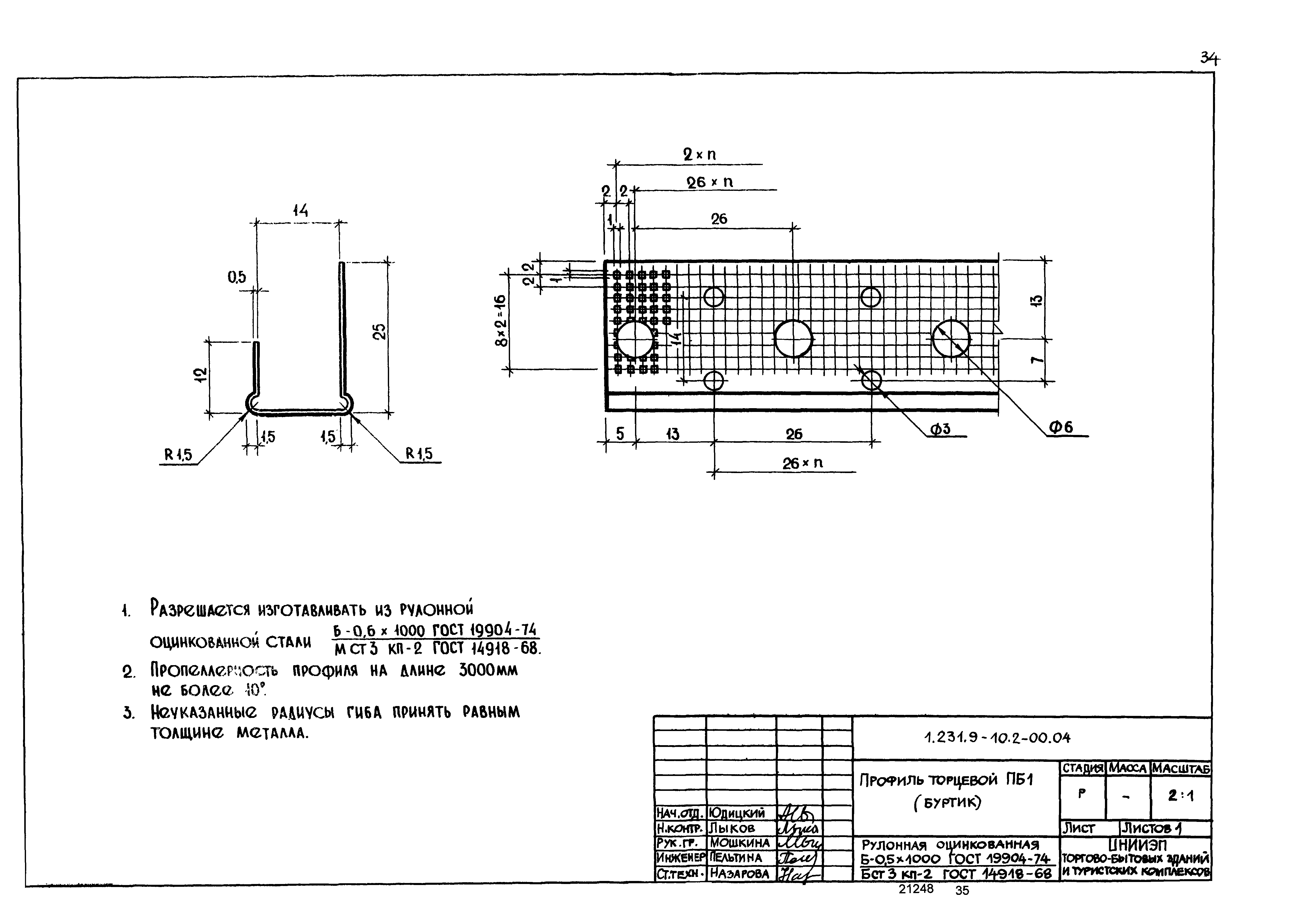
| Оглавление: | 1.231.9-10.2-00.00 ПЗ Пояснительная записка 1.231.9-10.2-00.00 ВД Ведомость ссылочных документов 1.231.9-10.2-01.00 Перегородка ПКГМ-1М/ ПКГМ-1/ (фрагмент). Узлы I - IX; Ia - IIIa, VIIa, VIIIб, IXa. Пример 1.231.9-10.2-02.00 Перегородка ПКГМ-2М/ ПКГМ-2/ (фрагмент). Узлы I - XIV; Ia, IIIa, VIIa - IXa. Пример 1.231.9-10.2-03.00 Устройство деформационного шва в перегородке ПГКМ-1м 1.231.9-10.2-04.00 Устройство деформационного шва в перегородке ПГКМ-2м 1.231.9-10.2-05.00 Примеры установки анкера падающего, крючка, анкера проходного и дюбеля разжимного 1.231.9-10.2-00.01 Профиль стойки ПС3… ПС7 1.231.9-10.2-00.02 Профиль направляющий ПН3… ПН7 1.231.9-10.2-00.03 Профили дверной коробки ПДК-1… ПДК-3 1.231.9-10.2-00.04 Профили торцевой ПБ1 (буртик) 1.231.9-10.2-00.05 Профиль угловой ПУ2 1.231.9-10.2-00.06 Анкер падающий 1.231.9-10.2-00.07 Дюбель разжимной 1.231.9-10.2-00.08 Крючок 1.231.9-10.2-00.09 Анкер проходной 1.231.9-10.2-00.10 Винт 1.231.9-10.2-00.11 Дюбель - гвоздь пистолетный |
| Разработан: | ЦНИИЭП торгово-бытовых зданий и туристских комплексов |
| Утверждён: | 28.03.1986 Государственный комитет по гражданскому строительству и архитектуре при Госстрое СССР (114) |
| Издан: | ЦИТП Госстроя СССР (CITP, Gosstroy (USSR) 1986 г. ) |
| Расположен в: | |
| Заменяет собой: | |
| Нормативные ссылки: |
|








































