Скачать Серия 3.503.1-81 Выпуск 0-4. Материалы для проектирования пролетных строений из цельноперевозимых балок с натяжением на упоры для мостов и путепроводов, расположенных на автомобильных дорогах общего пользованияДата актуализации: 10.08.2017 Серия 3.503.1-81
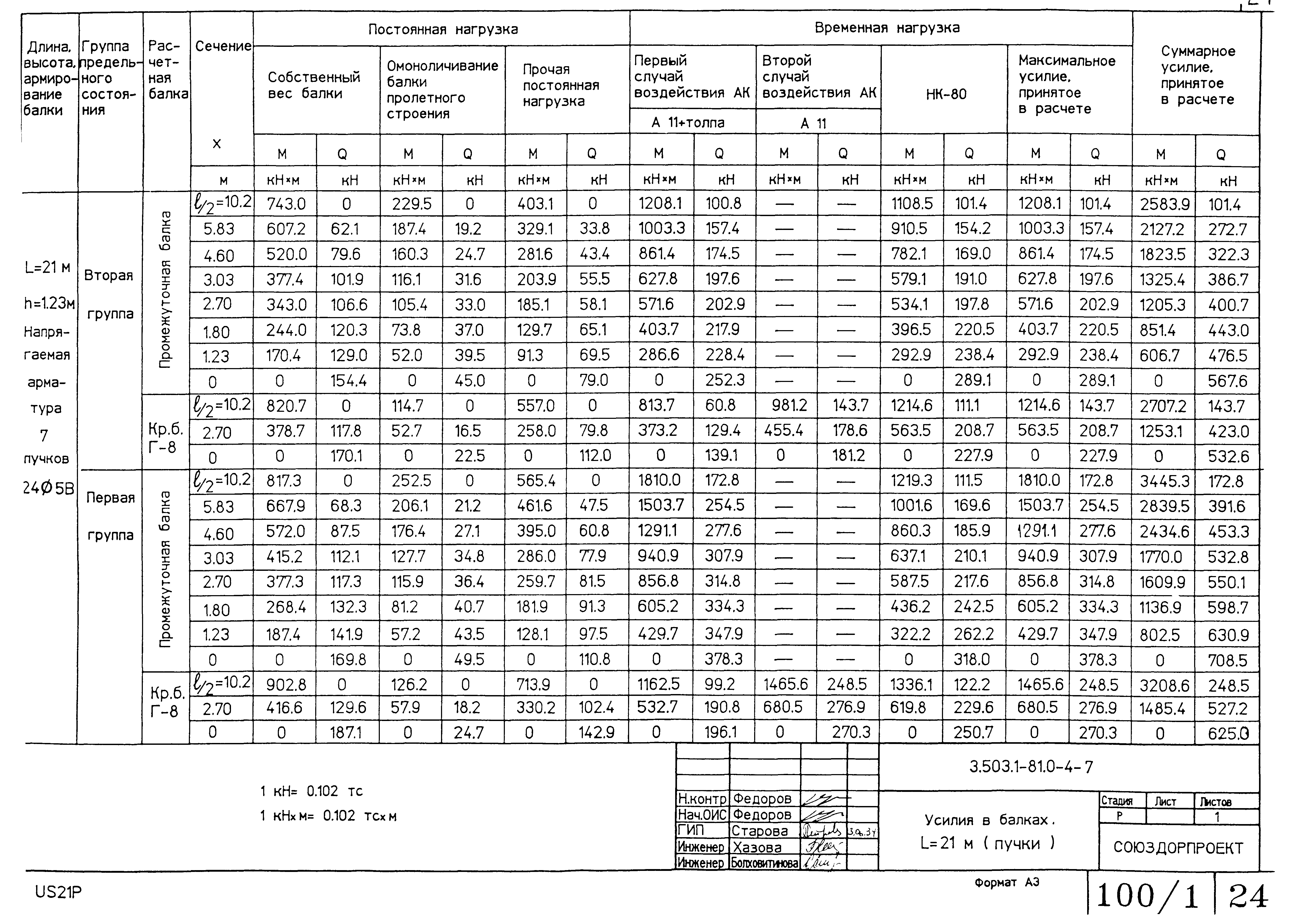
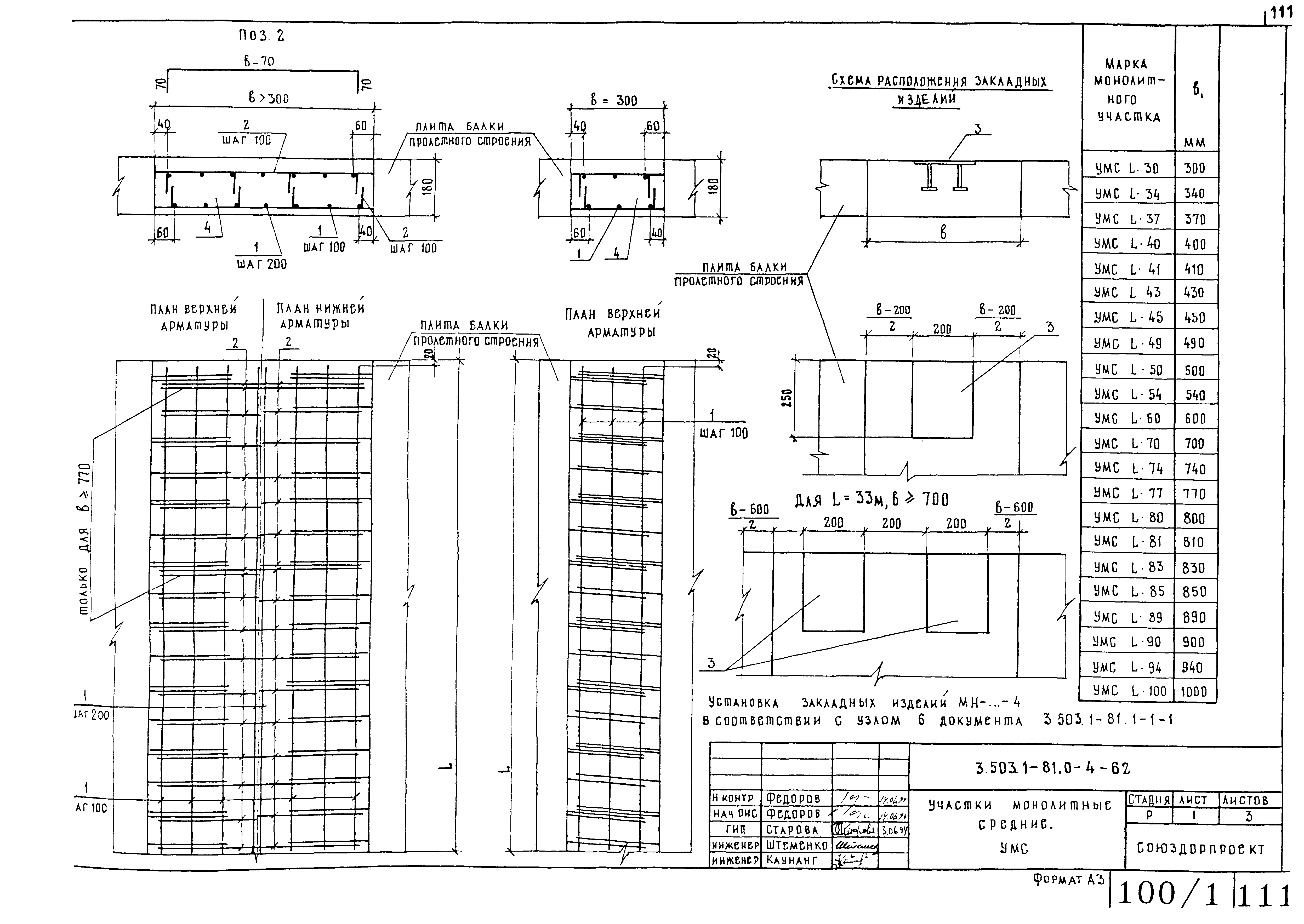
Выпуск 0-4. Материалы для проектирования пролетных строений из цельноперевозимых балок с натяжением на упоры для мостов и путепроводов, расположенных на автомобильных дорогах общего пользованияОбозначение: | Серия 3.503.1-81 | Обозначение англ: | Series 3.503.1-81 | Статус: | не определен законодательством | Название рус.: | Выпуск 0-4. Материалы для проектирования пролетных строений из цельноперевозимых балок с натяжением на упоры для мостов и путепроводов, расположенных на автомобильных дорогах общего пользования | Дата добавления в базу: | 01.09.2013 | Дата актуализации: | 05.05.2017 | Дата введения: | 01.08.1994 | Оглавление: | 3.503.1-81.0-4-ПЗ Пояснительная записка 3.503.1-81.0-4-1 Усилия в балках. L=12 м (пучки) 3.503.1-81.0-4-2 Усилия в балках. L=12 м (канаты) 3.503.1-81.0-4-3 Усилия в балках. L=15 м (пучки) 3.503.1-81.0-4-4 Усилия в балках. L=15 м (канаты) 3.503.1-81.0-4-5 Усилия в балках. L=18 м (пучки) 3.503.1-81.0-4-6 Усилия в балках. L=18 м (канаты) 3.503.1-81.0-4-7 Усилия в балках. L=21 м (пучки) 3.503.1-81.0-4-8 Усилия в балках. L=21 м (канаты) 3.503.1-81.0-4-9 Усилия в балках. L=24 м 3.503.1-81.0-4-10 Усилия в балках. L=33 м, h=1,53 м 3.503.1-81.0-4-11 Усилия в балках. L=33 м, h=1,73 м 3.503.1-81.0-4-12 Расчет по предельным состояниям I группы - на прочность по изгибающему моменту. Расчет по предельным состояниям II группы - прогибы и углы поворота. L=12 м (пучки) 3.503.1-81.0-4-13 Расчет по предельным состояниям I группы - на прочность по изгибающему моменту. Расчет по предельным состояниям II группы - прогибы и углы поворота. L=12 м (канаты) 3.503.1-81.0-4-14 Расчет по предельным состояниям I группы - на прочность по изгибающему моменту. Расчет по предельным состояниям II группы - прогибы и углы поворота. L=15 м (пучки) 3.503.1-81.0-4-15 Расчет по предельным состояниям I группы - на прочность по изгибающему моменту. Расчет по предельным состояниям II группы - прогибы и углы поворота. L=15 м (канаты) 3.503.1-81.0-4-16 Расчет по предельным состояниям I группы - на прочность по изгибающему моменту. Расчет по предельным состояниям II группы - прогибы и углы поворота. L=18 м (пучки) 3.503.1-81.0-4-17 Расчет по предельным состояниям I группы - на прочность по изгибающему моменту. Расчет по предельным состояниям II группы - прогибы и углы поворота. L=18 м (канаты) 3.503.1-81.0-4-18 Расчет по предельным состояниям I группы - на прочность по изгибающему моменту. Расчет по предельным состояниям II группы - прогибы и углы поворота. L=21 м (пучки) 3.503.1-81.0-4-19 Расчет по предельным состояниям I группы - на прочность по изгибающему моменту. Расчет по предельным состояниям II группы - прогибы и углы поворота. L=21 м (канаты) 3.503.1-81.0-4-20 Расчет по предельным состояниям I группы - на прочность по изгибающему моменту. Расчет по предельным состояниям II группы - прогибы и углы поворота. L=24 м 3.503.1-81.0-4-21 Расчет по предельным состояниям I группы - на прочность по изгибающему моменту. Расчет по предельным состояниям II группы - прогибы и углы поворота. L=33 м, h=1,53 м 3.503.1-81.0-4-22 Расчет по предельным состояниям I группы - на прочность по изгибающему моменту. Расчет по предельным состояниям II группы - прогибы и углы поворота. L=33 м, h=1,73 м 3.503.1-81.0-4-23 Расчет по предельным состояниям I группы - прочность наклонных сечений балок L=12 м 3.503.1-81.0-4-24 Расчет по предельным состояниям I группы - прочность наклонных сечений балок L=15 м 3.503.1-81.0-4-25 Расчет по предельным состояниям I группы - прочность наклонных сечений балок L=18 м 3.503.1-81.0-4-26 Расчет по предельным состояниям I группы - прочность наклонных сечений балок L=21 м 3.503.1-81.0-4-27 Расчет по предельным состояниям I группы - прочность наклонных сечений балок L=24 м 3.503.1-81.0-4-28 Расчет по предельным состояниям I группы - прочность наклонных сечений балок L=33 м, h=1,53 м 3.503.1-81.0-4-29 Расчет по предельным состояниям I группы - прочность наклонных сечений балок L=33 м, h=1,73 м 3.503.1-81.0-4-30 Расчет по предельным состояниям II группы - на трещиностойкость. L=12 м (пучки) 3.503.1-81.0-4-31 Расчет по предельным состояниям II группы - на трещиностойкость. L=12 м (канаты) 3.503.1-81.0-4-32 Расчет по предельным состояниям II группы - на трещиностойкость. L=15 м (пучки) 3.503.1-81.0-4-33 Расчет по предельным состояниям II группы - на трещиностойкость. L=15 м (канаты) 3.503.1-81.0-4-34 Расчет по предельным состояниям II группы - на трещиностойкость. L=18 м (пучки) 3.503.1-81.0-4-35 Расчет по предельным состояниям II группы - на трещиностойкость. L=18 м (канаты) 3.503.1-81.0-4-36 Расчет по предельным состояниям II группы - на трещиностойкость. L=21 м (пучки) 3.503.1-81.0-4-37 Расчет по предельным состояниям II группы - на трещиностойкость. L=21 м (канаты) 3.503.1-81.0-4-38 Расчет по предельным состояниям II группы - на трещиностойкость. L=24 м 3.503.1-81.0-4-39 Расчет по предельным состояниям II группы - на трещиностойкость. L=33 м, h=1,53 м 3.503.1-81.0-4-40 Расчет по предельным состояниям II группы - на трещиностойкость. L=33 м, h=1,73 м 3.503.1-81.0-4-41 Расчет плиты проезжей части 3.503.1-81.0-4-42НИ Номенклатура изделий 3.503.1-81.0-4-43 Сборочный чертеж пролетного строения с накладными тротуарными блоками 3.503.1-81.0-4-44 Балки с шириной плиты 140 и 174 см и монолитные участки пролетного строения с накладными тротуарными блоками. Спецификация 3.503.1-81.0-4-45 Балки с шириной плиты 180 и 194 см и монолитные участки пролетного строения с накладными тротуарными блоками. Спецификация 3.503.1-81.0-4-46 Мостовое полотно с накладными тротуарными блоками. Спецификация 3.503.1-81.0-4-47 Цементобетонное покрытие мостового полотна с накладными тротуарными блоками. Спецификация 3.503.1-81.0-4-48 Асфальтобетонное покрытие мостового полотна с накладными тротуарными блоками. Спецификация 3.503.1-81.0-4-49 Сборочный чертеж пролетного строения с металлическим барьерным ограждением на накладных тротуарных блоках 3.503.1-81.0-4-50 Балки с шириной плиты 140 и 174 см и монолитные участки пролетного строения с металлическим барьерным ограждением на накладных тротуарных блоках. Спецификация 3.503.1-81.0-4-51 Балки с шириной плиты 180 и 194 см и монолитные участки пролетного строения с металлическим барьерным ограждением на накладных тротуарных блоках. Спецификация 3.503.1-81.0-4-52 Мостовое полотно с металлическим барьерным ограждением на накладных тротуарных блоках. Спецификация 3.503.1-81.0-4-53 Цементобетонное покрытие мостового полотна с металлическим барьерным ограждением на накладных тротуарных блоках. Спецификация 3.503.1-81.0-4-54 Асфальтобетонное покрытие мостового полотна с металлическим барьерным ограждением на накладных тротуарных блоках. Спецификация 3.503.1-81.0-4-55 Сборочный чертеж пролетного строения с металлическим барьерным ограждением 3.503.1-81.0-4-56 Балки с шириной плиты 140 и 174 см и монолитные участки пролетного строения с металлическим барьерным ограждением. Спецификация 3.503.1-81.0-4-57 Балки с шириной плиты 180 и 194 см и монолитные участки пролетного строения с металлическим барьерным ограждением. Спецификация 3.503.1-81.0-4-58 Мостовое полотно с металлическим барьерным ограждением. Спецификация 3.503.1-81.0-4-59 Цементобетонное покрытие мостового полотна с металлическим барьерным ограждением. Спецификация 3.503.1-81.0-4-60 Асфальтобетонное покрытие мостового полотна с металлическим барьерным ограждением. Спецификация 3.503.1-81.0-4-61 Участки монолитные консольные. УМК 3.503.1-81.0-4-62 Участки монолитные средние. УМС 3.503.1-81.0-4-63 Блок тротуарный Т 100.60 3.503.1-81.0-4-64 Блок водоотвода 3.503.1-81.0-4-65 Цоколь металлический ЦМа 3.503.1-81.0-4-66 Изделие закладное МН-ТАII(AIII)-1 3.503.1-81.0-4-67 Изделие закладное МН-ТАII(AIII)-2 3.503.1-81.0-4-68 Изделие закладное МН-ТАII(AIII)-3 3.503.1-81.0-4-69 Изделие закладное МН-ТАII(AIII)-4 3.503.1-81.0-4-70 Изделие закладное МН-ТАII(AIII)-12 3.503.1-81.0-4-71 Изделие закладное МН-ТАII(AIII)-13 3.503.1-81.0-4-72 Сетка C-TAII(AIII)-25, C-TAII(AIII)-26, C-TAII(AIII)_27 3.503.1-81.0-4-73РС Ведомость расхода стали на участки монолитные консольные 3.503.1-81.0-4-74РС Ведомость расхода стали на участки монолитные средние 3.503.1-81.0-4-75ВМ Ведомость расхода материалов на пролетное строение с накладными тротуарными блоками 3.503.1-81.0-4-76ВМ Ведомость расхода материалов на пролетное строение с металлическим барьерным ограждением на накладных тротуарных блоках 3.503.1-81.0-4-77ВМ Ведомость расхода материалов на пролетное строение с металлическим барьерным ограждением | Разработан: | Союздорпроект Минтрансстроя
| Утверждён: | 29.03.1994 Корпорация Трансстрой (Transstroy Corporation СВ-86)
| Расположен в: |
| Заменяет собой: | |
                                                                                                                                                    
|