Скачать Серия 3.503.1-81 Выпуск 1-2. Пролетные строения из цельноперевозимых балок с натяжением на упоры для мостов и путепроводов, расположенных на автомобильных дорогах общего пользования. Участки монолитные. Рабочие чертежиДата актуализации: 10.08.2017 Серия 3.503.1-81
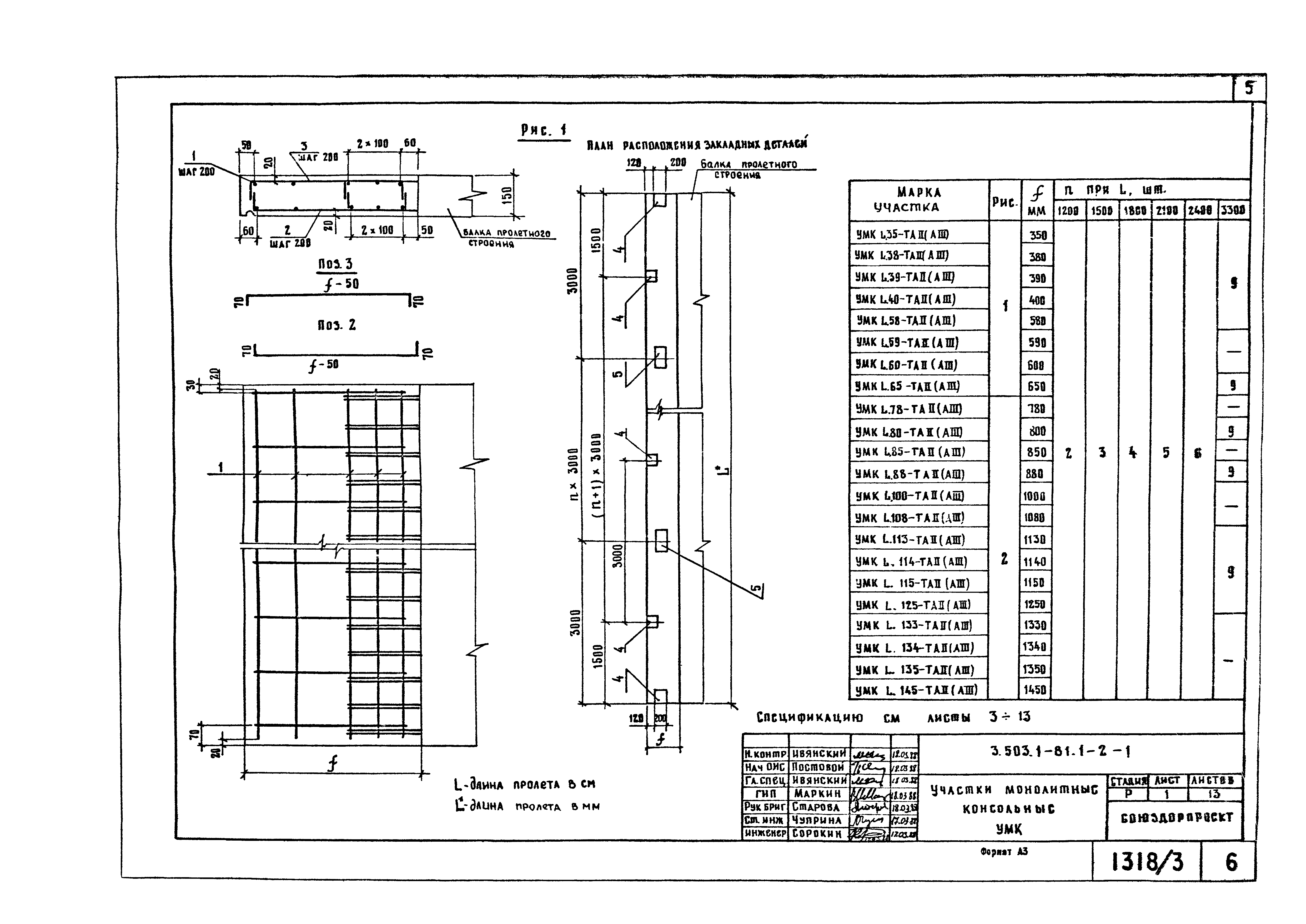
Выпуск 1-2. Пролетные строения из цельноперевозимых балок с натяжением на упоры для мостов и путепроводов, расположенных на автомобильных дорогах общего пользования. Участки монолитные. Рабочие чертежиОбозначение: | Серия 3.503.1-81 | Обозначение англ: | Series 3.503.1-81 | Статус: | не действует | Название рус.: | Выпуск 1-2. Пролетные строения из цельноперевозимых балок с натяжением на упоры для мостов и путепроводов, расположенных на автомобильных дорогах общего пользования. Участки монолитные. Рабочие чертежи | Дата добавления в базу: | 01.09.2013 | Дата актуализации: | 05.05.2017 | Оглавление: | 3.503.1-81.1-2-ТТ Технические требования 3.503.1-81.1-2-1 Участки монолитные консольные 3.503.1-81.1-2-2 Участки монолитные средние 3.503.1-81.1-2-3 Изделие закладное МН-Таll-1, МН-Таlll-1 3.503.1-81.1-2-4 Изделие закладное МН-Таll-2, МН-Таlll-2 3.503.1-81.1-2-5 Изделие закладное МН-Таll-3, МН-Таlll-3 3.503.1-81.1-2-6 Изделие закладное МН-Таll-4, МН-Таlll-4 3.503.1-81.1-2-7РС Ведомость расхода стали на участки монолитные консольные 3.503.1-81.1-2-8РС Ведомость расхода стали на участки монолитные средние | Разработан: | Союздорпроект Минтрансстроя
| Утверждён: | 11.05.1988 Минтрансстрой СССР (USSR Mintransstroy АВ-311)
| Расположен в: |
| Заменяет собой: | | Чем заменён: | |
                                                  
|