Информационная система
«Ёшкин Кот»

Скачать базу одним архивом
Скачать обновления
История создания базы
Карта сайта

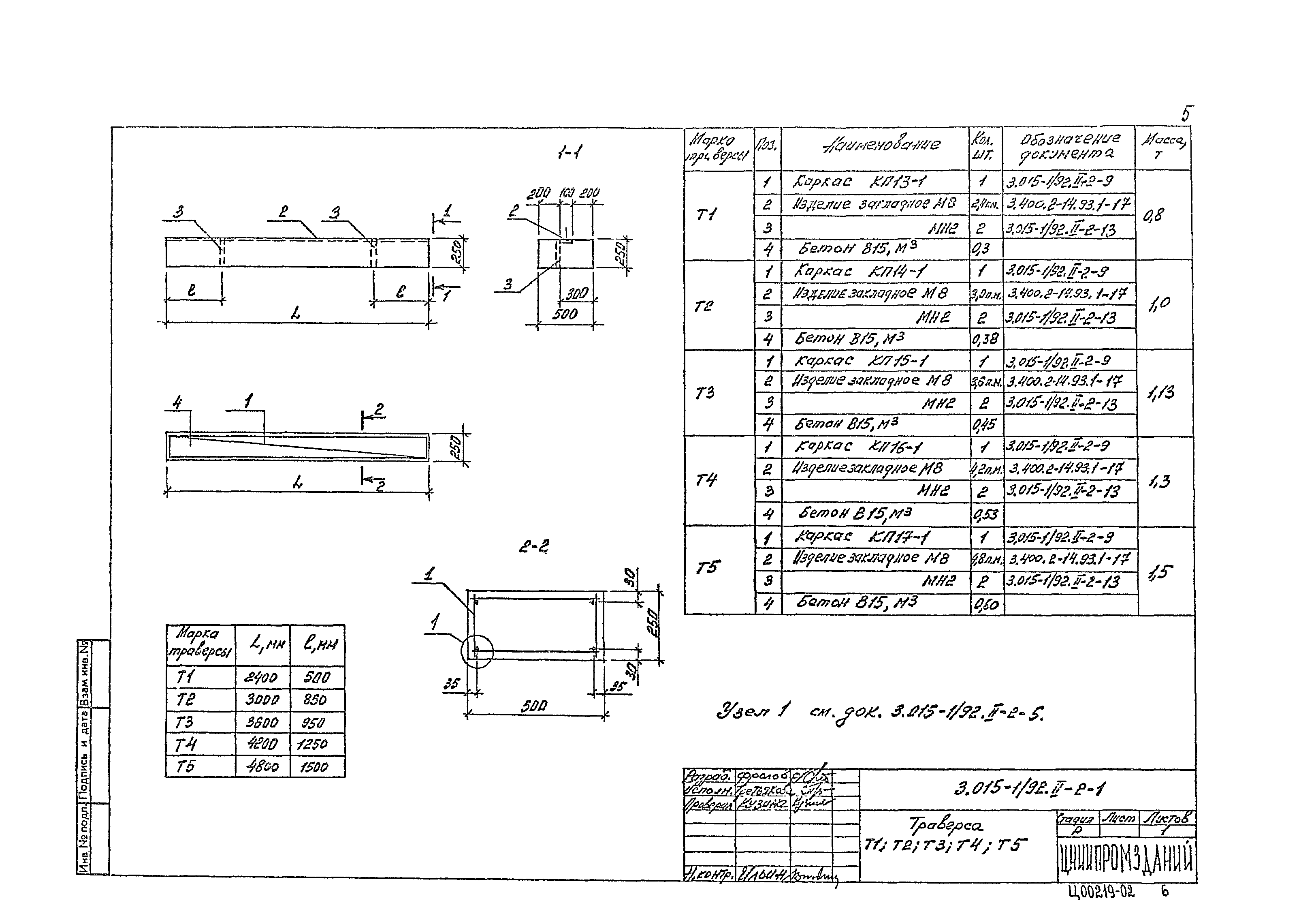
Скачать Серия 3.015-1/92 Выпуск II-2. Сборные железобетонные траверсы. Рабочие чертежи

Дата актуализации: 10.08.2017

Серия 3.015-1/92

Выпуск II-2. Сборные железобетонные траверсы. Рабочие чертежи

Обозначение: Серия 3.015-1/92
Обозначение англ: Series 3.015-1/92
Статус:не определен законодательством
Название рус.:Выпуск II-2. Сборные железобетонные траверсы. Рабочие чертежи
Дата добавления в базу:01.09.2013
Дата актуализации:05.05.2017
Дата введения:01.07.1994
Разработан: АО ЦНИИпромзданий
Утверждён:18.03.1994 Главпроект Госстроя России (9-3-2/54)
Расположен в:Техническая документация Строительство Справочные документы Типовые строительные конструкции, изделия и узлы Общероссийский строительный каталог Строительные конструкции, изделия и узлы зданий и сооружений для всех видов строительства Конструкции и изделия сооружений и оборудования зданий Надземные сооружения Опоры и эстакады под технологические трубопроводы
Заменяет собой:
Серия 3.015-1/92Серия 3.015-1/92Серия 3.015-1/92Серия 3.015-1/92Серия 3.015-1/92Серия 3.015-1/92Серия 3.015-1/92Серия 3.015-1/92Серия 3.015-1/92Серия 3.015-1/92Серия 3.015-1/92Серия 3.015-1/92Серия 3.015-1/92Серия 3.015-1/92Серия 3.015-1/92Серия 3.015-1/92Серия 3.015-1/92Серия 3.015-1/92Серия 3.015-1/92Серия 3.015-1/92

© 2013 Ёшкин Кот :-) Карта сайта