Информационная система
«Ёшкин Кот»

Скачать базу одним архивом
Скачать обновления
История создания базы
Карта сайта

Скачать Серия 1.426.2-6 Выпуск 2. Балки пролетом 12 м. Чертежи КМ

Дата актуализации: 10.08.2017

Серия 1.426.2-6

Выпуск 2. Балки пролетом 12 м. Чертежи КМ

Обозначение: Серия 1.426.2-6
Обозначение англ: Series 1.426.2-6
Статус:действует
Название рус.:Выпуск 2. Балки пролетом 12 м. Чертежи КМ
Дата добавления в базу:01.09.2013
Дата актуализации:05.05.2017
Оглавление:1.426.2-6.2-00ПЗКМ Пояснительная записка
1.426.2-6.2-01КМ Нагрузки от подвесных кранов
1.426.2-6.2-02КМ Данные для выбора марок балок путей подвесных кранов и их креплений
1.426.2-6.2-03КМ Данные для выбора марок монорельсов и их креплений
1.426.2-6.2-04КМ Схемы компоновки прямых участков подкранового пути и монорельсов
1.426.2-6.2-05КМ Пример схем путей подвесных кранов грузоподъемностью до 5 т в зданиях с покрытиями из ж.б. сегментных ферм по серии ПК-01-129/78 пролетом 18 м
1.426.2-6.2-06КМ Пример схем путей подвесных кранов грузоподъемностью до 5 т в зданиях с покрытиями из ж.б. сегментных ферм по серии ПК-01-129/78 пролетом 24 м
1.426.2-6.2-07КМ Пример схем путей подвесных кранов грузоподъемностью до 5 т в зданиях с покрытиями из ж.б. безраскосных стропильных ферм по серии 1.463.1-3/87 пролетом 18 и 24 м. Вариант 1
1.426.2-6.2-08КМ Пример схем путей подвесных кранов грузоподъемностью до 5 т в зданиях с покрытиями из ж.б. безраскосных стропильных ферм по серии 1.463.1-3/87 пролетом 18 и 24 м. Вариант 2
1.426.2-6.2-09КМ Пример схем путей подвесных кранов грузоподъемностью до 5 т в зданиях с покрытиями из стальных ферм с поясами из тавров и уголков
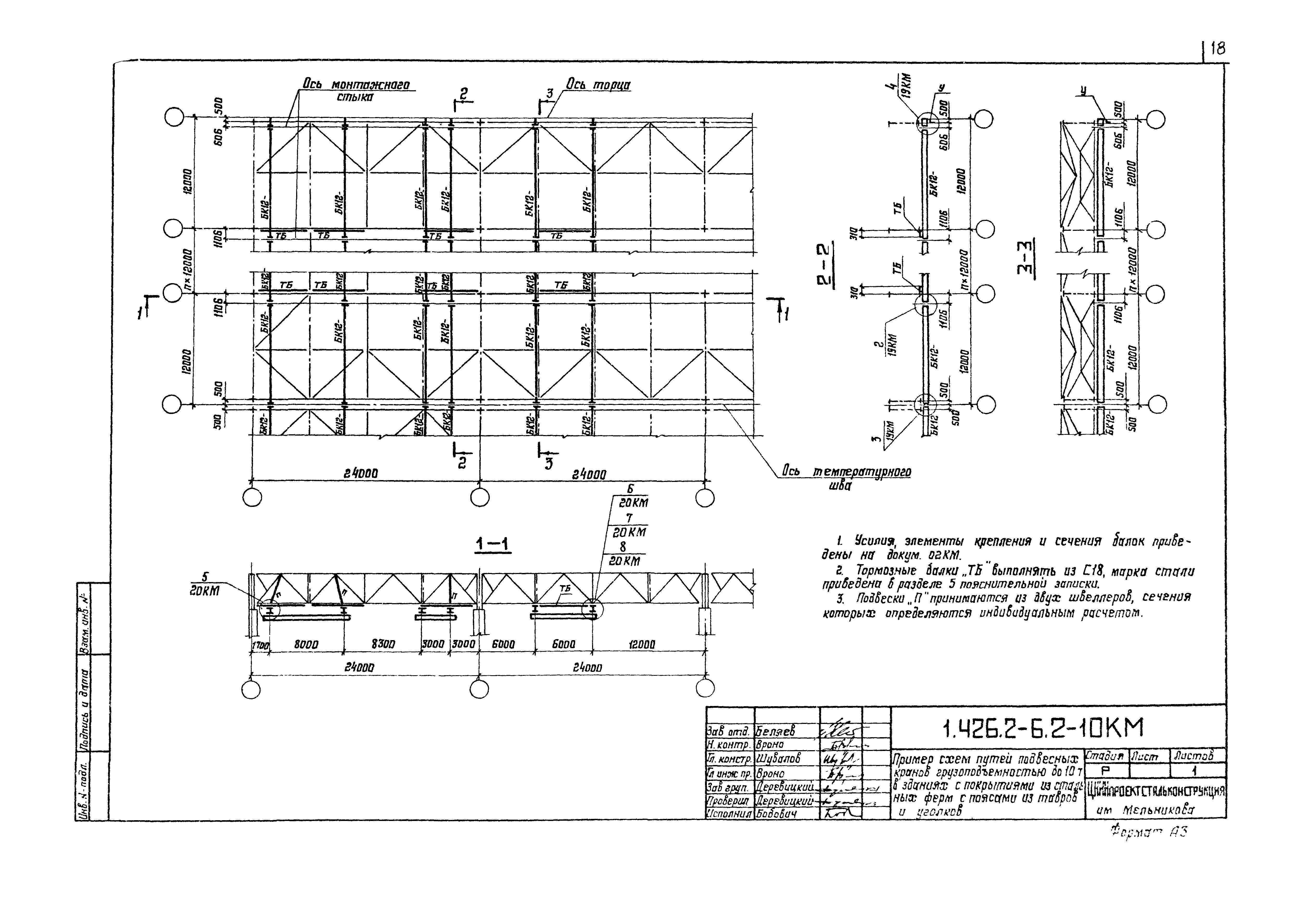
1.426.2-6.2-10КМ Пример схем путей подвесных кранов грузоподъемностью до 10 т в зданиях с покрытиями из стальных ферм с поясами из тавров и уголков
1.426.2-6.2-11КМ Схемы путей подвесных кранов грузоподъемностью до 5 т в зданиях пролетом 18 м с каркасами типа "Канск" по шифру 11-2537КМ
1.426.2-6.2-12КМ Схемы путей подвесных кранов грузоподъемностью до 5 т в зданиях пролетом 24 м с каркасами типа "Канск" по шифру 11-2537КМ
1.426.2-6.2-13КМ Пример схем монорельсов в зданиях с покрытиями из ж.б. сегментных стропильных ферм по серии 7К-01-129/78 пролетами 18 и 24 м
1.426.2-6.2-14КМ Пример схем монорельсов в зданиях с покрытиями из ж.б. безраскосных стропильных ферм по серии 1.463.1-3/87 пролетами 18 и 24 м
1.426.2-6.2-15КМ Пример схем монорельсов в зданиях с покрытиями из стальных ферм с поясами из тавров и уголков
1.426.2-6.2-16КМ Пример схем криволинейных участков монорельсового пути в зданиях с покрытием из ж.б. сегментных ферм
1.426.2-6.2-17КМ Пример схем криволинейных участков подвесного монорельсового пути в зданиях с покрытием из стальных ферм с поясами из тавров и уголков
1.426.2-6.2-18КМ Отправочные элементы балок подкрановых путей и монорельсов
1.426.2-6.2-19КМ Узлы 2,3,4
1.426.2-6.2-20КМ Узлы 5...14
1.426.2-6.2-21КМ Геометрические характеристики балок подкрановых путей и монорельсов
1.426.2-6.2-22КМ Расчетные нагрузки на фермы от подвесных кранов
1.426.2-6.2-23КМ Нагрузки от подвесных кранов первой категории по ГОСТ 7890-84
Разработан: ЦНИИПСК им. Мельникова
Утверждён:13.01.1989 Госстрой СССР (Государственный комитет Совета Министров СССР по делам строительства) (USSR Gosstroy 4/6-82)
Издан: ЦИТП Госстроя СССР (CITP, Gosstroy (USSR) 1989 г. )
Расположен в:Техническая документация Строительство Справочные документы Типовые строительные конструкции, изделия и узлы Общероссийский строительный каталог Строительные конструкции, изделия и узлы зданий и сооружений для всех видов строительства Конструкции, изделия и узлы зданий Несущие конструкции одноэтажных зданий Балки подкрановых путей подвесного транспорта
Серия 1.426.2-6Серия 1.426.2-6Серия 1.426.2-6Серия 1.426.2-6Серия 1.426.2-6Серия 1.426.2-6Серия 1.426.2-6Серия 1.426.2-6Серия 1.426.2-6Серия 1.426.2-6Серия 1.426.2-6Серия 1.426.2-6Серия 1.426.2-6Серия 1.426.2-6Серия 1.426.2-6Серия 1.426.2-6Серия 1.426.2-6Серия 1.426.2-6Серия 1.426.2-6Серия 1.426.2-6Серия 1.426.2-6Серия 1.426.2-6Серия 1.426.2-6Серия 1.426.2-6Серия 1.426.2-6Серия 1.426.2-6Серия 1.426.2-6Серия 1.426.2-6Серия 1.426.2-6Серия 1.426.2-6Серия 1.426.2-6Серия 1.426.2-6Серия 1.426.2-6Серия 1.426.2-6Серия 1.426.2-6

© 2013 Ёшкин Кот :-) Карта сайта