| ||||||||||||||||||||||||||||||||
Скачать Серия 1.424.1-5 Выпуск 1. Колонны для зданий высотой 8,4; 9,6 и 10,8 м. Рабочие чертежиДата актуализации: 10.08.2017
|
| Обозначение: | Серия 1.424.1-5 |
| Обозначение англ: | Series 1.424.1-5 |
| Статус: | не действует |
| Название рус.: | Выпуск 1. Колонны для зданий высотой 8,4; 9,6 и 10,8 м. Рабочие чертежи |
| Дата добавления в базу: | 01.09.2013 |
| Дата актуализации: | 05.05.2017 |
| Дата введения: | 01.04.1984 |
| Дата окончания срока действия: | 01.07.1988 |
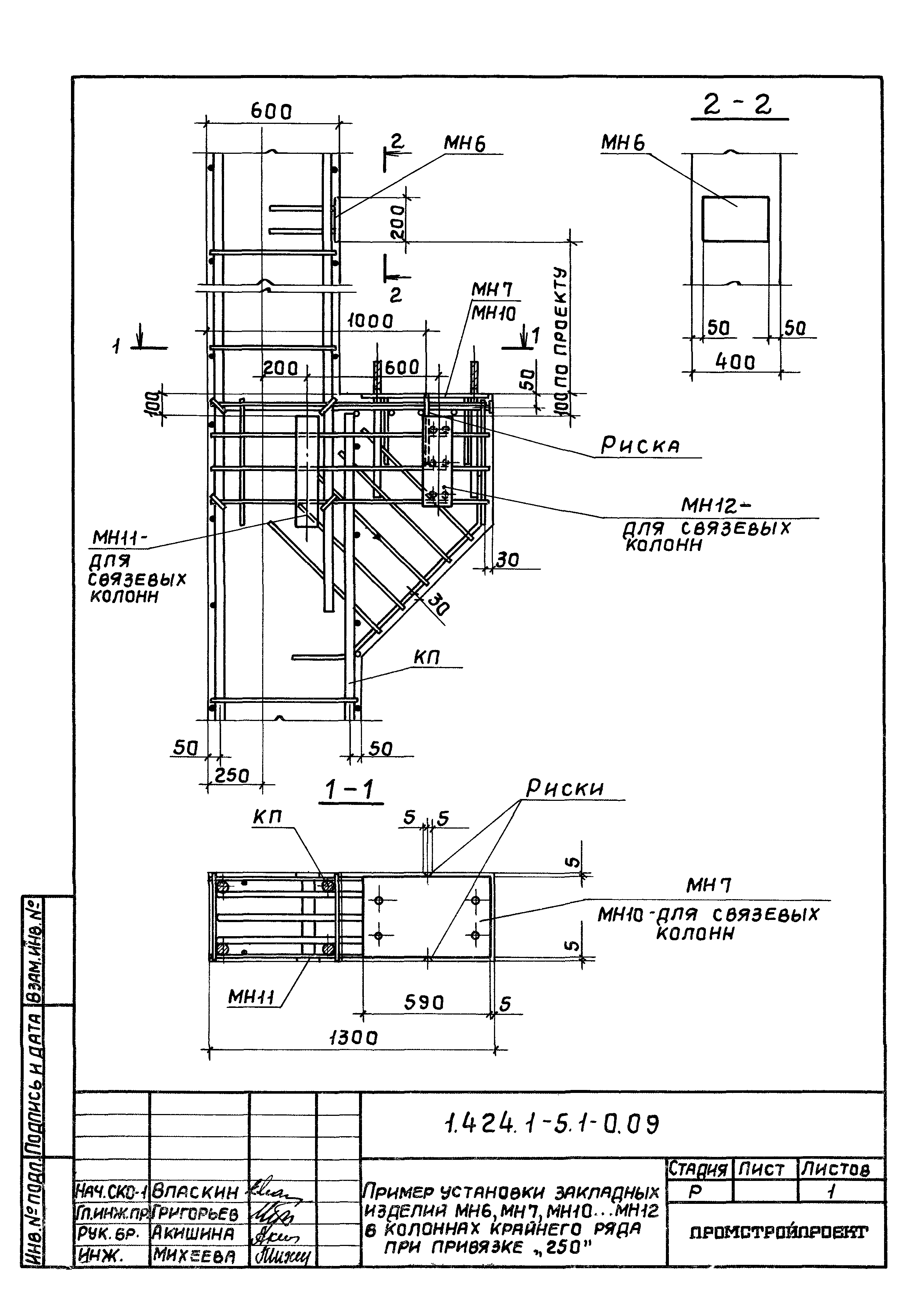
| Оглавление: | 1.424.1-5.1-0.00ТО Техническое описание 1.424.1-5.1-1.00 Колонна крайняя 1К84-1…1К84-6, 2К84-1…2К84-7, 1К96-1…1К96-7, 2К96-1…2К96-7, 3К96-1…3К96-10 1.424.1-5.1-1.00СБ Колонна крайняя 1К84-1…1К84-6, 2К84-1…2К84-7, 1К96-1…1К96-7, 2К96-1…2К96-7, 3К96-1…3К96-10 Сборочный чертеж. 1.424.1-5.1-2.00 Колонна крайняя 1К108-1…1К108-6, 2К108-1…2К108-10, 3К108-1…3К108-12 1.424.1-5.1-2.00СБ Колонна крайняя 1К108-1…1К108-6, 2К108-1…2К108-10, 3К108-1…3К108-12 Сборочный чертеж. 1.424.1-5.1-3.00 Колонна крайняя 3К84-1…3К84-7, 4К84-1…4К84-6, 4К96-1…4К96-6, 5К96-1…5К96-9, 6К96-1…6К96-8, 4К108-1…4К108-13 1.424.1-5.1-3.00СБ Колонна крайняя 3К84-1…3К84-7, 4К84-1…4К84-6, 4К96-1…4К96-6, 5К96-1…5К96-9, 6К96-1…6К96-8, 4К108-1…4К108-13 Сборочный чертеж. 1.424.1-5.1-4.00 Колонна крайняя 5К108-1…5К108-6, 6К108-1…6К108-12, 7К108-1…7К108-20 1.424.1-5.1-4.00СБ Колонна крайняя 5К108-1…5К108-6, 6К108-1…6К108-12, 7К108-1…7К108-20 Сборочный чертеж. 1.424.1-5.1-5.00 Колонна средняя 5К84-1…5К84-4, 6К84-1…6К84-4, 7К96-1…7К96-4, 8К96-1…8К96-5, 9К96-1…9К96-4 1.424.1-5.1-5.00СБ Колонна средняя 5К84-1…5К84-4, 6К84-1…6К84-4, 7К96-1…7К96-4, 8К96-1…8К96-5, 9К96-1…9К96-4 Сборочный чертеж. 1.424.1-5.1-6.00 Колонна средняя 7К84-1…7К84-9, 8К84-1…8К84-16, 10К96-1…10К96-8, 11К96-1…11К96-14, 12К96-1…12К96-16, 8К108-1…8К108-3, 9К108-1…9К108-4, 10К108-1…10К108-10 1.424.1-5.1-6.00СБ Колонна средняя 7К84-1…7К84-9, 8К84-1…8К84-16, 10К96-1…10К96-8, 11К96-1…11К96-14, 12К96-1…12К96-16, 8К108-1…8К108-3, 9К108-1…9К108-4, 10К108-1…10К108-10 Сборочный чертеж. 1.424.1-5.1-7.00 Колонна средняя 9К84-1…9К84-4, 10К84-1…10К84-8, 13К96-1…13К96-3, 14К96-1…14К96-7, 15К96-1…15К96-6 1.424.1-5.1-7.00СБ Колонна средняя 9К84-1…9К84-4, 10К84-1…10К84-8, 13К96-1…13К96-3, 14К96-1…14К96-7, 15К96-1…15К96-6 Сборочный чертеж. 1.424.1-5.1-8.00 Колонна средняя 11К108-1…11К108-10, 12К108-1…12К108-16, 13К108-1…13К108-32 1.424.1-5.1-8.00СБ Колонна средняя 11К108-1…11К108-10, 12К108-1…12К108-16, 13К108-1…13К108-32 Сборочный чертеж. 1.424.1-5.1-9.00 Колонна средняя 14К108-1…14К108-3, 15К108-1…15К108-7, 16К108-1…16К108-15 1.424.1-5.1-9.00СБ Колонна средняя 14К108-1…14К108-3, 15К108-1…15К108-7, 16К108-1…16К108-15 Сборочный чертеж. 1.424.1-5.1-0.01 Пример установки закладных изделий М2-23, М2-32 в колоннах крайнего ряда при привязке "0" 1.424.1-5.1-0.02 Пример установки закладных изделий М2-11, МН13 в колоннах крайнего ряда при привязке "0" и "250" 1.424.1-5.1-0.03 Пример установки закладных изделий М2-23, М2-32 в колоннах крайнего ряда при привязке "250" 1.424.1-5.1-0.04 Пример установки закладных изделий МН15, М2-25, М2-33 в колоннах среднего ряда 1.424.1-5.1-0.05 Пример установки закладных изделий МН16, М2-13 в колоннах среднего ряда 1.424.1-5.1-0.06 Пример установки закладных изделий МН1, МН3, МН4, МН8, МН11, МН12 в колоннах крайнего ряда при привязке "0" 1.424.1-5.1-0.07 Пример установки закладных изделий МН6, МН7, МН10...МН12 в колоннах крайнего ряда при привязке "0" 1.424.1-5.1-0.08 Пример установки закладных изделий МН6, МН7, МН10, МН11 в колоннах среднего ряда 1.424.1-5.1-0.09 Пример установки закладных изделий МН6, МН7, МН10...МН12 в колоннах крайнего ряда при привязке "250" 1.424.1-5.1-0.10 Пример установки закладных изделий МН1, МН3, МН4, МН8, МН11, МН12 в колоннах крайнего ряда при привязке "250" 1.424.1-5.1-0.11 Пример установки закладных изделий МН2, МН3, МН5, МН9, МН11, МН12 в колоннах крайнего ряда при привязке "250" и шаге колонн 12 м 1.424.1-5.1-0.12 Пример установки закладных изделий МН1, МН3, МН8, МН11 в колоннах среднего ряда 1.424.1-5.1-0.13 Пример установки закладных изделий МН2, МН3, МН9, МН11 в колоннах среднего ряда 1.424.1-5.1-0.14 Пример установки закладных изделий М1-14 и МН19...МН25 1.424.1-5.1-0.15 Пример установки закладных изделий МН11 и МН17 1.424.1-5.1-0.16 Пример установки закладного изделия М1-12 1.424.1-5.1-0.17 Петли для монтажа колонн 1.424.1-5.1-0.008МС Выборка стали на колонны |
| Разработан: | НИИЖБ ГПИ Промстройпроект |
| Утверждён: | 28.10.1983 Госстрой СССР (Государственный комитет Совета Министров СССР по делам строительства) (USSR Gosstroy 291) |
| Расположен в: | |
| Заменяет собой: | |
| Чем заменён: |




















































































