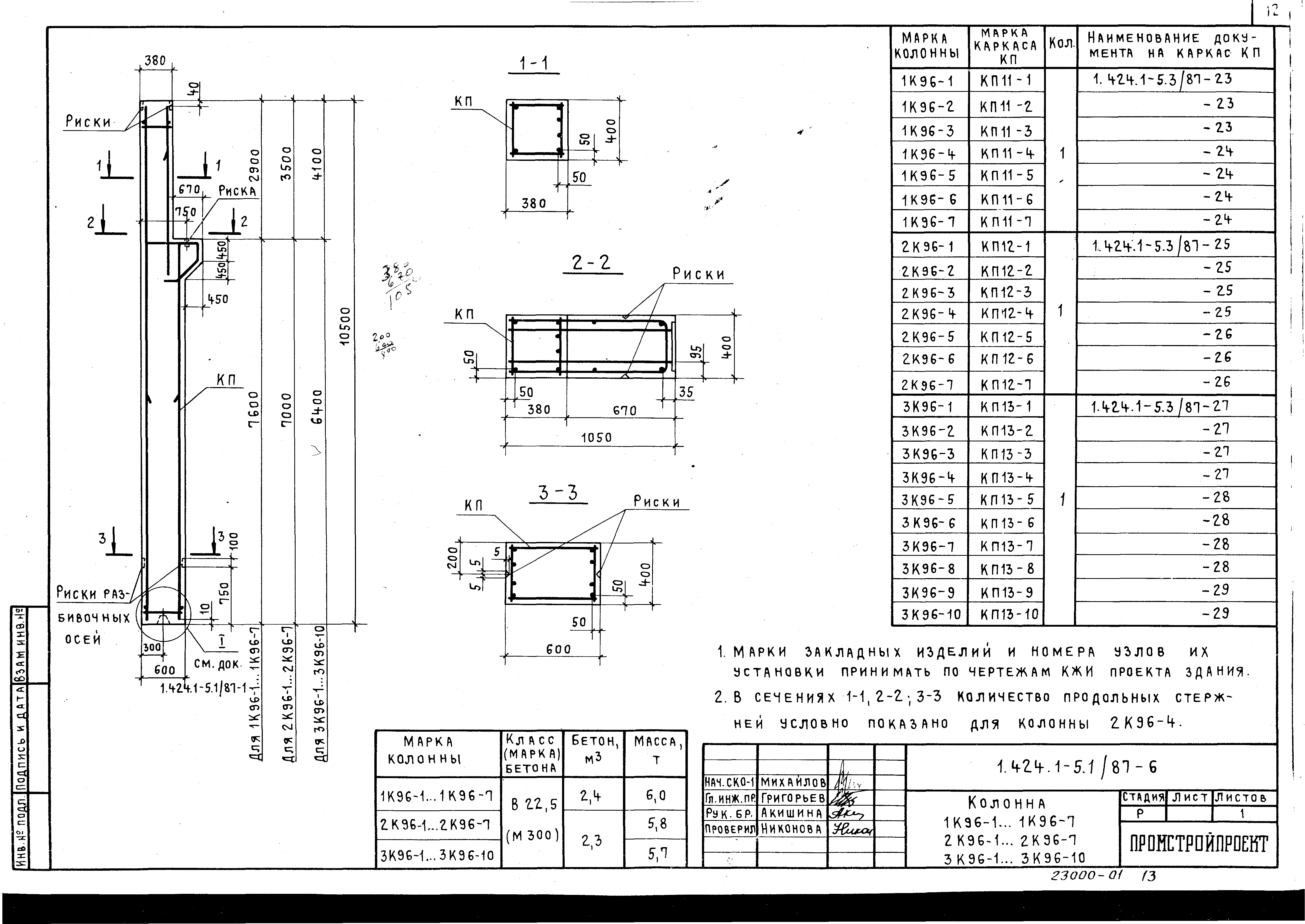
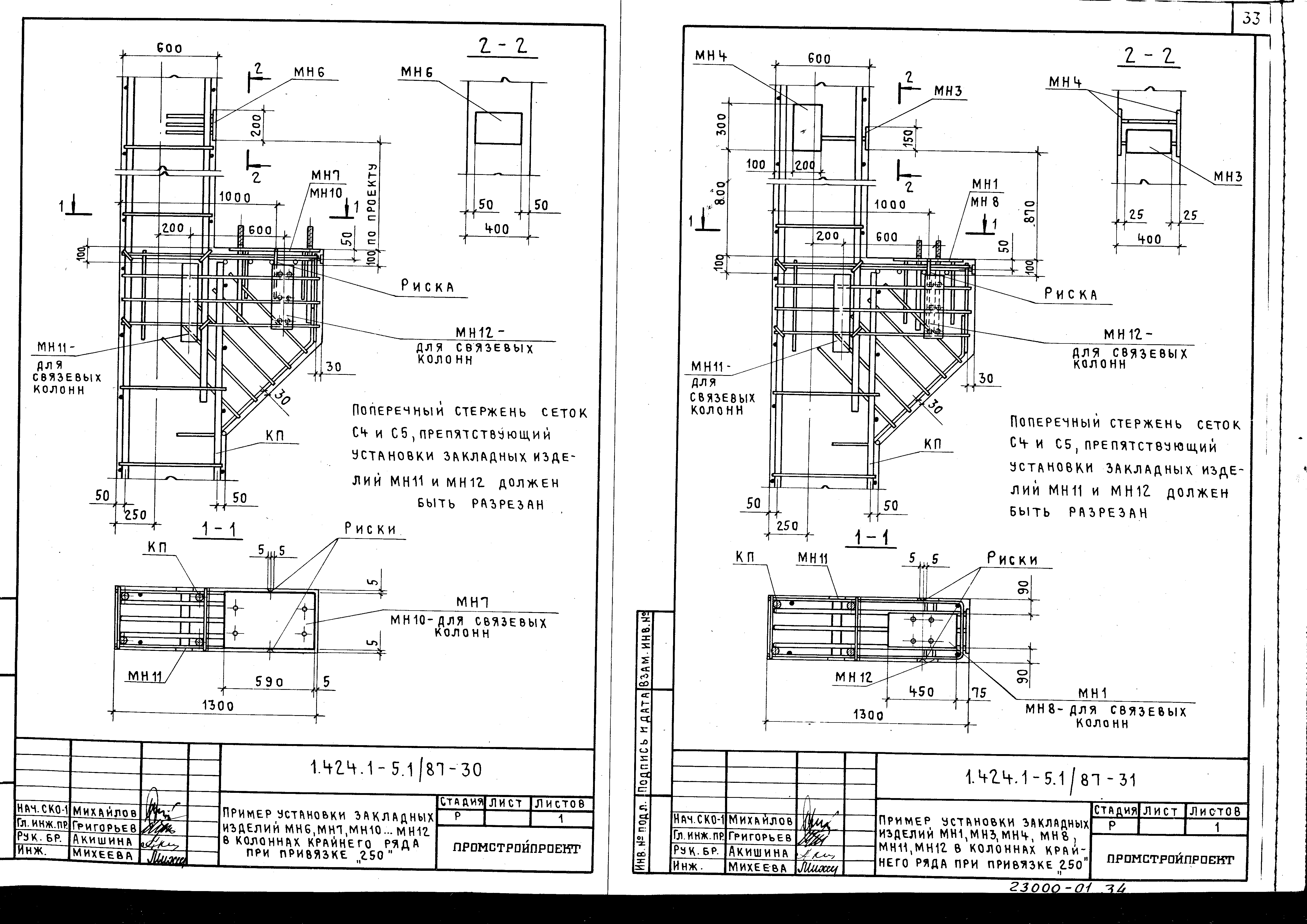
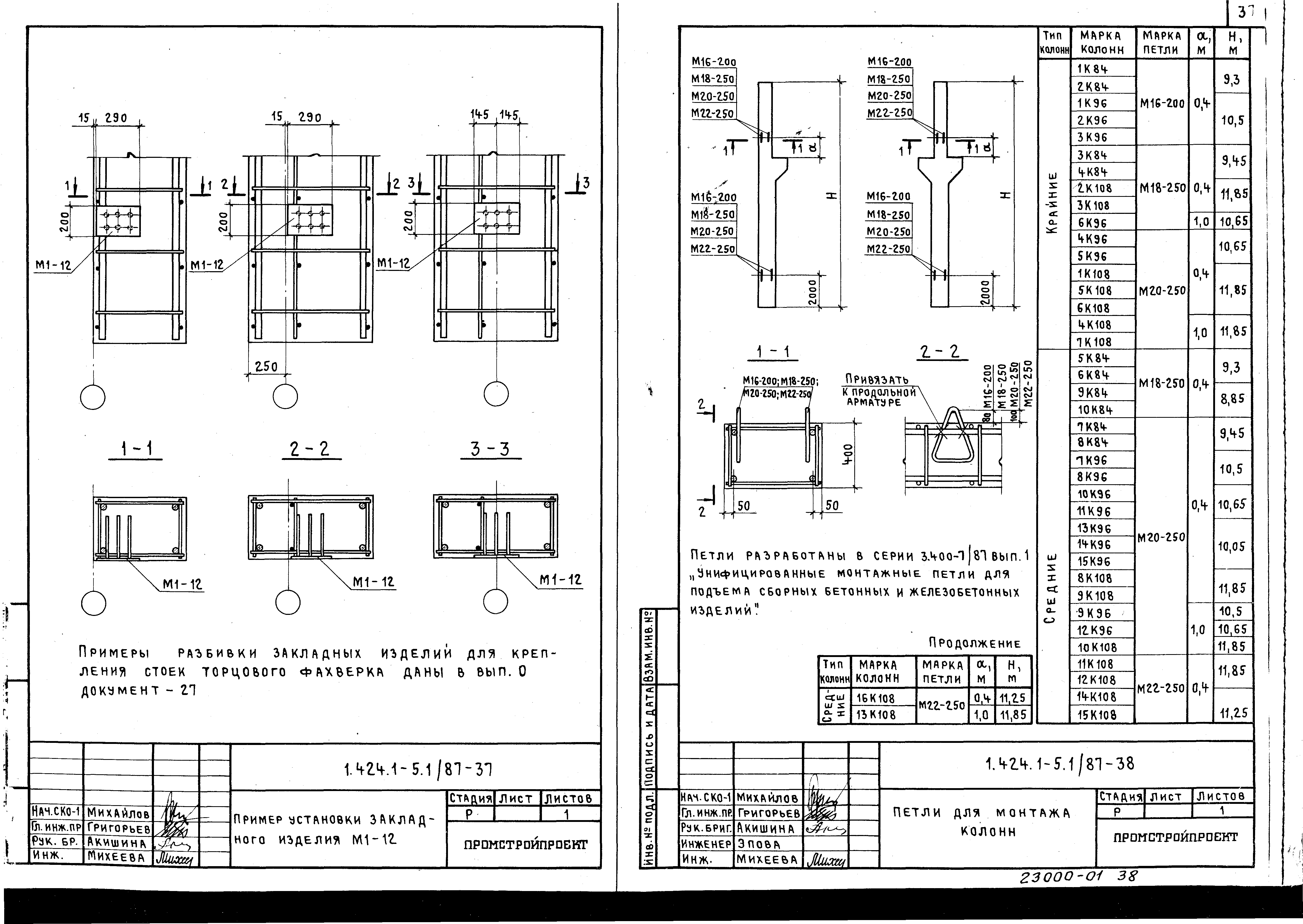
Скачать Серия 1.424.1-5 Выпуск 1/87. Колонны для зданий высотой 8,4; 9,6 и 10,8 м. Рабочие чертежиДата актуализации: 10.08.2017 Серия 1.424.1-5
Выпуск 1/87. Колонны для зданий высотой 8,4; 9,6 и 10,8 м. Рабочие чертежи| Обозначение: | Серия 1.424.1-5 | | Обозначение англ: | Series 1.424.1-5 | | Статус: | не определен законодательством | | Название рус.: | Выпуск 1/87. Колонны для зданий высотой 8,4; 9,6 и 10,8 м. Рабочие чертежи | | Дата добавления в базу: | 01.09.2013 | | Дата актуализации: | 05.05.2017 | | Дата введения: | 01.04.1988 | | Разработан: | НИИЖБ ГПИ Промстройпроект
| | Утверждён: | 03.12.1987 Госстрой СССР (Государственный комитет Совета Министров СССР по делам строительства) (USSR Gosstroy АЧ-99)
| | Издан: | ЦИТП Госстроя СССР (CITP, Gosstroy (USSR) 1988 г. )
| | Расположен в: |
| | Заменяет собой: | |
                                                     
|