| ||||||||||||||||||||||||||||||||||
Скачать ГОСТ 8.586.5-2005 Государственная система обеспечения единства измерений. Измерение расхода и количества жидкостей и газов с помощью стандартных сужающих устройств. Часть 5. Методика выполнения измеренийДата актуализации: 10.08.2017
|
| Обозначение: | ГОСТ 8.586.5-2005 |
| Обозначение англ: | GOST 8.586.5-2005 |
| Статус: | действует |
| Название рус.: | Государственная система обеспечения единства измерений. Измерение расхода и количества жидкостей и газов с помощью стандартных сужающих устройств. Часть 5. Методика выполнения измерений |
| Название англ.: | State system for ensuring the uniformity of measurements. Measurements of liquids and gases flow rate and quantity by means of orifice instruments. Part 5. Measurement procedure |
| Дата добавления в базу: | 01.09.2013 |
| Дата актуализации: | 05.05.2017 |
| Дата введения: | 01.01.2007 |
| Область применения: | Стандарт устанавливает методику выполнения измерений расхода и количества жидкостей и газов с помощью следующих технических средств: - стандартного сужающего устройства; - измерительного трубопровода; - средств измерений перепада давления, параметров состояния среды и ее характеристик; - средств обработки результатов измерений; - соединительных линий; - вспомогательных технических устройств. |
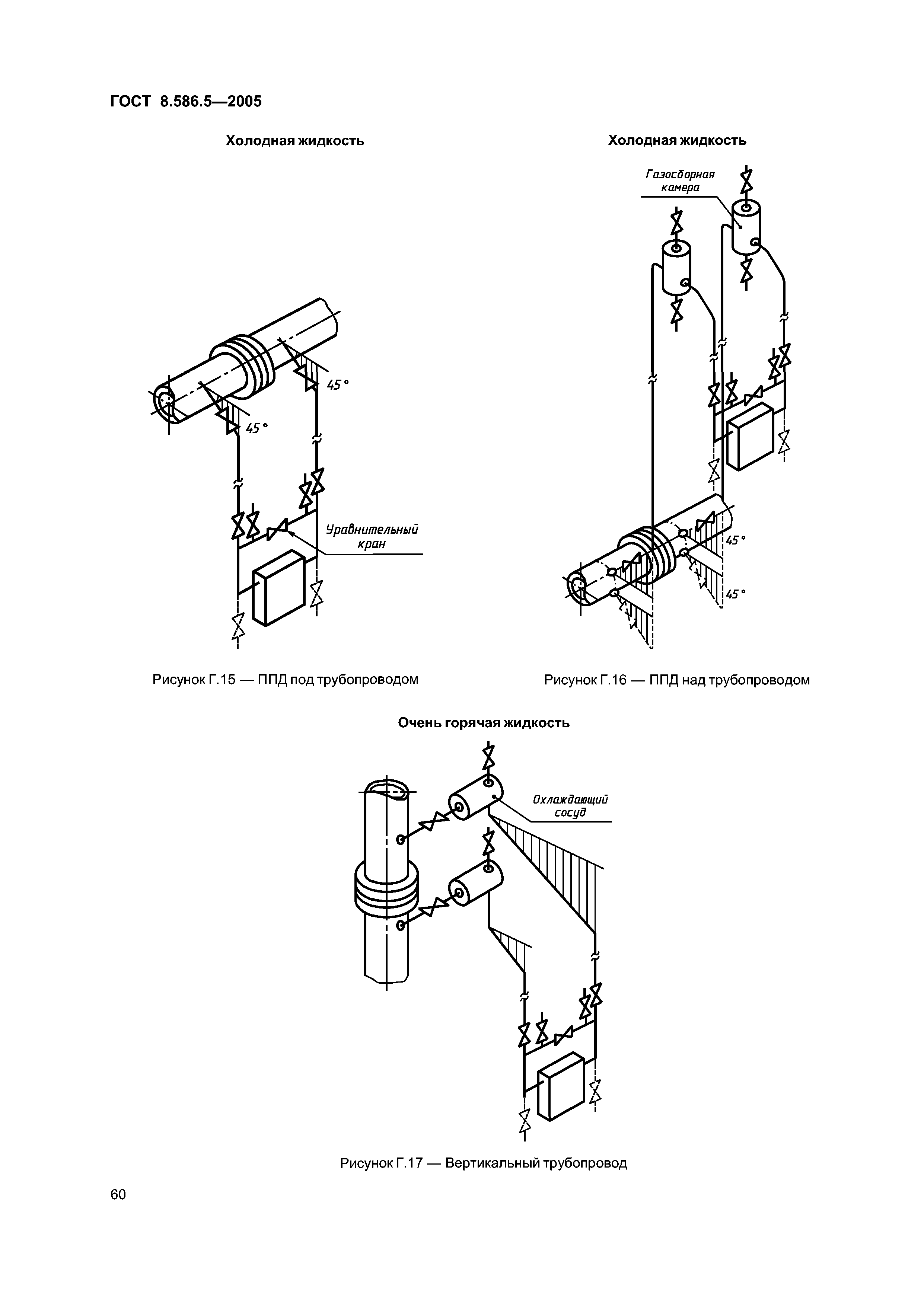
| Оглавление: | 1 Область применения 2 Нормативные ссылки 3 Термины, определения, условные обозначения, сокращения и единицы величин 3.1 Термины и определения 3.2 Условные обозначения 3.3 Индексы условных обозначений величин 3.4 Сокращения 3.5 Единицы величин 4 Условия проведения измерений 5 Метод измерений 5.1 Принцип метода 5.2 Формулы для расчета расхода среды 5.3 Формулы для расчета количества среды 5.4 Формулы для расчета энергосодержания горючих газов 6 Средства измерений и требования к их монтажу 6.1 Общие положения 6.2 Средства измерений перепада давления и давления 6.3 Средства измерений температуры 6.4 Средства измерений плотности, состава и влажности среды 6.5 Вычислительные устройства 7 Подготовка к измерениям 8 Обработка результатов измерений 8.1 Расчет расхода среды 8.2 Расчет количества среды с помощью вычислительных устройств 8.3 Расчет количества среды по результатам планиметрирования диаграмм 8.4 Представления результатов измерений и расчетов 9 Требования безопасности и требования к квалификации оператора 10 Оценка неопределенности результатов измерений 10.1 Общие положения 10.2 Формулы для расчета неопределенности расхода среды 10.3 Составляющие неопределенности расхода среды 10.4 Оценка неопределенности результатов определения количества среды Приложение А Соотношение между единицамитеплофизических величин Приложение Б Зависимости, используемые при расчете расхода и количества сухой части влажного газа Приложение В Схемы установок разделительных сосудов Приложение Г Схемы присоединения измерительного преобразователя перепада давления или дифманометра Приложение Д Примеры расчета расхода и количества среды Приложение Е Планиметрирование диаграмм и обработка показаний интегрирующих устройств Приложение Ж измерение количества среды при нестационарном потоке Библиография |
| Разработан: | ФГУП ВНИИР ООО ОМЦ Газметрология Укрметртестстандарт Национальный университет Львовская политехника |
| Утверждён: | 09.12.2005 Межгосударственный Совет по стандартизации, метрологии и сертификации (Inter-Governmental Council on Standardization, Metrology, and Certification 28) 31.10.2006 Федеральное агентство по техническому регулированию и метрологии (237-ст) |
| Издан: | Стандартинформ (2007 г. ) |
| Расположен в: | |
| Нормативные ссылки: |
|




























































































