Информационная система
«Ёшкин Кот»

Скачать базу одним архивом
Скачать обновления
История создания базы
Карта сайта

Скачать Серия 1.132.1-12с Выпуск 1-8. Панели группы С-НТ1 и С-НТ4 толщиной 350 мм

Дата актуализации: 10.08.2017

Серия 1.132.1-12с

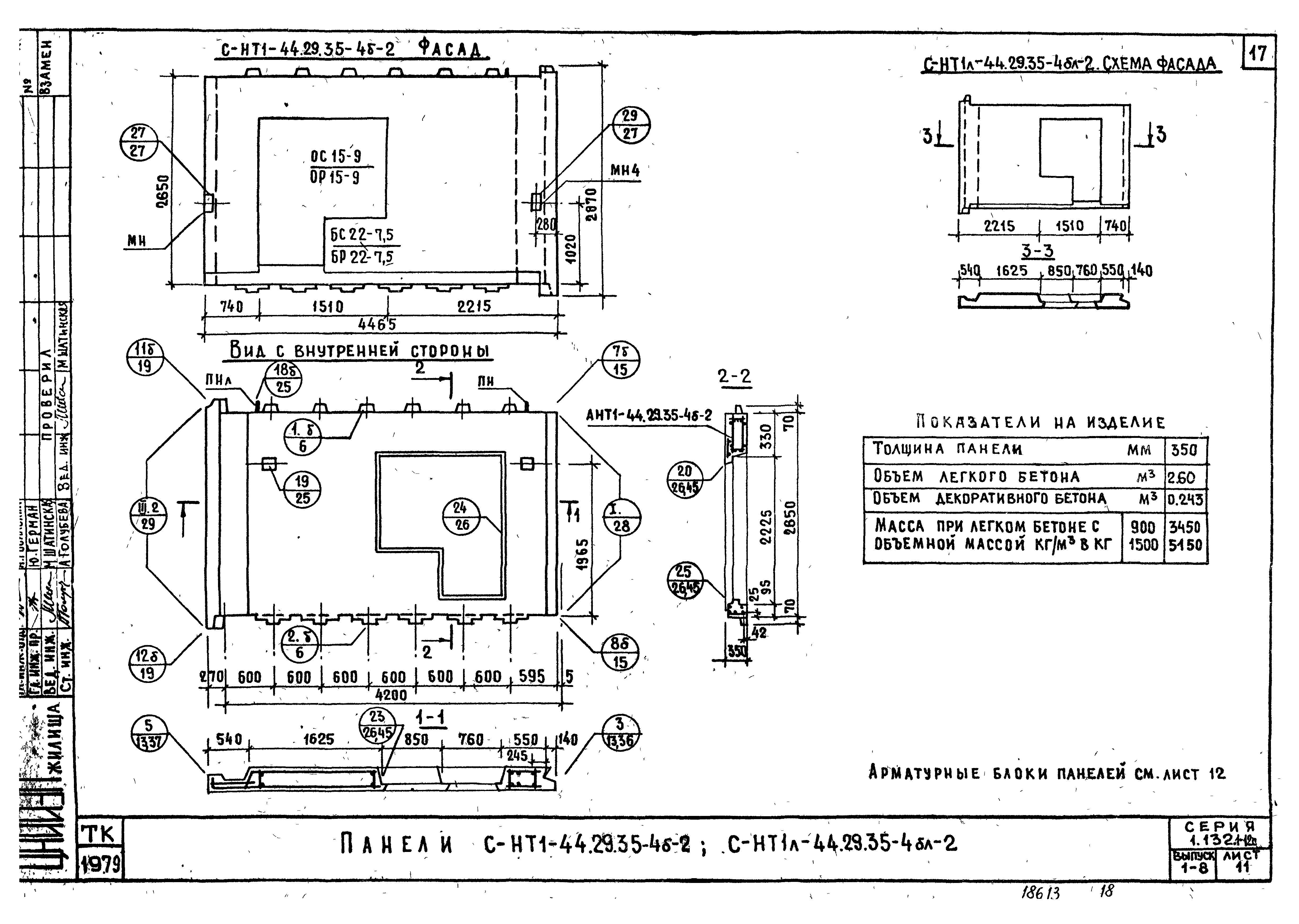
Выпуск 1-8. Панели группы С-НТ1 и С-НТ4 толщиной 350 мм

Обозначение: Серия 1.132.1-12с
Обозначение англ: Series 1.132.1-12с
Статус:действует
Название рус.:Выпуск 1-8. Панели группы С-НТ1 и С-НТ4 толщиной 350 мм
Дата добавления в базу:01.09.2013
Дата актуализации:05.05.2017
Область применения:В выпуске 1-8 предоставлены рабочие чертежи наружных стеновых панелей группы С-НТ1 и С-НТ4 толщиной 350 мм
Разработан: ЦНИИСК им. В.А. Кучеренко
ЦНИИЭП жилища
Утверждён:28.01.1983 Госгражданстрой (Gosgrazhdanstroy 37)
Расположен в:Техническая документация Строительство Справочные документы Типовые строительные конструкции, изделия и узлы Общероссийский строительный каталог Строительные конструкции, изделия и узлы зданий и сооружений для всех видов строительства Конструкции, изделия и узлы зданий Ограждающие конструкции Стены наружные Панели (бетонные и железобетонные)
Нормативные ссылки:
Серия 1.132.1-12сСерия 1.132.1-12сСерия 1.132.1-12сСерия 1.132.1-12сСерия 1.132.1-12сСерия 1.132.1-12сСерия 1.132.1-12сСерия 1.132.1-12сСерия 1.132.1-12сСерия 1.132.1-12сСерия 1.132.1-12сСерия 1.132.1-12сСерия 1.132.1-12сСерия 1.132.1-12сСерия 1.132.1-12сСерия 1.132.1-12сСерия 1.132.1-12сСерия 1.132.1-12сСерия 1.132.1-12сСерия 1.132.1-12сСерия 1.132.1-12сСерия 1.132.1-12сСерия 1.132.1-12сСерия 1.132.1-12сСерия 1.132.1-12сСерия 1.132.1-12сСерия 1.132.1-12сСерия 1.132.1-12сСерия 1.132.1-12сСерия 1.132.1-12сСерия 1.132.1-12сСерия 1.132.1-12сСерия 1.132.1-12сСерия 1.132.1-12сСерия 1.132.1-12с

© 2013 Ёшкин Кот :-) Карта сайта