| ||||||||||||||||||||||||||||||||||
Скачать ГОСТ 11214-78 Окна и балконные двери деревянные с двойным остеклением для жилых и общественных зданий. Типы, конструкция и размерыДата актуализации: 10.08.2017
|
| Обозначение: | ГОСТ 11214-78 |
| Обозначение англ: | GOST 11214-78 |
| Статус: | заменен |
| Название рус.: | Окна и балконные двери деревянные с двойным остеклением для жилых и общественных зданий. Типы, конструкция и размеры |
| Название англ.: | Wooden windows and balcony doors of double glazing for dwellings and public buildings. Types construction and dimensions |
| Дата добавления в базу: | 01.10.2014 |
| Дата актуализации: | 05.05.2017 |
| Дата введения: | 01.01.1987 |
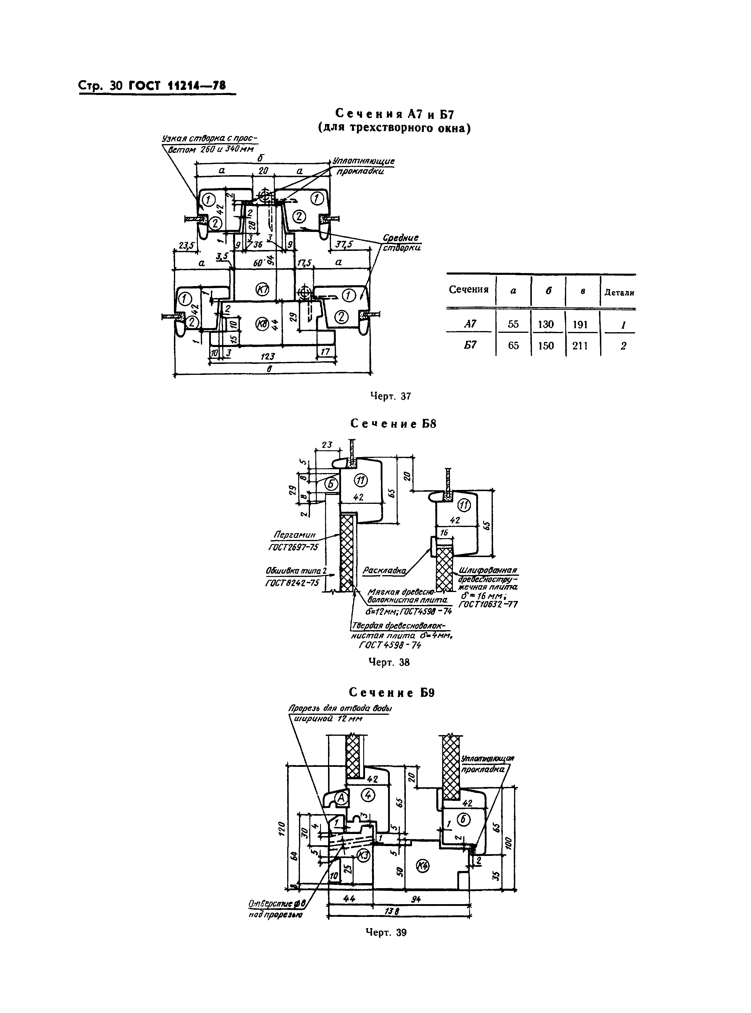
| Область применения: | Стандарт распространяется на деревянные окна и балконные двери с двойным остеклением, предназначаемые для жилых и общественных зданий, а также для вспомогательных зданий и помещений предприятий различных отраслей народного хозяйства. |
| Оглавление: | 1. Типы, размеры и марки 2. Требования к конструкции Приложение 1 (справочное) Габариты проемов и балконных дверей в наружных стенах жилых зданий Приложение 2 (справочное) Габариты проемов окон и балконных дверей в наружных стенах общественных зданий Приложение 3 (рекомендуемое) Расположение приборов в окнах и балконных дверях (примеры) Приложение 4 (справочное) Спецификация стекол для окон и балконных дверей жилых зданий Приложение 5 (справочное) Спецификация стекол для окон и балконных дверей общественных зданий |
| Утверждён: | 13.12.1978 Государственный комитет СССР по делам строительства (230) |
| Расположен в: | |
| Заменяет собой: |
|
| Чем заменён: | |
| Нормативные ссылки: |
|












































