Информационная система
«Ёшкин Кот»

Скачать базу одним архивом
Скачать обновления
История создания базы
Карта сайта

Скачать Серия 2.210-1 Выпуск 11. Деформационные и температурные швы цоколя и стен подвала каркасно-панельных зданий в конструкциях серии 1.020-1/83. Рабочие чертежи

Дата актуализации: 10.08.2017

Серия 2.210-1

Выпуск 11. Деформационные и температурные швы цоколя и стен подвала каркасно-панельных зданий в конструкциях серии 1.020-1/83. Рабочие чертежи

Обозначение: Серия 2.210-1
Обозначение англ: Series 2.210-1
Статус:действует
Название рус.:Выпуск 11. Деформационные и температурные швы цоколя и стен подвала каркасно-панельных зданий в конструкциях серии 1.020-1/83. Рабочие чертежи
Дата добавления в базу:01.09.2013
Дата актуализации:05.05.2017
Область применения:В настоящий выпуск включены типовые детали температурных и деформационных швов цоколя и стен подвалов каркасно-панельных общественных зданий I - V степени огнестойкости
Оглавление:2.210-1.11-00 Техническое описание
2.210-1.11-00 Д Маркировки типовых деталей на фрагментах подземной части зданий
2.210-1.11-01 Деталь ТД1
2.210-1.11-02 Деталь ТД2
2.210-1.11-03 Деталь ТД3
2.210-1.11-04 Деталь ТД4, ТД5
2.210-1.11-05 Деталь ТД6, ТД7
2.210-1.11-06 Деталь ТД8, ТД9
2.210-1.11-07 Деталь ТД10
2.210-1.11-08 Деталь ТД11… ТД14
2.210-1.11-09 Деталь ТД15… ТД18
2.210-1.11-10 Деталь ТД19
2.210-1.11-11 Деталь ТД20
2.210-1.11-12 Деталь ТД21
2.210-1.11-13 Деталь ТД22
2.210-1.11-14 Деталь ТД23
2.210-1.11-15 Деталь ТД24, ТД25
2.210-1.11-16 Деталь ТД26, ТД27
2.210-1.11-17 Деталь ТД28, ТД29
2.210-1.11-18 Деталь ТД30, ТД31
2.210-1.11-19 Деталь ТД32
2.210-1.11-20 Деталь ТД33
2.210-1.11-21 Деталь ТД34
2.210-1.11-22 Деталь ТД35
2.210-1.11-23 Деталь ТД36
2.210-1.11-24 Деталь ТД37, ТД38
2.210-1.11-25 Деталь ТД39, ТД40
2.210-1.11-26 Деталь ТД41
2.210-1.11-27 Деталь ТД42
2.210-1.11-28 Деталь ТД43
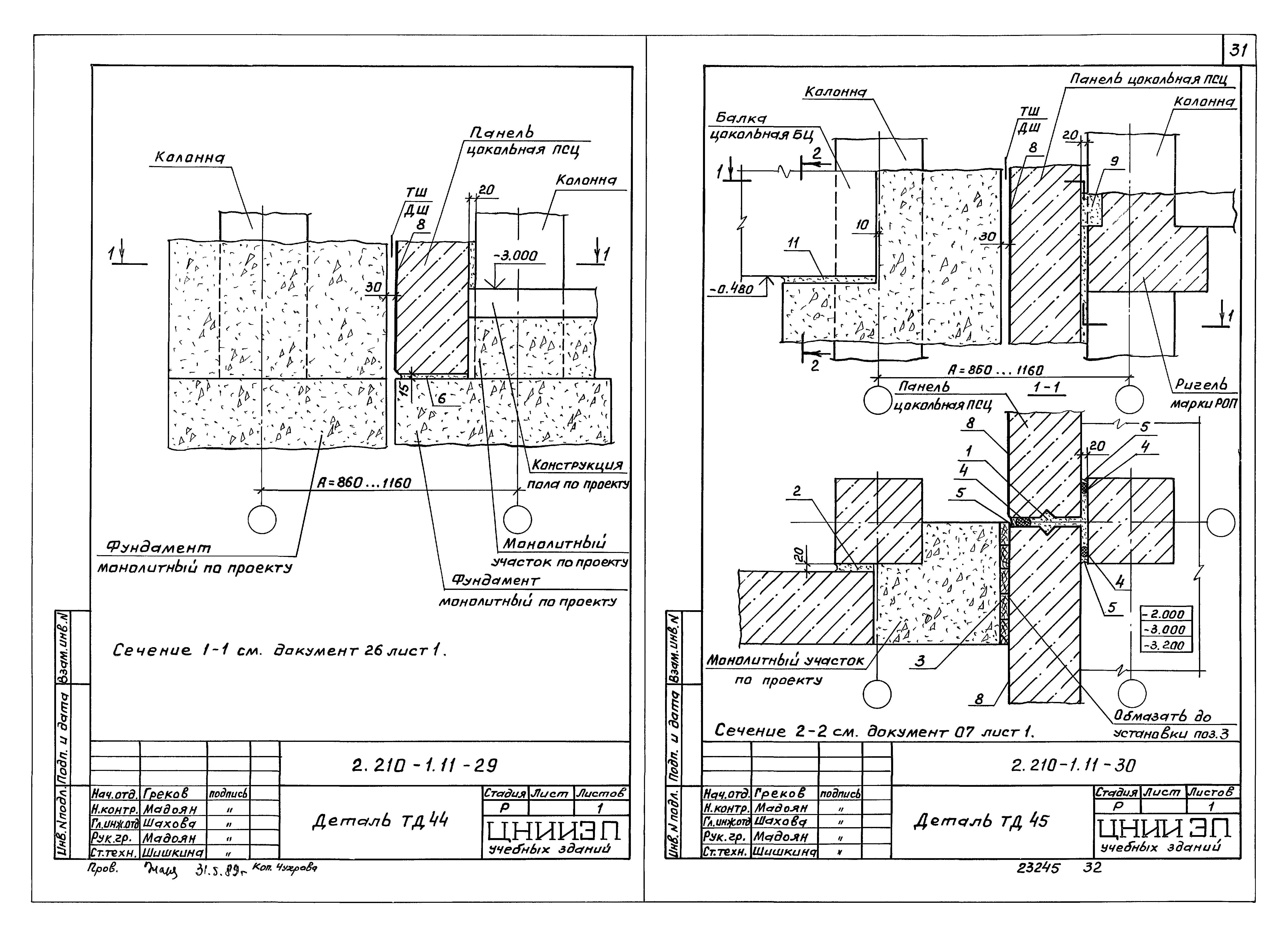
2.210-1.11-29 Деталь ТД44
2.210-1.11-30 Деталь ТД45
2.210-1.11-31 Деталь ТД46
2.210-1.11-32 Деталь ТД47
2.210-1.11-33 Деталь ТД48
2.210-1.11-34 Деталь ТД49… ТД52
2.210-1.11-35 Деталь ТД53… ТД56
2.210-1.11-36 Деталь ТД57, ТД58
2.210-1.11-37 Деталь ТД59
2.210-1.11-38 Деталь ТД60
2.210-1.11-39 Деталь ТД61, ТД62
2.210-1.11-40 Деталь ТД63
2.210-1.11-41 Деталь ТД64
2.210-1.11-42 Спецификация на деталь ТД1… ТД9
2.210-1.11-43 Спецификация на деталь ТД10… ТД18
2.210-1.11-44 Спецификация на деталь ТД19… ТД27
2.210-1.11-45 Спецификация на деталь ТД28… ТД36
2.210-1.11-46 Спецификация на деталь ТД37… ТД41
2.210-1.11-47 Спецификация на деталь ТД42… ТД50
2.210-1.11-48 Спецификация на деталь ТД51… ТД58
2.210-1.11-49 Спецификация на деталь ТД59… ТД64
Разработан: ЦНИИЭП учебных зданий Госгражданстроя
Утверждён:17.06.1988 Госкомархитектура (175)
Издан: ЦИТП Госстроя СССР (CITP, Gosstroy (USSR) 1988 г. )
Расположен в:Техническая документация Строительство Справочные документы Типовые строительные конструкции, изделия и узлы Общероссийский строительный каталог Строительные конструкции, изделия и узлы зданий и сооружений для всех видов строительства Конструкции, изделия и узлы зданий Конструкции нулевого цикла Детали фундаментов
Заменяет собой:
Нормативные ссылки:
Серия 2.210-1Серия 2.210-1Серия 2.210-1Серия 2.210-1Серия 2.210-1Серия 2.210-1Серия 2.210-1Серия 2.210-1Серия 2.210-1Серия 2.210-1Серия 2.210-1Серия 2.210-1Серия 2.210-1Серия 2.210-1Серия 2.210-1Серия 2.210-1Серия 2.210-1Серия 2.210-1Серия 2.210-1Серия 2.210-1Серия 2.210-1Серия 2.210-1Серия 2.210-1Серия 2.210-1Серия 2.210-1Серия 2.210-1Серия 2.210-1Серия 2.210-1Серия 2.210-1Серия 2.210-1Серия 2.210-1Серия 2.210-1Серия 2.210-1Серия 2.210-1Серия 2.210-1Серия 2.210-1Серия 2.210-1Серия 2.210-1Серия 2.210-1Серия 2.210-1Серия 2.210-1Серия 2.210-1Серия 2.210-1Серия 2.210-1Серия 2.210-1Серия 2.210-1Серия 2.210-1Серия 2.210-1Серия 2.210-1Серия 2.210-1

© 2013 Ёшкин Кот :-) Карта сайта