Информационная система
«Ёшкин Кот»

Скачать базу одним архивом
Скачать обновления
История создания базы
Карта сайта

Скачать Серия 1.117.1-14 Выпуск 1. Панели для зданий на ленточных фундаментах с техподпольем высотой 1,8 м. Рабочие чертежи

Дата актуализации: 10.08.2017

Серия 1.117.1-14

Выпуск 1. Панели для зданий на ленточных фундаментах с техподпольем высотой 1,8 м. Рабочие чертежи

Обозначение: Серия 1.117.1-14
Обозначение англ: Series 1.117.1-14
Статус:действует
Название рус.:Выпуск 1. Панели для зданий на ленточных фундаментах с техподпольем высотой 1,8 м. Рабочие чертежи
Дата добавления в базу:01.09.2013
Дата актуализации:05.05.2017
Область применения:Серия 1.117.1-14 выпуск 1 является откорректированной редакцией серии 1.117-3, выпуски 0-1, 1-1, 1-2, 2-1, 2-2. Панели откорректированы в части сокращения расхода стали за счет повышения расчетного сопротивления арматурной стали
Оглавление:1.117.1-14.1-000000 ТО Техническое описание
1.117.1-14.1-010000 Панель цокольная ЗНЦ
1.117.1-14.1-010000 СБ Панель цокольная ЗНЦ Сборочный чертеж
1.117.1-14.1-020000 Панель цокольная ЗНЦ
1.117.1-14.1-020000 СБ Панель цокольная ЗНЦ Сборочный чертеж
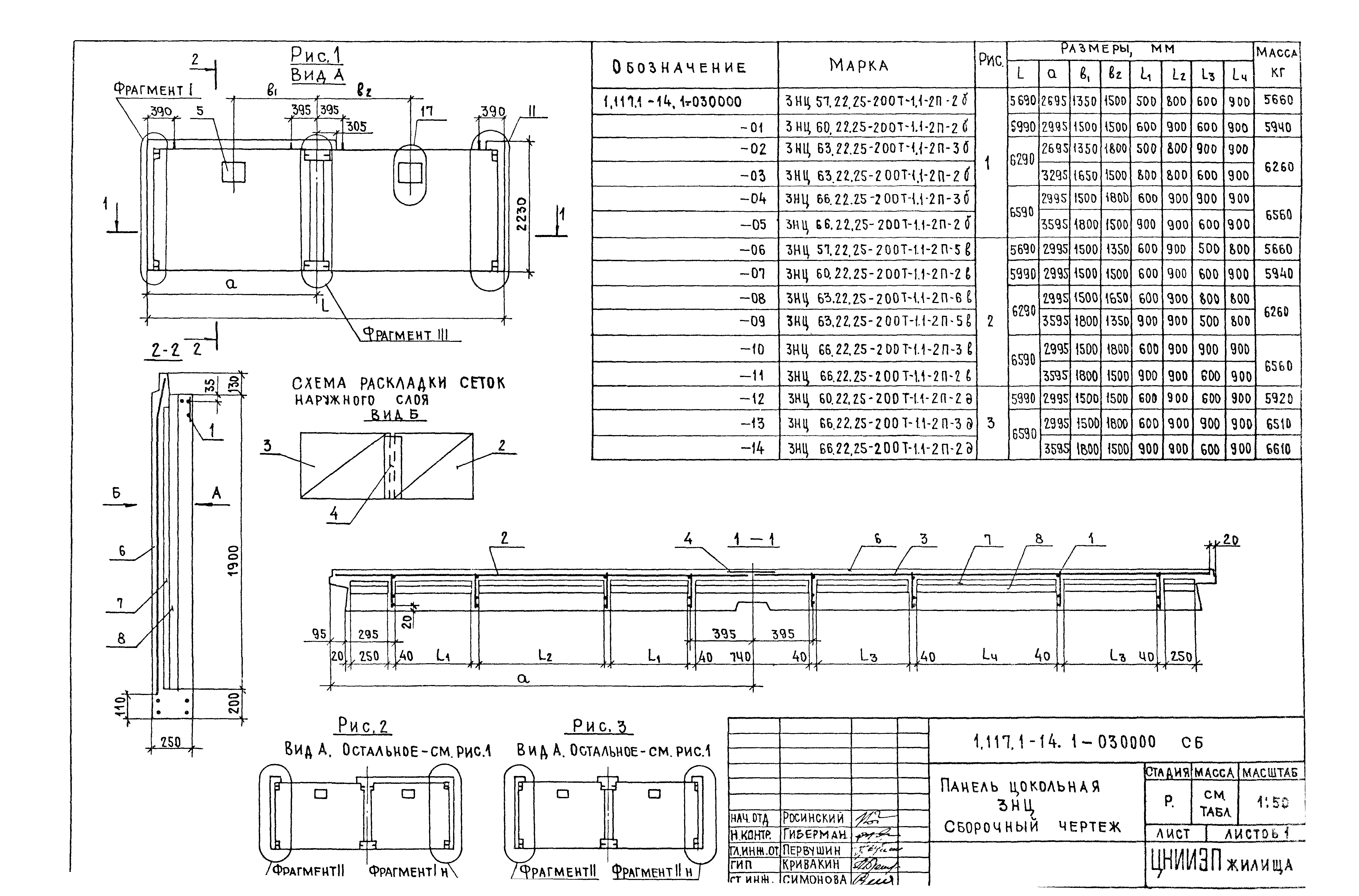
1.117.1-14.1-030000 Панель цокольная ЗНЦ
1.117.1-14.1-030000 СБ Панель цокольная ЗНЦ Сборочный чертеж
1.117.1-14.1-040000 Панель цокольная ЗНЦ
1.117.1-14.1-040000 СБ Панель цокольная ЗНЦ Сборочный чертеж
1.117.1-14.1-050000 Панель цокольная ЗНЦ
1.117.1-14.1-050000 СБ Панель цокольная ЗНЦ Сборочный чертеж
1.117.1-14.1-060000 Панель цокольная ЗНЦ
1.117.1-14.1-060000 СБ Панель цокольная ЗНЦ Сборочный чертеж
1.117.1-14.1-070000 Панель цокольная ЗНЦ
1.117.1-14.1-070000 СБ Панель цокольная ЗНЦ Сборочный чертеж
1.117.1-14.1-080000 Панель цокольная ЗНЦ
1.117.1-14.1-080000 СБ Панель цокольная ЗНЦ Сборочный чертеж
1.117.1-14.1-090000 Панель цокольная ЗНЦ
1.117.1-14.1-090000 СБ Панель цокольная ЗНЦ Сборочный чертеж
1.117.1-14.1-100000 Панель цокольная ЗНЦ
1.117.1-14.1-100000 СБ Панель цокольная ЗНЦ Сборочный чертеж
1.117.1-14.1-110000 Панель цокольная ЗНЦ
1.117.1-14.1-110000 СБ Панель цокольная ЗНЦ Сборочный чертеж
1.117.1-14.1-120000 Панель цокольная ЗНЦ
1.117.1-14.1-120000 СБ Панель цокольная ЗНЦ Сборочный чертеж
1.117.1-14.1-130000 Панель цокольная ЗНЦ
1.117.1-14.1-130000 СБ Панель цокольная ЗНЦ Сборочный чертеж
1.117.1-14.1-000000 Д1 Фрагменты I, II, III
1.117.1-14.1-000000 Д2 Фрагменты IV, V
1.117.1-14.1-000000 Д3 Фрагменты VI, VII
1.117.1-14.1-000000 Д4 Фрагменты VIII, IX
1.117.1-14.1-000000 Д5 Узлы 1… 5
1.117.1-14.1-000000 Д6 Узлы 6, 7, 8
1.117.1-14.1-000000 Д7 Узлы 9, 10, 11
1.117.1-14.1-000000 Д8 Узлы 12, 13, 14
1.117.1-14.1-000000 Д9 Узлы 15, 16, 17
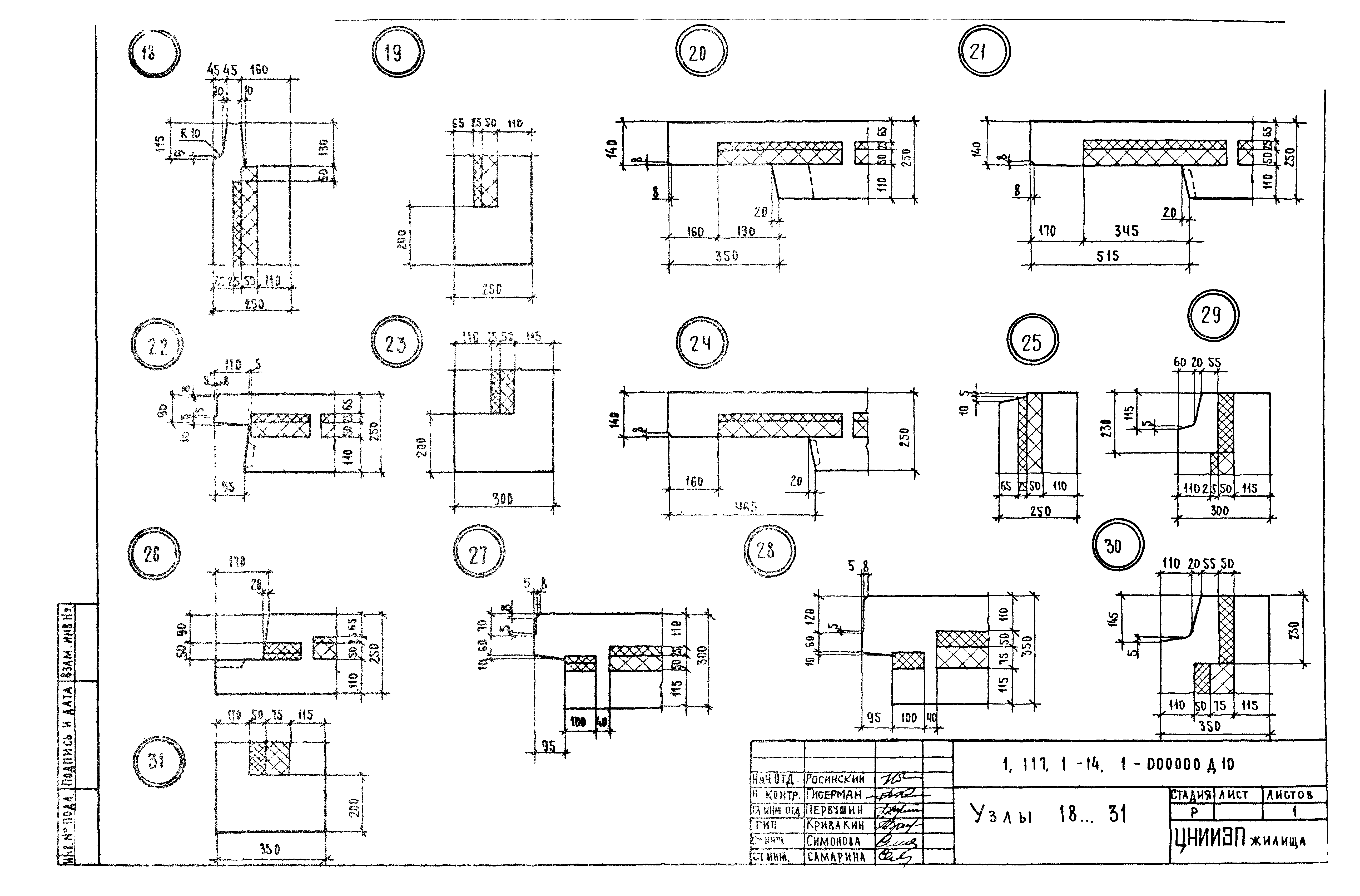
1.117.1-14.1-000000 Д10 Узлы 18… 31
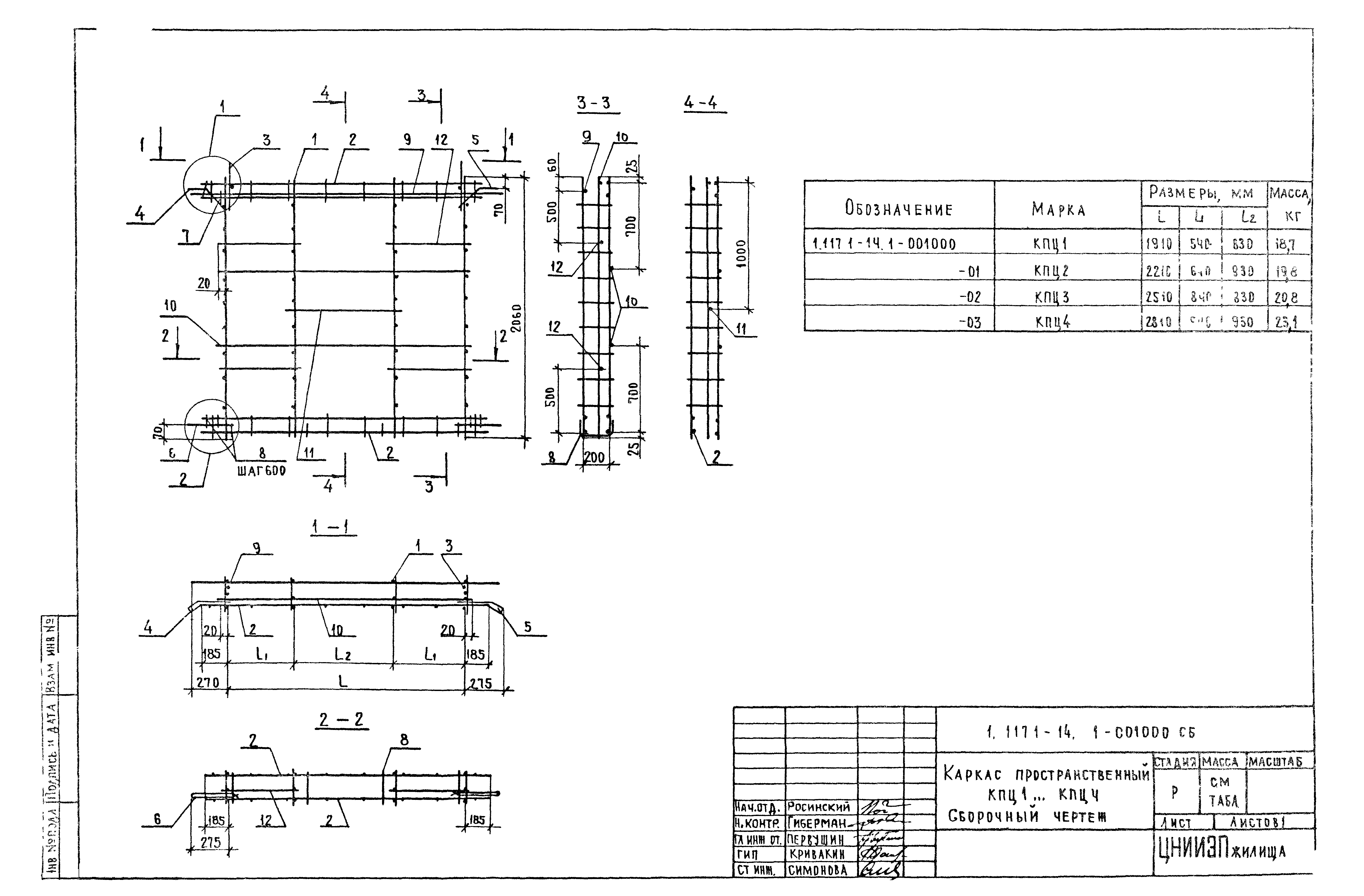
1.117.1-14.1-001000 Каркас пространственный КПЦ1… КПЦ4
1.117.1-14.1-001000 СБ Каркас пространственный КПЦ1… КПЦ4. Сборочный чертеж
1.117.1-14.1-002000 Каркас пространственный КПЦ5… КПЦ12
1.117.1-14.1-002000 СБ Каркас пространственный КПЦ5… КПЦ12. Сборочный чертеж
1.117.1-14.1-003000 Каркас пространственный КПЦ13… КПЦ20
1.117.1-14.1-003000 СБ Каркас пространственный КПЦ13… КПЦ20. Сборочный чертеж
1.117.1-14.1-004000 Каркас пространственный КПЦ21… КПЦ59
1.117.1-14.1-004000 СБ Каркас пространственный КПЦ21… КПЦ59. Сборочный чертеж
1.117.1-14.1-005000 Каркас пространственный КПЦ60… КПЦ98
1.117.1-14.1-005000 СБ Каркас пространственный КПЦ60… КПЦ98. Сборочный чертеж
1.117.1-14.1-006000 Каркас пространственный КПЦ99… КПЦ108
1.117.1-14.1-006000 СБ Каркас пространственный КПЦ99… КПЦ108. Сборочный чертеж
1.117.1-14.1-007000 Каркас пространственный КПЦ109… КПЦ114
1.117.1-14.1-007000 СБ Каркас пространственный КПЦ109… КПЦ114. Сборочный чертеж
1.117.1-14.1-000100 Каркас плоский КР1… КР12
1.117.1-14.1-000200 Каркас плоский КР13… КР21
1.117.1-14.1-000300 Каркас плоский КР22… КР25
1.117.1-14.1-000400 Сетка плоская С1… С12
1.117.1-14.1-000500 Сетка плоская С13… С21
1.117.1-14.1-000600 Сетка плоская С22… С30
1.117.1-14.1-000700 Сетка пространственная СП1… СП6
1.117.1-14.1-000800 Петля строповочная П1… П6
1.117.1-14.1-000001 Стрежень гнутый АН1… АН3
1.117.1-14.1-000002 Стержень гнутый АН4… АН6
1.117.1-14.1-000000 Д11 Узлы 1, 2
1.117.1-14.1-000000 Д12 Узлы 3, 4 , 5
1.117.1-14.1-000000 Д13 Узлы 6, 7
1.117.1-14.1-000000 Д14 Узлы 8, 9
1.117.1-14.1-000800 Блок оконный
1.117.1-14.1-000810 Коробка
1.117.1-14.1-000820 Створка
1.117.1-14.1-009000 Заполнение оконного проема
1.117.1-14.1-000000 РС Ведомость расхода стали на элемент
1.117.1-14.1-000000 РМ Ведомость расхода материалов
Разработан: ЦНИИЭП жилища
Утверждён:28.06.1985 Госгражданстрой (Gosgrazhdanstroy 194)
Расположен в:Техническая документация Экология СТРОИТЕЛЬНЫЕ МАТЕРИАЛЫ И СТРОИТЕЛЬСТВО Конструкции зданий Бетонные конструкции Строительство Справочные документы Типовые строительные конструкции, изделия и узлы Общероссийский строительный каталог Строительные конструкции, изделия и узлы зданий и сооружений для всех видов строительства Конструкции, изделия и узлы зданий Конструкции нулевого цикла Цокольные панели и блоки стен подвалов
Нормативные ссылки:
Серия 1.117.1-14Серия 1.117.1-14Серия 1.117.1-14Серия 1.117.1-14Серия 1.117.1-14Серия 1.117.1-14Серия 1.117.1-14Серия 1.117.1-14Серия 1.117.1-14Серия 1.117.1-14Серия 1.117.1-14Серия 1.117.1-14Серия 1.117.1-14Серия 1.117.1-14Серия 1.117.1-14Серия 1.117.1-14Серия 1.117.1-14Серия 1.117.1-14Серия 1.117.1-14Серия 1.117.1-14Серия 1.117.1-14Серия 1.117.1-14Серия 1.117.1-14Серия 1.117.1-14Серия 1.117.1-14Серия 1.117.1-14Серия 1.117.1-14Серия 1.117.1-14Серия 1.117.1-14Серия 1.117.1-14Серия 1.117.1-14Серия 1.117.1-14Серия 1.117.1-14Серия 1.117.1-14Серия 1.117.1-14Серия 1.117.1-14Серия 1.117.1-14Серия 1.117.1-14Серия 1.117.1-14Серия 1.117.1-14Серия 1.117.1-14Серия 1.117.1-14Серия 1.117.1-14Серия 1.117.1-14Серия 1.117.1-14Серия 1.117.1-14Серия 1.117.1-14Серия 1.117.1-14Серия 1.117.1-14Серия 1.117.1-14Серия 1.117.1-14Серия 1.117.1-14Серия 1.117.1-14Серия 1.117.1-14Серия 1.117.1-14Серия 1.117.1-14Серия 1.117.1-14Серия 1.117.1-14Серия 1.117.1-14Серия 1.117.1-14Серия 1.117.1-14Серия 1.117.1-14Серия 1.117.1-14Серия 1.117.1-14Серия 1.117.1-14Серия 1.117.1-14Серия 1.117.1-14Серия 1.117.1-14Серия 1.117.1-14Серия 1.117.1-14Серия 1.117.1-14Серия 1.117.1-14Серия 1.117.1-14Серия 1.117.1-14Серия 1.117.1-14Серия 1.117.1-14Серия 1.117.1-14Серия 1.117.1-14Серия 1.117.1-14Серия 1.117.1-14Серия 1.117.1-14Серия 1.117.1-14Серия 1.117.1-14Серия 1.117.1-14Серия 1.117.1-14Серия 1.117.1-14Серия 1.117.1-14Серия 1.117.1-14Серия 1.117.1-14Серия 1.117.1-14Серия 1.117.1-14Серия 1.117.1-14Серия 1.117.1-14Серия 1.117.1-14Серия 1.117.1-14Серия 1.117.1-14Серия 1.117.1-14Серия 1.117.1-14Серия 1.117.1-14Серия 1.117.1-14Серия 1.117.1-14Серия 1.117.1-14Серия 1.117.1-14Серия 1.117.1-14Серия 1.117.1-14Серия 1.117.1-14Серия 1.117.1-14Серия 1.117.1-14Серия 1.117.1-14Серия 1.117.1-14Серия 1.117.1-14Серия 1.117.1-14Серия 1.117.1-14Серия 1.117.1-14Серия 1.117.1-14Серия 1.117.1-14Серия 1.117.1-14Серия 1.117.1-14Серия 1.117.1-14Серия 1.117.1-14Серия 1.117.1-14Серия 1.117.1-14Серия 1.117.1-14Серия 1.117.1-14Серия 1.117.1-14Серия 1.117.1-14Серия 1.117.1-14Серия 1.117.1-14Серия 1.117.1-14Серия 1.117.1-14Серия 1.117.1-14Серия 1.117.1-14Серия 1.117.1-14Серия 1.117.1-14Серия 1.117.1-14Серия 1.117.1-14Серия 1.117.1-14Серия 1.117.1-14Серия 1.117.1-14Серия 1.117.1-14Серия 1.117.1-14Серия 1.117.1-14Серия 1.117.1-14Серия 1.117.1-14Серия 1.117.1-14

© 2013 Ёшкин Кот :-) Карта сайта