| ||||||||||||||||||||||||||||||||
Скачать РД 31.41.04-79 Часть 4. Карты типовых и опытных технологических процессов перегрузочных работ с опасными грузамиДата актуализации: 10.08.2017
|
| Обозначение: | РД 31.41.04-79 |
| Обозначение англ: | RD 31.41.04-79 |
| Статус: | действует |
| Название рус.: | Часть 4. Карты типовых и опытных технологических процессов перегрузочных работ с опасными грузами |
| Дата добавления в базу: | 05.05.2017 |
| Дата актуализации: | 05.05.2017 |
| Дата введения: | 01.01.1981 |
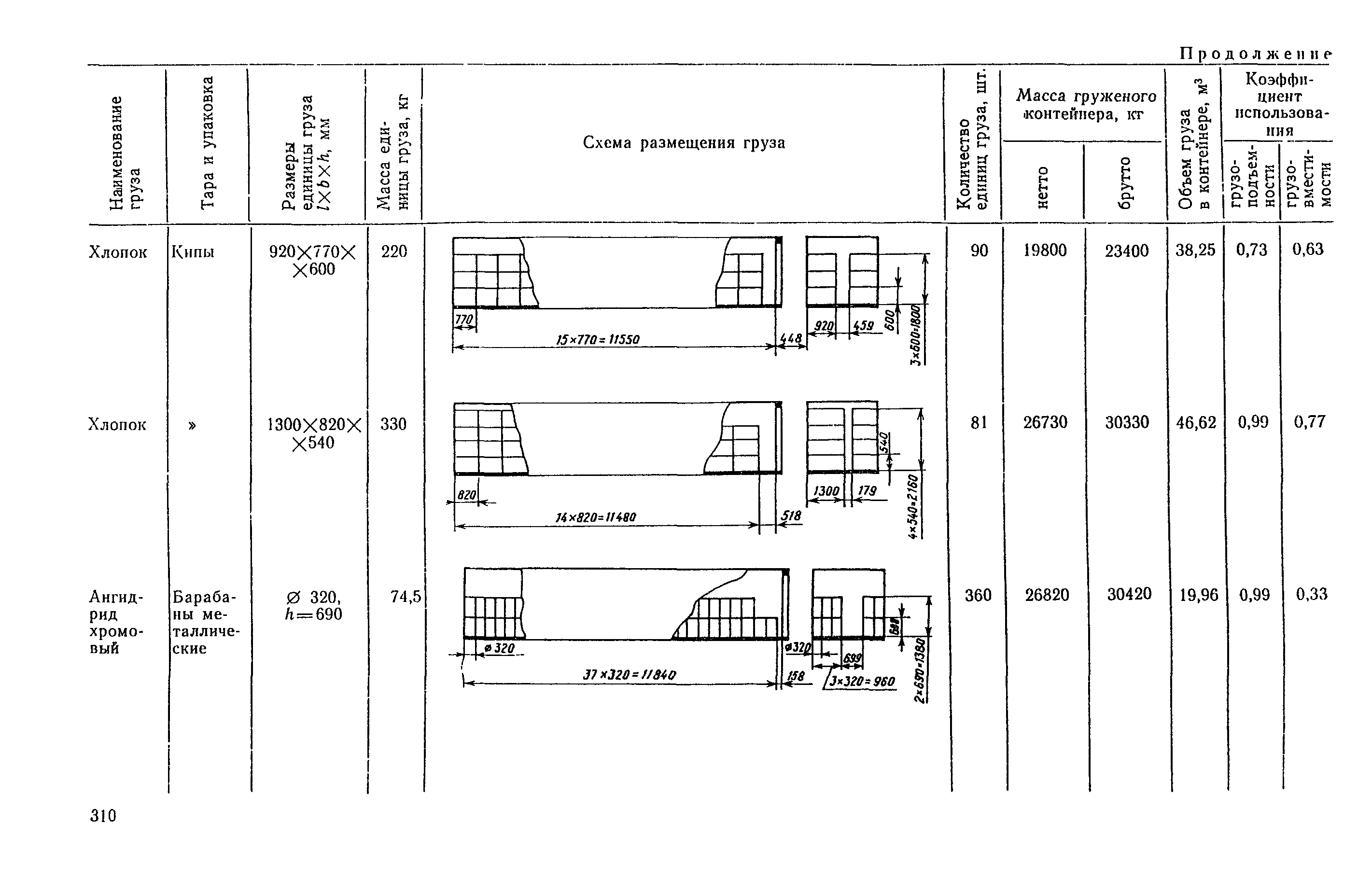
| Область применения: | РД регламентирует типовые и опытные технологические процессы перегрузки опасных грузов классов 3-9 (в соответствии с классификацией Правил морской перевозки опасных грузов - МОПОГ), осуществляемые на универсальных перегрузочных комплексах морских портов, а также типовые и опытные технологические процессы загрузки/разгрузки этих грузов в крупнотоннажные контейнеры. |
| Разработан: | ЛенморНИИпроект БЦПКБ |
| Утверждён: | 07.05.1979 Министерство морского флота СССР (USSR Ministry of the Merchant Marine ) |
| Принят: | Управление эксплуатации флота и портов ММФ |
| Издан: | ЦРИА Морфлот (1980 г. ) |
| Расположен в: | |
| Нормативные ссылки: |
|



















































































































































































































































































































































