Информационная система
«Ёшкин Кот»

Скачать базу одним архивом
Скачать обновления
История создания базы
Карта сайта

Скачать МДС 35-11.2004 Создание среды трудовой деятельности маломобильных групп населения на промышленных предприятиях

Дата актуализации: 10.08.2017

МДС 35-11.2004

Создание среды трудовой деятельности маломобильных групп населения на промышленных предприятиях

Обозначение: МДС 35-11.2004
Обозначение англ: MDS 35-11.2004
Статус:действует
Название рус.:Создание среды трудовой деятельности маломобильных групп населения на промышленных предприятиях
Дата добавления в базу:01.09.2013
Дата актуализации:05.05.2017
Дата введения:02.12.2004
Область применения:Предназначено для проектировщиков, администрации промышленных предприятий, работников органов местного самоуправления и социальных служб.
Оглавление:Предисловие
Глава 1 Нормативные, научно-прикладные и проектные разработки по вопросам создания комфортной и доступной среды трудовой жизнедеятельности
Глава 2 Факторы среды, влияющие на человека в процессе его трудовой деятельности
Глава 3 Архитектурно-планировочные мероприятия, способствующие повышению уровня доступности и комфортности среды трудовой деятельности человека
Глава 4 Экспериментальное проектирование
Заключение
Приложение 1 Нормативные документы Минздрава России, регулирующие уровень комфортности производственной среды
Приложение 2 Список профессиональных заболеваний работников промышленных предприятий
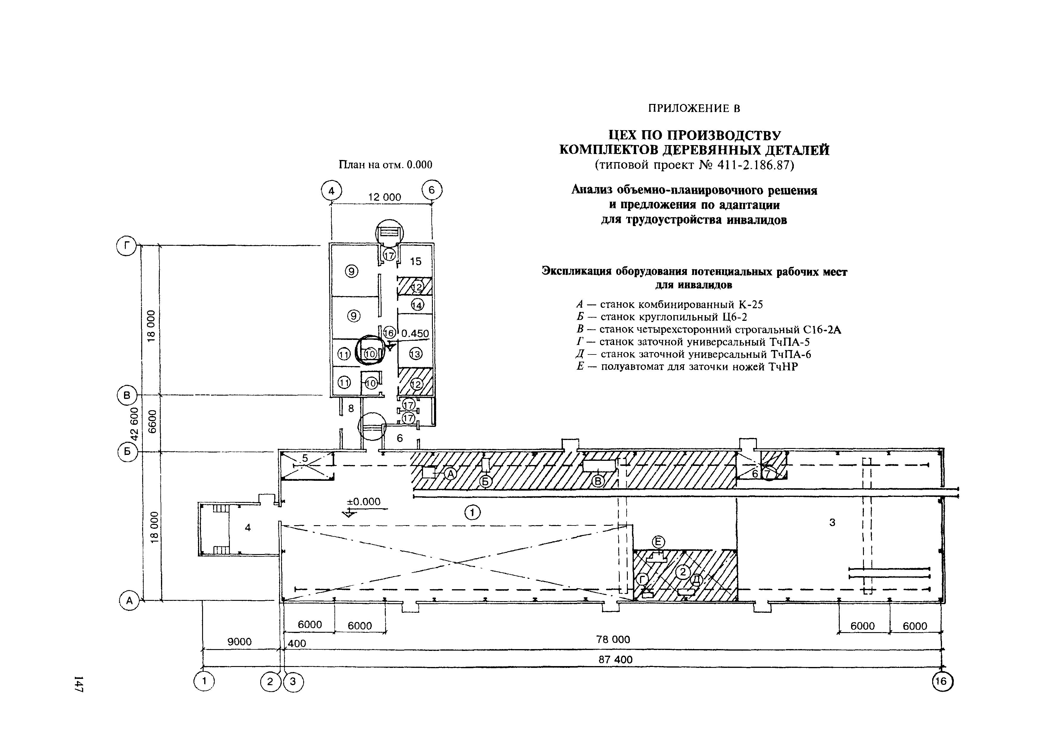
Приложение 3 Профессии и специальности, потенциально пригодные для трудоустройства инвалидов
Литературные источники
Иллюстрированный материал (примеры проектных решений)
Разработан: ЦНИИпромзданий
ИОЗ (институт общественных зданий)
АПИО-Центр
ЦИЭТИН Минтруда РФ
ЦНИИЭП им. Б.С. Мезенцева Госгражданстроя
ЦНИИЭП градостроительства
Издан: ФГУП ЦПП (2004 г. )
Расположен в:Техническая документация Экология СТРОИТЕЛЬНЫЕ МАТЕРИАЛЫ И СТРОИТЕЛЬСТВО Строительство Торговые и промышленные здания ОХРАНА ОКРУЖАЮЩЕЙ СРЕДЫ, ЗАЩИТА ЧЕЛОВЕКА ОТ ВОЗДЕЙСТВИЯ ОКРУЖАЮЩЕЙ СРЕДЫ. БЕЗОПАСНОСТЬ Безопасность профессиональной деятельности. Промышленная гигиена Строительство Справочные документы Справочные пособия к СНиП
Нормативные ссылки:
МДС 35-11.2004МДС 35-11.2004МДС 35-11.2004МДС 35-11.2004МДС 35-11.2004МДС 35-11.2004МДС 35-11.2004МДС 35-11.2004МДС 35-11.2004МДС 35-11.2004МДС 35-11.2004МДС 35-11.2004МДС 35-11.2004МДС 35-11.2004МДС 35-11.2004МДС 35-11.2004МДС 35-11.2004МДС 35-11.2004МДС 35-11.2004МДС 35-11.2004МДС 35-11.2004МДС 35-11.2004МДС 35-11.2004МДС 35-11.2004МДС 35-11.2004МДС 35-11.2004МДС 35-11.2004МДС 35-11.2004МДС 35-11.2004МДС 35-11.2004МДС 35-11.2004МДС 35-11.2004МДС 35-11.2004МДС 35-11.2004МДС 35-11.2004МДС 35-11.2004МДС 35-11.2004МДС 35-11.2004МДС 35-11.2004МДС 35-11.2004МДС 35-11.2004МДС 35-11.2004МДС 35-11.2004МДС 35-11.2004МДС 35-11.2004МДС 35-11.2004МДС 35-11.2004МДС 35-11.2004МДС 35-11.2004МДС 35-11.2004МДС 35-11.2004МДС 35-11.2004МДС 35-11.2004МДС 35-11.2004МДС 35-11.2004МДС 35-11.2004МДС 35-11.2004МДС 35-11.2004МДС 35-11.2004МДС 35-11.2004МДС 35-11.2004МДС 35-11.2004МДС 35-11.2004МДС 35-11.2004МДС 35-11.2004МДС 35-11.2004МДС 35-11.2004МДС 35-11.2004МДС 35-11.2004МДС 35-11.2004МДС 35-11.2004МДС 35-11.2004МДС 35-11.2004МДС 35-11.2004МДС 35-11.2004МДС 35-11.2004МДС 35-11.2004МДС 35-11.2004МДС 35-11.2004МДС 35-11.2004МДС 35-11.2004МДС 35-11.2004МДС 35-11.2004МДС 35-11.2004МДС 35-11.2004МДС 35-11.2004МДС 35-11.2004МДС 35-11.2004МДС 35-11.2004МДС 35-11.2004МДС 35-11.2004МДС 35-11.2004МДС 35-11.2004МДС 35-11.2004МДС 35-11.2004МДС 35-11.2004МДС 35-11.2004МДС 35-11.2004МДС 35-11.2004МДС 35-11.2004МДС 35-11.2004МДС 35-11.2004МДС 35-11.2004МДС 35-11.2004МДС 35-11.2004МДС 35-11.2004МДС 35-11.2004МДС 35-11.2004МДС 35-11.2004МДС 35-11.2004МДС 35-11.2004МДС 35-11.2004МДС 35-11.2004МДС 35-11.2004МДС 35-11.2004МДС 35-11.2004МДС 35-11.2004МДС 35-11.2004МДС 35-11.2004МДС 35-11.2004МДС 35-11.2004МДС 35-11.2004МДС 35-11.2004МДС 35-11.2004МДС 35-11.2004МДС 35-11.2004МДС 35-11.2004МДС 35-11.2004МДС 35-11.2004МДС 35-11.2004МДС 35-11.2004МДС 35-11.2004МДС 35-11.2004МДС 35-11.2004МДС 35-11.2004МДС 35-11.2004МДС 35-11.2004МДС 35-11.2004МДС 35-11.2004МДС 35-11.2004МДС 35-11.2004МДС 35-11.2004МДС 35-11.2004МДС 35-11.2004МДС 35-11.2004МДС 35-11.2004МДС 35-11.2004МДС 35-11.2004МДС 35-11.2004МДС 35-11.2004МДС 35-11.2004МДС 35-11.2004МДС 35-11.2004

© 2013 Ёшкин Кот :-) Карта сайта