Информационная система
«Ёшкин Кот»

Скачать базу одним архивом
Скачать обновления
История создания базы
Карта сайта

Скачать Принципиальные схемы конструктивно-технологических решений по применению объемных георешеток ПРУДОН-494 и примеры их реализации в транспортных сооружениях

Дата актуализации: 10.08.2017

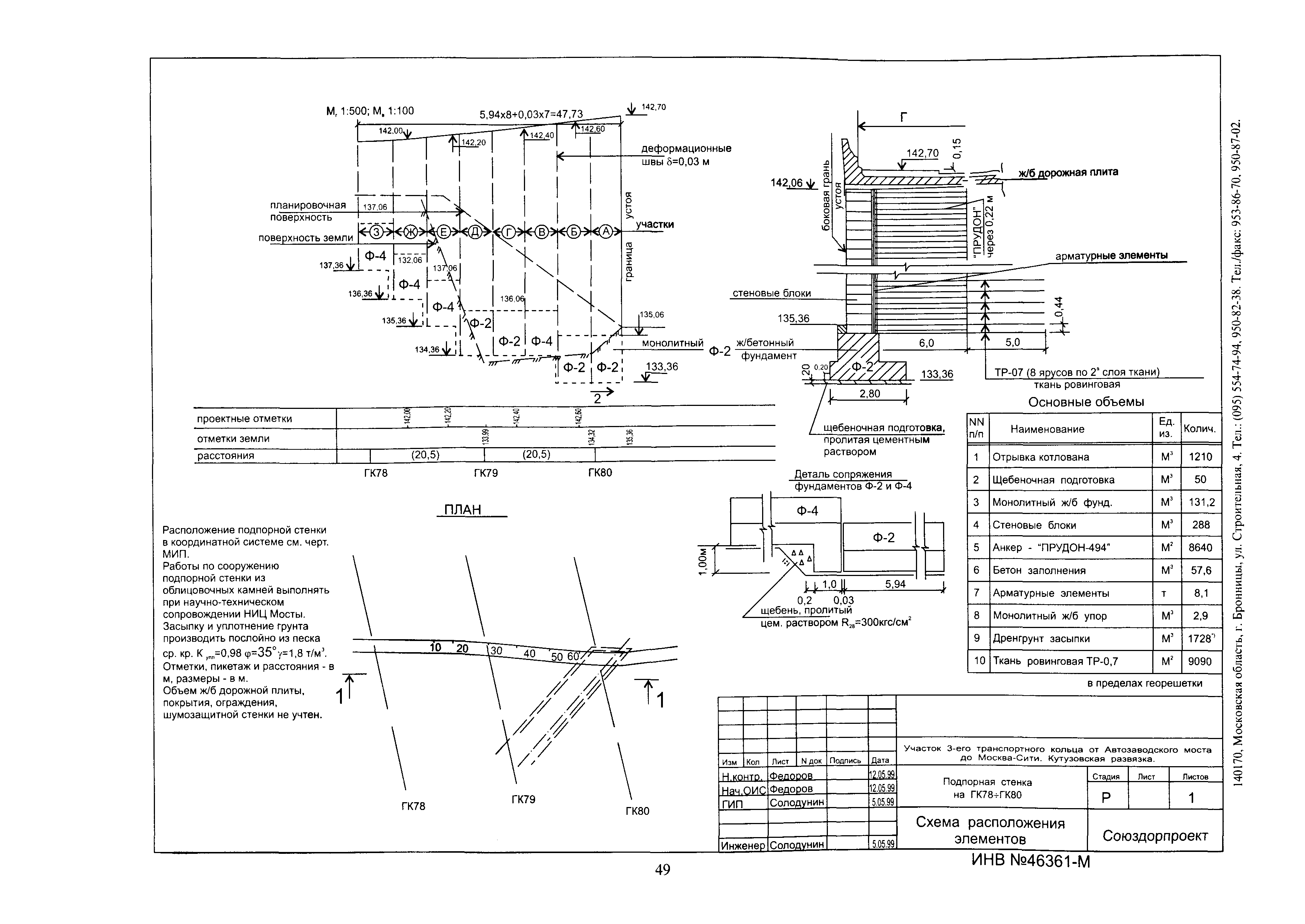
Принципиальные схемы конструктивно-технологических решений по применению объемных георешеток "ПРУДОН-494" и примеры их реализации в транспортных сооружениях

Статус:действует
Название рус.:Принципиальные схемы конструктивно-технологических решений по применению объемных георешеток "ПРУДОН-494" и примеры их реализации в транспортных сооружениях
Название англ.:Schematics for Engineering Solutions for Use of Preassembled Geotextile PRUDON-494 and Examples of Their Use in Transportation Structures
Дата добавления в базу:01.09.2013
Дата актуализации:05.05.2017
Дата введения:01.01.2002
Область применения:Технические решения по объемному армированию конструкций земляного полотна и дорожных одежд автомобильных дорог предназначены для использования при строительстве, ремонте или реконструкции участков автомобильных дорог с одеждами жесткого и нежесткого типа в районах с неблагоприятными климатическими и гидрогеологическими условиями (болота I-III типа, вечная мерзлота, несвязные грунты пустынь и т.п.), укреплении конусов мостов и путепроводов, откосов насыпных сооружений для защиты от водной и ветровой эрозии, устройстве подпорных стенок, укреплении берегов и русел постоянных водотоков.
Оглавление:Введение
I Общие положения
II Техническая характеристика георешетки "ПРУДОН-494", крепежных элементов и схема закрепления георешетки
III Применение объемных георешеток "ПРУДОН-494" для укрепления земляного полотна, оснований и покрытий автомобильных дорог
IV Применение георешетки "ПРУДОН-494" при уширении автомобильных дорог
V Поперечные профили земляного полотна и дорожных одежд, рекомендуемых к применению при строительстве межпромысловых автомобильных дорог в I-ой дорожно-климатической зоне
VI Применение георешеток "ПРУДОН-494" для укрепления конусов мостов и путепроводов
VII Применение георешеток "ПРУДОН-494" для укрепления конусов насыпных сооружений
VIII Подпорные стены из грунта, армированного георешетками "ПРУДОН-494"
IX Армогрунтовые конструкции земляного полотна
X Армогрунтовые обоймы металлических гофрированных водопропускных труб
XI Сооружение устоя моста или путепровода с применением георешеток "ПРУДОН-494"
XII Сооружение устоя моста или путепровода с применением георешеток "ПРУДОН-494"
XIII Устройство сопряжения моста с насыпью с применением георешеток "ПРУДОН-494"
XIV Применение георешеток "ПРУДОН-494" для усиления подбалластного слоя при строительстве, ремонте и реконструкции железных дорог
XV Строительство водопропускных труб из георешеток "ПРУДОН-494"
Разработан: ОАО 494 УНР
Утверждён:01.01.2002 ОАО 494 УНР (494 UNR OAO )
Принят: ФГУП Союздорнии (Soyuzdornii FGUP )
Издан: ОАО 494 УНР (2002 г. )
Расположен в:Техническая документация Экология ГРАЖДАНСКОЕ СТРОИТЕЛЬСТВО Строительство дорог Сооружение дорог Строительство Нормативные документы Отраслевые и ведомственные нормативно-методические документы Проектирование и строительство автомобильных дорог Национальные стандарты Проектирование, строительство, ремонт и содержание искусственных сооружений на автомобильных дорогах Укрепление конусов мостов, размываемых русел, откосов пойменных насыпей Проектирование, строительство, ремонт и содержание автомобильных дорог Укрепление откосов земляного полотна, конусов мостов, размываемых русел Геотекстильные материалы в дорожном строительстве
Нормативные ссылки:

© 2013 Ёшкин Кот :-) Карта сайта