Информационная система
«Ёшкин Кот»

XXXecatmenu

МИНИСТЕРСТВО
СТРОИТЕЛЬСТВА И ЖИЛИЩНО-КОММУНАЛЬНОГО
ХОЗЯЙСТВА РОССИЙСКОЙ ФЕДЕРАЦИИ

(МИНСТРОЙ РОССИИ)

ПРИКАЗ

от «7» ноября 2016 г.

№ 780/пр

Москва

Об утверждении Изменения № 1 к СП 138.13330.2012 «Общественные
здания и сооружения, доступные маломобильным группам населения.
Правила проектирования»

В соответствии с Правилами разработки, утверждения, опубликования, изменения и отмены сводов правил, утвержденными постановлением Правительства Российской Федерации от 1 июля 2016 г. № 624, подпунктом 5.2.9 пункта 5 Положения о Министерстве строительства и жилищно-коммунального хозяйства Российской Федерации, утвержденного постановлением Правительства Российской Федерации от 18 ноября 2013 г. № 1038, пунктом 169 Плана разработки и утверждения сводов правил и актуализации ранее утвержденных сводов правил, строительных норм и правил на 2015 г. и плановый период до 2017 г., утвержденного приказом Министерства строительства и жилищно-коммунального хозяйства Российской Федерации от 30 июня 2015 г. № 470/пр с изменениями, внесенными приказом Министерства строительства и жилищно-коммунального хозяйства Российской Федерации от 14 сентября 2015 г. № 659/пр, приказываю:

1. Утвердить и ввести в действие через 6 месяцев со дня издания настоящего приказа Изменение № 1 к СП 138.13330.2012 «Общественные здания и сооружения, доступные маломобильным группам населения. Правила проектирования», утвержденному приказом Федерального агентства по строительству и жилищно-коммунальному хозяйству от 27 декабря 2012 г. № 124/ГС, согласно приложению.

2. Департаменту градостроительной деятельности и архитектуры в течение 15 дней со дня издания приказа направить утвержденное Изменение № 1 к СП 138.13330.2012 «Общественные здания и сооружения» доступные маломобильным группам населения. Правила проектирования» на регистрацию в национальный орган Российской Федерации по стандартизации.

3. Департаменту градостроительной деятельности и архитектуры обеспечить опубликование на официальном сайте Минстроя России в информационно-телекоммуникационной сети «Интернет» текста утвержденного Изменения № 1 к СП 138.13330.2012 «Общественные здания и сооружения» доступные маломобильным группам населения. Правила проектирования» в электронно-цифровой форме в течение 10 дней со дня регистрации свода правил национальным органом Российской Федерации по стандартизации.

4. Контроль за исполнением настоящего приказа возложить на заместителя Министра строительства и жилищно-коммунального хозяйства Российской Федерации Х.Д. Мавлиярова.

И. о. Министра

Е.О. Сиэрра

ИЗМЕНЕНИЕ № 1 к СП 138.13330.2012

«Общественные здания и сооружения, доступные маломобильным
группам населения. Правила проектирования»

УТВЕРЖДЕНО и введено в действие приказом Министерства строительства и жилищно-коммунального хозяйства Российской Федерации от 7 ноября 2016 г. № 780/пр

Дата введения 2017-05-08

Содержание

Приложение А. Наименование изложить в следующей редакции:

«Приложение А (рекомендуемое) Рекомендации по проектированию».

Дополнить содержание после приложения Б и перед библиографией:

«Приложение В (справочное) Планировочные параметры фотолюминесцентной эвакуационной системы

Приложение Г (справочное) Общий перечень первоочередных мероприятий по обеспечению доступности МГН к образовательному учреждению».

Введение

Дополнить следующим абзацем:

«Изменение № 1 к своду правил подготовлено ООО «Институт общественных зданий» (научный руководитель работы и ответственный исполнитель - канд. архитектуры A.M. Гарнец, канд. техн. наук А.И. Цыганов) при участии Всероссийского общества слепых (Л.П. Абрамова), Межрегиональной межотраслевой строительной ассоциации саморегулируемых и профессиональных отраслевых организаций «Безопасность» (д-р техн. наук М.М. Мирфатулаев, д-р техн. наук Ю.М. Глуховенко), НП «Доступная городская среда» (инж. В.В. Коновалова), Санкт-Петербургского государственного архитектурно-строительного университета (канд. архитектуры Б.Л. Крундышев), Негосударственного учреждения «Институт профессиональной реабилитации и подготовки персонала общероссийской организации инвалидов - Всероссийского ордена Трудового Красного Знамени общества слепых «Реакомп» (С.Н. Ваньшин).».

1 Область применения

Пункт 1.5. Первое предложение. После слов «в проекте» дополнить словами: «в дополнение к СП 118.13330 и СП 136.13330».

Дополнить пунктом 1.9 в следующей редакции:

«1.9 Вертикальные коммуникации в зданиях следует предусматривать в соответствии с требованиями СП 59.13330, наружные и внутренние платформы применять в соответствии с ГОСТ Р 55555, ГОСТ Р 55556, ГОСТ Р 55642.».

2 Нормативные ссылки

Дополнить раздел следующими нормативными документами:

«ГОСТ 12.1.004-91 Система стандартов безопасности труда. Пожарная безопасность. Общие требования

ГОСТ Р 12.2.143-2009 Система стандартов безопасности труда. Системы фотолюминесцентные эвакуационные. Требования и методы контроля

ГОСТ Р 52880-2007 Социальное обслуживание населения. Типы учреждений социального обслуживания граждан пожилого возраста и инвалидов

ГОСТ Р 55555-2013 (ИСО 9386-1:2000) Платформы подъемные для инвалидов и других маломобильных групп населения. Требования безопасности и доступности. Часть 1. Платформы подъемные с вертикальным перемещением

ГОСТ Р 55556-2013 (ИСО 9386-2:2000) Платформы подъемные для инвалидов и других маломобильных групп населения. Требования безопасности и доступности. Часть 2. Платформы подъемные с наклонным перемещением

ГОСТ Р 55642-2013 Платформы подъемные для инвалидов и других маломобильных групп населения. Правила и методы исследований (испытаний) и измерений. Правила отбора образцов

СП 1.13130.2009 Системы противопожарной защиты. Эвакуационные пути и выходы (с изменением № 1)

СП 112.13330.2011 «СНиП 21-01-97* Пожарная безопасность зданий и сооружений»

СП 158.13330.2014 Здания и помещения медицинских организаций. Правила проектирования».

Заменить нормативную ссылку: «ГОСТ 12.4.026-2001 Цвета сигнальные, знаки, условия безопасности и разметка сигнальная» на «ГОСТ Р 12.4.026-2001 Система стандартов безопасности труда. Цвета сигнальные, знаки безопасности и разметка сигнальная. Назначение и правила применения. Общие технические требования и характеристики. Методы испытаний».

Дополнить ссылку на СП 59.13330.2012 словами: «(с изменением № 1)».

Исключить ссылки на СП 138.13330.2012 и СанПиН 2.1.3.2630-10.

4 Здания и помещения учебно-воспитательного назначения

Пункт 4.2 Первый абзац. Исключить слова: «профессионально-технические училища».

Пункт 4.11. Заменить слова: «с дефектами слуха» на «с нарушениями слуха».

Пункт 4.17. Дополнить предложением: «На поверхность поручня рекомендуется нанесение фотолюминесцентной ленты».

Пункт 4.19. Дополнить новым абзацем:

«В читальном зале библиотеки образовательного учреждения не менее 5 % читальных мест следует оборудовать с учетом доступа учащихся на кресле-коляске и отдельно - для учащихся с недостатками зрения. Рабочее место для инвалидов по зрению должно иметь дополнительное освещение по периметру.».

Дополнить раздел новыми пунктами:

«4.26 Лифт для учащихся-инвалидов, передвигающихся на кресле-коляске, в общеобразовательных организациях, а также в организациях профессионального образования должен предусматриваться в выделенном лифтовом холле, который допускается использовать в качестве безопасной зоны.

4.27 В образовательных учреждениях в раздевальных физкультурного зала и бассейна для учащихся-инвалидов следует предусматривать закрытую раздевальную с душем и унитазом.».

5 Здания и помещения здравоохранения и социального обслуживания населения

Пункт 5.1. Первое предложение дополнить ссылкой: «(СП 158.13330)».

Дополнить вторым и третьим абзацами:

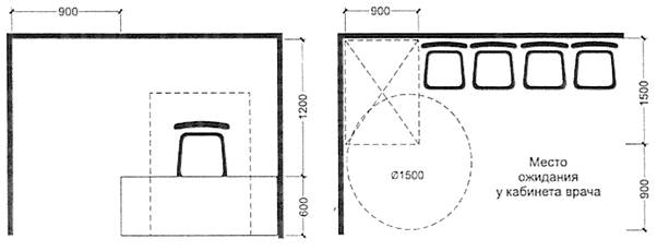
«Входы в медицинские учреждения для пациентов и посетителей должны иметь визуальную, тактильную и акустическую (речевую и звуковую) информацию с указанием групп помещений (отделений), в которые можно попасть через данный вход.

Входы в кабинеты врачей и процедурные должны быть оборудованы световыми сигнализаторами вызова пациентов.».

Пункт 5.2. Предложение дополнить словами: «по СП 148.13330.».

Дополнить новым предложением: «При проектировании учреждений социального обслуживания граждан пожилого возраста и инвалидов следует соблюдать также ГОСТ Р 52880».

Пункт 5.4. Дополнить вторым абзацем:

«Травмпункт, инфекционный кабинет и приемное отделение должны иметь автономные наружные входы, доступные для инвалидов. Травмпункт должен размещаться на первом этаже при минимальном перепаде высоты.»

Пункт 5.6. Заменить слова: «СП 148.13330 и требованиями СанПиН 2.1.3.2630» на «СП 148.13330».

Пункт 5.10. Дополнить вторым абзацем:

«Не менее, чем один из отсеков зала лечебных и грязевых ванн, включая раздевальную при нем, должен быть приспособлен для инвалида на кресле-коляске. В залах лечебной физкультуры в ограждениях, направляющих и ограничивающих движение, следует применять материалы, смягчающие контакт инвалида с ограждением.».

Дополнить раздел новыми пунктами:

«5.14 Травмпункт, инфекционный кабинет и приемное отделение должны иметь автономные наружные входы, доступные для инвалидов. Травмпункт должен размещаться на первом этаже.

5.15 В зданиях психиатрических стационаров доступное пространство, куда инвалиды на креслах-колясках могут передвигаться самостоятельно, должно устанавливаться заданием на проектирование.».

6 Здания и помещения сервисного обслуживания населения

Пункт 6.3. Дополнить новым абзацем:

«Столы, прилавки, расчетные плоскости кассовых кабин следует располагать на высоте, не превышающей 0,8 м от уровня пола. Максимальная глубина полок (при подъезде вплотную) не должна быть более 0,5 м.».

Пункт 6.7. После значения «0,8» дополнить значением «- 0,85».

Пункт 6.12. Дополнить новыми абзацами:

«В буфетах и закусочных должно быть не менее одного стола высотой 0,75 - 0,85 м.

Ширина прохода между столами в ресторане должна быть не менее 1,2 м.

Секция стойки бара для инвалидов на кресле-коляске должна иметь ширину столешницы 1,6 м, высоту от пола не более 0,85 м и свободное пространство для ног 0,75 м.».

Пункт 6.14. Третья строка. Исключить слова: «с опорой посередине».

Пункт 6.19. Первый абзац. Исключить слова: «рисунок Б.21».

Дополнить вторым абзацем:

«Планировка кабины для переодевания, примерочной и т.п. зон и помещений, должны иметь свободное пространство размерами не менее 1,5×1,5 м.».

Пункт 6.21. Дополнить вторым абзацем:

«Помещения зданий вокзалов различных видов пассажирского транспорта (железнодорожного, автомобильного, воздушного, речного и морского), переходы, платформы и другие сооружения, предназначенные для обслуживания пассажиров, должны быть доступными для МГН.».

Пункт 6.23. Дополнить третьим абзацем:

«Регистрация билетов и оформление багажа для МГН без сопровождения должна осуществляться при необходимости за специальной стойкой высотой от уровня пола не более 0,85 м. Стойки для заполнения деклараций в аэропортах международных авиалиний должны быть доступны для инвалидов на кресле-коляске.».

Пункт 6.24. Дополнить третьим и четвертым абзацами:

«Специальную зону ожидания и отдыха рекомендуется размещать на основном этаже, в одном уровне с входом в здание вокзала и выходами к платформам (перронам, причалам) при обеспечении освещенных, безопасных и коротких переходов между ними.

Места в специальной зоне ожидания и отдыха следует оборудовать индивидуальными средствами информации и связи: наушниками, подключаемыми к системам информационного обеспечения вокзалов; дисплеями с дублированием изображения информационных табло и звуковых объявлений; техническими средствами экстренной связи с администрацией, доступными тактильному восприятию; прочими специальными системами сигнально-информационного обеспечения (компьютеры, справки но телефону и т.п.).».

Пункт 6.33. Заменить значение «0,7 - 0,8» на «не более 0,85».

Заменить слова: «рисунок Б.22» на «рисунок Б.21».

Пункт 6.35. Дополнить новыми абзацами:

«Низкие железнодорожные платформы должны быть приспособлены для использования стационарных или передвижных подъемников для посадки/высадки инвалидов.

При реконструкции или модернизации существующие станции со среднегодовым суточным пассажиропотоком 1000 пассажиров и менее допускается не устанавливать подъемники или рампы, если на станции в пределах 50 км на той же линии есть станция, полностью обеспечивающая доступность для инвалидов.

При этом проект станции должен предусматривать возможность установки подъемников и/или рамп в будущем, чтобы обеспечить доступность станции для инвалидов.».

Пункт 6.36. Исключить слова: «(рисунок Б.23)».

Первый абзац. После слов: «специального выхода» дополнить словами: «шириной не менее 1,2 м».

После слов: «для маломобильных пассажиров» исключить слова до конца первого абзаца.

Дополнить третьим и четвертым абзацами:

«В аэровокзалах в посадочных галереях с уровня второго этажа через каждые 10 м следует предусматривать горизонтальные площадки для отдыха размером не менее 1,5×1,5 м.

При посадке в самолет с уровня земли для подъема или спуска (высадки) МГН следует предусматривать специальное подъемное устройство: амбулаторный автолифт (амбулифт) и т.п. устройства.».

7 Объекты физкультурного, спортивного и физкультурно-досугового назначения

Пункт 7.2. Последний абзац. Заменить слова: «с недостатками зрения» на «ограничением зрения».

Пункт 7.3. Второй абзац. После слова: «техническое» дополнить словами: «(или технологическое)».

Дополнить третьим абзацем:

«На спортивных, спортивно-зрелищных и физкультурно-оздоровительных объектах необходимо обеспечить наличие зон для выгула собак-поводырей и других служебных собак. В зоне выгула собак-поводырей рекомендуется применять легко очищаемое твердое покрытие.».

Пункт 7.10. Перед первым предложением дополнить новым предложением:

«При расстановке оборудования в тренажерных залах необходимо предусматривать место для проезда людей на кресле-коляске.».

Пункт 7.11. Дополнить новым абзацем перед первым абзацем:

«Рекомендуется обеспечивать доступность для МГН во все вспомогательные помещения в учебно-тренировочных физкультурно-спортивных сооружениях: входные и рекреационные помещения (вестибюли, гардеробы, зоны отдыха, буфеты), блоки раздевальных, душевых и санузлов, тренерские и учебно-методические помещения, медико-реабилитационные помещения (медицинские комнаты, сауны, массажные и др.).».

Исключить слова: «а также душевых и сауны»; заменить слова: «рисунки Б.26, Б.27» на «рисунки Б.22 - Б.25».

Пункт 7.13. Исключить слова: «(рисунки Б.24 и Б.25)».

Пункт 7.14. Изложить в новой редакции:

«Необходимо наличие доступных раздевальных в следующих помещениях: медпункты/помещения для оказания первой медицинской помощи, комнаты для тренеров, судей, официальных лиц. Для этих помещений допускается наличие одной доступной универсальной раздевальной, рассчитанной на лиц обоего пола и оборудованной туалетом.

Площадь в общих раздевальных на одно место для занимающегося инвалида следует принимать не менее: в залах - 3,8 м2, в бассейнах с залом подготовительных занятий - 4,5 м2. Расчетная площадь на одного занимающегося инвалида в раздевальных с хранением одежды в отдельном помещении гардеробной - 2,1 м2. Площадь для индивидуальных кабин - 4 - 5 м2, общих раздевальных для инвалидов с сопровождающим - 6 - 8 м2.».

Пункт 7.15. Заменить слова: «рисунке Б.28» на «рисунке Б.25».

Пункт 7.17. Заменить слова: «рисунке Б.25» на «рисунке Б.22».

Пункт 7.18. Дополнить вторым абзацем: «Если на трибунах спортивных и спортивно-зрелищных объектов предусматривается звуковая информация, то она должна дублироваться текстовой информацией.».

8 Здания и помещения зрелищного и культурно-просветительного назначения

Пункт 8.6. Исключить последний абзац.

Пункт 8.10. Заменить слова; «проигрыватели MP3» на «проигрыватели».

После слов: «принтеры со шрифтом Брайля, компьютеры» дополнить словами: «и плееры». Заменить слова: «речевыми программами» на слово «аудипрограммами».

Пункт 8.11. Последнее предложение. Заменить слово «столики» на «столика», «рисунок Б.30» на «рисунок Б.26».

Дополнить вторым абзацем:

«Рекомендуется принимать оптимальные габариты площади поверхности стола читателя с недостатками зрения для работы с секретарем-чтецом - 1,5×0,7 м в кабинах, полукабинах или кабинетах.».

Пункт 8.16. Заменить слово «слепых» на слова: «инвалидов по зрению».

Дополнить новыми абзацами:

«Зону постоянной экспозиции рекомендуется создавать с анфиладным или кольцевым маршрутом движения. Тупиковая планировка не желательна.

Пандусы допускается использовать для организации последовательного движения и одновременного осмотра экспозиции.».

Пункт 8.18. Слова: «рисунками Б.31 и Б.32» заменить на «рисунками Б.27 и Б.28».

Дополнить новым абзацем:

«При невозможности использовать визуальную информацию для инвалидов по зрению в помещениях с особыми требованиями к художественному решению интерьеров, в экспозиционных залах художественных музеев, выставок и т.п. допускается применять иные компенсирующие мероприятия.».

Пункт 8.19. Дополнить абзацем:

«Навесная витрина должна находиться на высоте, доступной для визуального восприятия с кресла-коляски (низ на отметке не более 0,85 м от уровня пола).».

Пункт 8.22. Заменить слова: «рисунок 8.1» на «рисунок Б.29».

Исключить рисунок 8.1 и подрисуночные подписи.

Пункт 8.25. Дополнить новым абзацем:

«Помещения для занятий кружков в клубном здании с участием инвалидов рекомендуется проектировать не более чем на 10 - 12 человек, в том числе два - три инвалида на креслах-колясках.».

Пункт 8.26. Изложить в новой редакции:

«При проектировании универсального зрительного зала, следует учитывать «активные» мероприятия (вечера, клубные встречи по интересам и т.п.) с участием групп инвалидов на кресле-коляске в качестве действующих лиц или зрителей, рекомендуется предусматривать устройство горизонтального пола от наружной кромки сцены (эстрады) в сторону зала на 6 - 12 м для размещения инвалидов-колясочников, а далее - стационарных зрительских мест с уклоном пола согласно требованию комфортной видимости.».

Пункт 8.28. Первый абзац. После слов: «типов Э-2 и Э-3» дополнить ссылкой [3].

Пункт 8.29. Дополнить новым абзацем:

«По крайней мере 5 % общего числа откидных мест в проходах, но не менее одного должны быть специальными местами, расположенными как можно ближе к выходам из зала.».

Пункт 8.32. Заменить слова: «рисунок Б.36» на «рисунок Б.33», «рисунок Б.33» на «рисунок Б.31».

Пункт 8.33. Изложить в новой редакции:

«Число мест для инвалидов на креслах-колясках в зрительных залах театров и в клубном зрительном зале рекомендуется принимать по вместимости зала, не менее:

50 - 75

мест в зале

3;

76 - 100

то же

4;

101 - 150

»

5;

151 - 200

»

6;

201 - 300

»

7;

301 - 400

»

8;

свыше 400

»

9.».

Пункт 8.36. Заменить слова: «рисунках Б.34 и Б.33» на «рисунках Б.31 и Б.32».

Пункт 8.41. Заменить слова»: «предпроектного анализа» на «проектирования».

Пункт 8.42. Исключить последний абзац.

Пункт 8.43. Исключить слова: «(рисунок Б.37)».

9 Культовые, ритуальные и мемориальные здания и сооружения

Пункт 9.2. Дополнить абзацем:

«Ширина (фронт) подхода к месту поклонения - не менее 0,9 м.».

10 Здания объектов по обслуживанию общества и государства

Пункт 10.1. Дополнить новыми абзацами:

«В вестибюлях зданий административного назначения рекомендуется предусматривать зону обслуживающих автоматов (телефонов, таксофонов, продаж и т.п.) и резервную площадь для киосков.

Стойка информации в вестибюлях и в зонах специализированного обслуживания инвалидов должна быть хорошо видимой со стороны входа и легко различаться слабовидящими посетителями.

В зданиях учреждений и предприятий, содержащих в своем составе операционно-кассовые залы, предназначенные для обслуживания посетителей, необходимо соблюдать требования беспрепятственной доступности МГН.»

Пункт 10.2. Исключить слова; «ОАО «Сбербанк России» и других коммерческих».

Пункт 10.6. Третий абзац. Исключить слова: «входная группа помещений» и «учреждений ОАО «Сбербанк России» и других». Дополнить новым абзацем:

«Кроме операционно-кассового зала в, зону посетительской доступности предприятий: рекомендуется включать:

вход с тамбуром (универсального типа - для всех, групп посетителей);

переговорный пункт (с зонами кабин междугородних телефонов, в том числе автоматов, и ожидания);

пункт обмена валюты и киоски продаж (при наличии).».

Пункт 10.16. Четвертый абзац. Заменить слова: «службы - (ГУИС» на «(службы (ГУИС».

Последний абзац. Заменить слово; «трудоустройству.» на «трудоустройству;».

Дополнить новым абзацем:

«многофункциональные центры государственных услуг.».

Пункт 10.21. После слов: «кабинет юриста (при наличии)» заменить точку на точку с запятой; дополнить новым абзацем:

«в зданиях ПФР помещения для индивидуальной работы с клиентами. Оборудование помещений клиентских служб отображено на рисунках Б.34 и Б.35.».

Приложение А

Заменить статус «(обязательное)» на «рекомендуемое».

Наименование приложения изложить в следующей редакции:

«Рекомендации по проектированию».

Таблицы А.1 - А.9. Заменить слова: «Требования к» на «Рекомендации по проектированию».

Приложение Б. Изложить в новой редакции:

«Приложение Б
(справочное)
Иллюстрации

Рисунок Б.1 - Примеры расстановки оборудования в помещениях для занятий

Рисунок Б.2 - Варианты планировочных решении классных помещений
площадью около 50 м2

Рисунок Б.3 - Варианты планировочных решений классных помещений
площадью 60 - 70 м2

В лаборатории химии

В лаборатории физики

Рисунок Б.4 - Примеры расстановки оборудования в аудитории
и лабораториях химии и физики

В студии рисунка и живописи

В музыкальном классе

В помещении для занятий

Рисунок Б.5 - Примеры расстановки оборудования в творческих классах

За чертежном столом

За кульманом

За мольбертом

За компьютером

Рабочее (учебное) место для учащего
с недостатками зрения

Рисунок Б.6 - Оборудование учебных мест

Радиомонтажной

Токарной

Слесарной

Рисунок Б.7 - Примеры расстановки оборудования учебных мастерских

Массажный кабинет

1 - кушетка для массажа;
2 - специальное оборудование для
перемещения на кушетку

Кабинет кислородной терапии

1 - кушетка;
2 - специальное оборудование для
перемещения на кушетку

Рисунок Б.8 - Примеры расстановки оборудовании в кабинетах
поликлиник и амбулаторий

Перевязочная

1 - каталка;
2 - стол врача;
3 - кушетка;
4 - холодильник;
5 - умывальник

Кабинет старшей медсестры

1 - стал врача;
2 - умывальник;
3 - холодильник;
4 - тумбочка

Кабинет светолечения

1 - кушетка;
2 - стол для аппаратуры

 

Кабинеты ингаляции

1 - оборудование для ингаляции;
2 - стол медсестры;
3 - шкаф;
4 - тумбочка;
5 - умывальник

Рисунок Б.9 - Примеры расстановки оборудования в помещениях
поликлиник и амбулаторий

Кабинет главного врача

Кабинет гинеколога

Кабинет врача

Кабинет зубного врача

1 - кушетка; 2 - стол врача; 3 - умывальник; 4 - шкаф; 5 - тумбочка; 6 - медоборудование;
7 - кресло стоматологическое; 8 - стерилизатор; 9 - холодильник; 10 - кресло гинекологическое;
11 - стерилизационное помещение; 12 - место временного хранения кресла-коляски

Рисунок Б.10 - Планировочные решения различных медицинских кабинетов
с учетом оказания услуг в них инвалидам

Физиотерапевтический кабинет

1 - рабочее место процедурной медсестры;
2 - зона размещения стационарный аппаратов
для УФ- и теплового облучения;
3 - зона для размещения переносных портативных
аппаратов для электрофореза, УВЧ-, УЗИ-терапии,
теплолечения (лампа «Соллюкс» и т.д.);
4 - зона отдыха после процедур

Зал лечебной физкультуры

1 - рабочее место персонала;
2 - массажная кушетка;
3 - зона для занятий гимнастикой;
4 - брусья;
5 - шведская стенка;
6 - гимнастический комплекс;
7 - маты гимнастические;
8 - зона размещения индивидуальных
тренажеров и прочего оборудования;
9 - маячная установка для УФ-облучения
группы детей

Рисунок Б.11 - Реабилитационные помещения медицинского назначения

1 - фигурная ванна; 2 - кушетка; 3 - настенный поручень; 4 - оборудование для пересадки в ванну;
5 - тангентор

Кабинет подводного массажа

1 - массажная ванна; 2 - раздевальная комната отдыха; 3 - туалетная;
4 - кушетка медицинская; 5 - рабочее место процедурной медсестры;
6 - аппарат передвижной для подводного массажа;
7 - шкаф медицинский; 8 - стеллаж универсальный

Водолечебница

1 - ванна процедурная;
2 - кушетка медицинская;
3 - кресло;
4 - шкаф медицинский;
5 - тумбочка прикроватная;
6 - рабочее место врача;
7 - стул рабочий

Рисунок Б.12 - Варианты помещений ванны подводного массажа

Рисунок Б.13 - Зоны обслуживания и зоны проезда в палатах
для лежачих больных

Рисунок Б.14 - Оборудование предприятий торговли

Рисунок Б.15 - Оборудование предприятий торговли

Столы в залах общественного питания

*) Оптимальный габарит стола
**) Минимальный габарит стола
***) При минимальном размере стола

Обслуживание через прилавок

Устройство барной стойки

Рисунок Б.16 - Оборудование предприятий питания

Рисунок Б.17 - Варианты размещения мест для инвалидов в обеденном зале

Рисунок Б.18 - Примеры размещении мест залах предприятий общественного питания

Рисунок Б.19 - Примеры размещения мест в задах предприятий общественного питания

Рисунок Б.20 - Оборудование предприятий обслуживания

Вариант совмещенного решения зала ожидания и кассового зала

1 - зона касс; 2 - зона для ожидающих пассажиров; 3 - зона для
размещения инвалидов на креслах колясках;
4 - информационный стенд

Оборудование билетных касс

Рисунок Б.21 - Оборудование вокзалов

Рисунок Б.22 - Места для зрителей

 - защитно-вспомогательная сетка

А - лестница; Б - трап; В - сиденье на борту бассейна; Г - горка; Д - минилифт

Рисунок Б.23 - Спуск в плавательный бассейн

Индивидуальные душевые кабины

Спортивные индивидуальные кабины для переодевания

Блок проходных душевых

1 - душ; 2 - откидное сиденье;
3 - раковина с поручнем;
4 - унитаз с поручнями;
5 - место хранения кресла-коляски
для пересадки

Рисунок Б.24 - Душевые кабины и раздевальные

Рисунок Б.25 - Оборудование сауны

Специализированное читальное отделение в городской библиотеке

1 - место для инвалида; 2 - обычный стол читателя; 3 - стеллажи; 4 - каталоги.

Библиотечное оборудование для инвалидов

А - рабочий стол; Б - зона расположения стеллажей для книг.

Рисунок Б.26 - Оборудование библиотек

Рисунок Б.27 - Планировка и оборудование экспозиционного зала
для посетителей с ослабленным зрением

Варианты и основные параметры демонтрационных витрин для инвалидов на колясках

Горизонтальные витрины

Навесные витрины

Специальное музейное оборудование для посетителей с недостатками зрения

1 - безопасный ящик для ценных экспонатов с отверстиями для рук;
2 - крупный заголовок, расположенный под прямым углом к лучу зрения;
3 - надписи на брайлевском шрифте для горизонтального чтения;
4 - непрерывный деревянный поручень с округленными и
обработанными краями (800 мм от пола);
5 - стрелки на цоколе для обозначения направления движения и мест
поворотов

Рисунок Б.28 - Оборудование экспозиционного зала

А - игровая площадка с пандусом; Б - оборудование для боулинга; В - качели для детей на кресле-
коляске; Г - универсальное приспособление для инвалидов на кресле-коляске, может использоваться как:
г.1 - песочница для детей; г.2 - водные развлечения; г.3 - клумба для занятий садоводством

Рисунок Б.29 - Оборудование спортивно-игровой зоны участка

В концертных залах

У арены цирка

Рисунок Б.30 - Размещение зрительских мест

Повышение угла видимости в зрительном зале с учетом инвалидов на кресле-коляске

Разница в превышении луча зрения а - б = 4 …6 см

Превышение луча зрения для инвалидов к кресле-коляске

Рисунок Б.31 - Места для инвалидов в зрительном зале

В последнем ряду зрительного зала

В первом ряду зрительного зала

В поперечном проходе на горизонтальных участках пола

Рисунок Б.32 - Места для инвалидов в зрительном зале

Параметры коридоров с местами отдыха

Рисунок Б.33 - Клубные помещения. Зоны и места отдыха

1 - стол письменный; 2 - стул (кресло) подъемно-поворотный; 3 - стол письменный малый;
4 - стул для посетителей; 5 - стул для сопровождающего; 6 - место для инвалида
на кресле-коляске; 7 - персональный компьютер; 9 - принтер; 10 - телефон-факс.

Рисунок Б.34 - Пример планировки рабочего места специалист
Клиентской службы (кабинка для работы с посетителем)

1 - стол письменный; 2 - стол-приставка; 3 - тумба подкатная; 4 - стул (кресло)
подъемно-поворотный; 5 - стул для посетителей; 6 - шкаф для хранения
документов; 7 - шкаф для вертикального хранения документов; 8 - персональный
компьютер; 9 - принтер; 10 - цветочница.

Рисунок Б.35 - Примеры планировки рабочих мест сотрудников,
ведущих прием посетителей

Дополнить свод правил приложениями В и Г в следующей редакции:

«Приложение В (справочное)

ПЛАНИРОВОЧНЫЕ ПАРАМЕТРЫ ФОТОЛЮМИНЕСЦЕНТНОЙ
ЭВАКУАЦИОННОЙ СИСТЕМЫ

Пути эвакуации от мест обслуживания или постоянного нахождения МГН целесообразно оборудовать фотолюминесцентной эвакуационной системой (далее - ФЭС) в соответствии с требованиями ГОСТ Р 12.2.143.

ФЭС должна обеспечивать непрерывную видимость маршрута движения до эвакуационных выходов.

На путях эвакуации (на полу, на лестницах и пандусах) размещаются направляющие полосы из фотолюминесцентного материала, которые являются неразрывным продолжением путей эвакуации.

Проступи краевых ступеней лестничных маршей должны быть выделены цветом, фактурой или накладкой с фотолюминесцентной контрастной полосой с противоскользящим покрытием желтого цвета. Ширина такой маркировки должна быть в пределах 0,03 - 0,1 м. Расстояние между контрастной полосой и краем проступи - от 0,00 м до 0,04 м.

Проступи промежуточных ступеней лестничных маршей рекомендуется выделять цветом, фактурой или накладкой с фотолюминесцентной контрастной полосой с противоскользящим покрытием черного цвета. Ширина такой маркировки должна быть в пределах 0,03 - 0,1 м. Расстояние между контрастной полосой и краем проступи - от 0,00 м до 0,04 м.

Маркировка должна быть нанесена на всю ширину ступеней и может отступать от поверхности стены или примыкающих конструктивных элементов не более 0,05 м.

В целях безопасности запрещается использовать на ступенях лестничных маршей элементы в виде самоклеящейся пленки (ленты).

Дверные проемы эвакуационных и аварийных выходов обозначаются по контуру элементами из фотолюминесцентного материала.

Эвакуационные знаки рекомендуется изготавливать из фотолюминесцентного материала и устанавливать непосредственно на самой двери или на поверхности стены, прилегающей к двери.

В помещениях, где возможно задымление, а также используемых инвалидами-колясочниками, эвакуационные знаки безопасности размещаются на высоте не более 0,5 м от пола. Знаки безопасности с внешней подсветкой не применяют.

Таблица В.1 - Общие технические требования к элементам ФЭС

Параметр

Единица измерения

Значение

Рабочее значение яркости послесвечения ФЛМ через 10 минут после активации не менее

мкд/м2

105

Рабочее значение яркости послесвечения ФЛМ через 60 минут после активации

мкд/м2

28

Рабочее значение яркости послесвечения ФЛМ через 90 минут после активации

мкд/м2

20

Минимальное рабочее значение яркости послесвечения ФЛМ обеспечивающее требования ФЭС

мкд/м2

5

Максимальное время послесвечения ФЛМ до минимального значения 5 мкд/м2

ч

Не менее 24

Время приведения в работоспособное состояние при освещенности: 60 люкс

мин

2,5

Время приведения в работоспособное состояние при освещенности: 40 люкс

мин

10

Минимальная дальность видения ФЛМ направляющих полос ФЭС

м

10

Минимальная дальность видения ФЛМ эвакуационных знаков ФЭС

м

16

Стойкость ФЛМ УФЛ излучению. Потеря яркости после 1000 ч

%

< 10

Износостойкость ФЛМ

По специальному тесту

Определяется по дополнительной методике

-

Износостойкость антискользящего слоя

По специальному тесту

Определяется по дополнительной методике

-

Тесты антискользящего покрытия

Определяется по дополнительной методике

-

Группа воспламеняемости не ниже

Значение

В1

Группа по распространению пламени

Значение

РП1

Группа по дымообразующей способности

Значение

Д1

Приложение Г
(справочное)
Общий перечень первоочередных мероприятий по обеспечению
доступности МГН к образовательному учреждению

Г.1 В перечень первоочередных мероприятий по обеспечению доступности МГН к образовательному учреждению входят:

1) расширение входной площадки, с устройством около входа пандуса и наружной подъемной платформы. Входную группу необходимо устраивать с навесом;

2) устройство лифтов или вертикальных подъемных платформ, обеспечивающих доступ к основным помещениям всех уровней;

3) организация на каждом этаже дополнительно одного санитарного узла с унитазом и умывальником с внутренними параметрами, позволяющими пользование инвалидом-колясочником;

4) наружные эвакуационные выходы из залов многоцелевого назначения (спортивные залы, актовые залы, музыкальных занятий и т.п.) дополнить пандусом;

5) организация зон пожарной безопасности;

6) организация поручней вдоль коммуникационных коридоров и в лестничных клетках;

7) соответствующее требованиям МГН покрытие коммуникационных путей;

8) включение средств визуальной коммуникации и специального освещения.

На рисунках Г.1 - Г.10 даны примеры проектной адаптации планировочных элементов школьных зданий.

Г.2 Примеры планировочных решений по адаптации входных узлов для наиболее распространенных из построенных (на примере г. Санкт-Петербурга) типовых проектов образовательных учреждений приведены в таблице Г.1.

Таблица Г.1 - Примеры проектной адаптации планировочные решения входных узлов требованиям МГН

Наименование типового проекта

Примеры планировочных решений функционально-планировочных элементов входного узла

1 Школа, т.п. 4902/1

2 Школа, т.п. 2ЛГ-02-2

3 Школа, т.п. 2С-02-10

4 Школа, т.п. 222-1-1ЛГ

5 Школа, т.п. 222-1-1ЛГ/82

6 Детский сад, т.п. 2ЛГ-04

7 Детский сад, т.п. 2С-04-3/71 (67)

8 Детский сад, т.п. 212-2-3ЛГ/85

Г.3 Вестибюльная группа помещений

Вестибюльная группа помещений должна размещаться в уровне входного тамбура.

Вестибюльное пространство необходимо разделять на функциональные зоны движения и ожидания (как родителей, так и учащихся). Целесообразно за счет соответствующего цветового решения и фактурного покрытия пола выделять полосу движения МГН.

В гардеробном отсеке (при каждой возрастной группе) необходимо предусматривать не менее одного места для переодевания учащегося, пользующегося инвалидной креслом-коляской. Зоны переодевания учащихся-инвалидов в гардеробе должны размещаться в стороне от транзитных проходов и иметь специальное оборудование; поручни» скамьи» полки и крючки для сумок и одежды» места для сидения и переодевания. Расстояние между вешалками или стеной и вешалкой должно быть не менее 1,5 м, максимальная высота расположения крючков - 1,6 м. Скамья для переодевания инвалида должна иметь ширину не менее 0,6 м, проходы между скамьями - не менее 1,2 м.

Рисунок Г.1 - Параметры зоны переодевания учащихся-инвалидов в
гардеробе

Подвесные и настенные указатели» табло» знаки визуальной информации и т.д. должны размещаться с учетом оптимального угла зрения.

Рисунок Г.2 - Зона расположения инвалидных колясок

Г.4 Безопасная зона

Реконструкционные мероприятия зданий образовательных организаций должны соответствовать требованиям [4] и ГОСТ 12.1.004. При этом необходимо учитывать психофизиологические особенности различных категорий учащихся и преподавателей инвалидов» их численность.

Для надежности защиты и спасения МГН, кроме обычных путей эвакуации - лестничных клеток» рекомендуется предусматривать безопасные зоны, в которых можно находиться более продолжительное время до прибытия спасательных служб. Функцию безопасной зоны могут выполнять, кроме помещений с подпором воздуха (находящихся не далее 15 м от лифта, предназначенного для транспортирования пожарной команды), открытые балконы или террасы с участком противопожарной стены, защищающей от прямого распространения огня (рисунок Г.3).

Открытые террасы и балконы, могут рассматриваться как аварийные зоны и предусматриваться для повышения безопасности людей при пожаре (СП 1.13130.2009, пункт 4.2.8). К аварийным выходам относится и выход на балкон, лоджию или террасу с глухим простенком не менее 1,2 м от торца балкона (лоджии, террасы) до оконного проема (остекленной двери) или не менее 1,6 м между остекленными проемами, выходящими на балкон, лоджию или террасу (СП 112.13330.2011, пункт 6.19, перечисление а) пункта 6.20*).

Рисунок Г.3 - Открытая терраса, выполняющая дополнительную функцию
безопасной зоны

Боковой доступ

А - библиотека;
Б, В - раздаточные, столовая

Рисунок Г.4 - Досягаемость в месте получения услуги

Параметры комнаты отдыха - кухни с местом приема пищи должны определяться с учетом удобного пользования инвалидами на кресле-коляске.

Рисунок Г.5 - Комната отдыха - кухня

Рисунок Г.6 - Спортзал

В образовательных учреждениях в раздевальных физкультурного зала и бассейна для учащихся-инвалидов возможна организация изолированной комнаты для переодевания с душем и унитазом.

Рисунок Г.7 - Зал лечебной физкультуры

В зрительных залах места для инвалидов должны располагаться в отдельных рядах, выходящих на самостоятельный путь эвакуации, не пересекающийся с путями эвакуации остальной части зрителей. Места для учащихся-инвалидов с поражением ОДА следует предусматривать на горизонтальных участках пола, в рядах, непосредственно примыкающих к проходам, и в одном уровне с входом в актовый зал. Для учащихся начальных классов, передвигающихся в инвалидных креслах-колясках, места в актовых залах следует предусматривать в первом раду перед сценой (ареной, подиумом и т.п.). Для лиц, передвигающихся в креслах-колясках, следует предусматривать свободные площадки перед эстрадой или в конце зала и дополнительный проем - выезд из зала - шириной не менее 1,6 м.

Рисунок Г.8 - Варианты планировочного решения зрительного зала

Рисунок Г.9 - Библиотека с читальным залом

Рисунок Г.10 - Учебный класс, класс рисунка, класс для музыкальных
занятий».

Библиография

Дополнить следующими ссылками:

«[3] РМД 35-14-2012 «Рекомендуемые для повторного применения проектные решения по обеспечению доступности для инвалидов и других маломобильных групп населения образовательных учреждений Санкт-Петербурга, построенных по типовым проектам в 60 - 80 годах XX века», Правительство Санкт-Петербурга. - СПб, 2012

[4] Федеральный закон от 22 июля 2008 г, № 123-ФЗ «Технический регламент о требованиях пожарной безопасности»».

Ключевые слова: требования к архитектурной среде, доступность, маломобильные группы населения, проектирование зданий и сооружений, пути движения, зоны обслуживания, санитарно-бытовые помещения, эргономические параметры.

 

Директор НИИСФ РААСН

_______________

личная подпись

И.Л. Шубин

СОИСПОЛНИТЕЛИ

ООО «Институт общественных зданий»

 

 

Директор по науке, канд. арх., профессор Почетный архитектор России

_______________

личная подпись

А.М. Гарнец

Вед. научн. сотрудник, к.т.н.

_______________

личная подпись

А.И. Цыганов

Президент Ассоциации МОАБ, доктор технических наук

_______________

личная подпись

М.М. Мирфатуллаев

Профессиональное объединение универсального дизайна «Доступная городская среда» Директор

_______________

личная подпись

В.В. Коновалова

 



© 2013 Ёшкин Кот :-)