Информационная система
«Ёшкин Кот»

Скачать базу одним архивом
Скачать обновления
История создания базы
Карта сайта

Скачать ГОСТ 21.408-2013 Система проектной документации для строительства. Правила выполнения рабочей документации автоматизации технологических процессов

Дата актуализации: 10.08.2017

ГОСТ 21.408-2013

Система проектной документации для строительства. Правила выполнения рабочей документации автоматизации технологических процессов

Обозначение: ГОСТ 21.408-2013
Обозначение англ: GOST 21.408-2013
Статус:взамен
Название рус.:Система проектной документации для строительства. Правила выполнения рабочей документации автоматизации технологических процессов
Название англ.:System of design documents for construction. Rules of industrial process automation working documentation execution
Дата добавления в базу:21.05.2015
Дата актуализации:05.05.2017
Дата введения:01.11.2014
Область применения:Стандарт устанавливает состав и правила оформления рабочей документации систем автоматизации технологических процессов и инженерных систем, зданий и сооружений проектируемых объектов строительства различного назначения.
Оглавление:1 Область применения
2 Нормативные ссылки
3 Термины, определения и сокращения
4 Общие положения
5 Основной комплект рабочих чертежей систем автоматизации
6 Эскизные чертежи общих видов нетиповых средств автоматизации
7 Спецификация оборудования, изделий и материалов
Приложение А (рекомендуемое) Марки основных комплектов рабочих чертежей систем технологических процессов
Приложение Б (рекомендуемое) Условные графические обозначения
Приложение В (справочное) Примеры выполнения схем автоматизации
Приложение Г (справочное) Примеры выполнения структурной схемы
Приложение Д (обязательное) Буквенные обозначения наиболее распространенных приборов и элементов пневмоавтоматики
Приложение Е (справочное) Примеры выполнения принципиальных пневматических схем
Приложение Ж (справочное) Пример выполнения перечня элементов
Приложение И (справочное) Пример выполнения схемы соединений внешних проводок
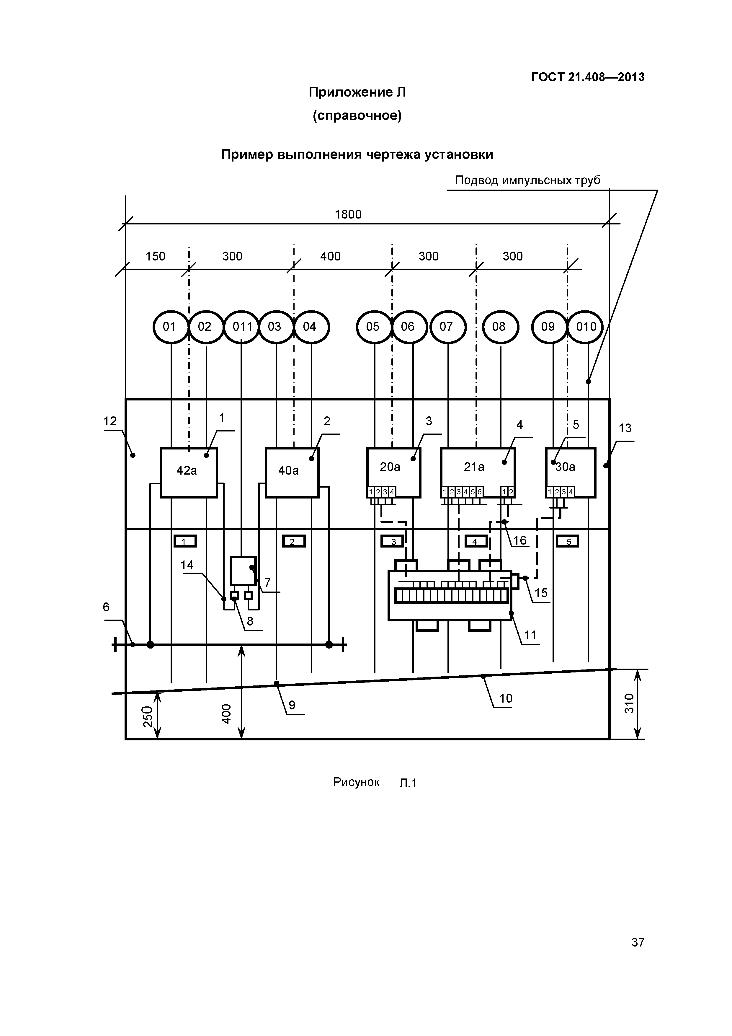
Приложение К (справочное) Пример изображения подключения внешних проводок к единичному односекционному щиту
Приложение Л (справочное) Пример выполнения чертежа установки
Разработан: ОАО Ассоциация Монтажавтоматика
Утверждён:14.11.2013 Межгосударственный Совет по стандартизации, метрологии и сертификации (Inter-Governmental Council on Standardization, Metrology, and Certification 44)
17.12.2013 Федеральное агентство по техническому регулированию и метрологии (2293-ст)
Издан: Стандартинформ (2014 г. )
Расположен в:Техническая документация Электроэнергия ОБЩИЕ ПОЛОЖЕНИЯ. ТЕРМИНОЛОГИЯ. СТАНДАРТИЗАЦИЯ. ДОКУМЕНТАЦИЯ Технические чертежи Экология ОБЩИЕ ПОЛОЖЕНИЯ. ТЕРМИНОЛОГИЯ. СТАНДАРТИЗАЦИЯ. ДОКУМЕНТАЦИЯ Технические чертежи Строительство Нормативные документы Документы Системы нормативных документов в строительстве Организационно-методические нормативные документы к.11 Инженерные изыскания для строительства и проектирование
Список изменений:
Заменяет собой:
Нормативные ссылки:
ГОСТ 21.408-2013ГОСТ 21.408-2013ГОСТ 21.408-2013ГОСТ 21.408-2013ГОСТ 21.408-2013ГОСТ 21.408-2013ГОСТ 21.408-2013ГОСТ 21.408-2013ГОСТ 21.408-2013ГОСТ 21.408-2013ГОСТ 21.408-2013ГОСТ 21.408-2013ГОСТ 21.408-2013ГОСТ 21.408-2013ГОСТ 21.408-2013ГОСТ 21.408-2013ГОСТ 21.408-2013ГОСТ 21.408-2013ГОСТ 21.408-2013ГОСТ 21.408-2013ГОСТ 21.408-2013ГОСТ 21.408-2013ГОСТ 21.408-2013ГОСТ 21.408-2013ГОСТ 21.408-2013ГОСТ 21.408-2013ГОСТ 21.408-2013ГОСТ 21.408-2013ГОСТ 21.408-2013ГОСТ 21.408-2013ГОСТ 21.408-2013ГОСТ 21.408-2013ГОСТ 21.408-2013ГОСТ 21.408-2013ГОСТ 21.408-2013ГОСТ 21.408-2013ГОСТ 21.408-2013ГОСТ 21.408-2013ГОСТ 21.408-2013ГОСТ 21.408-2013ГОСТ 21.408-2013ГОСТ 21.408-2013ГОСТ 21.408-2013

Текстовое изменение Поправка от 03.04.2015

Поправка

Текстовое изменение Поправка от 20.02.2016

Поправка

© 2013 Ёшкин Кот :-) Карта сайта