Скачать Указания по устройству и конструкции мостового полотна на железнодорожных мостахДата актуализации: 10.08.2017
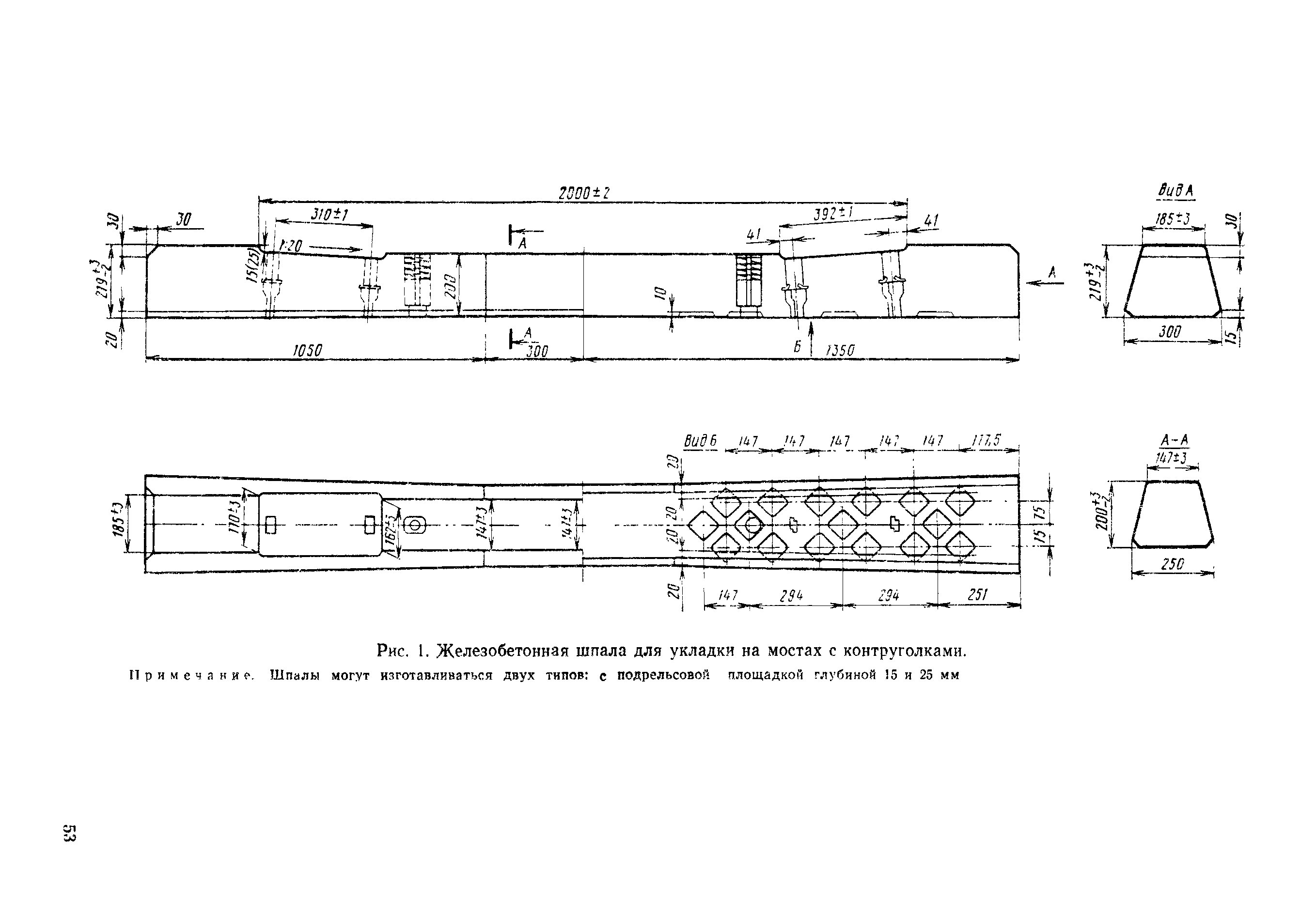
Указания по устройству и конструкции мостового полотна на железнодорожных мостахСтатус: | не установлен срок действия | Название рус.: | Указания по устройству и конструкции мостового полотна на железнодорожных мостах | Дата добавления в базу: | 01.09.2013 | Дата актуализации: | 05.05.2017 | Область применения: | Указания распространяются на железнодорожные линии с наибольшими установленными скоростями движения поездов: пассажирских - 140 км/ч, рефрижераторных - 120 км/ч, грузовых порожних - 100 км/ч, грузовых груженых - 90 км/ч. | Оглавление: | 1 Общие положения 2 Мостовое полотно с ездой на балласте 3 Мостовое полотно на деревянных поперечинах 4 Мостовое полотно на металлических поперечинах 5 Безбалластное мостовое полотно на железобетонных плитах 6 Мостовое полотно на деревянных мостах 7 Рельсы скрепления. Профиль пути на мостах 8 Охранные приспособления 9 Тротуары и убежища 10 Противопожарные обустройства Приложение 1. Требования к балластным материалам для мостового полотна Приложение 2. Железобетонные шпалы для мостов и требования на их изготовление (по проекту Гипротрансстроя, утвержденному Главным управлением пути МПС 30.03.1972 г. № ЦТП-123 для опытного применения) Приложение 3. Требования к древесине и обработке пиломатериалов для мостовых брусьев Приложение 4. Характеристика пороков древесины (в соответствии с ГОСТ 2140-81) Приложение 5. Клейма для мостовых брусьев Приложение 6. Способы предохранения мостовых брусьев от растрескивания Приложение 7. Объем и масса основных пропитанных мостовых брусьев Приложение 8. Металлические скрепления мостового полотна на деревянных поперечинах Приложение 9. Конструкции и требования на изготовление металлических поперечин и металлического настила внутри колеи Приложение 10. Рельсовые подкладки и металлические скрепления мостового полотна на металлических поперечинах Приложение 11. Плиты балластного мостового полотна и допуски на их изготовление Приложение 12. Металлические скрепления безбалластного мостового полотна на железобетонных плитах Приложение 13. Амортизирующие и изолирующие прокладки и втулки Приложение 14. Уравнительные приборы Приложение 15. Расчетные температуры рельсов на мостах сети железных дорог СССР для укладки уравнительных приборов и содержания бесстыкового пути Приложение 16. Указания по устройству и содержанию бесстыкового пути с уравнительными рельсами на металлических мостах Приложение 17. Рельсовые замки разводных мостов Приложение 18. Вкатыватели Приложение 19. Потребность металла на укладку контруголков Приложение 20. Потребность металла на укладку противоугонных (охранных) уголков Приложение 21. Потребность металла на мостики и столики Приложение 22. Раздельные тротуары на металлических мостах по проекту института Гипротранспуть Приложение 23. Конструкция и расход материалов на противопожарные обустройства на мостах Приложение 24. Перечень действующих государственных стандартов, отраслевых стандартов и технических условий на материалы, изделия и устройства для мостового полотна | Разработан: | Гипротранспуть Внии жт Главное управление пути МПС России Проектно-технологическое конструкторское бюро ЦП МПС
| Издан: | Издательство Транспорт (1989 г. )
| Расположен в: |
| Нормативные ссылки: | |
                                                                                                                      
|