Информационная система
«Ёшкин Кот»

Скачать базу одним архивом
Скачать обновления
История создания базы
Карта сайта

Скачать Серия 1.464-11/82 Выпуск 6. Стальные конструкции фонарей с применением в покрытии стального профилированного настила высотой 114 мм. Чертежи КМ

Дата актуализации: 10.08.2017

Серия 1.464-11/82

Выпуск 6. Стальные конструкции фонарей с применением в покрытии стального профилированного настила высотой 114 мм. Чертежи КМ

Обозначение: Серия 1.464-11/82
Обозначение англ: Series 1.464-11/82
Статус:заменен
Название рус.:Выпуск 6. Стальные конструкции фонарей с применением в покрытии стального профилированного настила высотой 114 мм. Чертежи КМ
Дата добавления в базу:01.09.2013
Дата актуализации:05.05.2017
Дата введения:01.12.1993
Оглавление:1.464-11/82.6-ПЗ Пояснительная записка
1.464-11/82.6-01КМ Схемы расположения конструкций фонаря шириной 12м. Шаг ферм 12м, 6м
1.464-11/82.6-02КМ Схемы расположения конструкций фонаря шириной 6м. Шаг ферм 12м, 6м. Разрезы 1-1;2-2;3-3;4-4
1.464-11/82.6-03КМ Разрезы 5-5;6-6;8-8;9-9. Виды 7-7;10-10. Узел 1
1.464-11/82.6-04КМ Фонарные панели ФП-1с-1;ФП-3с-1. Узел 2
1.464-11/82.6-05КМ Фонарные панели ФП-1с-2;ФП-3с-2
1.464-11/82.6-06КМ Фонарные панели ФП-2с-1;ФП-2с-2
1.464-11/82.6-07КМ Сортамент фонарных панелей
1.464-11/82.6-08КМ Фонарная ферма ФФ-1с-1 для фонаря шириной 12м
1.464-11/82.6-09КМ Фонарная ферма ФФ-2с-1 для фонаря шириной 6м. Фонарный раскос ФР. Сортамент фонарных ферм
1.464-11/82.6-10КМ Панель торца ПТ-1с-1 для фонаря шириной 12м
1.464-11/82.6-11КМ Панель торца ПТ-2с-1 для фонаря шириной 6м. Сортамент панелей торца
1.464-11/82.6-12КМ Узел 3 фонарной панели
1.464-11/82.6-13КМ Узлы 4 и 5 фонарной панели
1.464-11/82.6-14КМ Узлы 6…8 фонарной панели
1.464-11/82.6-15КМ Узлы 9…12 фонарной фермы ФФ-1с-1
1.464-11/82.6-16КМ Узлы 13…15 фонарной фермы ФФ-2с-1. Узлы 16,17 фонарного раскоса ФР
1.464-11/82.6-17КМ Узлы 18…20 панелей торца
1.464-11/82.6-18КМ Узлы 21,22 панелей торца
1.464-11/82.6-19КМ Узлы 23…25 панелей торца
1.464-11/82.6-20КМ Узлы 26…29 крепления прогонов и горизонтальной связи. Шаг ферм 12м
1.464-11/82.6-21КМ Узлы 30…32 крепления прогонов и горизонтальной связи. Шаг ферм 6м
1.464-11/82.6-22КМ Монтажные узлы 33,34. Прогоны П4,П5
1.464-11/82.6-23КМ Монтажные узлы 35…37
1.464-11/82.6-24КМ Монтажный узел 38
1.464-11/82.6-25КМ Спецификация стали
1.464-11/82.6-26КМ Конструктивные решения ограждающих конструкций фонарей
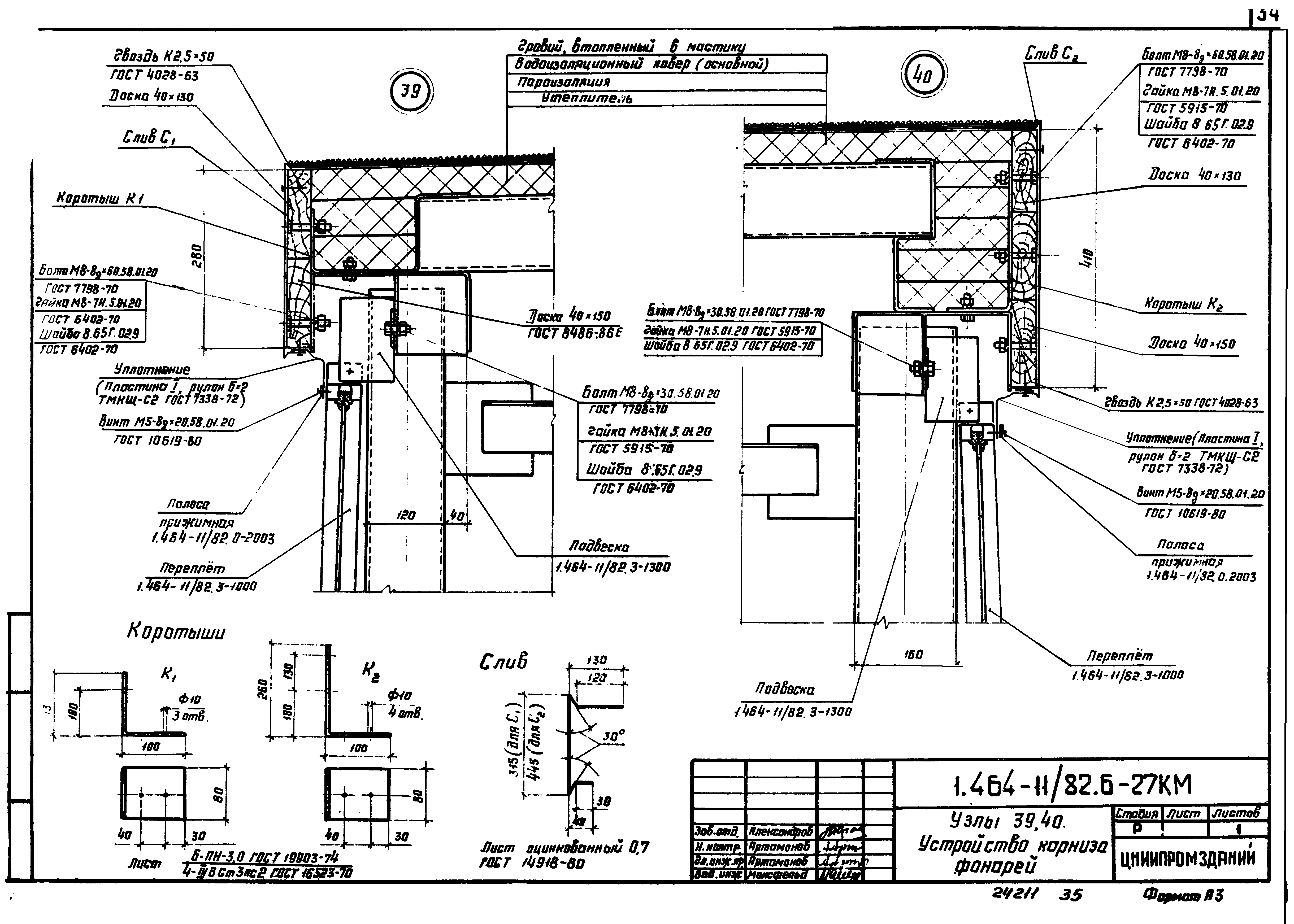
1.464-11/82.6-27КМ Узлы 39,40. Устройство карниза фонарей
1.464-11/82.6-28КМ Раскладка элементов ограждения карниза фонаря шириной 6м
1.464-11/82.6-29КМ Раскладка элементов ограждения карниза фонаря шириной 12м
Разработан: ЦНИИпромзданий
ЦНИИпроектстальконструкция Госстроя
Утверждён:10.10.1989 Госстрой СССР (Государственный комитет Совета Министров СССР по делам строительства) (USSR Gosstroy 4/5-1314)
Издан: ЦИТП Госстроя СССР (CITP, Gosstroy (USSR) 1990 г. )
Расположен в:Техническая документация Строительство Справочные документы Типовые строительные конструкции, изделия и узлы Общероссийский строительный каталог Строительные конструкции, изделия и узлы зданий и сооружений для всех видов строительства Конструкции, изделия и узлы зданий Несущие конструкции одноэтажных зданий Фонари Светоаэрационные
Чем заменён:
Серия 1.464-11/82Серия 1.464-11/82Серия 1.464-11/82Серия 1.464-11/82Серия 1.464-11/82Серия 1.464-11/82Серия 1.464-11/82Серия 1.464-11/82Серия 1.464-11/82Серия 1.464-11/82Серия 1.464-11/82Серия 1.464-11/82Серия 1.464-11/82Серия 1.464-11/82Серия 1.464-11/82Серия 1.464-11/82Серия 1.464-11/82Серия 1.464-11/82Серия 1.464-11/82Серия 1.464-11/82Серия 1.464-11/82Серия 1.464-11/82Серия 1.464-11/82Серия 1.464-11/82Серия 1.464-11/82Серия 1.464-11/82Серия 1.464-11/82Серия 1.464-11/82Серия 1.464-11/82Серия 1.464-11/82Серия 1.464-11/82Серия 1.464-11/82Серия 1.464-11/82Серия 1.464-11/82Серия 1.464-11/82Серия 1.464-11/82Серия 1.464-11/82

© 2013 Ёшкин Кот :-) Карта сайта