Информационная система
«Ёшкин Кот»

Скачать базу одним архивом
Скачать обновления
История создания базы
Карта сайта

Скачать Серия 1.232-3 Выпуск 12. Панели толщиной 114 и 164 мм на деревянном каркасе с утеплителем из минераловатных плит. Рабочие чертежи

Дата актуализации: 10.08.2017

Серия 1.232-3

Выпуск 12. Панели толщиной 114 и 164 мм на деревянном каркасе с утеплителем из минераловатных плит. Рабочие чертежи

Обозначение: Серия 1.232-3
Обозначение англ: Series 1.232-3
Статус:не действует
Название рус.:Выпуск 12. Панели толщиной 114 и 164 мм на деревянном каркасе с утеплителем из минераловатных плит. Рабочие чертежи
Дата добавления в базу:01.09.2013
Дата актуализации:05.05.2017
Дата введения:01.05.1999
Область применения:Выпуск 12 содержит рабочие чертежи асбестоцементных навесных стеновых панелей, предназначенных для применения при проектировании и строительстве общественных зданий
Оглавление:1.232-3.12-00.00 ТО Техническое описание
1.232-3.12-01.00 Панель глухая ПР1-15.28.12… ПП1-11.39.12
1.232-3.12-01.00 СБ Панель глухая ПР1-15.28.12… ПП1-11.39.12. Сборочный чертеж
1.232-3.12-01.10 Панель глухая. Каркас КД-1… КД-12
1.232-3.12-01.10 СБ Панель глухая. Каркас КД-1… КД-12. Сборочный чертеж
1.232-3.12-02.00 Панель с окном ПР2-15.28.12-1… ПП2-15.39.12-8
1.232-3.12-02.00 СБ Панель с окном ПР1-15.28.12-1… ПП1-15.39.12-8. Сборочный чертеж
1.232-3.12-02.10 Панель с окном. Каркас КД-13… КД-36
1.232-3.12-02.10 СБ Панель с окном. Каркас КД-13… КД-36. Сборочный чертеж
1.232-3.12-03.00 Панель с дверью ПР3-15.28.12-1… ПР3-15.42.12-2
1.232-3.12-03.00 СБ Панель с дверью ПР1-15.28.12-1… ПР3-15.42.12-2. Сборочный чертеж
1.232-3.12-03.10 Панель с дверью. Каркас КД-37… КД-44
1.232-3.12-03.10 СБ Панель с дверью. Каркас КД-37… КД-44. Сборочный чертеж
1.232-3.12-04.00 Панель угловая для наружных углов ПУ3-10.28.12-н… ПУп-11.6.12-н
1.232-3.12-04.00 СБ Панель угловая для наружных углов ПУ3-10.28.12-н… ПУп-11.6.12-н. Сборочный чертеж
1.232-3.12-04.10 Панель угловая для наружных углов. Каркас КД-45… КД-56
1.232-3.12-04.10 СБ Панель угловая для наружных углов. Каркас КД-45… КД-56. Сборочный чертеж
1.232-3.12-05.00 Панель угловая для внутренних углов ПУ3-5.28.12-В… ПУП-6.6.12-В
1.232-3.12-05.00 СБ Панель угловая для внутренних углов ПУ3-5.28.12-В… ПУП-6.6.12-В. Сборочный чертеж
1.232-3.12-05.10 Панель угловая для внутренних углов. Каркас КД-57… КД-68
1.232-3.12-05.10 СБ Панель угловая для внутренних углов. Каркас КД-57… КД-68. Сборочный чертеж
1.232-3.12-06.00 Панель глухая ПР1-15.28.17… ПП1-11.39.17
1.232-3.12-06.00 СБ Панель глухая ПР1-15.28.17… ПП1-11.39.17. Сборочный чертеж
1.232-3.12-06.10 Панель глухая. Каркас КД-69… КД-80
1.232-3.12-06.10 СБ Панель глухая. Каркас КД-69… КД-80. Сборочный чертеж
1.232-3.12-07.00 Панель с окном ПР2-15.28.17-1… ПП2-15.39.17-8
1.232-3.12-07.00 СБ Панель с окном ПР2-15.28.17-1… ПП2-15.39.17-8. Сборочный чертеж
1.232-3.12-07.10 Панель с окном. Каркас КД-81… КД-104
1.232-3.12-07.10 СБ Панель с окном. Каркас КД-81… КД-104. Сборочный чертеж
1.232-3.12-08.00 Панель с дверью ПР3-15.28.17-1… ПР3-15.42.17-2
1.232-3.12-08.00 СБ Панель с дверью ПР1-15.28.17-1… ПР3-11.42.17-2. Сборочный чертеж
1.232-3.12-08.10 Панель с дверью. Каркас КД-105… КД-112
1.232-3.12-08.10 СБ Панель с дверью. Каркас КД-105… КД-112. Сборочный чертеж
1.232-3.12-09.00 Панель угловая для наружных углов ПУ3-11.28.17-н… ПУп-12.6.17-н
1.232-3.12-09.00 СБ Панель угловая для наружных углов ПУ3-11.28.17-н… ПУп-12.6.17-н. Сборочный чертеж
1.232-3.12-09.10 Панель угловая для наружных углов. Каркас КД-113… КД-124
1.232-3.12-09.10 СБ Панель угловая для наружных углов. Каркас КД-113… КД-124. Сборочный чертеж
1.232-3.12-10.00 Панель угловая для внутренних углов ПУ-5.28.17-В… ПУП-6.6.17-В
1.232-3.12-10.00 СБ Панель угловая для внутренних углов ПУ-5.28.17-В… ПУП-6.6.17-В. Сборочный чертеж
1.232-3.12-10.10 Панель угловая для внутренних углов. Каркас КД-125… КД-136
1.232-3.12-10.10 СБ Панель угловая для внутренних углов. Каркас КД-125… КД-136. Сборочный чертеж
1.232-3.12-00.01 Подъемная петля ПП-1
1.232-3.12-00.01 СБ Подъемная петля ПП-1. Сборочный чертеж
1.232-3.12-00.01-00 Хомут
1.232-3.12-00.01-01 Пластина
1.232-3.12-00.02 Закладная деталь ЗД-1
1.232-3.12-00.02 СБ Закладная деталь ЗД-1. Сборочный чертеж
1.232-3.12-00.02-00 Втулка
1.232-3.12-00.02-01 Пластина
1.232-3.12-00.03 СБ Закладная деталь ЗД-2. Сборочный чертеж
1.232-3.12-00.03-00 Уголок
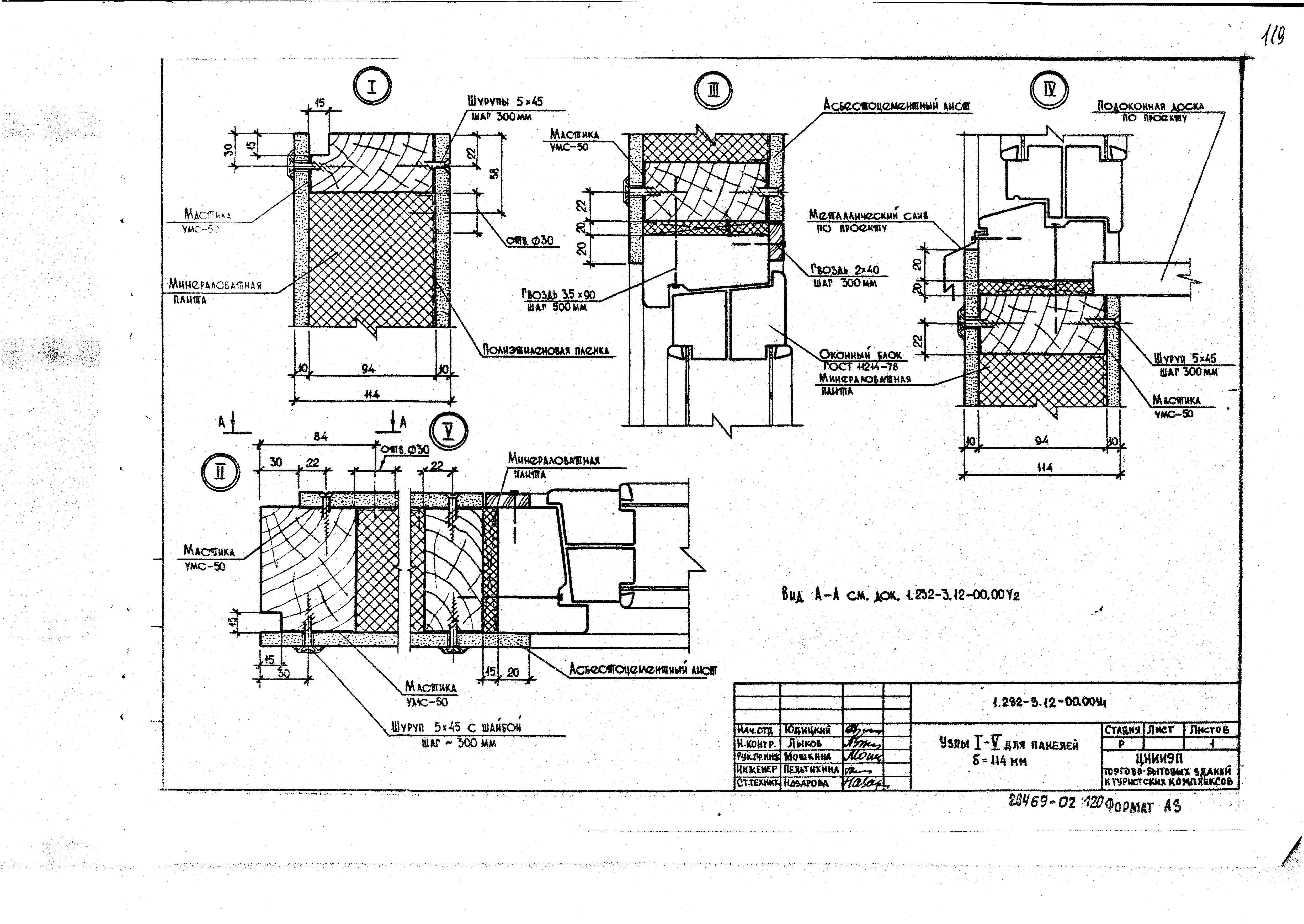
1.232-3.12-00.00 У1 Узлы I - V для панелей б = 144 мм
1.232-3.12-00.00 У2 Узлы VI - IX для панелей б = 144 мм
1.232-3.12-00.00 У3 Узлы X - XII для панелей б = 144 мм
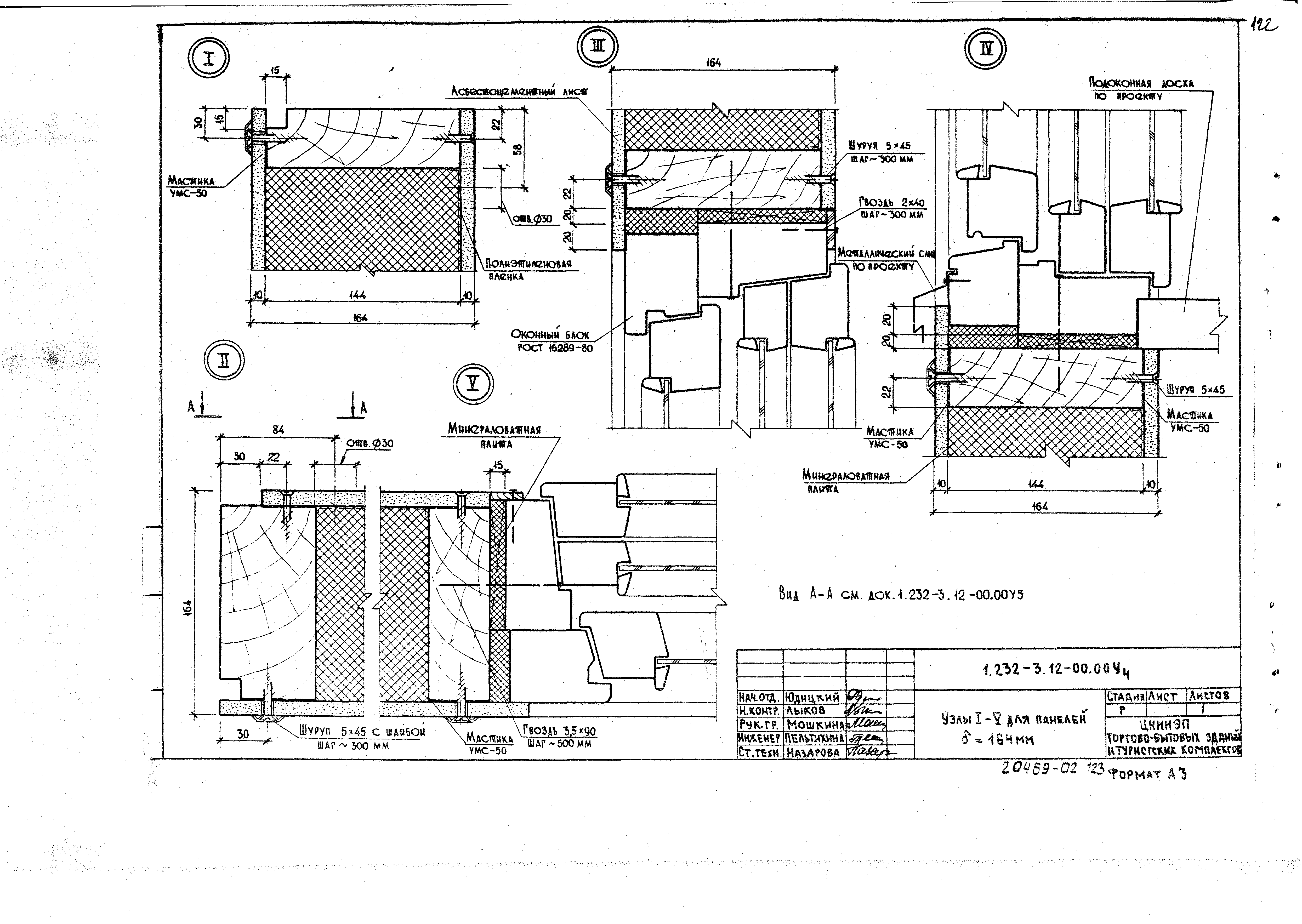
1.232-3.12-00.00 У4 Узлы I - V для панелей б = 144 мм
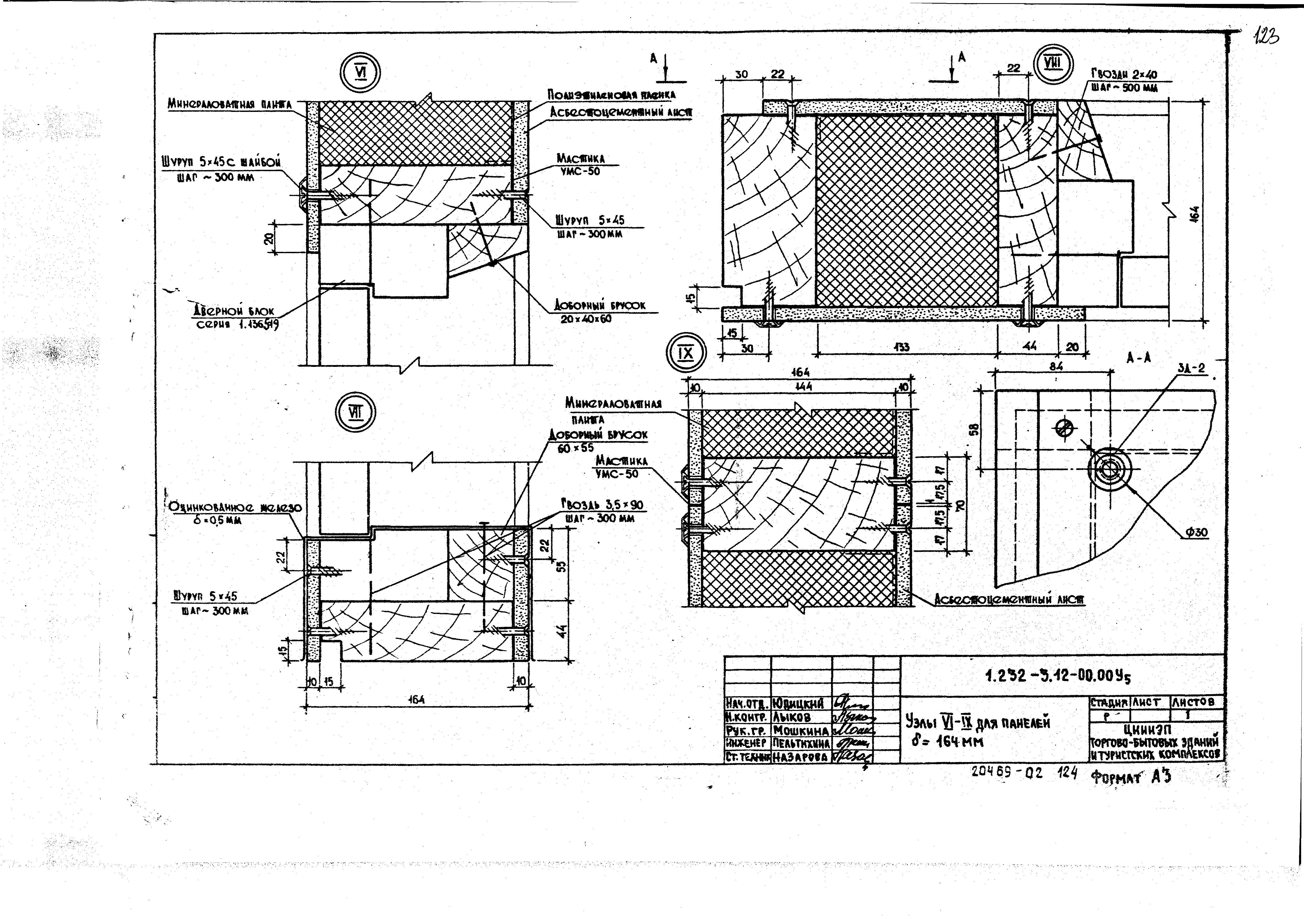
1.232-3.12-00.00 У5 Узлы VI - IX для панелей б = 144 мм
1.232-3.12-00.00 У6 Узлы X - XII для панелей б = 144 мм
1.232-3.12-00.00 У7 Узлы каркасов I - III
1.232-3.12-00.00 У8 Узлы каркасов IV, V
Разработан: ЦНИИЭП торгово-бытовых зданий и туристских комплексов
Утверждён:09.04.1985 Государственный комитет по гражданскому строительству (100)
Расположен в:Техническая документация Строительство Справочные документы Типовые строительные конструкции, изделия и узлы Общероссийский строительный каталог Строительные конструкции, изделия и узлы зданий и сооружений для всех видов строительства Конструкции, изделия и узлы зданий Ограждающие конструкции Стены наружные Панели (бетонные и железобетонные)
Нормативные ссылки:
Серия 1.232-3Серия 1.232-3Серия 1.232-3Серия 1.232-3Серия 1.232-3Серия 1.232-3Серия 1.232-3Серия 1.232-3Серия 1.232-3Серия 1.232-3Серия 1.232-3Серия 1.232-3Серия 1.232-3Серия 1.232-3Серия 1.232-3Серия 1.232-3Серия 1.232-3Серия 1.232-3Серия 1.232-3Серия 1.232-3Серия 1.232-3Серия 1.232-3Серия 1.232-3Серия 1.232-3Серия 1.232-3Серия 1.232-3Серия 1.232-3Серия 1.232-3Серия 1.232-3Серия 1.232-3Серия 1.232-3Серия 1.232-3Серия 1.232-3Серия 1.232-3Серия 1.232-3Серия 1.232-3Серия 1.232-3Серия 1.232-3Серия 1.232-3Серия 1.232-3Серия 1.232-3Серия 1.232-3Серия 1.232-3Серия 1.232-3Серия 1.232-3Серия 1.232-3Серия 1.232-3Серия 1.232-3Серия 1.232-3Серия 1.232-3Серия 1.232-3Серия 1.232-3Серия 1.232-3Серия 1.232-3Серия 1.232-3Серия 1.232-3Серия 1.232-3Серия 1.232-3Серия 1.232-3Серия 1.232-3Серия 1.232-3Серия 1.232-3Серия 1.232-3Серия 1.232-3Серия 1.232-3Серия 1.232-3Серия 1.232-3Серия 1.232-3Серия 1.232-3Серия 1.232-3Серия 1.232-3Серия 1.232-3Серия 1.232-3Серия 1.232-3Серия 1.232-3Серия 1.232-3Серия 1.232-3Серия 1.232-3Серия 1.232-3Серия 1.232-3Серия 1.232-3Серия 1.232-3Серия 1.232-3Серия 1.232-3Серия 1.232-3Серия 1.232-3Серия 1.232-3Серия 1.232-3Серия 1.232-3Серия 1.232-3Серия 1.232-3Серия 1.232-3Серия 1.232-3Серия 1.232-3Серия 1.232-3Серия 1.232-3Серия 1.232-3Серия 1.232-3Серия 1.232-3Серия 1.232-3Серия 1.232-3Серия 1.232-3Серия 1.232-3Серия 1.232-3Серия 1.232-3Серия 1.232-3Серия 1.232-3Серия 1.232-3Серия 1.232-3Серия 1.232-3Серия 1.232-3Серия 1.232-3Серия 1.232-3Серия 1.232-3Серия 1.232-3Серия 1.232-3Серия 1.232-3Серия 1.232-3Серия 1.232-3Серия 1.232-3Серия 1.232-3Серия 1.232-3Серия 1.232-3Серия 1.232-3

© 2013 Ёшкин Кот :-) Карта сайта