Скачать Серия 1.116.1-6 Выпуск 1. Цокольные блоки толщиной 35, 40, 45 и 55 смДата актуализации: 10.08.2017 Серия 1.116.1-6
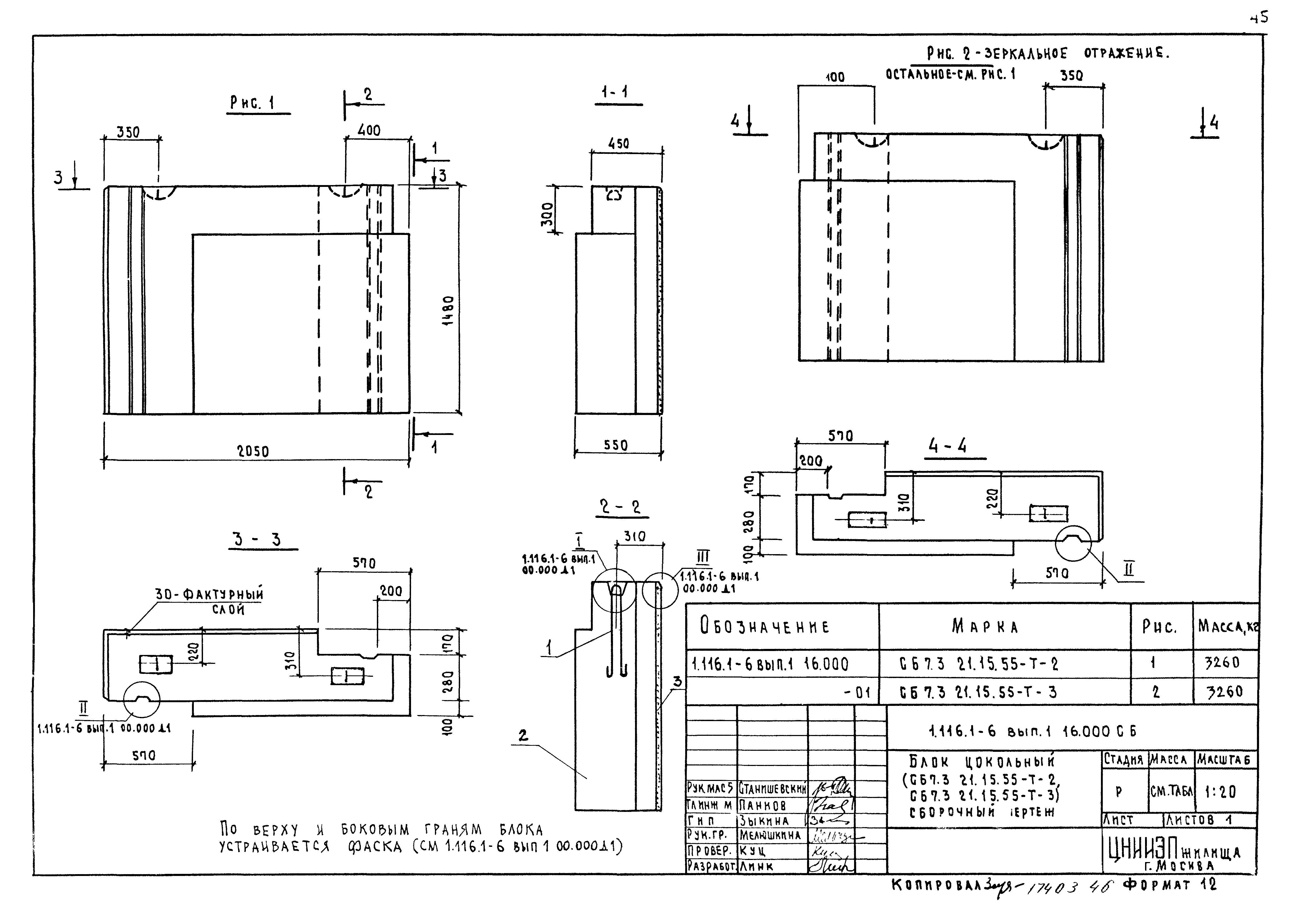
Выпуск 1. Цокольные блоки толщиной 35, 40, 45 и 55 смОбозначение: | Серия 1.116.1-6 | Обозначение англ: | Series 1.116.1-6 | Статус: | заменен | Название рус.: | Выпуск 1. Цокольные блоки толщиной 35, 40, 45 и 55 см | Дата добавления в базу: | 01.09.2013 | Дата актуализации: | 05.05.2017 | Дата введения: | 01.10.1989 | Область применения: | Рабочие чертежи цокольных блоков, разработанные в настоящем выпуске, предназначены для изготовления блоков предприятиями строительной промышленности и применения в наружных стенах жилых домов с крупноблочными стенами высотой 5 - 9 этажей. Настоящий выпуск содержит техническое описание, сборочные чертежи цокольных блоков, арматурные изделия, узлы, детали и закладные изделия | Оглавление: | 1.116.1-6.вып.100.000 Содержание 1.116.1-6.вып.100.000 ТО Технические описание 1.116.1-6.вып.100.000 Тб1 Номенклатура 1.116.1-6.вып.100.000 Тб2 Выборка стали 1.116.1-6.вып.101.000 Блок цокольный СБ7.1 12.13.35-Т-1, СБ7.1 12.13.45-Т-1, СБ7.1 12.13.55-Т-1 1.116.1-6.вып.101.000 СБ Блок цокольный (СБ7.1 12.13.35-Т-1, СБ7.1 12.13.45-Т-1, СБ7.1 12.13.55-Т-1) сборочный чертеж 1.116.1-6.вып.102.000 Блок цокольный СБ7.1 15.13.35-Т-1, СБ7.1 15.13.45-Т-1, СБ7.1 15.13.55-Т-1 1.116.1-6.вып.102.000 СБ Блок цокольный (СБ7.1 15.13.35-Т-1, СБ7.1 15.13.45-Т-1, СБ7.1 15.13.55-Т-1) сборочный чертеж 1.116.1-6.вып.103.000 Блок цокольный СБ7.1 12.15.35-Т-1, СБ7.1 12.15.45-Т-1, СБ7.1 12.15.55-Т-1 1.116.1-6.вып.103.000 СБ Блок цокольный (СБ7.1 12.15.35-Т-1, СБ7.1 12.15.45-Т-1, СБ7.1 12.15.55-Т-1) сборочный чертеж 1.116.1-6.вып.104.000 Блок цокольный СБ7.1 15.15.35-Т-1, СБ7.1 15.15.45-Т-1, СБ7.1 15.15.55-Т-1 1.116.1-6.вып.104.000 СБ Блок цокольный (СБ7.1 15.15.35-Т-1, СБ7.1 15.15.45-Т-1, СБ7.1 15.15.55-Т-1) сборочный чертеж 1.116.1-6.вып.105.000 Блок цокольный СБ7.1 15.13.35-Т-1.1, СБ7.1 15.13.45-Т-1.1, СБ7.1 15.13.55-Т-1.1 1.116.1-6.вып.105.000 СБ Блок цокольный (СБ7.1 15.13.35-Т-1.1, СБ7.1 15.13.45-Т-1.1, СБ7.1 15.13.55-Т-1.1) сборочный чертеж 1.116.1-6.вып.106.000 Блок цокольный СБ7.1 15.15.35-Т-1.1, СБ7.1 15.15.45-Т-1.1, СБ7.1 15.15.55-Т-1.1 1.116.1-6.вып.106.000 СБ Блок цокольный (СБ7.1 15.15.35-Т-1.1, СБ7.1 15.15.45-Т-1.1, СБ7.1 15.15.55-Т-1.1) сборочный чертеж 1.116.1-6.вып.107.000 Блок цокольный СБ7.1 9.13.35-Т-1, СБ7.1 9.13.45-Т-1, СБ7.1 9.13.55-Т-1 1.116.1-6.вып.108.000 Блок цокольный СБ7.1 9.15.35-Т-1, СБ7.1 9.15.45-Т-1, СБ7.1 9.15.55-Т-1 1.116.1-6.вып.107.000 СБ Блок цокольный (СБ7.1 9.13.35-Т-1, СБ7.1 9.13.45-Т-1, СБ7.1 9.13.55-Т-1) сборочный чертеж 1.116.1-6.вып.108.000 СБ Блок цокольный (СБ7.1 9.15.35-Т-1, СБ7.1 9.15.45-Т-1, СБ7.1 9.15.55-Т-1) сборочный чертеж 1.116.1-6.вып.109.000 Блок цокольный СБ7.1 15.14.35-Т-1.2, СБ7.1 15.14.45-Т-1.2, СБ7.1 15.14.55-Т-1.2 1.116.1-6.вып.109.000 СБ Блок цокольный (СБ7.1 15.14.35-Т-1.2, СБ7.1 15.14.45-Т-1.2, СБ7.1 15.14.55-Т-1.2) сборочный чертеж 1.116.1-6.вып.110.000 Блок цокольный СБ7.2 16.13.45-Т-2, СБ7.2 16.13.55-Т-2 1.116.1-6.вып.111.000 Блок цокольный СБ7.2 16.13.45-Т-3, СБ7.2 16.13.55-Т-3 1.116.1-6.вып.110.000 СБ Блок цокольный (СБ7.2 16.13.45-Т-2, СБ7.2 16.13.55-Т-2) сборочный чертеж 1.116.1-6.вып.111.000 СБ Блок цокольный СБ7.2 16.13.45-Т-3, СБ7.2 16.13.55-Т-3) сборочный чертеж 1.116.1-6.вып.112.000 Блок цокольный СБ7.2 15.15.35-Т-2, СБ7.2 16.15.45-Т-2,СБ7.2 17.15.55-Т-2 1.116.1-6.вып.112.000 СБ Блок цокольный (СБ7.2 15.15.35-Т-2, СБ7.2 16.15.45-Т-2,СБ7.2 17.15.55-Т-2) сборочный чертеж 1.116.1-6.вып.113.000 Блок цокольный СБ7.2 15.15.35-Т-3, СБ7.2 16.15.45-Т-3,СБ7.2 17.15.55-Т-3 1.116.1-6.вып.113.000 СБ Блок цокольный (СБ7.2 15.15.35-Т-3, СБ7.2 16.15.45-Т-3,СБ7.2 17.15.55-Т-3) сборочный чертеж 1.116.1-6.вып.114.000 Блок цокольный СБ7.3 19.15.40-Т-2, СБ7.3 19.15.40-Т-3 1.116.1-6.вып.115.000 Блок цокольный СБ7.3 20.15.45-Т-2, СБ7.3 20.15.45-Т-3 1.116.1-6.вып.114.000 СБ Блок цокольный (СБ7.3 19.15.40-Т-2, СБ7.3 19.15.40-Т-3) сборочный чертеж 1.116.1-6.вып.115.000 СБ Блок цокольный (СБ7.3 20.15.45-Т-2, СБ7.3 20.15.45-Т-3) сборочный чертеж 1.116.1-6.вып.116.000 Блок цокольный СБ7.3 21.15.55-Т-2, СБ7.3 21.15.55-Т-3 1.116.1-6.вып.117.000 Блок цокольный СБ7.5 16.15.40-Т-2, СБ7.5 16.15.40-Т-3 1.116.1-6.вып.116.000 СБ Блок цокольный (СБ7.3 21.15.55-Т-2, СБ7.3 21.15.55-Т-3) сборочный чертеж 1.116.1-6.вып.117.000 СБ Блок цокольный (СБ7.5 16.15.40-Т-2, СБ7.5 16.15.40-Т-3) сборочный чертеж 1.116.1-6.вып.118.000 Блок цокольный СБ7.5 17.15.45-Т-2, СБ7.5 17.15.45-Т-3 1.116.1-6.вып.119.000 Блок цокольный СБ7.5 18.15.55-Т-2, СБ7.5 18.15.55-Т-3 1.116.1-6.вып.118.000 СБ Блок цокольный (СБ7.5 17.15.45-Т-2, СБ7.5 17.15.45-Т-3) сборочный чертеж 1.116.1-6.вып.119.000 СБ Блок цокольный (СБ7.5 18.15.55-Т-2, СБ7.5 18.15.55-Т-3) сборочный чертеж 1.116.1-6.вып.100.000 Д1 Узлы I, II, III, IV, V 1.116.1-6.вып.109.100 Блок арматурный АБ-1 1.116.1-6.вып.109.200 Блок арматурный АБ-2 1.116.1-6.вып.109.300 Блок арматурный АБ-3 1.116.1-6.вып.109.110 Сетка С-1 1.116.1-6.вып.109.120 Сетка С-2, С-3, С-4 1.116.1-6.вып.109.120 СБ Сетка С-2, С-3, С-4. Сборочный чертеж 1.116.1-6.вып.109.130 Каркас КР-1, КР-2, КР-3 1.116.1-6.вып.109.130 СБ Каркас КР-1, КР-2, КР-3. Сборочный чертеж 1.116.1-6.вып.105.010 Сетка С-5 1.116.1-6.вып.105.020 Сетка С-6 1.116.1-6.вып.105.030 Сетка С-7 1.116.1-6.вып.101.001 Петля строповочная П-1, П-2, П-3, П-4 1.116.1-6.вып.116.001 Петля строповочная П-5 | Разработан: | ЦНИИЭП жилища
| Утверждён: | 04.06.1981 Государственный комитет по гражданскому строительству и архитектуре при Госстрое СССР (177)
| Расположен в: |
| Заменяет собой: | - Серия 1.116-2 «Цокольные блоки для крупноблочных жилых зданий»
| Чем заменён: | | Нормативные ссылки: | |
                                                       
|