Скачать ГОСТ Р МЭК 61587-1-2013 Конструкции несущие базовые радиоэлектронных средств. Испытания для МЭК 60917 и МЭК 60297. Часть 1. Климатические, механические испытания и виды безопасности для шкафов, стоек, блочных каркасов и шассиДата актуализации: 10.08.2017 ГОСТ Р МЭК 61587-1-2013
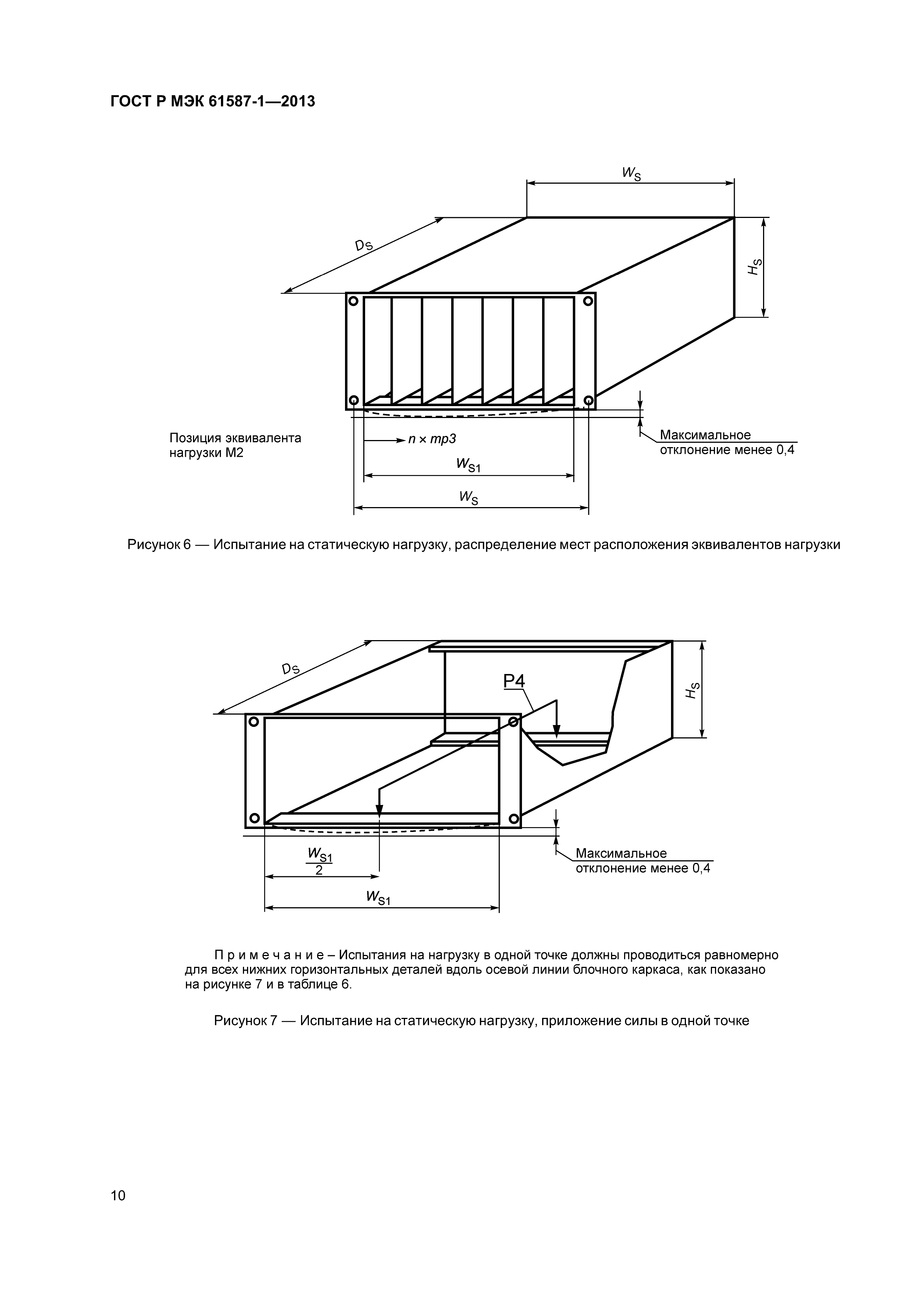
Конструкции несущие базовые радиоэлектронных средств. Испытания для МЭК 60917 и МЭК 60297. Часть 1. Климатические, механические испытания и виды безопасности для шкафов, стоек, блочных каркасов и шассиОбозначение: | ГОСТ Р МЭК 61587-1-2013 | Обозначение англ: | GOST R IEC 61587-1-2013 | Статус: | действует | Название рус.: | Конструкции несущие базовые радиоэлектронных средств. Испытания для МЭК 60917 и МЭК 60297. Часть 1. Климатические, механические испытания и виды безопасности для шкафов, стоек, блочных каркасов и шасси | Название англ.: | Mechanical structures for electronic equipment. Tests for IEC 60917 and IEC 60297. Part 1. Climatic, mechanical tests and safety aspects for cabinets, racks, subracks and chassis | Дата добавления в базу: | 01.10.2014 | Дата актуализации: | 05.05.2017 | Дата введения: | 03.03.2014 | Область применения: | Стандарт устанавливает механические испытания, климатические испытания и виды безопасности для шкафов, стоек, блочных каркасов и шасси, соответствующих стандартам МЭК 60917 и МЭК 60297, устанавливаемых в помещениях. | Оглавление: | 1 Область применения 2 Нормативные ссылки 3 Общие положения 4 Климатические испытания 4.1 Общие положения 4.2 Холод, сухое тепло и влажное тепло (циклическое воздействие) 4.3 Промышленная атмосфера 5 Механические испытания 5.1 Общие положения 5.2 Статические механические испытания под нагрузкой 5.3 динамические механические испытания под нагрузкой 6 Аспекты безопасности 6.1 Общие положения 6.2 Заземление 6.3 Воспламеняемость 6.4 Степени защиты, обеспечиваемые оболочками (код IР) Приложение ДА (справочное) Сведения о соответствии ссылочных международных стандартов национальным стандартам Российской Федерации и действующим в этом качестве межгосударственным стандартам | Разработан: | ЗАО Авангард-ТехСт
| Утверждён: | 28.06.2013 Федеральное агентство по техническому регулированию и метрологии (370-ст)
| Издан: | Стандартинформ (2014 г. )
| Расположен в: |
| Нормативные ссылки: |   ГОСТ 15150-69 «Машины, приборы и другие технические изделия. Исполнения для различных климатических районов. Категории, условия эксплуатации, хранения и транспортирования в части воздействия климатических факторов внешней среды»  ГОСТ 28198-89 «Основные методы испытаний на воздействие внешних факторов. Часть 1. Общие положения и руководство»  ГОСТ 14254-96 «Степени защиты, обеспечиваемые оболочками (код IP)»  ГОСТ Р 51350-99 «Безопасность электрических контрольно-измерительных приборов и лабораторного оборудования. Часть 1. Общие требования» ГОСТ 28199-89 «Основные методы испытаний на воздействие внешних факторов. Часть 2. Испытания. Испытание А: Холод» ГОСТ 28200-89 «Основные методы испытаний на воздействие внешних факторов. Часть 2. Испытания. Испытание В: Сухое тепло» ГОСТ 28203-89 «Основные методы испытаний на воздействие внешних факторов. Часть 2. Испытания. Испытание Fс и руководство: Вибрация (синусоидальная)» ГОСТ 28207-89 «Основные методы испытаний на воздействие внешних факторов. Часть 2. Испытания. Испытание Ка: Соляной туман» ГОСТ 28213-89 «Основные методы испытаний на воздействие внешних факторов. Часть 2. Испытания. Испытание Еа и руководство: Одиночный удар» ГОСТ 28216-89 «Основные методы испытаний на воздействие внешних факторов. Часть 2. Испытания. Испытание Db и руководство : Влажное тепло, циклическое (12 + 12 часовой цикл)» ГОСТ 28226-89 «Основные методы испытаний на воздействие внешних факторов. Часть 2. Испытания. Испытание Кс: Испытание контактов и соединений на воздействие двуокиси серы»  ГОСТ 28227-89 «Основные методы испытаний на воздействие внешних факторов. Часть 2. Испытания. Испытание Кd: Испытание контактов и соединений на воздействие сероводорода» ГОСТ 28233-89 «Основные методы испытаний на воздействие внешних факторов. Часть 2. Испытания. Руководство по испытанию Кс: Испытания контактов и соединений на воздействие двуокиси серы» ГОСТ 28234-89 «Основные методы испытаний на воздействие внешних факторов. Часть 2. Испытания. Испытание Кb: Соляной туман, циклическое (раствор хлорида натрия)»  ГОСТ Р МЭК 60297-3-102-2006 «Конструкции несущие базовые радиоэлектронных средств. Рукоятка инжектора-экстрактора. Размеры конструкций серии 482,6 мм (19 дюймов)»  ГОСТ Р МЭК 60297-3-103-2006 «Конструкции несущие базовые радиоэлектронных средств. Система ключей и ловитель для установки. Размеры конструкций серии 482,6 мм (19 дюймов)»  ГОСТ Р МЭК 60297-3-101-2006 «Конструкции несущие базовые радиоэлектронных средств. Блочные каркасы и связанные с ними вставные блоки. Размеры конструкций серии 482,6 мм (19 дюймов)»  ГОСТ Р 52762-2007 «Методы испытаний на стойкость к механическим внешним воздействующим факторам машин, приборов и других технических изделий. Испытания на воздействие ударов по оболочке изделий»  ГОСТ Р МЭК 60950-1-2009 «Оборудование информационных технологий. Требования безопасности. Часть 1. Общие требования»  ГОСТ Р МЭК 60917-2-3-2009 «Конструкции несущие базовые радиоэлектронных средств. Координационные размеры интерфейса для базовых несущих конструкций с шагом 25 мм. Размеры для блочных каркасов, шасси, объединительных плат, передних панелей и вставных блоков»  ГОСТ Р МЭК 60297-3-104-2009 «Конструкции несущие базовые радиоэлектронных средств. Размеры блочных каркасов и вставных блоков, зависящие от серии применяемых разъемов. Размеры конструкций серии 482,6 мм (19 дюймов)» ГОСТ Р МЭК 60917-1-2011 «Модульный принцип построения базовых несущих конструкций для электронного оборудования. Часть 1. Общий стандарт» ГОСТ Р МЭК 60917-2-2011 «Модульный принцип построения базовых несущих конструкций для электронного оборудования. Часть 2. Секционный стандарт. Координационные размеры интерфейса для несущих конструкций с шагом 25 мм» ГОСТ Р МЭК 60917-2-1-2011 «Модульный принцип построения базовых несущих конструкций для электронного оборудования. Часть 2. Секционный стандарт. Координационные размеры интерфейса для несущих конструкций с шагом 25 мм. Раздел 1. Детальный стандарт. Размеры шкафов и стоек» ГОСТ Р МЭК 60917-2-2-2013 «Модульный принцип построения механических конструкций для радиоэлектронных средств. Часть 2. Секционный стандарт. Координационные размеры интерфейса для несущих конструкций с шагом 25 мм. Раздел 2. Детальный стандарт. Размеры блочных каркасов, шасси, объединительных плат, передних панелей и вставных блоков»
|
                      
|