Информационная система
«Ёшкин Кот»

Скачать базу одним архивом
Скачать обновления
История создания базы
Карта сайта

Скачать НП 1.7-82 Психоневрологические интернаты

Дата актуализации: 10.08.2017

НП 1.7-82

Психоневрологические интернаты

Обозначение: НП 1.7-82
Обозначение англ: NP 1.7-82
Статус:не действует
Название рус.:Психоневрологические интернаты
Дата добавления в базу:01.09.2013
Дата актуализации:05.05.2017
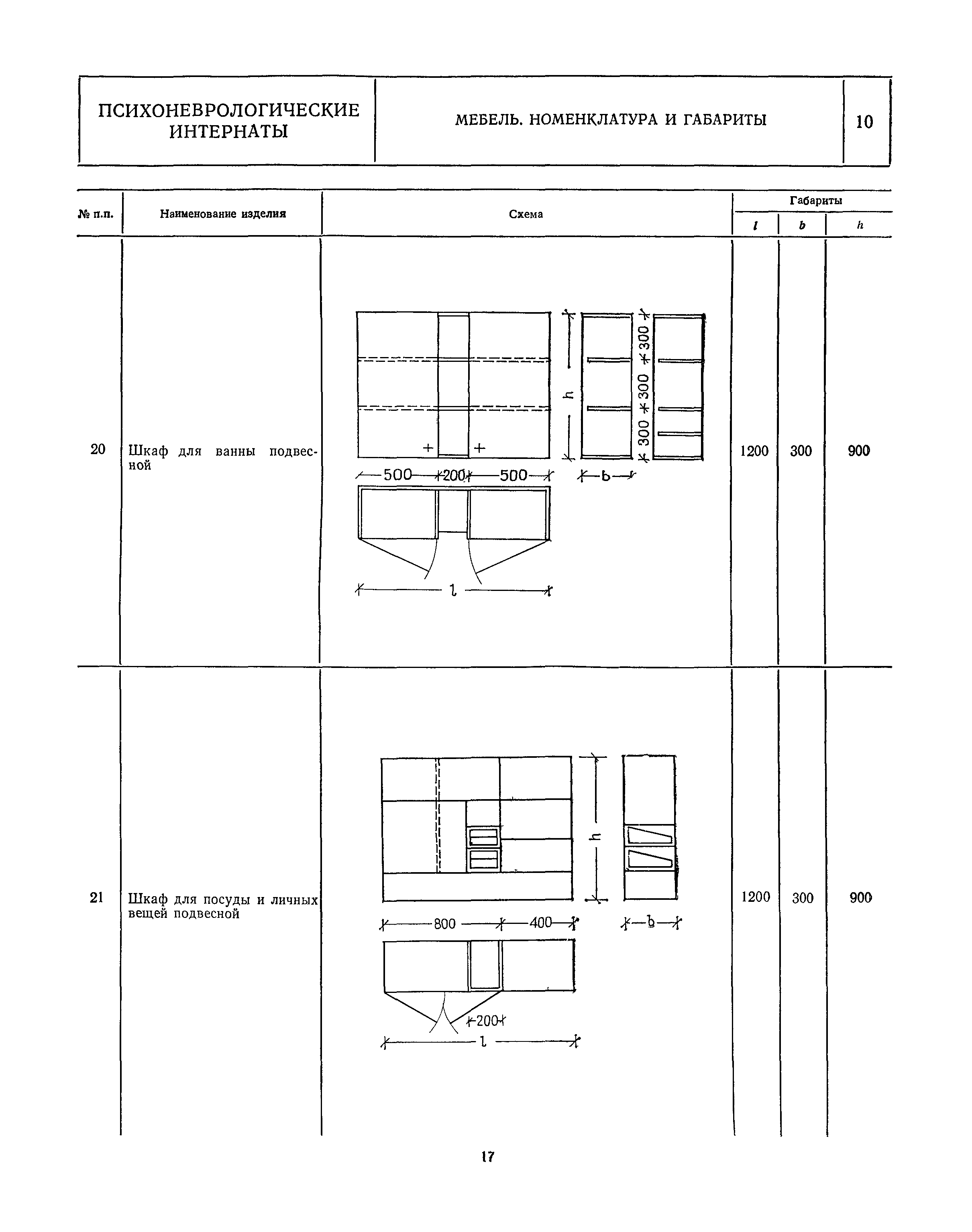
Область применения:Даны рекомендации по планировочным параметрам помещений на основе нормативных данных «Инструкции по проектированию психоневрологических интернатов» (СН 532-81), оптимальных конструктивно-планировочных модулей, решений интерьеров с учетом унифицированной номенклатуры мебели. Планировочные элементы разработаны для трех типов содержания лиц, проживающих в психоневрологических интернатах, - свободного, наблюдательного, постельного. Для архитекторов и специалистов, работающих в области социального обеспечения и организации специализированного жилища.
Оглавление:Введение
Раздел I. Исходные данные
Раздел II. Группы жилых помещений
Раздел III. Обеденные залы
Раздел IV. Клубные помещения
Раздел V. Помещения лечебно-производственных мастерских
Раздел VI. Помещения медицинского пункта
Разработан: ЦНИИЭП жилища
Утверждён:07.01.1982 Госгражданстрой (Gosgrazhdanstroy 5)
Издан: Стройиздат (1984 г. )
Расположен в:Техническая документация Экология СТРОИТЕЛЬНЫЕ МАТЕРИАЛЫ И СТРОИТЕЛЬСТВО Строительство Общественные здания Строительство Справочные документы Нормали основных планировочных элементов жилых и общественных зданий
Нормативные ссылки:
НП 1.7-82НП 1.7-82НП 1.7-82НП 1.7-82НП 1.7-82НП 1.7-82НП 1.7-82НП 1.7-82НП 1.7-82НП 1.7-82НП 1.7-82НП 1.7-82НП 1.7-82НП 1.7-82НП 1.7-82НП 1.7-82НП 1.7-82НП 1.7-82НП 1.7-82НП 1.7-82НП 1.7-82НП 1.7-82НП 1.7-82НП 1.7-82НП 1.7-82НП 1.7-82НП 1.7-82НП 1.7-82НП 1.7-82НП 1.7-82НП 1.7-82НП 1.7-82НП 1.7-82НП 1.7-82НП 1.7-82НП 1.7-82НП 1.7-82НП 1.7-82НП 1.7-82НП 1.7-82НП 1.7-82НП 1.7-82НП 1.7-82НП 1.7-82НП 1.7-82НП 1.7-82НП 1.7-82НП 1.7-82НП 1.7-82НП 1.7-82НП 1.7-82НП 1.7-82НП 1.7-82НП 1.7-82НП 1.7-82НП 1.7-82НП 1.7-82НП 1.7-82НП 1.7-82

© 2013 Ёшкин Кот :-) Карта сайта