Скачать СП 138.13330.2012 Общественные здания и сооружения, доступные маломобильным группам населения. Правила проектированияДата актуализации: 10.08.2017 СП 138.13330.2012
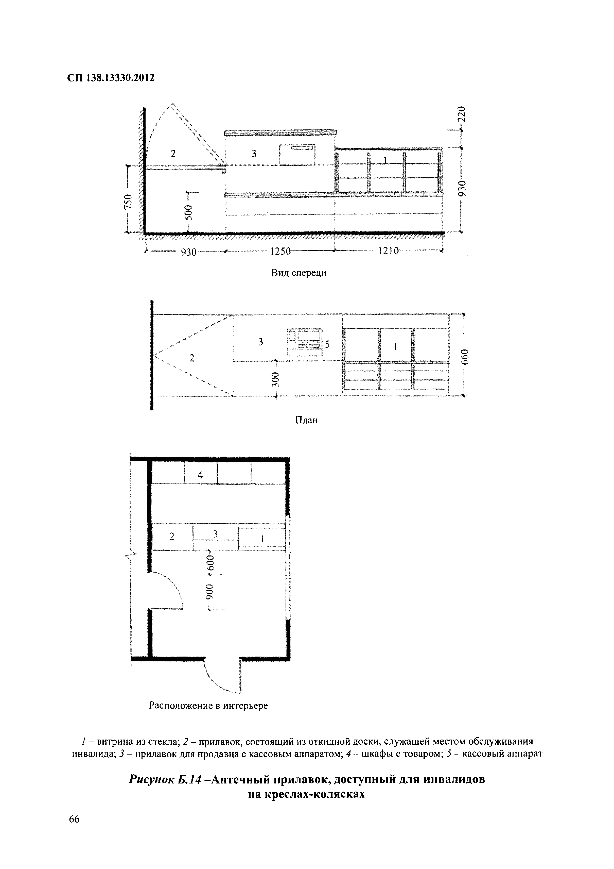
Общественные здания и сооружения, доступные маломобильным группам населения. Правила проектирования| Обозначение: | СП 138.13330.2012 | | Обозначение англ: | SP 138.13330.2012 | | Статус: | действует | | Название рус.: | Общественные здания и сооружения, доступные маломобильным группам населения. Правила проектирования | | Название англ.: | Publiс buildings and structures accessible for physically handicapped visitors. Rules of architectural design | | Дата добавления в базу: | 01.10.2014 | | Дата актуализации: | 05.05.2017 | | Дата введения: | 01.07.2013 | | Область применения: | Положения свода правил распространяются на проектирование общественных зданий и сооружений, выполняющих функции общественного обслуживания и доступных для маломобильных групп населения. Свод правил распространяется на проектирование и реконструкцию зданий учреждений различных форм собственности и различных организационно-правовых форм. Свод правил не распространяется на части общественных зданий, сооружений и участки, куда не предусмотрен допуск посетителей. Если в этих зонах предусматриваются рабочие места для инвалидов, то их следует проектировать в соответствии с СП 139.13330, а при их отсутствии — по заданию на проектирование. | | Оглавление: | 1 Область применения 2 Нормативные ссылки 3 Термины и определения 4 Здания и помещения учебно-воспитательного назначения Учебные помещения Прочие помещения 5 Здания и помещения здравоохранения и социального обслуживания населения 6 Здания и помещения сервисного обслуживания населения Общие положения Предприятия розничной торговли Предприятия питания Предприятия бытового обслуживания Здания и сооружения вокзалов пассажирского транспорта 7 Объекты физкультурного, спортивного и физкультурно-досугового назначения демонстрационные спортивные сооружения Участок и функциональное зонирование Учебно-тренировочные физкультурно-спортивные сооружения Демонстрационные спортивные сооружения 8 Здания и помещения зрелищного и культурно-просветительского назначения Библиотеки Музеи и выставки Культурно-просветительские учреждения Театры, театры-студии, цирки Кинотеатры и киноконцертные залы 9 Культовые, ритуальные и мемориальные здания и сооружения Участки Культовые здания и сооружения Мемориальные здания и сооружения 10 Здания объектов по обслуживанию общества и государства Банковские учреждения Предприятия почтовой связи Здания учреждений управления Здания и помещения органов социальной защиты населения Здания и помещения судебно-правовых учреждений Здания и помещения коммунальных служб 11 Здания и помещения временного пребывания Приложение А (обязательное). Требования к зданиям и помещениям Приложение Б (справочное). Иллюстрации Библиография | | Разработан: | ОАО ЦНИИЭП жилища ООО Институт общественных зданий
| | Утверждён: | 27.12.2012 Федеральное агентство по строительству и жилищно-коммунальному хозяйству (124/ГС)
| | Издан: | ФАУ ФЦС (2013 г. )
| | Расположен в: |
| | Список изменений: | | | Нормативные ссылки: | |
                                                                                               
Текстовое изменение № 1 от 08.05.2017
                                                        
|